Líbí se vám tento dům?
Objednejte si
bezplatný Katalog a zjištěte více
o domech firmy GADLINE
Profil domu
Cena od |
na dotaz
Hypotéka: měsíční cena od
0 Kč
|
Zastavěná plocha |
221.00m2 |
Podlahová plocha |
344.00m2 |
Dispozice |
5+1 |
Počet podlaží |
Patrový dům |
Typ střechy |
Atypická |
Kategorie domů |
Zděná |
Půdorys |
Atypický |
Garáž/ garážové stání |
Garáž |
Dodavatel |
GADLINE |
Popis a recenze redakce
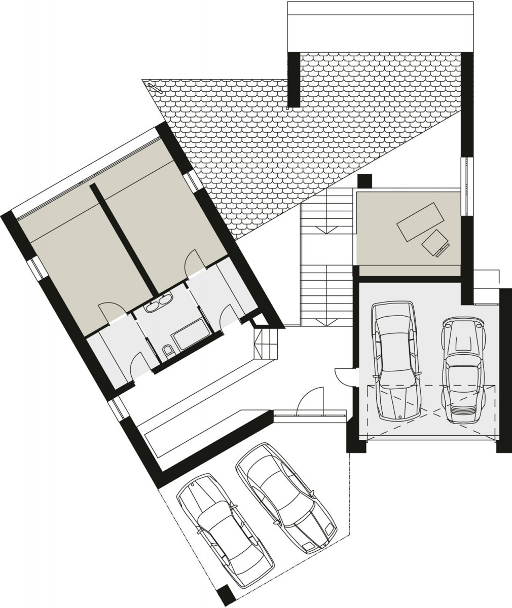
Tento dům byl navržen pro svažitý pozemek s krásným výhledem, ale v oblasti s mnoha přísnými regulativy. Pozornost poutá jižní fasáda skloněná o 10°, která se logicky vyvinula z geometrické kompozice domu, má ale i další význam. V létě, když je slunce vysoko, odráží skloněná prosklená plocha sluneční paprsky více než kolmá, takže se snižuje riziko přehřívání domu. V zimě naopak takový sklon průniku slunečních paprsků nebrání.
Pro Aleše Gadlinu je typická nekonvenční architektura, které nechybí odvaha experimentovat a zcela vybočit z obvyklého standardu. Nec... hybí kompletní péče o klienty od úvodní konzultace přes vlastní stavbu až po závěrečnou kolaudaci.
Klady
velkým kladem domu je dostatečně velké a komfortně vybavené zázemí včetně prostorných šaten a na míru vyrobených vestavěných skříní
Zápory
vysoká kvalita materiálů i technického vybavení a na míru vyrobeného vnitřního vybavení se neobejde bez vyšší investice
Chcete znát názor redakce?
Přečtěte si ji po přihlášení.
Aktivovat členství ZDARMAJste členem? Přihlásit se.
Objednejte si
bezplatný Katalog a zjištěte více
o domech firmy GADLINE
Podobné domy na klíč
Nadčasový dům dobře zapadne do jakéhokoliv typu zástavby. Nabízí velké pokoje a pohodlné zázemí pro čtyř- až pětičlennou rodinu, případně i soužití s prarodiči. Obyvatelé ocení i krytou terasu, vstup z garáže do domu „suchou nohou“ a technickou místnost s výstupem na zahradu.
Elegantní architektura je vhodná do moderní městské čtvrti. Pozornost si zaslouží velký společný obývací prostor, velké ložnice a pohodlné zázemí, zastavěná plocha domu přitom není příliš velká. Jako jeden z mála katalogových projektů nabízí celkem čtyři terasy a kryté parkování pro dva automobily (v ceně).
Dvoupodlažní rodinný dům postavil stavební inženýr svépomocí a zcela dle vlastních představ o novém domě. Při stavbě dokonale využil své profesní zkušenosti a výhody spojení pórobetonu Ytong s izolačními deskami Multipor.
Hlavní obytné místnosti vévodí 6,4 m široké prosklení do zahrady. Před prosklením je umístěna kuchyně s barovým sezením a přímo navazující jídelní část. Propojení této sekce se zahradní terasou vytváří skvělý společenský prostor pro velké rodinné akce či večírky. Také soukromá zóna pro rodiče je umístěna v přízemí. Hlavním důvodem je možnost pohodlného užívání domu v pokročilejším věku.
Po odstěhování ratolestí stačí uzavřít horní podlaží a nechat jej přichystané pouze pro občasné návštěvy. Velmi prostorné přízemí nabízí vše potřebné, co moderní bydlení musí poskytovat.
Dvě vzájemně ustupující patra rozdělují objekt na společenskou zónu v horním vstupním poschodí a na část soukromou s ložnicí, dětskými pokoji a koupelnami. Výhled z obývacího prostoru je orientován směrem do soukromé zahrady. Přes velká francouzská okna je možné vyjít na terasu, kterou tvoří plochá střecha spodního patra. Schodiště vede o patro níž, do prostorné chodby s velkým úložným prostorem v podobě šatní skříně.
Za hlavním průčelím se otevírá impozantní otevřený společný obývací prostor s jídelnou a kuchyní přesahující až do podkroví. Kromě úchvatného proskleného štítu je osvětlen také velkými, symetricky umístěnými bočními prosklenými plochami s výstupem na terasy po obou stranách domu. V přízemí je také posilovna, technické zázemí, koupelna a dvě ložnice (ložnice rodičů a dětský pokoj). Z obývacího pokoje vede otevřené schodiště do podkroví s galerií, dalšími dvěma dětskými pokoji a koupelnou.
Majitel chtěl mít na domě plochou střechu, takže mohl využít celý konstrukční systém Ytong. Přízemí má tvar písmene „F“ a má plochou střechu, patro je ve tvaru „L“ řešeno jako ustoupené podlaží. Masivní střecha z Ytongu poskytuje tepelný komfort v létě i v zimě.
Pórobeton zvolili majitelé poměrně netradičně i na konstrukci střechy. Hlavním důvodem bylo zvýšit komfort bydlení v létě, kdy v případě použití lehkých střešních konstrukcí znepříjemňuje život letní přehřívání. Díky masivní střeše z konstrukčního systému Ytong dům ani v horkých letních dnech nepotřebuje klimatizaci. Příčky z vápenopískových tvárnic výrazně zlepšily akustiku domu, obvodové zdivo z tvárnic Ytong Lambda YQ a vnější a vnitřní omítky Ytong dodávají domu výborné tepelněizolační vlastnosti.
Moderní architektura s plochou střechou je určena do nové zástavby. Jedná se o jeden mála z projektů se dvěma samostatnými, provozně nezávislými bytovými jednotkami. Je vhodný pro soužití dvou rodin s dětmi. Každý byt má vstup v přízemí a pohodlnou dispozici ve dvou podlažích, s prostorným obývacím pokojem, vlastní terasou a komfortním zázemím. Orientace obytných místností je řešena tak, aby se rodiny navzájem nerušily. Dvojdům ušetří náklady na pozemek, realizaci stavby i provoz domácnosti.
Jednoduchá nadčasová architektura se hodí do města i na venkov. Dům nabízí vše, co rodina se 2 dětmi potřebuje ke komfortnímu bydlení. Praktická je především garáž vnitřně propojená s domem, nechybí technická místnost ani spíž a rodiče i děti mají k dispozici nadstandardně velké ložnice. I při poměrně velké užitné ploše bude dům energeticky úsporný.
Dvojdům šetří nároky na pozemek i investiční náklady a také provoz domácnosti bude levnější. Je navržen pro praktické bydlení dvou čtyřčlenných rodin s pohodlným zázemím. Majitelé určitě ocení garáž vnitřně propojenou s domem, velký společný obývací prostor a komfortní apartmá rodičů s vlastním zázemím. Pro pohodlný provoz domu by se hodila technická místnost.
Dvojdům je svým moderním vzhledem vhodný především do městské zástavby. Zajímavým architektonickým prvkem je rohové okno v patře, které nabízí hodně světla a hezký výhled. Dvojdům přináší úsporu investičních i provozních nákladů a najdou v něm praktické bydlení dvě rodiny s jedním až dvěma dětmi, případně jej lze využít i jiným způsobem (spojení bydlení a podnikání, vícegenerační bydlení větší rodiny). Díky standardní výšce stropu v patře poskytnou ložnice více místa než v domě s obytným podkrovím.
Podobné domy od architektů
Dvoupodlažní rodinný dům s plochou střechou nahradil na pozemku na kraji Prahy starší nevyhovující objekt. Proč se jmenuje Aero? Originální novostavba je inspirována historickým letadlem. Příběh domu začal podobně jako mnoho dalších – rodina hledala vhodné místo pro stavbu nového domova. V Praze volné pozemky za přiměřenou částku ovšem nebyly,...
Rodina s dítětem školního věku našla velký pozemek v malé obci na okraji brdských lesů. Uskutečnili zde svou představu o pohodlném, praktickém a zároveň hezkém domě, který si na nic nehraje. Záleželo jim především na tom, aby se jim tu dobře žilo. Lokalitu dobře znali, líbila se jim nejen krásná příroda na dosah, ale i dobrá dostupnost na dálnici...
U architekta Jakuba Chocholy bývá zvykem, že každý nový dům vzniká s přívlastkem. Zvířata jsme zatím v názvu ale zaznamenali poprvé… Zajímavého je ale mnohem více. Pro architekta je prostředí, do které stavbu navrhuje, v mnohém určující i inspirující. Nejde jen o přírodu či okolí, ale i kulturní a sociální...
Tradiční tvar a tradiční materiály i místo samotné působí, jako by tu chalupa stála odjakživa. Dům je umístěn ve svahu hned vedle cesty tak, že zadní štít střechy má vchod do podkroví přímo z terénu. Tráva roste nad přízemím, jedná se o nenápadnou zelenou střechu. Průčelí, které se obrací do zahrady, architekti vůči...
Novostavba ve středočeské obci na východ od Prahy představuje jednu z cest, jak začlenit moderní dům do prostředí typické české vesnice. Moderní zdicí systém a inovativní technologie mu dodávají vynikající technické parametry. Pozemek v mírném severním svahu s přístupem z jihu se nachází v klidové části obce, mezi domy různého...
Rozlehlý pozemek v parku v sousedství zámeckého rybníka patřil rodině po generace, současnému majiteli však trvalo několik let, než jej získal do svého výlučného vlastnictví. Dalších pár let přemýšlel, zda se pustit do rekonstrukce staré vily, která byla v zuboženém stavu, nakonec se ale rozhodl nahradit ji moderní novostavbou a vytvořit tu nový domov nejen...
Vila na unikátním exponovaném místě na kopci spojuje dva architektonické principy: uzavřené chráněné atrium a prostory maximálně otevřené do exteriéru. Výhledy a průhledy napříč domem jak do atria, tak ven daleko do krajiny dodávají komfortnímu bydlení další rozměr. Architekti Jana a Miroslav Stachovi z ateliéru boq...
Atriově pojatá novostavba pro umělecky založený pár a dva mazané jezevčíky svou fasádou reflektuje historickou stopu budovy, která na klidném pražském předměstí stávala dříve. Svým pojetím je veskrze soudobá. Interiér se prolíná s exteriérem, současným požadavkům dům odpovídá také dispozicemi Úkolem architektky bylo navrhnout rodinný dům se...
Takto charakterizuje své nové bydlení rodina z východních Čech. Co to pro ně znamená? Pohodlnou dispozici, ale bez nevyužitých metrů čtverečních, nejmodernější technologie a nadstandardní vybavení interiéru s maximálním důrazem na jejich individuální potřeby. Design interiéru si majitelé navrhli kompletně sami a částečně i sami...
Nové čtvrti z přelomu století, nad nimiž oči přecházely, už jsou dnes za svým zenitem. Těžké střechy podivných tvarů a barev, oblé nebo hranaté rizality, někdy i balustrády. Ale každý dům měl svoji zahradu a lidé, kteří rádi opouštěli sídliště, mohli mít pocit, že tady bude jejich život lepší. Dnes už mnozí z nich...
Mnozí z nás si po letech ve městě vzpomenou na místa, která mají rádi. Důvody bývají různé – vyrůstali jsme tu jako děti, žili tam naši prarodiče, máme tam kamarády a nebo je tam prostě krásně a cítíme se tam dobře. Nejdříve jim věnujeme víkendy a dovolené, později si uvědomíme, že by bylo hezké prožít tu co nejvíce...
Dodejme, že mladé horolezce s malými dětmi. Jak tomu u architekta Jakuba Chocholy bývá, je každý jeho nový dům s přívlastkem. I v tomto případě je tedy toho zajímavějšího mnohem více. Dobřichovice jsou hezké místo, ale to nejzajímavější je, že dům stojí na pozemku kousek od Berounky, v oblasti ohrožené záplavami....
Poslat vzkaz
PROFIL FIRMY
GADLINE
25244, Slepá 130
Jak postavit skvělý dům
krok za krokem?
To se dozvíte zdarma v našem seriálu. Stačí se registrovat k e-mailovému odběru a získáte:
- 165dílný e-mailový seriál nabitý postupy
- Škola stavění krok za krokem
- Zařizování interiérů a relaxace doma
- Ověřené rady od odborníků
Cena od
Zastavěná plocha
Podlahová plocha
Dispozice
Počet podlaží
Typ střechy
Kategorie domů
Půdorys
Garáž/ garážové stání
Dodavatel