Líbí se vám tento dům?
Objednejte si
bezplatný Katalog a zjištěte více
o domech firmy HK-DŘESTAV s.r.o.
Profil domu
Cena od |
od 5 145 226 Kč
Hypotéka: měsíční cena od
21 959 Kč
|
Zastavěná plocha |
81.00m2 |
Podlahová plocha |
130.00m2 |
Dispozice |
5+kk |
Počet podlaží |
Patrový dům |
Typ střechy |
Pultová |
Kategorie domů |
Dřevěná |
Půdorys |
Do písmene L |
Garáž/ garážové stání |
Garážové stání |
Dodavatel |
HK-DŘESTAV s.r.o. |
Popis a recenze redakce
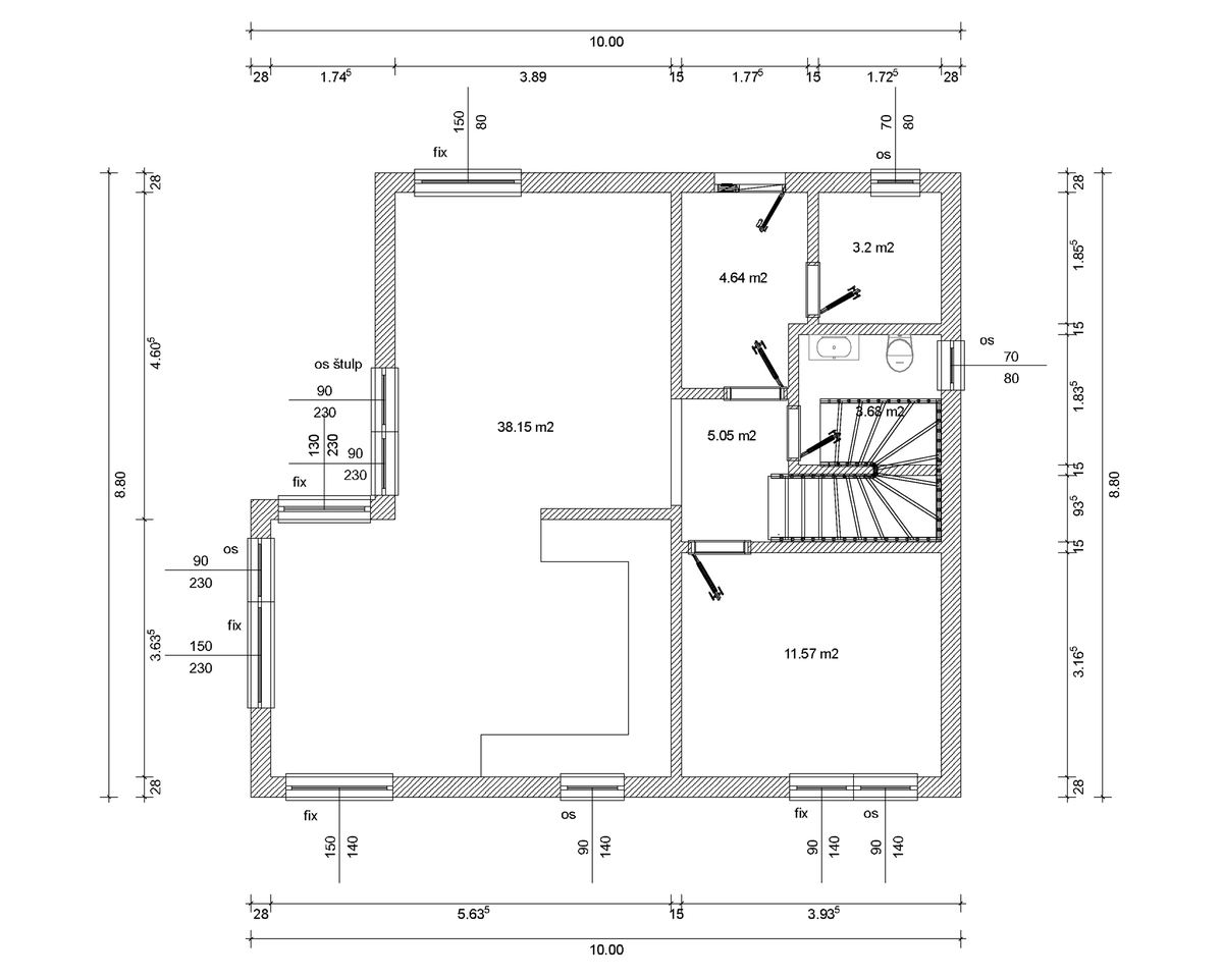
Na velmi malé zastavěné ploše dům poskytuje komfortní bydlení pro až pětičlennou rodinu, včetně kryté terasy a parkovacího stání s mal... m skladem. Interiér je bohatě prosvětlený, velmi praktická je možnost oddělit kuchyň a obývací pokoj. V patře je k dispozici velká šatna.
Klady
malá zastavěná plocha
postačí malý pozemek
nadčasová architektura
úsporný provoz
možnost oddělit obývací pokoj a kuchyň
technická místnost
velká šatna
kryté parkovací stání + sklad
Zápory
v domě není vana
Chcete znát názor redakce?
Přečtěte si ji po přihlášení.
Aktivovat členství ZDARMAJste členem? Přihlásit se.
Objednejte si
bezplatný Katalog a zjištěte více
o domech firmy HK-DŘESTAV s.r.o.
Podobné domy na klíč
Dům spojuje promyšlenou dispozici a moderní komfort s ekologickými aspekty. Je součástí harmonického obytného celku s upravenou zelení a komunitním prostorem. Díky vyššímu hřebeni střechy mají pokoje v podkroví nadstandardní využitelný prostor.
Dřevostavba s tmavou opalovanou fasádou chytře využívá svažitý pozemek a dokonale využívá potenciál daného místa – nabízí úchvatné výhledy na Ještěd, podkroví s prostorem pro návštěvy i pohodlné zázemí. Architektura citlivě zapadá do krajiny a elegantní detaily, terasa s pergolou i zahrada dotvářejí příjemnou atmosféru.
V přízemní vás zaujme velkorysý obývací prostor, který ukrývá krb, pohodlnou sedačku, rozměrný jídelní stůl a kuchyňskou linku. Dům je navržen s přihlédnutím na nejmodernější trendy bydlení. Technologie domu nabízí pasivní standard, proto zde nechybí tepelné čerpadlo IVT, rekuperace ZEHNDER. Podstropní výměník dokáže okamžitě regulovat teplotu jak v zimě, tak v létě. Dům je ovládán pomocí inteligentního systému LOXONE.
Moderní kompaktní architektura s pultovou střechou bude výrazná v městské i venkovské zástavbě, kde dům vynikne svou výškou. Postačí mu malý pozemek. Na velmi malé zastavěné ploše nabízí praktické a úsporné bydlení pro čtyřčlennou rodinu, pokoje v patře nejsou zmenšeny šikmými stropy jako v běžné podkroví. Ke schodišti je třeba projít přes celý obývací pokoj.
Jednoduchý dům vhodný na venkov i do města, postačí malý pozemek. Poskytne praktické bydlení s nízkými provozními náklady. Má přehlednou dispozici, příjemný obývací pokoj a komfortní technickou místnost. Pro pětičlennou rodinu je výhodné rozdělení na ložnici rodičů v přízemí a dětské pokoje v podkroví, bylo by potřeba více úložného prostoru
Přízemí domu je krásně propojeno se zahradou velkými francouzskými okny. K domu si můžete dodělat pergolu a využít průchod z obývacího pokoje například na vychutnání ranní kávy. Pokoj v přízemí poslouží jako pracovna, pokoj pro hosty, pokoj pro prarodiče nebo jako odpočinková místnost, vše podle potřeby. Nechybí zde koupelna se sprchou. V podkroví domu se nachází čtyři velké pokoje a koupelna s vanou.
Tristar je prostorný dům s dobře vyřešenou dispozicí. V přízemí se nachází velký obytný prostor s kuchyní a jídelnou, koupelna s WC a sprchou a pokoj po hosty, který může sloužit i jako ložnice pro rodiče. Nechybí zde pracovna, která může být i technickou místností. V patře jsou tři ložnice, velká koupelna a praktická šatna.
Toto neobvyklé řešení vzniklo díky požadavkům majitelů na poměrně rozsáhlé zázemí domu. Architektka se proto rozhodla sloučit všechny obslužné činnosti do jedné samostatné budovy. Zdrojem tepla pro vytápění a přípravu teplé vody je malé tepelné čerpadlo země/voda se zemním kolektorem. Provoz čerpadla a dalších spotřebičů dotují i střešní fotovoltaické panely.
Na malé zastavěné ploše se díky promyšlené dispozici nabízí komfortní bydlení pro čtyřčlennou rodinu s pohodlným zázemím. V přízemí se vstupuje do prostorné haly s šatnou, je tu velký společný obývací prostor, prostorné jsou i pokoje v patře včetně velké rodinné koupelny. Horní podlaží má vyšší stropy než běžné podkroví.
Dům nabídne pohodlné bydlení až pětičlenné rodině. Oblíbený bude jistě společný obývací prostor ve tvaru L s velkou kuchyní. V podkoroví se nacházejí prostorné dětské pokoje, nadstandardně velká ložnice rodičů a studio, vhodné jako další ložnice nebo pro práci z domova. Výhodou je také integrovaná garáž.
Dům nabízí komfortní bydlení čtyřčlenné rodině s odpovídajícím zázemím. Upoutá pozornost díky velkému společnému obývacímu prostoru, který je zajímavě rozdělen centrálním schodištěm. Prostorné jsou také místnosti v patře, které mají vyšší stropy než standardní podkroví. K nadstandardu v kategorii typových projektů lze započítat i kryté garážové stání propojené se vstupem do domu a krytou terasu.
Podobné domy od architektů
Mladá rodina se rozhodla usadit v menším městě ve slunném Polabí. Protože chtěli bydlet pohodlně, zdravě, za přijatelnou cenu a také brzy, rozhodli se pro katalogovou dřevostavbu. Vybrali si praktický a elegantní dům, který bude funkční a moderní i za dvacet let. Rovinatý pozemek v menším městě stavebníkům vyhovoval jak svou velikostí, tak polohou v klidné...
Výjimečný pozemek díky výhledům do krajiny Českého ráje měl skrytou vadu. Současní majitelé se obtížných vstupních podmínek nezalekli a projekt domu svěřili architektonickému studiu. Výsledkem je moderní unikátně založená dřevostavba. O pořízení nového bydlení rozhodly vzpomínky, úchvatné výhledy a možná i věta, že problémy...
V kraji voňavých lesů a pískových rybníků nedaleko Nymburka si rodina s dětmi před dvaceti lety postavila na svou dobu komfortní prostornou dřevostavbu. I dnes stále dobře slouží svému účelu, nicméně vybavení interiéru už zastaralo a také fasády dávaly najevo, že je čas na změnu. Dvoupodlažní dům se stanovou střechou...
Majitelé domů v památkově či jinak chráněných zónách mají někdy kvůli mnoha předpisům obavy se do modernizace svého obydlí vůbec pustit. Vzdušná přístavba k tradičnímu anglickému cihlovému domku by možná mohla posloužit jako příklad nejen pro naše stavebníky, ale i pro státní úředníky. Když se chce, jde to! Když architektka Kate...
V srdci malebné středočeské krajiny, v obci Nová Ves pod Pleší u Příbrami, se realizuje výjimečný projekt moderního a udržitelného bydlení – Bydlení Na Včelníku. Vznikne tu osm designově čistých a technologicky vyspělých dřevostaveb, které spojují elegantní architekturu s důrazem na energetickou úspornost...
Nová dřevostavba dýchá harmonií, majitelům nabízí pohodlný příjemný život a výhledy do všech světových stran. Nikdo by dnes již nehádal, že příběh bílého domu na Liberecku začal poměrně dramaticky. Mladý manželský pár, oba lékaři, začali před několika lety přemýšlet o pořízení vlastního rodinného domu. Chtěli sice zakotvit...
Stavět ve volné krajině dnes již u nás není možné, a tak se pro ty, kdo chtějí žít v přírodě, často stává východiskem výstavba na místě starých rekreačních objektů. To byl i případ manželů z Prahy, kteří si dlouho přáli uniknout z velkoměsta. Své vytoužené místo našli na trase na jižní...
Jevanské rybníky, na něž navazují rozsáhlé Voděradské bučiny, patří k nejkrásnějším kouskům přírody v blízkosti Prahy a již před sto lety se staly vyhlášenou rekreační oblastí. Rodina, která zde trvale žije, se rozhodla postavit samostatnou obytnou jednotku pro návštěvy, využitelnou po celý rok. K dispozici měli pozemek v blízkosti svého domu...
Do malé obce na Teplicku mladou rodinu přilákal klid a příroda na dosah ruky. Na severu se začíná zvedat zalesněné pásmo Krušných hor, daleko není ani koupání a městská infrastruktura. Přáli si bydlet v přírodě, ale zároveň moderně a brzy, a proto si vybrali dům od společnosti LUCERN dřevostavby. Pozemek se starým stromem a málo sousedy nabízel...
V kategorii Dřevostavby se našim čtenářům v loňském roce nejvíce líbil upravený katalogový dům z nabídky společnosti LUCERN dřevostavby, který se umístil na prvním místě. Zajímalo nás, jaké má vlastnosti a proč se těší u českých stavebníků takové oblibě. Exteriér domu včetně střešní krytiny a oken je laděn do odstínů antracitové, šedé a...
Obec na Berounce na západ od Prahy se může pochlubit krásnou polohou v kopcovité krajině, která je dnes významnou rekreační oblastí, téměř tisíciletou historií, pamětihodnostmi i moderní občanskou vybaveností. Zatím si udržuje autentický charakter klidného městečka, a proto je atraktivním místem k bydlení. Mladá rodina využila příležitost ke koupi domu na...
Senice na Hané leží v úrodných rovinách; říkávalo se, že tu na jaře vzejde i pometlo, když ho zarazíte do země. Už v 19. století obec získala silniční a železniční spojení a začala velmi vzkvétat. Má hezkou náves s barokním kostelem, ale okolní ulice připomínají spíš městečko. Některé z nich jsou poněkud zaprášené, jako by se tu zastavil čas. Jeden ze...
Poslat vzkaz
PROFIL FIRMY
HK-DŘESTAV s.r.o.
26401, Doublovičky 11
Jak postavit skvělý dům
krok za krokem?
To se dozvíte zdarma v našem seriálu. Stačí se registrovat k e-mailovému odběru a získáte:
- 165dílný e-mailový seriál nabitý postupy
- Škola stavění krok za krokem
- Zařizování interiérů a relaxace doma
- Ověřené rady od odborníků
Cena od
Zastavěná plocha
Podlahová plocha
Dispozice
Počet podlaží
Typ střechy
Kategorie domů
Půdorys
Garáž/ garážové stání
Dodavatel