Líbí se vám tento dům?
Profil domu
Cena od |
od 5 140 555 Kč
Hypotéka: měsíční cena od
21 939 Kč
|
Zastavěná plocha |
75.00m2 |
Podlahová plocha |
114.00m2 |
Dispozice |
5+kk |
Počet podlaží |
Patrový dům |
Typ střechy |
Sedlová |
Kategorie domů |
Dřevěná |
Půdorys |
Obdélníkový |
Garáž/ garážové stání |
Neuvedeno |
Dodavatel |
HK-DŘESTAV s.r.o. |
Popis a recenze redakce
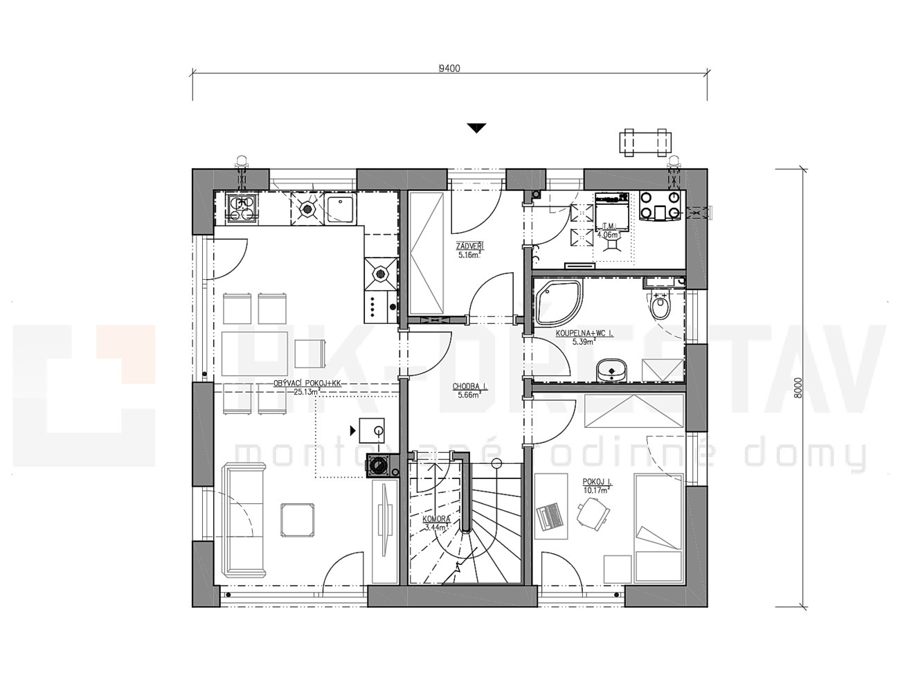
Moderní patrový dům Tristar dobře uspokojí požadavky i větší rodiny. Dobře se hodí jak do městské, tak venkovské zástavby.
Tristar je prostorný dům s dobře vyřešenou dispozicí. V přízemí se nachází velký obytný prostor s kuchyní a jídelnou, koupelna s WC a sp... rchou a pokoj po hosty, který může sloužit i jako ložnice pro rodiče. Nechybí zde pracovna, která může být i technickou místností. V patře jsou tři ložnice, velká koupelna a praktická šatna.
Klady
Balkon v patře a krytý vstup z obývacího pokoje na terasu
Malá zastavěná plocha, plusem je také koupelna a ložnice v přízemí
Téměř nulová spotřeba energie
Zápory
Projekt nezahrnuje garáž či garážové stání
Chcete znát názor redakce?
Přečtěte si ji po přihlášení.
Aktivovat členství ZDARMAJste členem? Přihlásit se.
Objednejte si
bezplatný Katalog a zjištěte více
o domech firmy HK-DŘESTAV s.r.o.
Podobné domy na klíč
V přízemní vás zaujme velkorysý obývací prostor, který ukrývá krb, pohodlnou sedačku, rozměrný jídelní stůl a kuchyňskou linku. Dům je navržen s přihlédnutím na nejmodernější trendy bydlení. Technologie domu nabízí pasivní standard, proto zde nechybí tepelné čerpadlo IVT, rekuperace ZEHNDER. Podstropní výměník dokáže okamžitě regulovat teplotu jak v zimě, tak v létě. Dům je ovládán pomocí inteligentního systému LOXONE.
Moderní kompaktní architektura s pultovou střechou bude výrazná v městské i venkovské zástavbě, kde dům vynikne svou výškou. Postačí mu malý pozemek. Na velmi malé zastavěné ploše nabízí praktické a úsporné bydlení pro čtyřčlennou rodinu, pokoje v patře nejsou zmenšeny šikmými stropy jako v běžné podkroví. Ke schodišti je třeba projít přes celý obývací pokoj.
Jednoduchý dům vhodný na venkov i do města, postačí malý pozemek. Poskytne praktické bydlení s nízkými provozními náklady. Má přehlednou dispozici, příjemný obývací pokoj a komfortní technickou místnost. Pro pětičlennou rodinu je výhodné rozdělení na ložnici rodičů v přízemí a dětské pokoje v podkroví, bylo by potřeba více úložného prostoru
Přízemí domu je krásně propojeno se zahradou velkými francouzskými okny. K domu si můžete dodělat pergolu a využít průchod z obývacího pokoje například na vychutnání ranní kávy. Pokoj v přízemí poslouží jako pracovna, pokoj pro hosty, pokoj pro prarodiče nebo jako odpočinková místnost, vše podle potřeby. Nechybí zde koupelna se sprchou. V podkroví domu se nachází čtyři velké pokoje a koupelna s vanou.
Toto neobvyklé řešení vzniklo díky požadavkům majitelů na poměrně rozsáhlé zázemí domu. Architektka se proto rozhodla sloučit všechny obslužné činnosti do jedné samostatné budovy. Zdrojem tepla pro vytápění a přípravu teplé vody je malé tepelné čerpadlo země/voda se zemním kolektorem. Provoz čerpadla a dalších spotřebičů dotují i střešní fotovoltaické panely.
Na malé zastavěné ploše se díky promyšlené dispozici nabízí komfortní bydlení pro čtyřčlennou rodinu s pohodlným zázemím. V přízemí se vstupuje do prostorné haly s šatnou, je tu velký společný obývací prostor, prostorné jsou i pokoje v patře včetně velké rodinné koupelny. Horní podlaží má vyšší stropy než běžné podkroví.
Dům nabídne pohodlné bydlení až pětičlenné rodině. Oblíbený bude jistě společný obývací prostor ve tvaru L s velkou kuchyní. V podkoroví se nacházejí prostorné dětské pokoje, nadstandardně velká ložnice rodičů a studio, vhodné jako další ložnice nebo pro práci z domova. Výhodou je také integrovaná garáž.
Dům nabízí komfortní bydlení čtyřčlenné rodině s odpovídajícím zázemím. Upoutá pozornost díky velkému společnému obývacímu prostoru, který je zajímavě rozdělen centrálním schodištěm. Prostorné jsou také místnosti v patře, které mají vyšší stropy než standardní podkroví. K nadstandardu v kategorii typových projektů lze započítat i kryté garážové stání propojené se vstupem do domu a krytou terasu.
Dům s poměrně malou zastavěnou plochou poslouží čtyř- až pětičlenné rodině k pohodlnému bydlení, v případě potřeby též k vícegeneračnímu bydlení. Upoutá pozornost díky zimní zahradě, která zvětšuje a prosvětluje velký společný obývací prostor. Prostorné jsou také místnosti v patře, které mají vyšší stropy než standardní podkroví.
Jednoduchý dům nadčasového vzhledu poskytne praktické bydlení čtyřčlenné rodině, který lze využít i pro vícegenerační bydlení. I při nevelké zastavěné ploše nabízí tři prostorné ložnice, pracovnu, velkou kuchyň a pohodlné sociální zázemí. V dispozici se jeví jako problematický průchod ke schodišti přes jídelnu.
Dům nabídne praktické bydlení tří až čtyřčlenné rodině, na malé zastavěné ploše a s úsporným provozem. K jeho kladům dále patří oblíbený společný obývací prostor ve tvaru L, integrovaná garáž a prostorné studio, které lze využít jako domácí pracovnu nebo větší ložnici. Architektonická kompozice s malým rozdílem výšky střechy působí poněkud nesourodě.
Podobné domy od architektů
Mladá rodina se rozhodla usadit v menším městě ve slunném Polabí. Protože chtěli bydlet pohodlně, zdravě, za přijatelnou cenu a také brzy, rozhodli se pro katalogovou dřevostavbu. Vybrali si praktický a elegantní dům, který bude funkční a moderní i za dvacet let. Rovinatý pozemek v menším městě stavebníkům vyhovoval jak svou velikostí, tak polohou v klidné...
Výjimečný pozemek díky výhledům do krajiny Českého ráje měl skrytou vadu. Současní majitelé se obtížných vstupních podmínek nezalekli a projekt domu svěřili architektonickému studiu. Výsledkem je moderní unikátně založená dřevostavba. O pořízení nového bydlení rozhodly vzpomínky, úchvatné výhledy a možná i věta, že problémy...
V kraji voňavých lesů a pískových rybníků nedaleko Nymburka si rodina s dětmi před dvaceti lety postavila na svou dobu komfortní prostornou dřevostavbu. I dnes stále dobře slouží svému účelu, nicméně vybavení interiéru už zastaralo a také fasády dávaly najevo, že je čas na změnu. Dvoupodlažní dům se stanovou střechou...
Majitelé domů v památkově či jinak chráněných zónách mají někdy kvůli mnoha předpisům obavy se do modernizace svého obydlí vůbec pustit. Vzdušná přístavba k tradičnímu anglickému cihlovému domku by možná mohla posloužit jako příklad nejen pro naše stavebníky, ale i pro státní úředníky. Když se chce, jde to! Když architektka Kate...
V srdci malebné středočeské krajiny, v obci Nová Ves pod Pleší u Příbrami, se realizuje výjimečný projekt moderního a udržitelného bydlení – Bydlení Na Včelníku. Vznikne tu osm designově čistých a technologicky vyspělých dřevostaveb, které spojují elegantní architekturu s důrazem na energetickou úspornost...
Nová dřevostavba dýchá harmonií, majitelům nabízí pohodlný příjemný život a výhledy do všech světových stran. Nikdo by dnes již nehádal, že příběh bílého domu na Liberecku začal poměrně dramaticky. Mladý manželský pár, oba lékaři, začali před několika lety přemýšlet o pořízení vlastního rodinného domu. Chtěli sice zakotvit...
Stavět ve volné krajině dnes již u nás není možné, a tak se pro ty, kdo chtějí žít v přírodě, často stává východiskem výstavba na místě starých rekreačních objektů. To byl i případ manželů z Prahy, kteří si dlouho přáli uniknout z velkoměsta. Své vytoužené místo našli na trase na jižní...
Jevanské rybníky, na něž navazují rozsáhlé Voděradské bučiny, patří k nejkrásnějším kouskům přírody v blízkosti Prahy a již před sto lety se staly vyhlášenou rekreační oblastí. Rodina, která zde trvale žije, se rozhodla postavit samostatnou obytnou jednotku pro návštěvy, využitelnou po celý rok. K dispozici měli pozemek v blízkosti svého domu...
Do malé obce na Teplicku mladou rodinu přilákal klid a příroda na dosah ruky. Na severu se začíná zvedat zalesněné pásmo Krušných hor, daleko není ani koupání a městská infrastruktura. Přáli si bydlet v přírodě, ale zároveň moderně a brzy, a proto si vybrali dům od společnosti LUCERN dřevostavby. Pozemek se starým stromem a málo sousedy nabízel...
V kategorii Dřevostavby se našim čtenářům v loňském roce nejvíce líbil upravený katalogový dům z nabídky společnosti LUCERN dřevostavby, který se umístil na prvním místě. Zajímalo nás, jaké má vlastnosti a proč se těší u českých stavebníků takové oblibě. Exteriér domu včetně střešní krytiny a oken je laděn do odstínů antracitové, šedé a...
Obec na Berounce na západ od Prahy se může pochlubit krásnou polohou v kopcovité krajině, která je dnes významnou rekreační oblastí, téměř tisíciletou historií, pamětihodnostmi i moderní občanskou vybaveností. Zatím si udržuje autentický charakter klidného městečka, a proto je atraktivním místem k bydlení. Mladá rodina využila příležitost ke koupi domu na...
Senice na Hané leží v úrodných rovinách; říkávalo se, že tu na jaře vzejde i pometlo, když ho zarazíte do země. Už v 19. století obec získala silniční a železniční spojení a začala velmi vzkvétat. Má hezkou náves s barokním kostelem, ale okolní ulice připomínají spíš městečko. Některé z nich jsou poněkud zaprášené, jako by se tu zastavil čas. Jeden ze...
Poslat vzkaz
PROFIL FIRMY
HK-DŘESTAV s.r.o.
26401, Doublovičky 11
Jak postavit skvělý dům
krok za krokem?
To se dozvíte zdarma v našem seriálu. Stačí se registrovat k e-mailovému odběru a získáte:
- 165dílný e-mailový seriál nabitý postupy
- Škola stavění krok za krokem
- Zařizování interiérů a relaxace doma
- Ověřené rady od odborníků
Cena od
Zastavěná plocha
Podlahová plocha
Dispozice
Počet podlaží
Typ střechy
Kategorie domů
Půdorys
Garáž/ garážové stání
Dodavatel