V kategorii Dřevostavby se našim čtenářům v loňském roce nejvíce líbil upravený katalogový dům z nabídky společnosti LUCERN dřevostavby, který se umístil na prvním místě. Zajímalo nás, jaké má vlastnosti a proč se těší u českých stavebníků takové oblibě.

Bungalov, prosklený dům, venkovský dům, moderní dům, 3+kk, od LUCERN dřevostavby
Líbí se vám tento dům?
Profil domu
Cena od |
Zjistit cenu |
Zastavěná plocha |
132,2 m2 |
Užitná plocha |
110,4 m2 |
Provedeni domu |
Bungalov, prosklený dům, venkovský dům, moderní dům |
Dispozice |
3+kk |
Kategorie domů |
Dřevěná |
Typ střechy |
Sedlová |
Půdorys |
Do písmene L |
Pozemek domu |
Rovinatý |
Ateliér / architekt |
LUCERN dřevostavby |
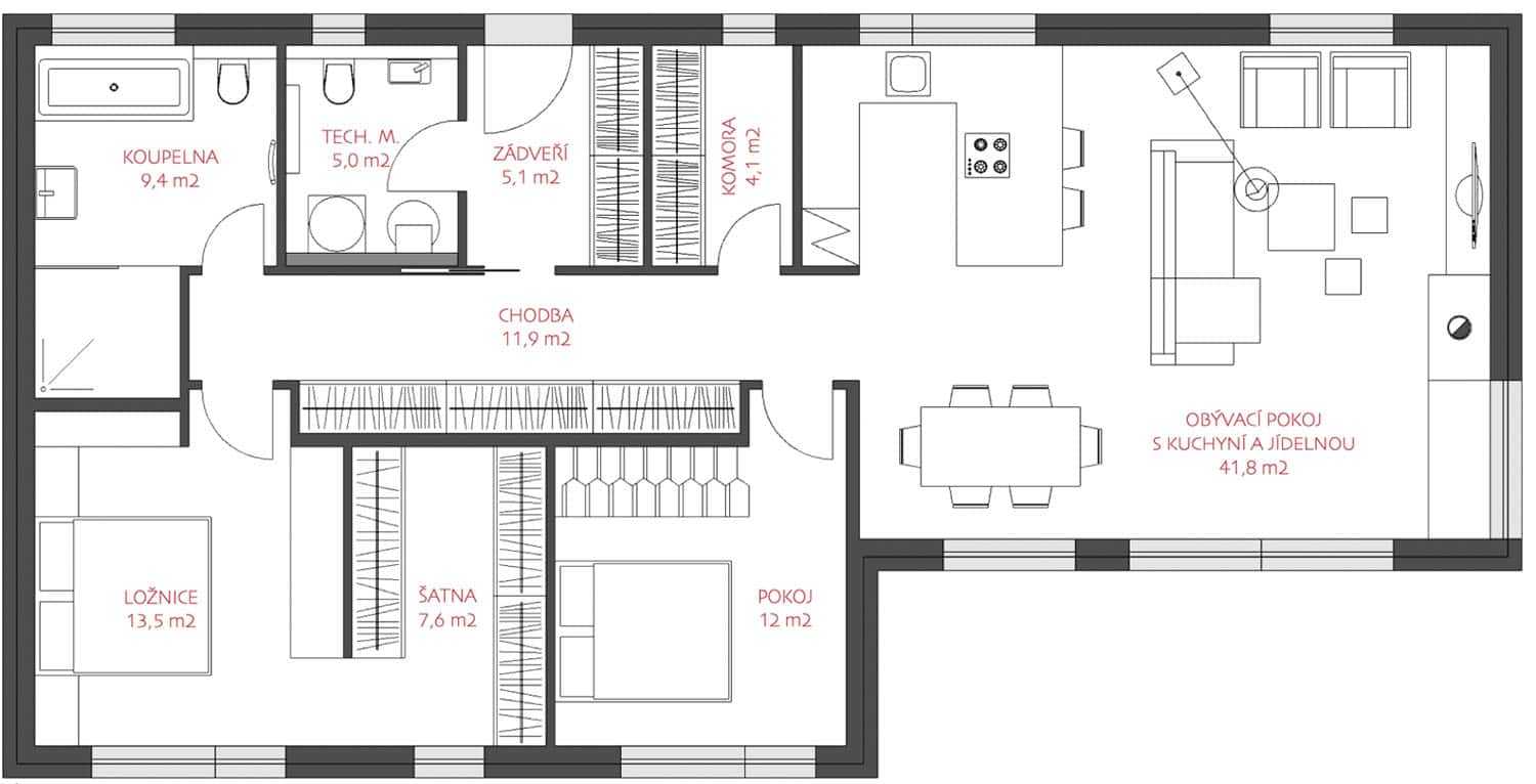
Řešení vychází z typového domu LUCERN 118, ale bylo uzpůsobeno přáním a potřebám klientů. Dům o velikosti 110,4 m2 užitné plochy o dispozici 3 + kk má zajímavě kombinovanou fasádu z šedé omítky a dřevěného obkladu ze sibiřského modřínu. Dispozice je spojena ze dvou částí – obytné a klidové. Obytnou část tvoří velký a světlý společný obývací prostor s kuchyňským koutem a jídelnou, se spoustou oken a otevřením do krovu. Na tuto obytnou část navazuje dlouhá chodba s vestavnou skříní po celé délce. Z chodby se vchází do pokoje pro hosty a dále do ložnice, která má svou vlastní šatnu; naproti ložnici je koupelna. Nechybějí zde ani spíž a technická místnost se psí sprchou. Majitelé jsou totiž milovníci zvířat, dohromady vlastní tři kočky a jednoho psa. Kromě toho také upravili část půdy jako útočiště pro svá vnoučata.
Stavbu navrhla a dodala na klíč společnost LUCERN dřevostavby. Jejího jednatele pana Lukáše Černíka jsme se zeptali:
Co vás vedlo k rozhodnutí stavět dřevěné domy?
Dřevostavby byly vždycky má srdcová záležitost, už když jsem byl před 20 lety na Novém Zélandu na brigádě a viděl jsem, s jakou láskou tam ty domy staví. Samozřejmě je to i krásná čistá práce u nás v České republice, takže pro mě to byla jasná volba, a v dřevostavbě samozřejmě bydlím.
Zájemci, kteří k vám přicházejí, chtějí primárně opravdu dřevostavbu?
Ano. Ne úplně ze 100 %, ale drtivá většina už opravdu za námi přichází jako za určitou značkou, zájemci vědí, že děláme pouze dřevostavby. Vědí, v jaké kvalitě dřevostavby provádíme, takže tady už nedochází k žádnému přemlouvání nebo vysvětlování. Jsou už osvíceni.

Předpokládám, že tyto domy mají dnes parametry pro pasivní stavby, jak jsou aktuálně požadovány?
Docílit standardu pasivní stavby je v tuto dobu opravdu těžké, takže my se bavíme spíš o standardu nízkoenergetických domů v třídách A, B. Nicméně opravdu dbáme na to, aby naše domy měly tepelná čerpadla voda/vzduch s teplovodním podlahovým vytápěním. Nedílnou součástí u nás ve standardu je rekuperace, která si myslím je už absolutním standardem pro komfort.
Je pasivní standard obtížně dosažitelný kvůli velkým proskleným plochám? Nebo jsou i jiné faktory?
Prosklené plochy nám naopak pomáhají. My spíš musíme okna stínit kvůli přehřívání domu a z toho plyne nutnost předokenních žaluzií. Podle nové legislativy je opravdu nutná správná orientace na jih. Ale co s klienty, který mají krásný pozemek s krásným výhledem na sever? Do toho samozřejmě vstupují náročné požadavky na zateplení. Z mého pohledu to nepřináší tolik efektivity v úspoře, ale hodně to sahá do peněženky.

Na prvním místě v čtenářském hlasování v kategorii dřevostaveb se umístil dům LUCERN 118. Proč si myslíte, že se tak líbil?
Podle mě se líbil, protože má velice chytře navrženou dispozici. Je to dům o třech ložnicích, respektive dvou dětských pokojích, jedné ložnici a s obývacím pokojem. Já osobně teď vidím, že klienti hodně směřují k dřevěným pohledovým prvkům na fasádě, což tento dům krásně splňuje. Klienti mají také rádi sedlovou střechu. Zde má společná obývací část jiný sklon střechy než ložnice, je to krásně oddělené a přehledné. Myslím, že proto je tento typový dům tak populární, a proto asi i vyhrál tuto soutěž.
Kolik těchto domů jste zhruba postavili?
Máme v nabídce 39 typových domů, tento typový dům si objedná asi 10 klientů za rok. Takže troufám si říct, že realizací máme zhruba třicet.
To je poměrně hodně. Má tento projekt nějaký vývoj – měníte na základě zkušeností z praxe některá řešení?
Velkou výhodou je, že k nám přijde za rok kolem 300 klientů a ročně postavíme asi
80–100 domů. Se všemi zájemci jednáme, pro všechny navrhujeme studie a ty pak neustále používáme i pro další klienty, abychom jim ukázali možnosti. Například katalogový dům 118 máme řádově v desítkách variant. Na našich studiích dokážeme ukázat, jaké jsou možné změny. Nabízíme velkou variabilitu.
Dalším úspěšným účastníkem soutěže byla realizace domu v Hřebči, která vychází z dalšího typového domu. Můžete okomentovat i tento příklad?
Rozdíl mezi těmito domy je hlavně v tom, že dům s označením 118 má oddělenou obytnou část – Living Zone. Zatímco dům 116 je oblíbený u jiných klientů, kteří mají rádi žití pohromadě. To znamená, že z obytné části můžete přímo chodit do jednotlivých pokojů a celá rodina žije pohromadě v obytné části. Výhodou je, že v domě není mnoho chodeb, a proto jsme dosáhli velice výhodného poměru užitná plocha versus cena. Takže je to velice oblíbený dům u mladých lidí, kteří nechtějí chodit dále z obytné části.
Dispozice: 3 + kk
Zastavěná plocha: 132,2 m2
Užitná plocha: 110,4 m2
Technologie: tepelné čerpadlo IVT, krb včetně bojleru, podlahové vytápění REHAU
Projekt a realizace:
LUCERN dřevostavby, s. r. o., www.lucern.cz
FOTO: LUCERN DŘEVOSTAVBY
Cena od
Zastavěná plocha
Užitná plocha
Provedeni domu
Dispozice
Kategorie domů
Typ střechy
Půdorys
Pozemek domu
Ateliér / architekt
Zeptat se & odpovědět