Žijete na doraz a zdá se vám, že na odpočinek nemáte doma ani čas, ani místo? Velká chyba, zvláště v dnešní složité době. Možná vás bude inspirovat příklad rodiny z malého městečka na Šumpersku. Krásná okolní příroda i touha obohatit životní styl vedly k rozhodnutí postavit na zahradě to, co se do stávajícího domu nevešlo – samostatnou wellness zónu.

Dřevostavba, městský dům, jiná dispozice, od Miramari Design
Líbí se vám tento dům?
Profil domu
Cena od |
Zjistit cenu |
Zastavěná plocha |
120 m2 |
Užitná plocha |
90 m2 |
Provedeni domu |
Dřevostavba, městský dům |
Dispozice |
Jiná dispozice |
Kategorie domů |
Dřevěná |
Typ střechy |
Plochá |
Půdorys |
Obdélníkový |
Pozemek domu |
Rovinatý |
Ateliér / architekt |
Miramari Design |
Wellness dům stojí ve vzdálené části velkého pozemku a je orientován tak, aby nebyl rušen stávajícím obytným domem a aby byl ze všech místností krásný výhled do přírody. Majitelé domu delší dobu žili a pracovali na Dálném východě a osvojili si některé tradice této kultury, které se dají uplatnit i u nás a přinesou do života významnou přidanou hodnotu. Minimalistické pojetí, střízlivé tvary, dokonalá funkčnost a uklidňující harmonie tlumených přírodních barev a ušlechtilých materiálů napovídají, že se architektka při navrhování wellness domku touto kulturou inspirovala. Uvnitř vládne až asketická atmosféra přímo vybízející ke koncentraci do vlastního nitra, uvolnění a meditaci.

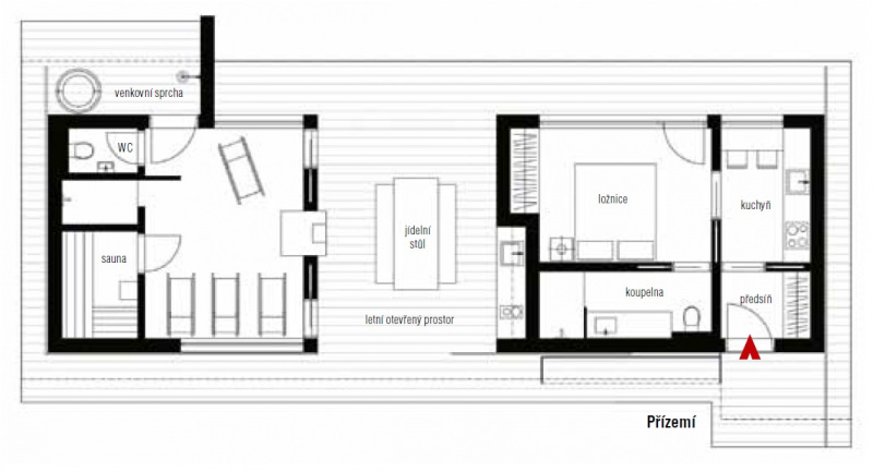
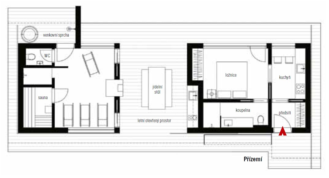
Rozdělený obdélník
Obdélníková přízemní stavba je orientována podélnou osou severojižním směrem, celý interiér příjemně vyhřívají sluneční paprsky. Tím je zajištěno využití po celý rok, za každého počasí.
Dispozice o ploše cca 90 m2 je rozdělena otevřenou průchozí částí na dvě samostatné zóny – wellness a obytnou tak, aby se vzájemně nerušily. Střední otevřená část je koncipována jako místo pro letní posezení s velkým jídelním stolem, letní kuchyní a krbem. Obytnou část tvoří garsonka se samostatným vstupem, menší kuchyní, ložnicí a koupelnou. Relaxační zóna obsahuje odpočívárnu, saunu a venkovní sprchu. Všechny místnosti jsou bezbariérově propojeny s terasou, která probíhá podél celé jižní strany domu a je zakončena dřevěnou palubou se zapuštěným bazénem.

Kombinace tradic a materiálů
Design i výběr materiálů je zcela moderní – dům má dřevěnou sendvičovou konstrukci, dřevěné panelové stropy, hliníková okna a prosklené plochy s izolačními trojskly. Interiér byl vybaven na míru podle návrhu architektů. Nábytek a dveře z tmavého dubového dřeva krásně souzní s betonovými stěrkami na podlaze a stěnách, které spojují filozofii čistoty a jednoduchosti s minimálními nároky na údržbu. Zvláštní pozornost designérka věnovala ložnici. Stěny obložené textilními panely spolu s lůžkovinami z přírodních materiálů vytvářejí dojem hřejivého, měkkého a hebkého pohlazení a také tlumí hluk.

Krytá terasa uprostřed domu je vybavena malou kuchyňskou linkou a krbem, takže se tu dá uvařit jednoduchý oběd pro rodinu u bazénu, posedět večer u krbu s pohoštěním a sklenkou vína nebo strávit příjemný čas s přáteli, aniž by návštěva kohokoliv rušila. Co víc si přát pro nerušený odpočinek?
▪ Užitná plocha: 90 m2
▪ Konstrukce: betonové základové pasy a základová deska, montovaná sloupková dřevostavba v nízkoenergetickém standardu, vnější obložení Cetris desky, plochá střecha, okna a prosklené plochy – hliníkové s izolačními trojskly
▪ Technologie: podlahové teplovodní vytápění, zdroj energie tepelné čerpadlo vzduch/voda, venkovní krb
FOTOGALERIE:
V roce 2003 založila studio Miramari Design – Prague, později se připojily Ing. arch. Jana Boušková a Nina Vydrová. Zabývají se návrhy a realizacemi interiérů, rekonstrukcí, zahrad, teras a exteriérových úprav. Důraz je kladen na pečlivé propracování a maximální individualitu návrhu v souladu s přáním klienta.
Kontakt: www.miramari.cz
Foto: Tomáš Dittrich
Cena od
Zastavěná plocha
Užitná plocha
Provedeni domu
Dispozice
Kategorie domů
Typ střechy
Půdorys
Pozemek domu
Ateliér / architekt
Zeptat se & odpovědět