Jednoduchý střih sluší venkovským stavením, která vycházejí z prastarého archetypu jasných účelných dispozic, poctivých materiálů a pevných stabilních forem. Právě takový je dlouhý přízemní dům zasazený do vesnice v úrodném Polabí. Protáhlý tvar se sedlovou střechou typický pro místní zástavbu se architektům Davidu Krausovi a Zdeňku Dohnálkovi stal nosnou inspirací a v detailu dokázali nahmátnout moderní dobu.

Bungalov, prosklený dům, moderní dům, 5+kk, od Ateliér Zdarchitektura
Líbí se vám tento dům?
Profil domu
Cena od |
Zjistit cenu |
Zastavěná plocha |
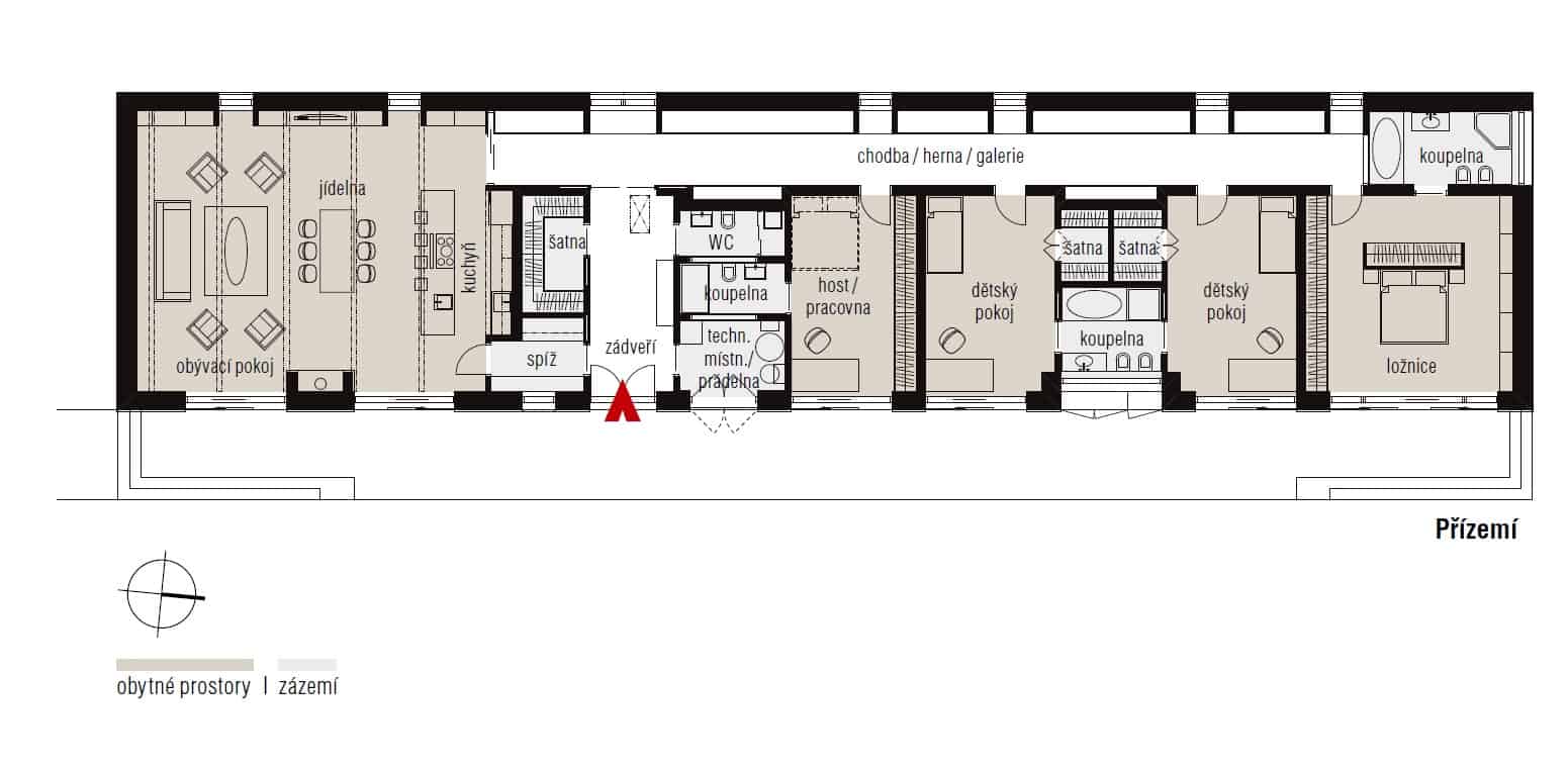
412 m2 |
Provedeni domu |
Bungalov, prosklený dům, moderní dům |
Dispozice |
5+kk |
Kategorie domů |
Zděná |
Typ střechy |
Sedlová, atypická |
Půdorys |
Obdélníkový |
Pozemek domu |
Rovinatý |
Ateliér / architekt |
Ateliér Zdarchitektura |
Původní vesnické domy jsou podle architekta Davida Krause většinou upřímné, neokázalé a pravdivé. „Upřímnost sledujeme v užití poctivých a solidních materiálů. Neokázalost je rovnováhou mezi moderním vzhledem a tradičními hodnotami. Pravdivost je pak schopností rozpoznat vnitřní uspořádání zvenku a naopak,“ popisuje.
Dočtěte tento článek jako člen klubu Můj dům.
Největší komunita majitelů rodinných domů v ČR. Připojte se i vy!
Jste členem? Přihlásit se.

Cena od
Zastavěná plocha
Provedeni domu
Dispozice
Kategorie domů
Typ střechy
Půdorys
Pozemek domu
Ateliér / architekt 







Zeptat se & odpovědět