Líbí se vám tento dům?
Objednejte si
bezplatný Katalog a zjištěte více
o domech firmy Thermo plus
Profil domu
Cena od |
od 4 500 000 Kč
Hypotéka: měsíční cena od
19 206 Kč
|
Zastavěná plocha |
118.03m2 |
Podlahová plocha |
85.65m2 |
Dispozice |
3+1 |
Počet podlaží |
Bungalov |
Typ střechy |
Sedlová |
Kategorie domů |
Zděná |
Půdorys |
Obdélníkový |
Garáž/ garážové stání |
Neuvedeno |
Dodavatel |
Thermo plus |
Popis a recenze redakce
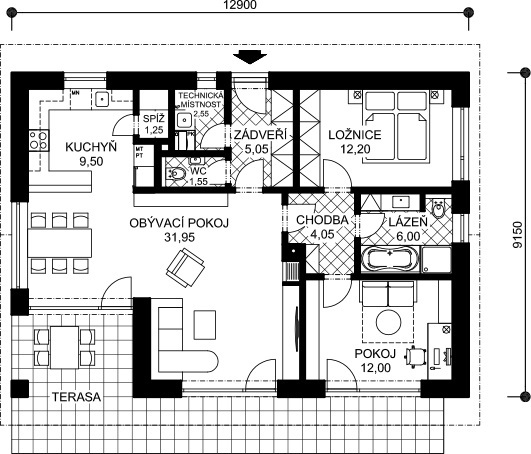
Žaneta je přízemní rodinný dům menší velikostní kategorie obdélníkového půdorysu se sedlovou střechou o sklonu 22°. Dům není podsklepen.
Ze vstupního zádveří plnícího funkci šatny je přístupná technická místnost (zdroj tepla, vzduchotechnická jednotka, pračka, sušička), WC a prostorný obývací pokoj, na který navazuje kuchyň se spíží a klidová zóna tvořená chodbou, ložnicí, pokojem a lázní. Z jídelní části obývacího pokoje je vstup na zastřešenou terasu. Rovněž z obývacího pokoje a pokoje je přístupná terasa.
Dům je možné umístit na rovinatém nebo mírně svažitém pozemku. Předpokládá se orientace hlavního hřebene domu ve směru východ-západ. Dům je vhodné orientovat na parcele tak, aby hlavní hřeben střechy domu byl rovnoběžný s osou přístupové komunikace.
Bezbariérový dům má vše, co je potřeba k pohodlnému bydlení pro dvojici. Výhodou je také bezbariérové řešení a nadčasová architektura ... se sedlovou střechou vhodná do každého prostředí. Díky promyšlené dispozici je řešení zároveň úsporné.
Klady
nadčasová architektura
bezbariérové bydlení
prostorné zádveří
promyšlená dispozice
krytá rohová terasa
pracovna - pokoj pro hosta
pohodlná rodinná koupelna
tech. místnost, spíž
Zápory
není řešena garáž
Chcete znát názor redakce?
Přečtěte si ji po přihlášení.
Aktivovat členství ZDARMAJste členem? Přihlásit se.
Objednejte si
bezplatný Katalog a zjištěte více
o domech firmy Thermo plus
Podobné domy na klíč
Bezbariérový dům lze dobře zakomponovat jak do nové, tak do starší zástavby, do města i na venkov. Přehledná dispozice pro čtyřčlennou rodinu se vyznačuje účelnou velikostí jednotlivých místností. Výhodou jsou také nízké pořizovací a provozní náklady.
Elegantní prosklená architektura s bohatě prosvětleným interiérem nabízí maximálně propojení bydlení se zahradou. Vysoký společný obývací prostor s proskleným štítem působí impozantním dojmem. Zóna rodičů je oddělena od zóny dětí, takže se navzájem neruší.
Moderní úsporný dům nabízí praktické bydlení za přijatelnou cenu. Centrem je obývací pokoj s kuchyní a prosklenou stěnou do zahrady. Rozděluje dispozici na dvě části – apartmá rodičů a zónu s dětskými pokoji a hlavním vstupem. Obě zóny mají vlastní zázemí a navzájem se neruší.
Součástí domu je opěrná zeď, tvořící základní prvek celé idey domu. Opěrná zeď, včetně dvojice sloupů, vytváří prostor pro kryté stání dvou automobilů nebo místo pro zastřešené posezení.
Z krytého stání se vchází skrze otvor opěrné zdi přes betonové schodiště do domu. Prosklené plochy hlavní obytné části umožňují krásné výhledy i přímý vstup na zahradu. Z chodby navazující na vstup je umožněn přístup do koupelny, na WC, do obývacího pokoje s kuchyňským koutem a jídelnou, dvou dětských pokojů a ložnice.
Jednopodlažní dům o dispozici 3 + kk + g je vhodným řešením pro rodiny uvažující o jednom dítěti či jako řešení bydlení na stáří. Dům má půdorys tvaru L, kdy je dispozičně dělen na společenskou a klidovou zónu.
Obytné pokoje (ložnice a pokoj) mají samostatnou koupelnu pro každý pokoj. Menší pokoj může sloužit pro jedno dítě, jako hostinský pokoj nebo jako pracovna. A velký obývací pokoj spojený s kuchyňským koutem nabídne dostatek prostoru pro celou rodinu včetně vnoučat či pravnoučat.
Dispozice domu se hodí jak pro starší klienty, pro které by byl větší obytný prostor již nadbytečný, tak pro mladou rodinu s jedním dítětem. Hlavní část domu je oddělena od garáže vstupním prostorem. Tento je však plně krytý střechou, a vytváří tak dokonalé zázemí pro vstup nejen do domu, ale i do zahrady.
Kromě hlavní části domu, kterou tvoří obývací pokoj s kuchyní a jídelním koutem, je zde umístěna prostorná ložnice s vlastní koupelnou. Druhý pokoj má k dispozici vlastní koupelnu přístupnou z chodby.
Středem domu je prostorný obývací pokoj zahrnující také kuchyňskou linkou s ostrůvkem. Díky celoprosklené stěně orientované do zahrady je obývací pokoj vizuálně propojen s venkovní terasou. Umístění dětských pokojů a ložnice symetricky na opačných stranách obývacího pokoje poskytuje soukromí všem členů rodiny. Ložnice má vlastní koupelnu přístupnou z šatny. Plochá střecha v kombinaci s dřevěným stíněním terasy propůjčuje domu moderní vzhled. Vzdušně navržené obytné místnosti a velké prosklené plochy zajišťují, že se v tomto domě budete vždy cítit skvěle.
V zádveří je navržena skříň pro ukládání kabátů a bot. Obývací pokoj s kuchyňským koutem má velké francouzské okno v blízkosti sedačky. Budete tak vždy v kontaktu s vaší zahradou. Prostorná kuchyňská linka obsahuje dostatek úložného prostoru a navíc oddělenou spíž. Z obývacího pokoje vstoupíte do ložnice, která je díky svému umístění za obývacím pokojem dokonale hlukově odstíněna od dvou dětských pokojů totožné velikosti.
Tento bungalov díky originálnímu řešení střechy vybočuje ze stereotypu a nabízí praktické a zároveň úsporné bydlení tříčlenné rodině nebo dvojici. Bude dobře vypadat ve městě i na venkově. K výhodám patří prostorné zádveří, vyvážená velikost místností, přehledná dispozice, příjemná bude jistě i krytá terasa.
Podobné domy od architektů
Moderní rodinný dům s plochou střechou se postupně zanoří do zeleně, která jej obklopuje. Stavba těží z kontrastu (a souladu) surového pohledového betonu s dřevěnými plochami. Pozemek je domem rozdělen do tří zón s odlišnou náladou. Architekt Aleš Jeřábek, autor návrhu, uvádí: „Rozlehlý pozemek, spousta prostoru, ale také žádné...
Rodina Benešova bydlela v bytě na rušné ulici. Hned, jak jim to jejich finanční situace dovolila, se rozhodli koupit stavební pozemek a postavit si vlastní rodinný dům v klidné části města. Manželé Benešovi dlouho toužili po vlastním domě. Pár let si však na něj museli počkat. Spořili si peníze nejdříve na koupi pozemku, a když našli ten správný, rozhodli se...
Domníváte se, že vlastní bydlení je pro mladé lidi čím dál nedostupnější? Příklad pana Martina svědčí o opaku. Již ve svých třiceti letech si splnil svůj sen a bydlí ve vlastním domě. K novostavbě ho přivedla touha osamostatnit se. Pan Martin bydlel u rodičů a velmi ho lákala představa vlastního bydlení. Společně s přítelkyní se rozhlédli po možnostech,...
Petra a Tomáš Kollárovi se rozhodli pro velkou životní změnu. Chtěli poskytnout sobě a svým dvěma synům více prostoru a lepší životní prostředí, než jaké měli v Hnilčíku v Košickém kraji. Rozhodli se tedy opustit městský život a přestěhovat se do klidnější oblasti města Novoveská Huta. Původně bydleli v třípokojovém bytě, ale když se rodina...
Nový majitel se rozhodl vrátit stavení poničenému různými zásahy jeho historický vzhled. Existovala ale jen jedna dobová fotografie. Architekt si s přestavbou rodinného domu ve středních Čechách poradil natolik dobře, že kromě majitelů jsou spokojeni i památkáři. Odstraněním různých po léta realizovaných amatérských pokusů vylepšit bydlení,...
Vilka v malém městě na Berounce kousek od Prahy si současné majitele získala svou polohou v příjemné prvorepublikové čtvrti a nepříliš nápadným, ale osobitým výrazem architektury třicátých let. Rekonstrukce oživila její původní půvab a obohatila ji o nové prostory a současný komfort. Zděný dům...
To, že mladá rodina hledala cestu, jak si splnit sen o vlastním domě se zahradou, není ničím výjimečným. Ale rozhodnutí pro spolupráci s designérkou, která dala budoucímu domu celkovou tvář, je zcela originální a neobvyklé. Výsledkem je útulný dům s jednoduchou architekturou přesně odpovídající jejich představám i potřebám každodenního života....
Paní Klára bydlela s manželem a jejich dvěma dětmi společněs rodiči v rodinném domě. Necítili se zde komfortně a to je přivedlo k velkému životnímu kroku – ke stavbě vlastního domu. Nejdříve uvažovali o přístavbě k rodičovskému domu. S tím však rodiče nesouhlasili. Zvažovali, zda mají v domě s rodiči zůstat, nebo dát přednost většímu...
Pracovně vytížená rodina se třemi dětmi se rozhodla zakotvit v jedné ze starších pražských čtvrtí. Zakoupili řadový dům ze sedmdesátých let minulého století, který splňoval jejich představy o velikosti a příjemné lokalitě, ale vyžadoval celkovou rekonstrukci. Obrátili se na studio No Architects, které posunulo kvalitu bydlení o několik...
Jásavý odstín okenních a dveřních rámů optimisticky září prvorepublikovému domu do nové etapy. Rodinný dům v malebném údolí na západním okraji Prahy získal po citlivé rekonstrukci novou dispozici, lepší propojení se zahradou a možnost pohodlného celoročního využití. Drobnou rekreační stavbu si rodina majitelů po čtyři generace hýčkala,...
Patrik Bauer se se svou pětičlennou rodinou rozhodli opustit malý byt v rušném centru Prahy a přesunout se do klidné obce Borek ve Středočeském kraji. Vlastní dům nebyl původně jejich snem, spíše se jednalo o výsledek životního vývoje. Proč se rozhodli stavět na klíč a jak se jim bydlí? Rozhodnutí pro výstavbu vlastního domu...
Manželé Martina a Lukáš se po návratu ze zahraničí rozhodli zůstat na Slovensku, založit si rodinu a postavit si dům. Jak se jim to podařilo? Manželé Martina i Lukáš od mala vyrůstali na venkově. Byli zvyklí na život v rodinném domě se zahradou. Část svého života strávili v zahraničí, a když se vrátili...
Poslat vzkaz
PROFIL FIRMY
Thermo plus
54101, Ostrčilova 930
Jak postavit skvělý dům
krok za krokem?
To se dozvíte zdarma v našem seriálu. Stačí se registrovat k e-mailovému odběru a získáte:
- 165dílný e-mailový seriál nabitý postupy
- Škola stavění krok za krokem
- Zařizování interiérů a relaxace doma
- Ověřené rady od odborníků
Cena od
Zastavěná plocha
Podlahová plocha
Dispozice
Počet podlaží
Typ střechy
Kategorie domů
Půdorys
Garáž/ garážové stání
Dodavatel