Tento dům soutěží v anketě Dům roku 2025. Líbí se vám? Hlasujte pro něj.
Hlasujte pro dům v anketě Dům roku 2025
Objednejte si
bezplatný Katalog a zjištěte více
o domech firmy Thermo plus
Profil domu
Cena od |
od 5 200 000 Kč
Hypotéka: měsíční cena od
22 193 Kč
|
Zastavěná plocha |
133.08m2 |
Podlahová plocha |
82.55m2 |
Dispozice |
4+1 |
Počet podlaží |
Bungalov |
Typ střechy |
Sedlová |
Kategorie domů |
Zděná |
Půdorys |
Obdélníkový |
Garáž/ garážové stání |
Garážové stání |
Dodavatel |
Thermo plus |
Popis a recenze redakce
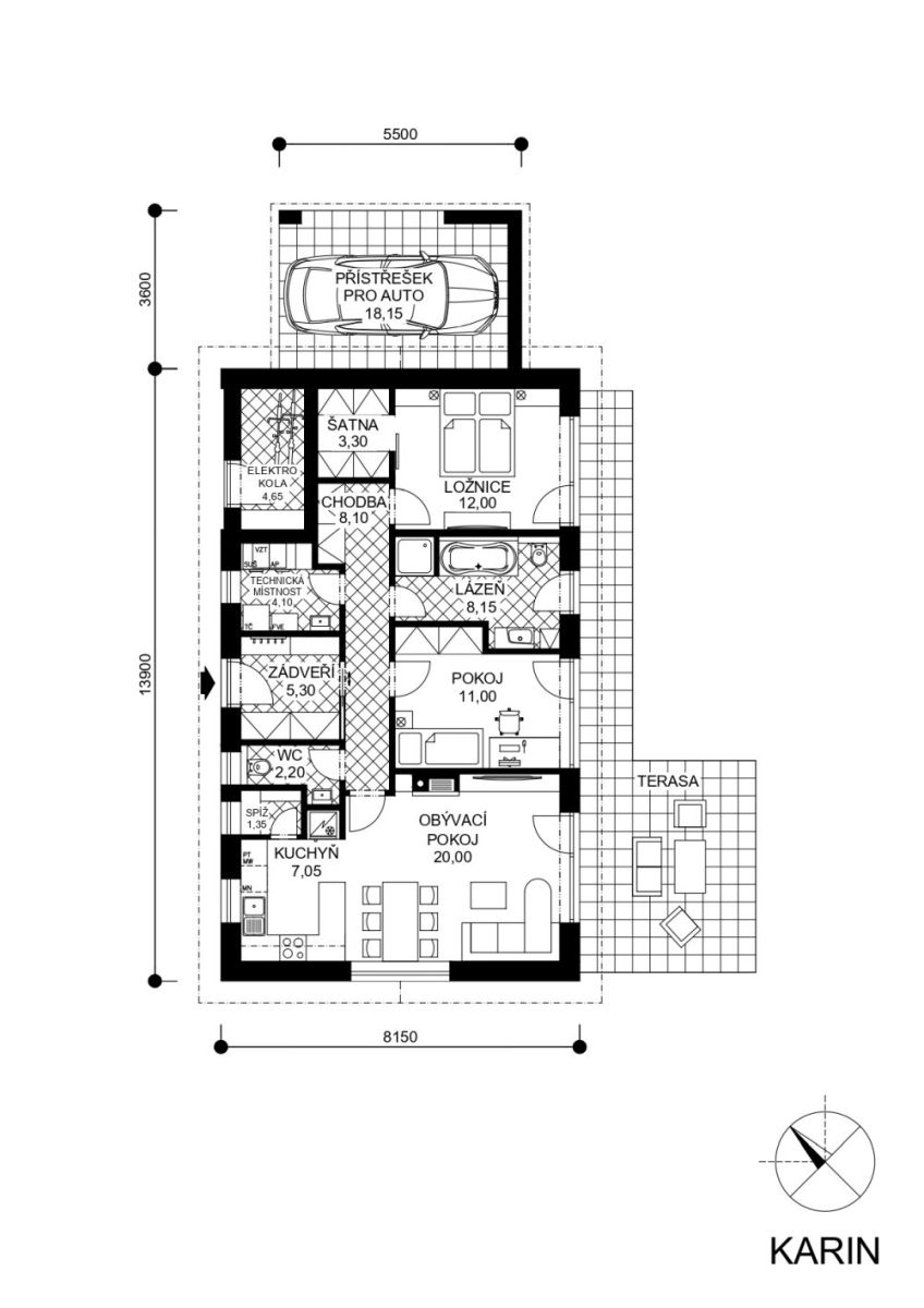
Bungalov se sedlovou střechou nabízí pohodlné bezbariérové bydlení dvojici nebo tříčlenné rodině. Je určen pro rovinatý nebo mírně svažitý pozemek s přístupen ze severu až východu, ideálně z podélné strany. Lze přistavět garáž nebo garážový přístřešek.
Jednoduchý nadčasový dům pro pohodlné bydlení, příjemná jsou francouzská okna ze všech pokojů do zahrady. Obdélníkový půdorys je účel... ně využit, nechybí šatna ani technická místnost, zajímavostí je samostatná místnost na kola přístupná z venku.
Klady
bezbariérové bydlení
vyvážená velikost místností
přímý výstup ze všech pokojů i koupelny na terasu
plnohodnotné zázemí, místnost na kola
lze přistavět přístřešek nebo garáž
Zápory
vyžaduje širší pozemek
Chcete znát názor redakce?
Přečtěte si ji po přihlášení.
Aktivovat členství ZDARMAJste členem? Přihlásit se.
Objednejte si
bezplatný Katalog a zjištěte více
o domech firmy Thermo plus
Podobné domy na klíč
Bezbariérový dům lze dobře zakomponovat jak do nové, tak do starší zástavby, do města i na venkov. Přehledná dispozice pro čtyřčlennou rodinu se vyznačuje účelnou velikostí jednotlivých místností. Výhodou jsou také nízké pořizovací a provozní náklady.
Elegantní prosklená architektura s bohatě prosvětleným interiérem nabízí maximálně propojení bydlení se zahradou. Vysoký společný obývací prostor s proskleným štítem působí impozantním dojmem. Zóna rodičů je oddělena od zóny dětí, takže se navzájem neruší.
Moderní úsporný dům nabízí praktické bydlení za přijatelnou cenu. Centrem je obývací pokoj s kuchyní a prosklenou stěnou do zahrady. Rozděluje dispozici na dvě části – apartmá rodičů a zónu s dětskými pokoji a hlavním vstupem. Obě zóny mají vlastní zázemí a navzájem se neruší.
Součástí domu je opěrná zeď, tvořící základní prvek celé idey domu. Opěrná zeď, včetně dvojice sloupů, vytváří prostor pro kryté stání dvou automobilů nebo místo pro zastřešené posezení.
Z krytého stání se vchází skrze otvor opěrné zdi přes betonové schodiště do domu. Prosklené plochy hlavní obytné části umožňují krásné výhledy i přímý vstup na zahradu. Z chodby navazující na vstup je umožněn přístup do koupelny, na WC, do obývacího pokoje s kuchyňským koutem a jídelnou, dvou dětských pokojů a ložnice.
Jednopodlažní dům o dispozici 3 + kk + g je vhodným řešením pro rodiny uvažující o jednom dítěti či jako řešení bydlení na stáří. Dům má půdorys tvaru L, kdy je dispozičně dělen na společenskou a klidovou zónu.
Obytné pokoje (ložnice a pokoj) mají samostatnou koupelnu pro každý pokoj. Menší pokoj může sloužit pro jedno dítě, jako hostinský pokoj nebo jako pracovna. A velký obývací pokoj spojený s kuchyňským koutem nabídne dostatek prostoru pro celou rodinu včetně vnoučat či pravnoučat.
Dispozice domu se hodí jak pro starší klienty, pro které by byl větší obytný prostor již nadbytečný, tak pro mladou rodinu s jedním dítětem. Hlavní část domu je oddělena od garáže vstupním prostorem. Tento je však plně krytý střechou, a vytváří tak dokonalé zázemí pro vstup nejen do domu, ale i do zahrady.
Kromě hlavní části domu, kterou tvoří obývací pokoj s kuchyní a jídelním koutem, je zde umístěna prostorná ložnice s vlastní koupelnou. Druhý pokoj má k dispozici vlastní koupelnu přístupnou z chodby.
Středem domu je prostorný obývací pokoj zahrnující také kuchyňskou linkou s ostrůvkem. Díky celoprosklené stěně orientované do zahrady je obývací pokoj vizuálně propojen s venkovní terasou. Umístění dětských pokojů a ložnice symetricky na opačných stranách obývacího pokoje poskytuje soukromí všem členů rodiny. Ložnice má vlastní koupelnu přístupnou z šatny. Plochá střecha v kombinaci s dřevěným stíněním terasy propůjčuje domu moderní vzhled. Vzdušně navržené obytné místnosti a velké prosklené plochy zajišťují, že se v tomto domě budete vždy cítit skvěle.
V zádveří je navržena skříň pro ukládání kabátů a bot. Obývací pokoj s kuchyňským koutem má velké francouzské okno v blízkosti sedačky. Budete tak vždy v kontaktu s vaší zahradou. Prostorná kuchyňská linka obsahuje dostatek úložného prostoru a navíc oddělenou spíž. Z obývacího pokoje vstoupíte do ložnice, která je díky svému umístění za obývacím pokojem dokonale hlukově odstíněna od dvou dětských pokojů totožné velikosti.
Tento bungalov díky originálnímu řešení střechy vybočuje ze stereotypu a nabízí praktické a zároveň úsporné bydlení tříčlenné rodině nebo dvojici. Bude dobře vypadat ve městě i na venkově. K výhodám patří prostorné zádveří, vyvážená velikost místností, přehledná dispozice, příjemná bude jistě i krytá terasa.
Bungalov s charakteristickou valbovou střechou je určen pro praktické a úsporné bydlení čtyřčlenné rodiny. Má přehlednou dispozici, k jeho výhodám patří krytý vstup, krytá terasa, pohodlná kuchyň. Pro rodinu se dvěma dětmi by bylo třeba více úložného prostoru.
Podobné domy od architektů
Rodina Benešova bydlela v bytě na rušné ulici. Hned, jak jim to jejich finanční situace dovolila, se rozhodli koupit stavební pozemek a postavit si vlastní rodinný dům v klidné části města. Manželé Benešovi dlouho toužili po vlastním domě. Pár let si však na něj museli počkat. Spořili si peníze nejdříve na koupi pozemku, a když našli ten správný, rozhodli se...
Domníváte se, že vlastní bydlení je pro mladé lidi čím dál nedostupnější? Příklad pana Martina svědčí o opaku. Již ve svých třiceti letech si splnil svůj sen a bydlí ve vlastním domě. K novostavbě ho přivedla touha osamostatnit se. Pan Martin bydlel u rodičů a velmi ho lákala představa vlastního bydlení. Společně s přítelkyní se rozhlédli po možnostech,...
Petra a Tomáš Kollárovi se rozhodli pro velkou životní změnu. Chtěli poskytnout sobě a svým dvěma synům více prostoru a lepší životní prostředí, než jaké měli v Hnilčíku v Košickém kraji. Rozhodli se tedy opustit městský život a přestěhovat se do klidnější oblasti města Novoveská Huta. Původně bydleli v třípokojovém bytě, ale když se rodina...
Nový majitel se rozhodl vrátit stavení poničenému různými zásahy jeho historický vzhled. Existovala ale jen jedna dobová fotografie. Architekt si s přestavbou rodinného domu ve středních Čechách poradil natolik dobře, že kromě majitelů jsou spokojeni i památkáři. Odstraněním různých po léta realizovaných amatérských pokusů vylepšit bydlení,...
Vilka v malém městě na Berounce kousek od Prahy si současné majitele získala svou polohou v příjemné prvorepublikové čtvrti a nepříliš nápadným, ale osobitým výrazem architektury třicátých let. Rekonstrukce oživila její původní půvab a obohatila ji o nové prostory a současný komfort. Zděný dům...
To, že mladá rodina hledala cestu, jak si splnit sen o vlastním domě se zahradou, není ničím výjimečným. Ale rozhodnutí pro spolupráci s designérkou, která dala budoucímu domu celkovou tvář, je zcela originální a neobvyklé. Výsledkem je útulný dům s jednoduchou architekturou přesně odpovídající jejich představám i potřebám každodenního života....
Paní Klára bydlela s manželem a jejich dvěma dětmi společněs rodiči v rodinném domě. Necítili se zde komfortně a to je přivedlo k velkému životnímu kroku – ke stavbě vlastního domu. Nejdříve uvažovali o přístavbě k rodičovskému domu. S tím však rodiče nesouhlasili. Zvažovali, zda mají v domě s rodiči zůstat, nebo dát přednost většímu...
Pracovně vytížená rodina se třemi dětmi se rozhodla zakotvit v jedné ze starších pražských čtvrtí. Zakoupili řadový dům ze sedmdesátých let minulého století, který splňoval jejich představy o velikosti a příjemné lokalitě, ale vyžadoval celkovou rekonstrukci. Obrátili se na studio No Architects, které posunulo kvalitu bydlení o několik...
Jásavý odstín okenních a dveřních rámů optimisticky září prvorepublikovému domu do nové etapy. Rodinný dům v malebném údolí na západním okraji Prahy získal po citlivé rekonstrukci novou dispozici, lepší propojení se zahradou a možnost pohodlného celoročního využití. Drobnou rekreační stavbu si rodina majitelů po čtyři generace hýčkala,...
Patrik Bauer se se svou pětičlennou rodinou rozhodli opustit malý byt v rušném centru Prahy a přesunout se do klidné obce Borek ve Středočeském kraji. Vlastní dům nebyl původně jejich snem, spíše se jednalo o výsledek životního vývoje. Proč se rozhodli stavět na klíč a jak se jim bydlí? Rozhodnutí pro výstavbu vlastního domu...
Manželé Martina a Lukáš se po návratu ze zahraničí rozhodli zůstat na Slovensku, založit si rodinu a postavit si dům. Jak se jim to podařilo? Manželé Martina i Lukáš od mala vyrůstali na venkově. Byli zvyklí na život v rodinném domě se zahradou. Část svého života strávili v zahraničí, a když se vrátili...
Pan Ladislav a jeho manželka si ve svých 44 letech uvědomili, že nastal konečně ten pravý čas postavit si vlastní dům, o kterém vždy snili. Využili svůj krásný stavební pozemek v klidném prostředí a úspory. Vzhledem k tomu, že neměli se stavbou domu žádné zkušenosti a chtěli se vyhnout zdlouhavému procesu papírování, nejlepším...
Poslat vzkaz
PROFIL FIRMY
Thermo plus
54101, Ostrčilova 930
Jak postavit skvělý dům
krok za krokem?
To se dozvíte zdarma v našem seriálu. Stačí se registrovat k e-mailovému odběru a získáte:
- 165dílný e-mailový seriál nabitý postupy
- Škola stavění krok za krokem
- Zařizování interiérů a relaxace doma
- Ověřené rady od odborníků
Cena od
Zastavěná plocha
Podlahová plocha
Dispozice
Počet podlaží
Typ střechy
Kategorie domů
Půdorys
Garáž/ garážové stání
Dodavatel