Líbí se vám tento dům?
Objednejte si
bezplatný Katalog a zjištěte více
o domech firmy HK-DŘESTAV s.r.o.
Profil domu
Cena od |
od 4 136 132 Kč
Hypotéka: měsíční cena od
17 653 Kč
|
Zastavěná plocha |
119.28m2 |
Podlahová plocha |
98.87m2 |
Dispozice |
4+kk |
Počet podlaží |
Bungalov |
Typ střechy |
Sedlová |
Kategorie domů |
Dřevěná |
Půdorys |
Obdélníkový |
Garáž/ garážové stání |
Neuvedeno |
Dodavatel |
HK-DŘESTAV s.r.o. |
Popis a recenze redakce
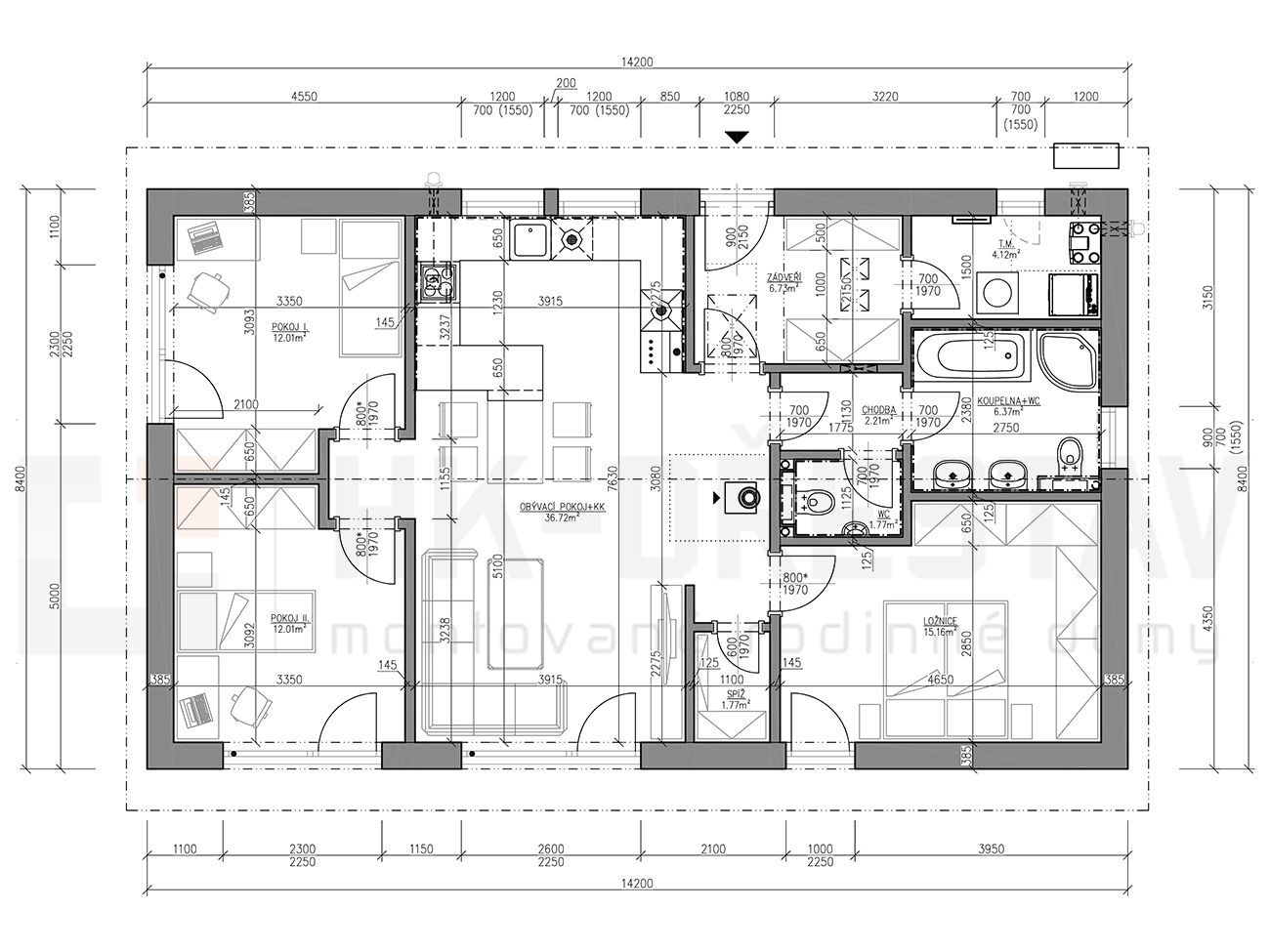
Dům tradičního tvaru s moderním designem bude dobře vypadat zejména na venkově nebo ve starší zástavbě. Nabízí pohodlné a úsporné bezba... riérové bydlení pro čtyřčlennou rodinu za výhodnou cenu. Francouzská okna umožňují přímý výstup na terasu a zahradu.
Klady
nadčasová architektura
výhodný poměr ceny a užitné plochy
bezbariérové bydlení
účelná dispozice
dobré prosvětlení interiéru
technická místnost
Zápory
dětské pokoje přístupné přes obývací pokoj
není řešena garáž
Chcete znát názor redakce?
Přečtěte si ji po přihlášení.
Aktivovat členství ZDARMAJste členem? Přihlásit se.
Objednejte si
bezplatný Katalog a zjištěte více
o domech firmy HK-DŘESTAV s.r.o.
Podobné domy na klíč
Elegantní dům poskytuje komfortní a udržitelné bydlení v harmonii s okolní krajinou. Má pohodlnou bezbariérovou dispozici pro tříčlennou rodinu, prosvětlený interiér a příjemné vyšší stropy. Citlivě kombinuje moderní design, přírodní materiály a šetrnost k životnímu prostředí.
Tento dům ukazuje, že i na menší ploše lze vytvořit pohodlné a zdravé bydlení v souladu s přírodou. Nabízí vše, co potřebují dva lidé, a zároveň dostatek prostoru pro rodinné návštěvy, provoz domácnosti je nízkonákladový. Multifunkční nábytek na míru propojuje kuchyň s obývacím pokojem, zatímco galerie poskytuje dostatek soukromí pro hosty.
Jednoduchá architektura zapadne do jakéhokoliv prostředí. Přehledná dispozice s vyváženou velikostí místností dokazuje, že dům je navržen s důrazem na praktické bydlení pro až čtyřčlennou rodinu. Přesahy střechy zabraňují přehřívání interiéru. Obytný komfort zvyšuje kryté parkování u vstupu do domu.
Jednoduchá moderní stavba se sedlovou střechou je nadčasová a dobře se hodí do přírody i do města. Velký obývací pokoj, přehledné uspořádání a dobře dimenzované zázemí jsou předpokladem pro pohodlné bydlení. I u domu podélného tvaru se podařilo vytvořit chráněnou rohovou terasu.
Jednoduché řešení reaguje na potřeby klientů: bezbariérová dispozice, velká ložnice s velkou šatnou, domácí pracovna s možností alternativního využití. V domě nejsou žádné zbytečné chodby, je po všech směrech úsporný, ale zároveň nabízí originální vzhled.
Tento dům má po celé jedné straně velká francouzská okna s přímým vstupem na terasu a následně do zahrady. Okna jsou směřována na jih a všechny pokoje v domě tak propojují dům s krásnou zahradou s koupacím jezírkem.
V domě najdete dva dětské pokoje, koupelnu, WC, kuchyňský kout spojený s obývacím pokojem a oddělený manželský blok s ložnicí, koupelnou a pracovnou. V celém interiéru dominují světlé a tlumené barvy s tmavými kontrastními prvky.
V hlavní obytné místnosti najdeme obývací prostor s kuchyňským koutem a jídelnou. Tento prostor působí velkým a světlým dojmem hlavně díky otevření půdního prostoru do krovu. Atmosféru a teplo domova dotváří i samostatně stojící krb.
Na obývací pokoj navazuje ložnice se soukromou koupelnou. Dále v domě najdeme další koupelnu, která slouží hlavně hostům, stejně jako další pokoj. Zvláštností v domě je skrytá galerie, do které se vstupuje ze zádveří přes skříň a ukrývá úložné místo v půdním prostoru.
Jednoduchý bezbariérový dům poskytne praktické bydlení za výhodnou cenu a s nízkými provozními náklady. Hodí se do městské i venkovské zástavby, má příjemnou krytou terasu a francouzská okno z pokojů přímo na zahradu. Určitou daní za úspornost je malá koupelna bez vany, navíc spojená s tech. místností.
Podobné domy od architektů
Mladá rodina se rozhodla usadit v menším městě ve slunném Polabí. Protože chtěli bydlet pohodlně, zdravě, za přijatelnou cenu a také brzy, rozhodli se pro katalogovou dřevostavbu. Vybrali si praktický a elegantní dům, který bude funkční a moderní i za dvacet let. Rovinatý pozemek v menším městě stavebníkům vyhovoval jak svou velikostí, tak polohou v klidné...
Výjimečný pozemek díky výhledům do krajiny Českého ráje měl skrytou vadu. Současní majitelé se obtížných vstupních podmínek nezalekli a projekt domu svěřili architektonickému studiu. Výsledkem je moderní unikátně založená dřevostavba. O pořízení nového bydlení rozhodly vzpomínky, úchvatné výhledy a možná i věta, že problémy...
V kraji voňavých lesů a pískových rybníků nedaleko Nymburka si rodina s dětmi před dvaceti lety postavila na svou dobu komfortní prostornou dřevostavbu. I dnes stále dobře slouží svému účelu, nicméně vybavení interiéru už zastaralo a také fasády dávaly najevo, že je čas na změnu. Dvoupodlažní dům se stanovou střechou...
Majitelé domů v památkově či jinak chráněných zónách mají někdy kvůli mnoha předpisům obavy se do modernizace svého obydlí vůbec pustit. Vzdušná přístavba k tradičnímu anglickému cihlovému domku by možná mohla posloužit jako příklad nejen pro naše stavebníky, ale i pro státní úředníky. Když se chce, jde to! Když architektka Kate...
V srdci malebné středočeské krajiny, v obci Nová Ves pod Pleší u Příbrami, se realizuje výjimečný projekt moderního a udržitelného bydlení – Bydlení Na Včelníku. Vznikne tu osm designově čistých a technologicky vyspělých dřevostaveb, které spojují elegantní architekturu s důrazem na energetickou úspornost...
Nová dřevostavba dýchá harmonií, majitelům nabízí pohodlný příjemný život a výhledy do všech světových stran. Nikdo by dnes již nehádal, že příběh bílého domu na Liberecku začal poměrně dramaticky. Mladý manželský pár, oba lékaři, začali před několika lety přemýšlet o pořízení vlastního rodinného domu. Chtěli sice zakotvit...
Stavět ve volné krajině dnes již u nás není možné, a tak se pro ty, kdo chtějí žít v přírodě, často stává východiskem výstavba na místě starých rekreačních objektů. To byl i případ manželů z Prahy, kteří si dlouho přáli uniknout z velkoměsta. Své vytoužené místo našli na trase na jižní...
Jevanské rybníky, na něž navazují rozsáhlé Voděradské bučiny, patří k nejkrásnějším kouskům přírody v blízkosti Prahy a již před sto lety se staly vyhlášenou rekreační oblastí. Rodina, která zde trvale žije, se rozhodla postavit samostatnou obytnou jednotku pro návštěvy, využitelnou po celý rok. K dispozici měli pozemek v blízkosti svého domu...
Do malé obce na Teplicku mladou rodinu přilákal klid a příroda na dosah ruky. Na severu se začíná zvedat zalesněné pásmo Krušných hor, daleko není ani koupání a městská infrastruktura. Přáli si bydlet v přírodě, ale zároveň moderně a brzy, a proto si vybrali dům od společnosti LUCERN dřevostavby. Pozemek se starým stromem a málo sousedy nabízel...
V kategorii Dřevostavby se našim čtenářům v loňském roce nejvíce líbil upravený katalogový dům z nabídky společnosti LUCERN dřevostavby, který se umístil na prvním místě. Zajímalo nás, jaké má vlastnosti a proč se těší u českých stavebníků takové oblibě. Exteriér domu včetně střešní krytiny a oken je laděn do odstínů antracitové, šedé a...
Obec na Berounce na západ od Prahy se může pochlubit krásnou polohou v kopcovité krajině, která je dnes významnou rekreační oblastí, téměř tisíciletou historií, pamětihodnostmi i moderní občanskou vybaveností. Zatím si udržuje autentický charakter klidného městečka, a proto je atraktivním místem k bydlení. Mladá rodina využila příležitost ke koupi domu na...
Senice na Hané leží v úrodných rovinách; říkávalo se, že tu na jaře vzejde i pometlo, když ho zarazíte do země. Už v 19. století obec získala silniční a železniční spojení a začala velmi vzkvétat. Má hezkou náves s barokním kostelem, ale okolní ulice připomínají spíš městečko. Některé z nich jsou poněkud zaprášené, jako by se tu zastavil čas. Jeden ze...
Poslat vzkaz
PROFIL FIRMY
HK-DŘESTAV s.r.o.
26401, Doublovičky 11
Jak postavit skvělý dům
krok za krokem?
To se dozvíte zdarma v našem seriálu. Stačí se registrovat k e-mailovému odběru a získáte:
- 165dílný e-mailový seriál nabitý postupy
- Škola stavění krok za krokem
- Zařizování interiérů a relaxace doma
- Ověřené rady od odborníků
Cena od
Zastavěná plocha
Podlahová plocha
Dispozice
Počet podlaží
Typ střechy
Kategorie domů
Půdorys
Garáž/ garážové stání
Dodavatel