Líbí se vám tento dům?
Objednejte si
bezplatný Katalog a zjištěte více
o domech firmy Thermo plus
Profil domu
Cena od |
od 3 400 000
Hypotéka: měsíční cena od
0 Kč
|
Zastavěná plocha |
95.00m2 |
Podlahová plocha |
145.00m2 |
Dispozice |
4+1 |
Počet podlaží |
Bungalov |
Typ střechy |
Sedlová |
Kategorie domů |
Zděná |
Půdorys |
Obdélníkový |
Garáž/ garážové stání |
Neuvedeno |
Dodavatel |
Thermo plus |
Popis a recenze redakce
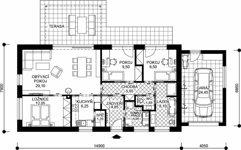
Markéta je přízemní rodinný dům se sedlovou střechou o sklonu 30°. Dům není podsklepen. Součástí
domu může být přistavěná garáž.
Ze vstupního zádveří je přístupná místnost na domácí práce (zdroj tepla, vzduchotechnická jednotka, pračka, sušička) a chodba. Obývací... pokoj se vstupem do kuchyně + spíže a ložnice je přístupný z chodby, ze které jsou dále přístupné dva pokoje, lázeň a samostatné WC. Dům je možné umístit na rovinatém nebo mírně svažitém pozemku. Předpokládá se orientace hlavního hřebene domu ve směru severozápad-jihovýchod. Dům je vhodné orientovat na parcele tak, aby hřeben střechy byl rovnoběžný s osou přístupové komunikace.
Klady
Bezbariérové řešení
Nechybí spíž u kuchyně
Praktický průchod z garáže do zahrady
Zápory
Koupelna je poměrně daleko od ložnice
Chcete znát názor redakce?
Přečtěte si ji po přihlášení.
Aktivovat členství ZDARMAJste členem? Přihlásit se.
Objednejte si
bezplatný Katalog a zjištěte více
o domech firmy Thermo plus
Podobné domy na klíč
Bezbariérový dům lze dobře zakomponovat jak do nové, tak do starší zástavby, do města i na venkov. Přehledná dispozice pro čtyřčlennou rodinu se vyznačuje účelnou velikostí jednotlivých místností. Výhodou jsou také nízké pořizovací a provozní náklady.
Elegantní prosklená architektura s bohatě prosvětleným interiérem nabízí maximálně propojení bydlení se zahradou. Vysoký společný obývací prostor s proskleným štítem působí impozantním dojmem. Zóna rodičů je oddělena od zóny dětí, takže se navzájem neruší.
Originální moderní bungalov je vhodný především do nové zástavby a poskytne nadstandardní komfort čtyřčlenné rodině. Architektura zaujme velkým prosklením, zaoblenými nárožími a velkorysým společným obývacím prostorem. Interiér se maximálně propojuje se zahradou, z každého pokoje se dá vyjít přímo ven.
Jedná se o komfortní dům pro čtyřčlennou rodinu, moderní design bude skvěle vypadat v nové zástavbě. Je pamatováno na pohodlí, dostatek prostoru, hodně světla a maximální propojení se zahradou. Toho je dosaženo díky HS portálům, které vedou z pokojů přímo na terasu s pergolou. K výhodám patří i možnost přistavět pergolu, garáž nebo kryté parkovací stání.
Dispozice je rozdělena na garáž a obytnou část, ve vnitřním rohu vznikl prostor pro velkou terasu. Dům zaujme velkorysým společným obývacím prostorem a komfortní ložnicí rodičů. Dětské pokoje jsou umístěny v oddělené zóně s vlastním zázemím, děti a rodiče se vzájemně neruší.
Bungalov s dispozicí ve tvaru písmene L se řadí mezi nejoblíbenější typy rodinných domů u nás. Oddělená denní a noční zóna s vlastním zázemím zajišťují pohodlný provoz domácnosti. K výhodám patří i rohová terasa a integrovaná garáž propojená se zádveřím.
Podobné domy od architektů
Dvoupodlažní rodinný dům s plochou střechou nahradil na pozemku na kraji Prahy starší nevyhovující objekt. Proč se jmenuje Aero? Originální novostavba je inspirována historickým letadlem. Příběh domu začal podobně jako mnoho dalších – rodina hledala vhodné místo pro stavbu nového domova. V Praze volné pozemky za přiměřenou částku ovšem nebyly,...
Rodina s dítětem školního věku našla velký pozemek v malé obci na okraji brdských lesů. Uskutečnili zde svou představu o pohodlném, praktickém a zároveň hezkém domě, který si na nic nehraje. Záleželo jim především na tom, aby se jim tu dobře žilo. Lokalitu dobře znali, líbila se jim nejen krásná příroda na dosah, ale i dobrá dostupnost na dálnici...
U architekta Jakuba Chocholy bývá zvykem, že každý nový dům vzniká s přívlastkem. Zvířata jsme zatím v názvu ale zaznamenali poprvé… Zajímavého je ale mnohem více. Pro architekta je prostředí, do které stavbu navrhuje, v mnohém určující i inspirující. Nejde jen o přírodu či okolí, ale i kulturní a sociální...
Tradiční tvar a tradiční materiály i místo samotné působí, jako by tu chalupa stála odjakživa. Dům je umístěn ve svahu hned vedle cesty tak, že zadní štít střechy má vchod do podkroví přímo z terénu. Tráva roste nad přízemím, jedná se o nenápadnou zelenou střechu. Průčelí, které se obrací do zahrady, architekti vůči...
Novostavba ve středočeské obci na východ od Prahy představuje jednu z cest, jak začlenit moderní dům do prostředí typické české vesnice. Moderní zdicí systém a inovativní technologie mu dodávají vynikající technické parametry. Pozemek v mírném severním svahu s přístupem z jihu se nachází v klidové části obce, mezi domy různého...
Rozlehlý pozemek v parku v sousedství zámeckého rybníka patřil rodině po generace, současnému majiteli však trvalo několik let, než jej získal do svého výlučného vlastnictví. Dalších pár let přemýšlel, zda se pustit do rekonstrukce staré vily, která byla v zuboženém stavu, nakonec se ale rozhodl nahradit ji moderní novostavbou a vytvořit tu nový domov nejen...
Vila na unikátním exponovaném místě na kopci spojuje dva architektonické principy: uzavřené chráněné atrium a prostory maximálně otevřené do exteriéru. Výhledy a průhledy napříč domem jak do atria, tak ven daleko do krajiny dodávají komfortnímu bydlení další rozměr. Architekti Jana a Miroslav Stachovi z ateliéru boq...
Atriově pojatá novostavba pro umělecky založený pár a dva mazané jezevčíky svou fasádou reflektuje historickou stopu budovy, která na klidném pražském předměstí stávala dříve. Svým pojetím je veskrze soudobá. Interiér se prolíná s exteriérem, současným požadavkům dům odpovídá také dispozicemi Úkolem architektky bylo navrhnout rodinný dům se...
Takto charakterizuje své nové bydlení rodina z východních Čech. Co to pro ně znamená? Pohodlnou dispozici, ale bez nevyužitých metrů čtverečních, nejmodernější technologie a nadstandardní vybavení interiéru s maximálním důrazem na jejich individuální potřeby. Design interiéru si majitelé navrhli kompletně sami a částečně i sami...
Nové čtvrti z přelomu století, nad nimiž oči přecházely, už jsou dnes za svým zenitem. Těžké střechy podivných tvarů a barev, oblé nebo hranaté rizality, někdy i balustrády. Ale každý dům měl svoji zahradu a lidé, kteří rádi opouštěli sídliště, mohli mít pocit, že tady bude jejich život lepší. Dnes už mnozí z nich...
Mnozí z nás si po letech ve městě vzpomenou na místa, která mají rádi. Důvody bývají různé – vyrůstali jsme tu jako děti, žili tam naši prarodiče, máme tam kamarády a nebo je tam prostě krásně a cítíme se tam dobře. Nejdříve jim věnujeme víkendy a dovolené, později si uvědomíme, že by bylo hezké prožít tu co nejvíce...
Dodejme, že mladé horolezce s malými dětmi. Jak tomu u architekta Jakuba Chocholy bývá, je každý jeho nový dům s přívlastkem. I v tomto případě je tedy toho zajímavějšího mnohem více. Dobřichovice jsou hezké místo, ale to nejzajímavější je, že dům stojí na pozemku kousek od Berounky, v oblasti ohrožené záplavami....
Poslat vzkaz
PROFIL FIRMY
Thermo plus
54101, Ostrčilova 930
Jak postavit skvělý dům
krok za krokem?
To se dozvíte zdarma v našem seriálu. Stačí se registrovat k e-mailovému odběru a získáte:
- 165dílný e-mailový seriál nabitý postupy
- Škola stavění krok za krokem
- Zařizování interiérů a relaxace doma
- Ověřené rady od odborníků
Cena od
Zastavěná plocha
Podlahová plocha
Dispozice
Počet podlaží
Typ střechy
Kategorie domů
Půdorys
Garáž/ garážové stání
Dodavatel