Líbí se vám tento dům?
Objednejte si
bezplatný Katalog a zjištěte více
o domech firmy HK-DŘESTAV s.r.o.
Profil domu
Cena od |
od 4 808 434 Kč
Hypotéka: měsíční cena od
20 522 Kč
|
Zastavěná plocha |
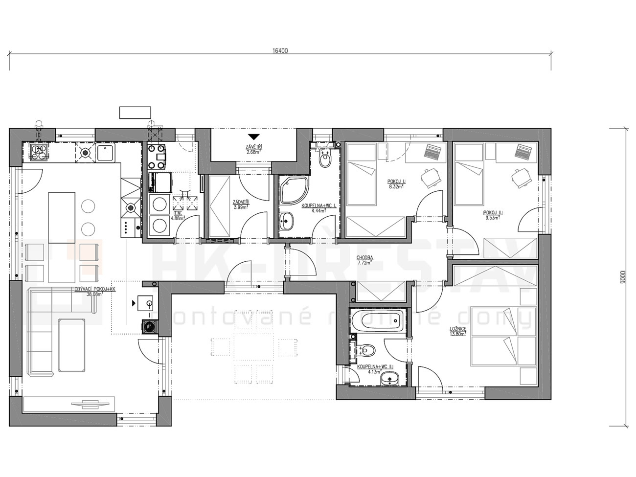
136.00m2 |
Podlahová plocha |
110.00m2 |
Dispozice |
4+kk |
Počet podlaží |
Bungalov |
Typ střechy |
Plochá |
Kategorie domů |
Dřevěná |
Půdorys |
Do písmene U |
Garáž/ garážové stání |
Garážové stání |
Dodavatel |
HK-DŘESTAV s.r.o. |
Popis a recenze redakce
Dům zaujme atraktivní moderní architekturou s velkým prosklením a krytými terasami. Poskytne pohodlné bezbariérové bydlení pro čtyřčlennou... rodinu maximálně propojené se zahradou.
Klady
zajímavá moderní architektura
pohodlné bezbariérové bydlení
oddělená denní a noční zóna
kryté parkovací stání
2 kryté terasy
2 koupelny
tech. místnost
Zápory
dům vyžaduje větší pozemek
dlouhá středová chodba
Chcete znát názor redakce?
Přečtěte si ji po přihlášení.
Aktivovat členství ZDARMAJste členem? Přihlásit se.
Objednejte si
bezplatný Katalog a zjištěte více
o domech firmy HK-DŘESTAV s.r.o.
Podobné domy na klíč
Elegantní dům poskytuje komfortní a udržitelné bydlení v harmonii s okolní krajinou. Má pohodlnou bezbariérovou dispozici pro tříčlennou rodinu, prosvětlený interiér a příjemné vyšší stropy. Citlivě kombinuje moderní design, přírodní materiály a šetrnost k životnímu prostředí.
Tento dům ukazuje, že i na menší ploše lze vytvořit pohodlné a zdravé bydlení v souladu s přírodou. Nabízí vše, co potřebují dva lidé, a zároveň dostatek prostoru pro rodinné návštěvy, provoz domácnosti je nízkonákladový. Multifunkční nábytek na míru propojuje kuchyň s obývacím pokojem, zatímco galerie poskytuje dostatek soukromí pro hosty.
Jednoduchá architektura zapadne do jakéhokoliv prostředí. Přehledná dispozice s vyváženou velikostí místností dokazuje, že dům je navržen s důrazem na praktické bydlení pro až čtyřčlennou rodinu. Přesahy střechy zabraňují přehřívání interiéru. Obytný komfort zvyšuje kryté parkování u vstupu do domu.
Jednoduchá moderní stavba se sedlovou střechou je nadčasová a dobře se hodí do přírody i do města. Velký obývací pokoj, přehledné uspořádání a dobře dimenzované zázemí jsou předpokladem pro pohodlné bydlení. I u domu podélného tvaru se podařilo vytvořit chráněnou rohovou terasu.
Jednoduché řešení reaguje na potřeby klientů: bezbariérová dispozice, velká ložnice s velkou šatnou, domácí pracovna s možností alternativního využití. V domě nejsou žádné zbytečné chodby, je po všech směrech úsporný, ale zároveň nabízí originální vzhled.
Tento dům má po celé jedné straně velká francouzská okna s přímým vstupem na terasu a následně do zahrady. Okna jsou směřována na jih a všechny pokoje v domě tak propojují dům s krásnou zahradou s koupacím jezírkem.
V domě najdete dva dětské pokoje, koupelnu, WC, kuchyňský kout spojený s obývacím pokojem a oddělený manželský blok s ložnicí, koupelnou a pracovnou. V celém interiéru dominují světlé a tlumené barvy s tmavými kontrastními prvky.
V hlavní obytné místnosti najdeme obývací prostor s kuchyňským koutem a jídelnou. Tento prostor působí velkým a světlým dojmem hlavně díky otevření půdního prostoru do krovu. Atmosféru a teplo domova dotváří i samostatně stojící krb.
Na obývací pokoj navazuje ložnice se soukromou koupelnou. Dále v domě najdeme další koupelnu, která slouží hlavně hostům, stejně jako další pokoj. Zvláštností v domě je skrytá galerie, do které se vstupuje ze zádveří přes skříň a ukrývá úložné místo v půdním prostoru.
Jednoduchý bezbariérový dům poskytne praktické bydlení za výhodnou cenu a s nízkými provozními náklady. Hodí se do městské i venkovské zástavby, má příjemnou krytou terasu a francouzská okno z pokojů přímo na zahradu. Určitou daní za úspornost je malá koupelna bez vany, navíc spojená s tech. místností.
Podobné domy od architektů
Mladá rodina se rozhodla usadit v menším městě ve slunném Polabí. Protože chtěli bydlet pohodlně, zdravě, za přijatelnou cenu a také brzy, rozhodli se pro katalogovou dřevostavbu. Vybrali si praktický a elegantní dům, který bude funkční a moderní i za dvacet let. Rovinatý pozemek v menším městě stavebníkům vyhovoval jak svou velikostí, tak polohou v klidné...
Výjimečný pozemek díky výhledům do krajiny Českého ráje měl skrytou vadu. Současní majitelé se obtížných vstupních podmínek nezalekli a projekt domu svěřili architektonickému studiu. Výsledkem je moderní unikátně založená dřevostavba. O pořízení nového bydlení rozhodly vzpomínky, úchvatné výhledy a možná i věta, že problémy...
V kraji voňavých lesů a pískových rybníků nedaleko Nymburka si rodina s dětmi před dvaceti lety postavila na svou dobu komfortní prostornou dřevostavbu. I dnes stále dobře slouží svému účelu, nicméně vybavení interiéru už zastaralo a také fasády dávaly najevo, že je čas na změnu. Dvoupodlažní dům se stanovou střechou...
Majitelé domů v památkově či jinak chráněných zónách mají někdy kvůli mnoha předpisům obavy se do modernizace svého obydlí vůbec pustit. Vzdušná přístavba k tradičnímu anglickému cihlovému domku by možná mohla posloužit jako příklad nejen pro naše stavebníky, ale i pro státní úředníky. Když se chce, jde to! Když architektka Kate...
V srdci malebné středočeské krajiny, v obci Nová Ves pod Pleší u Příbrami, se realizuje výjimečný projekt moderního a udržitelného bydlení – Bydlení Na Včelníku. Vznikne tu osm designově čistých a technologicky vyspělých dřevostaveb, které spojují elegantní architekturu s důrazem na energetickou úspornost...
Nová dřevostavba dýchá harmonií, majitelům nabízí pohodlný příjemný život a výhledy do všech světových stran. Nikdo by dnes již nehádal, že příběh bílého domu na Liberecku začal poměrně dramaticky. Mladý manželský pár, oba lékaři, začali před několika lety přemýšlet o pořízení vlastního rodinného domu. Chtěli sice zakotvit...
Stavět ve volné krajině dnes již u nás není možné, a tak se pro ty, kdo chtějí žít v přírodě, často stává východiskem výstavba na místě starých rekreačních objektů. To byl i případ manželů z Prahy, kteří si dlouho přáli uniknout z velkoměsta. Své vytoužené místo našli na trase na jižní...
Jevanské rybníky, na něž navazují rozsáhlé Voděradské bučiny, patří k nejkrásnějším kouskům přírody v blízkosti Prahy a již před sto lety se staly vyhlášenou rekreační oblastí. Rodina, která zde trvale žije, se rozhodla postavit samostatnou obytnou jednotku pro návštěvy, využitelnou po celý rok. K dispozici měli pozemek v blízkosti svého domu...
Do malé obce na Teplicku mladou rodinu přilákal klid a příroda na dosah ruky. Na severu se začíná zvedat zalesněné pásmo Krušných hor, daleko není ani koupání a městská infrastruktura. Přáli si bydlet v přírodě, ale zároveň moderně a brzy, a proto si vybrali dům od společnosti LUCERN dřevostavby. Pozemek se starým stromem a málo sousedy nabízel...
V kategorii Dřevostavby se našim čtenářům v loňském roce nejvíce líbil upravený katalogový dům z nabídky společnosti LUCERN dřevostavby, který se umístil na prvním místě. Zajímalo nás, jaké má vlastnosti a proč se těší u českých stavebníků takové oblibě. Exteriér domu včetně střešní krytiny a oken je laděn do odstínů antracitové, šedé a...
Obec na Berounce na západ od Prahy se může pochlubit krásnou polohou v kopcovité krajině, která je dnes významnou rekreační oblastí, téměř tisíciletou historií, pamětihodnostmi i moderní občanskou vybaveností. Zatím si udržuje autentický charakter klidného městečka, a proto je atraktivním místem k bydlení. Mladá rodina využila příležitost ke koupi domu na...
Senice na Hané leží v úrodných rovinách; říkávalo se, že tu na jaře vzejde i pometlo, když ho zarazíte do země. Už v 19. století obec získala silniční a železniční spojení a začala velmi vzkvétat. Má hezkou náves s barokním kostelem, ale okolní ulice připomínají spíš městečko. Některé z nich jsou poněkud zaprášené, jako by se tu zastavil čas. Jeden ze...
Poslat vzkaz
PROFIL FIRMY
HK-DŘESTAV s.r.o.
26401, Doublovičky 11
Jak postavit skvělý dům
krok za krokem?
To se dozvíte zdarma v našem seriálu. Stačí se registrovat k e-mailovému odběru a získáte:
- 165dílný e-mailový seriál nabitý postupy
- Škola stavění krok za krokem
- Zařizování interiérů a relaxace doma
- Ověřené rady od odborníků
Cena od
Zastavěná plocha
Podlahová plocha
Dispozice
Počet podlaží
Typ střechy
Kategorie domů
Půdorys
Garáž/ garážové stání
Dodavatel