Líbí se vám tento dům?
Profil domu
Cena od |
od 2 700 000
Hypotéka: měsíční cena od
0 Kč
|
Zastavěná plocha |
113.00m2 |
Podlahová plocha |
68.00m2 |
Dispozice |
3+kk |
Počet podlaží |
Bungalov |
Typ střechy |
Sedlová |
Kategorie domů |
Zděná |
Půdorys |
Obdélníkový |
Garáž/ garážové stání |
Neuvedeno |
Dodavatel |
Thermo plus |
Popis a recenze redakce
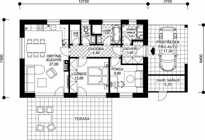
Ferda je přízemní rodinný dům obdélníkového půdorysu se sedlovou střechou o sklonu 25°. Dům není podsklepen.
Součástí domu může být přistavěný přístřešek pro auto s místností na uskladnění zahradního nářadí. Ze vstupního zádveří se vch... ází do chodby a místnosti na domácí práce (zdroj tepla, vzduchotechnická jednotka, pračka a sušička). Z chodby je přístupná lázeň, WC, spíž, pokoj, ložnice a obytná kuchyň. Z ložnice a obytné kuchyně je vstup na terasu. Dům je možné umístit na rovinatém, nebo mírně svažitém pozemku. Předpokládá se orientace hlavního hřebene domu ve směru východ-západ. Dům je vhodné orientovat na parcele tak, aby hlavní hřeben střechy domu byl rovnoběžný s osou přístupové komunikace.
Klady
Příznivá cena, dobrý poměr cena/výkon
Chytře řešená dispozice
Bezbariérové řešení
Zápory
Dům vyžaduje širší pozemek
Chcete znát názor redakce?
Přečtěte si ji po přihlášení.
Aktivovat členství ZDARMAJste členem? Přihlásit se.
Objednejte si
bezplatný Katalog a zjištěte více
o domech firmy Thermo plus
Podobné domy na klíč
Dispozice je rozdělena na garáž a obytnou část, ve vnitřním rohu vznikl prostor pro velkou terasu. Dům zaujme velkorysým společným obývacím prostorem a komfortní ložnicí rodičů. Dětské pokoje jsou umístěny v oddělené zóně s vlastním zázemím, děti a rodiče se vzájemně neruší.
Bungalov s dispozicí ve tvaru písmene L se řadí mezi nejoblíbenější typy rodinných domů u nás. Oddělená denní a noční zóna s vlastním zázemím zajišťují pohodlný provoz domácnosti. K výhodám patří i rohová terasa a integrovaná garáž propojená se zádveřím.
Moderní úsporný dům nabízí praktické bydlení za přijatelnou cenu. Centrem je obývací pokoj s kuchyní a prosklenou stěnou do zahrady. Rozděluje dispozici na dvě části – apartmá rodičů a zónu s dětskými pokoji a hlavním vstupem. Obě zóny mají vlastní zázemí a navzájem se neruší.
Ze vstupního zádveří se vchází do centrální chodby, z níž jsou přístupné všechny obytné místnosti – obývací pokoj s kuchyní, pracovna, ložnice, dva dětské pokoje a také koupelna a WC. Dům poskytuje praktické a úsporné bydlení za výhodnou cenu. Lze jej umístit na rovinatém nebo mírně svažitém pozemku. Doporučuje se orientace hlavního hřebene domu rovnoběžně s přístupovou komunikací, ve směru východ–západ.
Jedná se o pohodlné bezbariérové bydlení za výhodnou cenu pro čtyřčlennou rodinu. Účelná dispozice umožňuje vytvořit chráněnou rohovou terasu. Ze zádveří se přes chodbu vstupuje přímo do společné obývací části, která je rozdělena na kuchyň s jídelnou a obývací pokoj s výstupem na terasu. Dům je určen pro rovinatý pozemek, doporučuje se, aby hlavní hřeben střechy byl rovnoběžný s osou přístupové komunikace.
S projektem domu jim pomohl autorizovaný projektant, který jejich rukou nakreslenému půdorysu a představám vdechl „život“. Profesionální konzultace a poradenství jim poskytl i zástupce společnosti Xella. Společně dotáhli projekt do detailu, a položili tak základy pro rychlou a kvalitní výstavbu. Na kvalitu díla dohlížel jejich stavbyvedoucí, odborné věci prováděli zkušení profesionálové. Svépomocí dělali ty části, které nevyžadovaly vysokou odbornost.
Součástí domu je opěrná zeď, tvořící základní prvek celé idey domu. Opěrná zeď, včetně dvojice sloupů, vytváří prostor pro kryté stání dvou automobilů nebo místo pro zastřešené posezení.
Z krytého stání se vchází skrze otvor opěrné zdi přes betonové schodiště do domu. Prosklené plochy hlavní obytné části umožňují krásné výhledy i přímý vstup na zahradu. Z chodby navazující na vstup je umožněn přístup do koupelny, na WC, do obývacího pokoje s kuchyňským koutem a jídelnou, dvou dětských pokojů a ložnice.
Prostorná garáž s dílnou, krytá terasa směrovaná do zahrady, krytá vstupní část směrem do ulice, prostorné místnosti navržené i pro bezbariérový pohyb. Tak vypadá nový, univerzální dům, který se může hodit jak lidem s handicapem, tak pro klidné stáří.
Velkorysý prostor kromě neomezeného pohybu zásadně přispívá světlosti všech místností a tím i příjemnému vnitřnímu prostředí, které přirozeně přechází do exteriéru skrze velká francouzská okna. Ložnice domu jsou přístupné přes chodbu, která tvoří hlukový filtr od obytné části domu. K nim je přiřazena i druhá, hlavní koupelna.
Jednopodlažní dům o dispozici 3 + kk + g je vhodným řešením pro rodiny uvažující o jednom dítěti či jako řešení bydlení na stáří. Dům má půdorys tvaru L, kdy je dispozičně dělen na společenskou a klidovou zónu.
Obytné pokoje (ložnice a pokoj) mají samostatnou koupelnu pro každý pokoj. Menší pokoj může sloužit pro jedno dítě, jako hostinský pokoj nebo jako pracovna. A velký obývací pokoj spojený s kuchyňským koutem nabídne dostatek prostoru pro celou rodinu včetně vnoučat či pravnoučat.
Ze vstupního zádveří je přístupná místnost na domácí práce (zdroj tepla, vzduchotechnická jednotka, pračka, sušička) a chodba. Obývací pokoj se vstupem do kuchyně + spíže a ložnice je přístupný z chodby, ze které jsou dále přístupné dva pokoje, lázeň a samostatné WC. Dům je možné umístit na rovinatém nebo mírně svažitém pozemku. Předpokládá se orientace hlavního hřebene domu ve směru severozápad-jihovýchod. Dům je vhodné orientovat na parcele tak, aby hřeben střechy byl rovnoběžný s osou přístupové komunikace.
Podobné domy od architektů
Petra a Tomáš Kollárovi se rozhodli pro velkou životní změnu. Chtěli poskytnout sobě a svým dvěma synům více prostoru a lepší životní prostředí, než jaké měli v Hnilčíku v Košickém kraji. Rozhodli se tedy opustit městský život a přestěhovat se do klidnější oblasti města Novoveská Huta. Původně bydleli v třípokojovém bytě, ale když se rodina...
Pozemek v nové čtvrti malého severomoravského města měl dvě hlavní devizy, které se podařilo v návrhu rodinného domu skvěle zhodnotit: orientaci na jih a výhled na panoráma Beskyd s Lysou horou. Architekti z ateliéru UYO pro rodinu již jeden rodinný dům navrhovali, takže druhá zakázka svědčila o spokojenosti klientů. „To pro nás znamenalo...
Rozlehlý pozemek v parku v sousedství zámeckého rybníka patřil rodině po generace, současnému majiteli však trvalo několik let, než jej získal do svého výlučného vlastnictví. Dalších pár let přemýšlel, zda se pustit do rekonstrukce staré vily, která byla v zuboženém stavu, nakonec se ale rozhodl nahradit ji moderní novostavbou a vytvořit tu nový domov nejen...
Nový majitel se rozhodl vrátit stavení poničenému různými zásahy jeho historický vzhled. Existovala ale jen jedna dobová fotografie. Architekt si s přestavbou rodinného domu ve středních Čechách poradil natolik dobře, že kromě majitelů jsou spokojeni i památkáři. Odstraněním různých po léta realizovaných amatérských pokusů vylepšit bydlení,...
Vilka v malém městě na Berounce kousek od Prahy si současné majitele získala svou polohou v příjemné prvorepublikové čtvrti a nepříliš nápadným, ale osobitým výrazem architektury třicátých let. Rekonstrukce oživila její původní půvab a obohatila ji o nové prostory a současný komfort. Zděný dům...
To, že mladá rodina hledala cestu, jak si splnit sen o vlastním domě se zahradou, není ničím výjimečným. Ale rozhodnutí pro spolupráci s designérkou, která dala budoucímu domu celkovou tvář, je zcela originální a neobvyklé. Výsledkem je útulný dům s jednoduchou architekturou přesně odpovídající jejich představám i potřebám každodenního života....
Paní Klára bydlela s manželem a jejich dvěma dětmi společněs rodiči v rodinném domě. Necítili se zde komfortně a to je přivedlo k velkému životnímu kroku – ke stavbě vlastního domu. Nejdříve uvažovali o přístavbě k rodičovskému domu. S tím však rodiče nesouhlasili. Zvažovali, zda mají v domě s rodiči zůstat, nebo dát přednost většímu...
Vila na unikátním exponovaném místě na kopci spojuje dva architektonické principy: uzavřené chráněné atrium a prostory maximálně otevřené do exteriéru. Výhledy a průhledy napříč domem jak do atria, tak ven daleko do krajiny dodávají komfortnímu bydlení další rozměr. Architekti Jana a Miroslav Stachovi z ateliéru boq...
Atriově pojatá novostavba pro umělecky založený pár a dva mazané jezevčíky svou fasádou reflektuje historickou stopu budovy, která na klidném pražském předměstí stávala dříve. Svým pojetím je veskrze soudobá. Interiér se prolíná s exteriérem, současným požadavkům dům odpovídá také dispozicemi Úkolem architektky bylo navrhnout rodinný dům se...
Takto charakterizuje své nové bydlení rodina z východních Čech. Co to pro ně znamená? Pohodlnou dispozici, ale bez nevyužitých metrů čtverečních, nejmodernější technologie a nadstandardní vybavení interiéru s maximálním důrazem na jejich individuální potřeby. Design interiéru si majitelé navrhli kompletně sami a částečně i sami...
Pracovně vytížená rodina se třemi dětmi se rozhodla zakotvit v jedné ze starších pražských čtvrtí. Zakoupili řadový dům ze sedmdesátých let minulého století, který splňoval jejich představy o velikosti a příjemné lokalitě, ale vyžadoval celkovou rekonstrukci. Obrátili se na studio No Architects, které posunulo kvalitu bydlení o několik...
Nové čtvrti z přelomu století, nad nimiž oči přecházely, už jsou dnes za svým zenitem. Těžké střechy podivných tvarů a barev, oblé nebo hranaté rizality, někdy i balustrády. Ale každý dům měl svoji zahradu a lidé, kteří rádi opouštěli sídliště, mohli mít pocit, že tady bude jejich život lepší. Dnes už mnozí z nich...
Poslat vzkaz
PROFIL FIRMY
Thermo plus
54101, Ostrčilova 930
Jak postavit skvělý dům
krok za krokem?
To se dozvíte zdarma v našem seriálu. Stačí se registrovat k e-mailovému odběru a získáte:
- 165dílný e-mailový seriál nabitý postupy
- Škola stavění krok za krokem
- Zařizování interiérů a relaxace doma
- Ověřené rady od odborníků
Cena od
Zastavěná plocha
Podlahová plocha
Dispozice
Počet podlaží
Typ střechy
Kategorie domů
Půdorys
Garáž/ garážové stání
Dodavatel