Město Polička ve východních Čechách má to štěstí, že se zde podařilo zachovat historické jádro s částí středověkých hradeb, ale i několik pozoruhodných funkcionalistických staveb z prvorepublikové éry. Majitelé domu, který jsme navštívili, mají vztah ke kultuře a rozhodli se udržovat tradici architektonické kvality. „Líbí se nám funkcionalismus a hledali jsme architekty, kteří to umějí. Naše volba padla na brněnský ateliér Kareš -Rais,“ dozvěděli jsme se na úvod.

Luxusní dům, jiná dispozice, od Ateliér Europrojekta
Líbí se vám tento dům?
Profil domu
Cena od |
Zjistit cenu |
Zastavěná plocha |
316 m2 |
Užitná plocha |
415 m2 |
Provedeni domu |
Luxusní dům |
Dispozice |
Jiná dispozice |
Kategorie domů |
Zděná |
Typ střechy |
Plochá |
Půdorys |
Atypický |
Pozemek domu |
Svažitý |
Ateliér / architekt |
Ateliér Europrojekta |
Svažitý pozemek na konci nové městské zástavby se pyšní rozlohou pět tisíc metrů čtverečných a výhledem do krajiny téměř nenarušené civilizací. Každá mince mívá však i svůj rub – parcela, která se poměrně prudce svažuje po diagonále od přístupové komunikace směrem k jihozápadu, leží na složitém skalním podloží se zlomem mezi žulou a opukou, zakládání stavby a modelace terénu nebyly proto vůbec jednoduché.
„Umístění a návrh domu byly motivovány situací na pozemku a především snahou co nejlépe využít unikátní hodnotu daného místa – nádherné výhledy a soukromí. Čtyřčlenná rodina si přála žít pro sebe navzájem a pro svůj svět,“ vysvětluje architekt Martin Kareš.

Dům je umístěn v severní části pozemku v těsné návaznosti na příjezdovou komunikaci, do interiéru ani na zahradu však není zvenčí vůbec vidět. Na jižní straně terén stupňovitě spadá od domu k dřevěné terase s jezírkem a dál k okrasným záhonům, rekreačnímu trávníku a ohništi. Následně se realizovaly také zděný skleník a včelín a celek uzavřelo gabionové oplocení z kameniva, které bylo vykopáno při zakládání stavby.
Zahrada slouží jak k okrase a odpočinku, tak i jako užitková a je osázena výhradně rostlinami tuzemského původu. Kromě českých jablek tu uzrají i krásné jahody a maliny, voní bylinky, kvetou kopretiny, zvonky a další neprávem trochu zapomenuté krásky z českých zahrad. Automatickou zálivku zajišťuje systém napojený na vlastní studnu a podzemní nádrže na dešťovou vodu. Na pozemku jsou dva hlubinné vrty pro vytápění domu.

Přesně vyvážená dispozice
Návrh dispozice domu vznikal na základě poměrně přesných požadavků klientů a dlouhého ladění. „V duchu funkcionalistických zásad i je rozdělena na jasně definované funkční části, které spolu komunikují, ale navzájem se neruší. Pečlivě jsme balancovali do nejmenších detailů, zvažovali šířku každého průchodu, velikosti koupelen a toalet. Snažili jsme se vyhovět i přáním klientů, aby televize nebyla středobodem obývacího pokoje, aby kuchyň zůstala částečně skrytá, k jídelními stolu se pohodlně vešlo šest židlí atd. Jde o přesně vyváženou geometrii,“ pokračuje Martin Kareš a jeho slova se při procházce domem potvrzují na každém kroku.

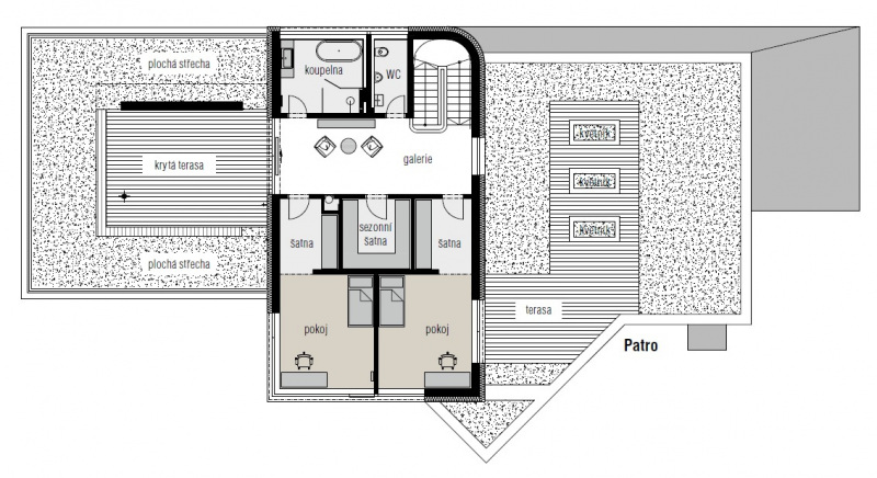
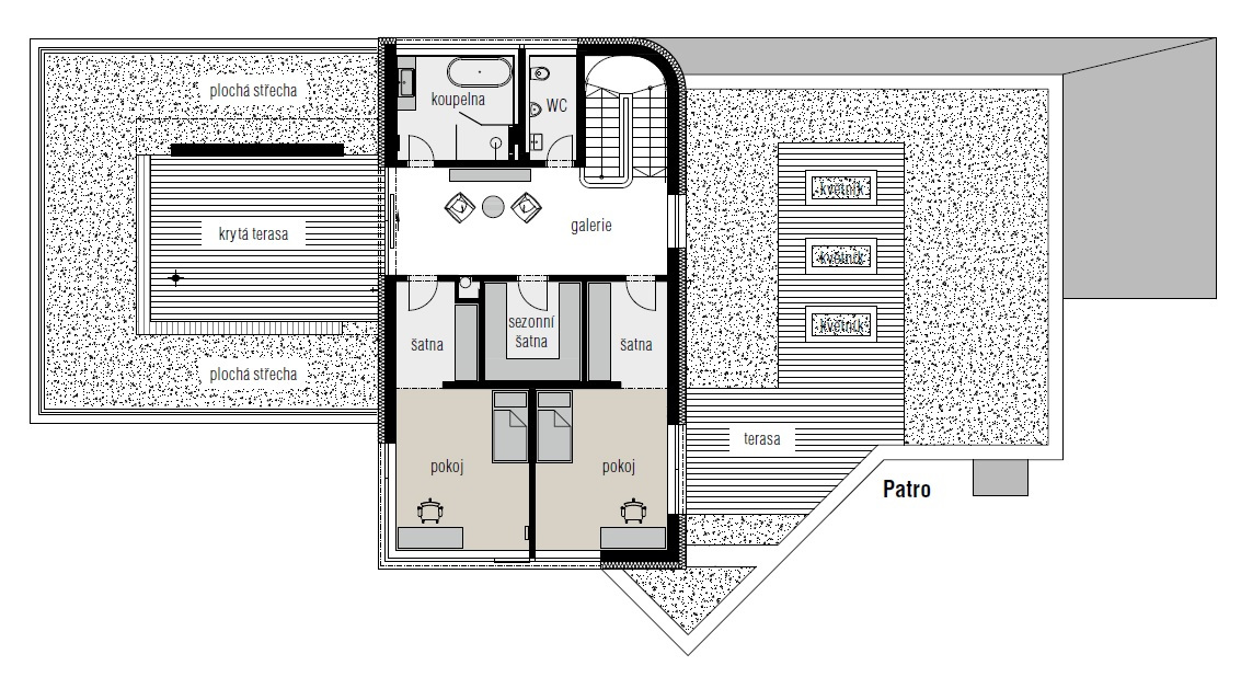
Všechny obytné místnosti jsou orientovány okny do zahrady a těší své uživatele přirozenými dimenzemi, které nejsou ani stísněné, ani zbytečně velké. V suterénu je prostor pro vinný sklep a technické zázemí. V přízemí se nachází ústřední hala se schodištěm, dvojgaráž, společná obývací část, pracovna a zóna rodičů – ložnice, šatna, koupelna a zimní zahrada pro oblíbené tropické a subtropické rostliny. Patro obývají děti, mají tu dva pokoje (každý s vlastní šatnou), komfortní koupelnu a dvě velké střešní terasy. Kdo vyjde ven a rozhlédne se, připadá si jako pán širého okolí. Velmi oblíbenou se stala prostorná hala s kruhovým oknem, které nemůže chybět v žádné stavbě s funkcionalistickým duchem. Je vybavena jako rodinná knihovna či herna.

Záměr získat z každého prostoru v domě co nejkrásnější výhled vedl k tomu, že základní obdélníková forma je „narušena“ zkoseným nárožím, vybíhajícím směrem k jihu. Spolu s výrazně přesahujícím horním podlažím, které zdánlivě volně levituje v prostoru, vytváří zajímavou dynamickou kompozici, ještě zvýrazněnou kontrastem lesklých prosklených ploch a hladké bílé fasády. Díky zkosení také sluneční paprsky pobývají ve společné obývací části po celý den – z východu přicházejí ráno do jídelny a kuchyně a postupně přecházejí k jihu a k západu do obývacího pokoje.
Skryté tajemství komfortu
„Kvalitní hotel se pozná podle toho, že personál poskytuje perfektní servis, a přitom ani nevíte, že tady je,“ pravil prý kdysi zakladatel jednoho z předních světových hotelových řetězců. Toto krédo jako by představovalo filozofii „neviditelných“ technologií a řešení, která zajišťují pohodlí celé rodiny a také nenáročný a bezúdržbový chod domácnosti. Pod dlažbami a dřevěnými podlahami je instalováno podlahové vytápění, ve stropních podhledech rozvody větrání a klimatizace. Skryté jsou LED světelné zdroje, okenní rámy a zárubně všech dveří.

Obývacímu pokoji nevládne obligátní velká černá obrazovka (je zapuštěna do nábytku), z šatny vede „tajný“ shoz prádla do prádelny apod. A co nemá být viděno, nemá být samozřejmě ani slyšeno, proto dbali majitelé domu i na zvukovou izolaci. Hluk zvenčí eliminují okna s izolačními trojskly, všechny trubky a instalace v domě byly opatřeny protihlukovou izolací a jako zvukové filtry slouží také šatny.
Moderní odkaz funkcionalismu
Geometrické tvary, hladké sněhobílé fasády, horizontální prosklení, železobetonové moniéry a přesahující stropní desky, tyčové zábradlí či kulaté okno patří k typickým znakům funkcionalistického stylu. Dům je ale vyzděn z moderních keramických tvárnic a kontaktně zateplen, kvalitní hliníková okna jsou opatřena tepelněizolačními trojskly, terasy pokrývají dřevěné rošty z exotického dřeva na podložkách. O příjemné klima se stará rekuperace, energeticky úsporné vytápění spolu s klimatizací, to vše řízeno inteligentní elektroinstalací.

Také uvnitř řada prvků odkazuje na slavné funkcionalistické vily: logické uspořádání, otevřené vzdušné prostory, kruhové prvky a ušlechtilé materiály, především leštěný travertin, sklo a unikátní dýha z cizokrajného kaštanu. Dům byl vybaven na míru nábytkem vyrobeným podle návrhu architektů a na výsledné podobě interiérů nesou významný podíl sami majitelé domu.
▪ Užitná plocha: 415 m2
▪ Konstrukce: železobetonové základové pasy a patky, zdicí systém Porotherm v kombinaci s železobetonovými stěnami a sloupy, železobetonová konzola vynášející 2. podlaží, stropy monolitické železobetonové, vnější kontaktní zateplení 180 mm, fasádní omítky Baumit Nanopor
▪ Výplně otvorů: okna hliníková Schüco s izolačními trojskly, posuvné prosklené plochy s HS a PD portály, atypické kruhové okno o průměru 180 cm, vnitřní dveře atypické otevíravé a posuvné – výroba na míru
▪ Vytápění a technologie: podlahové teplovodní vytápění, tepelné čerpadlo systém země / voda o výkonu 16 kW, 2 geotermální vrty, řízené větrání s rekuperací – rovnotlaký systém s jednotkou EHR 325 H Ahor Standard, chlazení podstropními fancoilovými jednotkami, inteligentní řízení domácnosti, automatický závlahový systém
▪ Generální dodavatel: ORAK – stavební společnost s r.o.
▪ Dodavatel interiéru: Nábytek Křivánek s. r.o.
▪ Dodavatel osvětlení: myLIGHT s.r.o.
FOTOGALERIE:
Ing. arch. Martin Kareš, MBA, PhD. (1977), Ing. arch. Robert Rais, MBA, PhD. (1977)
Absolventi Fakulty architektury VUT v Brně, dříve členové ateliéru prof. arch. Ivana Rullera, legendy brněnského funkcionalismu. V r. 2003 založili vlastní architektonický ateliér Europrojekta, zabývají se výhradně projekcí rodinných domů, zejména technologicky nadstandardních vil. V této oblasti jsou autory více než stovky realizací. Dosavadní ocenění ateliéru: cena Státního fondu rozvoje bydlení, cena Fasáda roku, Cena Dům roku 2016/2017/2018 v kategorii Individuální domy, Cena v soutěži stavba roku Zlínského kraje a Jihomoravského kraje a mnohé další. Oba architekti se věnují vědecké, akademické činnosti.
www.karesrais.cz
Foto: Lukáš Hausenblas
Cena od
Zastavěná plocha
Užitná plocha
Provedeni domu
Dispozice
Kategorie domů
Typ střechy
Půdorys
Pozemek domu
Ateliér / architekt
Zeptat se & odpovědět