Na svých reportážních návštěvách potkáváme zajímavé stavby, ale rožnovská vila Vastu nás opravdu překvapila. Svou promyšlenou koncepcí, použitými materiály i kvalitou provedení. Jedná se o stavbu, kde se potkává starověk s budoucností – dům je inspirován zásadami starověkého indického učení vastu, ale nevyhýbá se ani supermoderním technologiím, napomáhajícím zdravému a harmonickému vnitřnímu prostředí.

Prosklený dům, moderní dům, jiná dispozice, od Peter Doričko
Líbí se vám tento dům?
Profil domu
Cena od |
Zjistit cenu |
Zastavěná plocha |
292 m2 |
Užitná plocha |
408 m2 |
Provedeni domu |
Prosklený dům, moderní dům |
Dispozice |
Jiná dispozice |
Kategorie domů |
Dřevěná |
Typ střechy |
Zelená |
Půdorys |
Atypický |
Pozemek domu |
Svažitý |
Ateliér / architekt |
Peter Doričko |
Starověcí Indové byli nejen mistři metalurgie, astronomie, matematiky či lékařství, ale zanechali nám již 5000 let používané spisy o harmonii bydlení Vastu, z kterého pak vycházela podobná mladší učení, jako např. feng-šuej. Pokud vás po předchozí větě zaplavila vlna skepse, upozorňujeme, že se nejedná o žádné ezoterické blouznění, ale o velmi funkční a koncepčně propracovaný systém. V domě je ale kladen důraz i na využití těch nejmodernějších technologií a nejkvalitnějších materiálů. Vilu Vastu jako spoluautor navrhl, postavil a se svojí rodinou obývá Ing. Miroslav Kramoliš – majitel společnosti Gradient. Stavba je zároveň vzorovým domem pro případné zájemce o bydlení této kvality.
„Idea stavět dle zásad vastu zrála 10 roků, než se mi podařilo získat vhodný pozemek. Záměrem bylo v praxi, na vlastním bydlení s rodinou vyzkoušet a ověřit vliv těchto staroindických zásad na harmonii a celkový pocit z bydlení. Po třech letech života v domě lze vysledovat velmi pozitivní efekt pocitu klidu, bezpečí a pohody v prosluněném domově. Hlavní zásadou naší firmy je postavit domov, který podporuje zdraví svých obyvatel, čehož lze dosáhnout nejen použitými stavebními materiály, povrchy, zdravým vytápěním či chlazením, ale i přidanou hodnotou pocitu pohody a relaxace, který pramení z harmonie vnitřního prostoru,“ říká Miroslav Kramoliš.

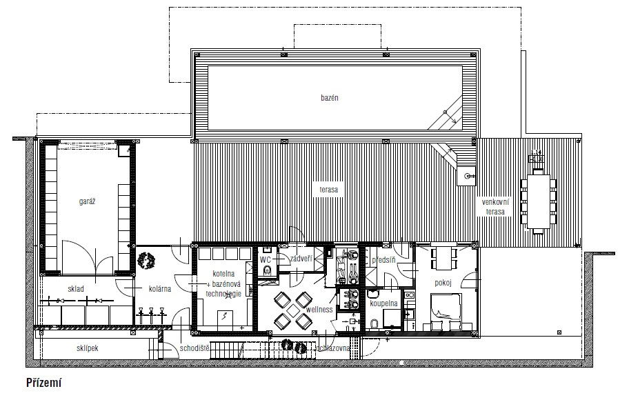
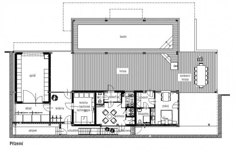
Na počátku byl pozemek
Svah vyžadoval promyšlenou dispozici a nabízel nádherné výhledy nejen na Radhošť, ale i na hřebeny Beskyd, aniž by bylo nutné stínit výhledy přes velké prosklené plochy proti jižnímu a západnímu slunci. Centrální prostor s proskleným nadsvětlíkem zajišťuje tolik potřebný celodenní přísun slunce a vitalizující energie do interiérů. Dětské pokoje jsou orientovány na jih a jsou plné jižního slunce a energie. Aby bylo možné plně využít potenciál pozemku, bylo potřeba provést ve svahu terénní úpravy, včetně opěrné stěny. Byla tak vytvořena jižní prosluněná terasa, prostor pro bydlení v jedné rovině se zelenou plochou střechou i spodní podlaží pro technické zázemí, bazén a relaxační zónu. Pro statické zajištění celodřevěné skeletové stavby byl použit systém založení na železobetonových pilotech 4 až 6 m hlubokých, které stavbu ukotvují do břidlicového podloží.
Dům je vyvěšený ve svahu, to znamená, že od příjezdové silnice působí jako bungalov s nadsvětlíkem, ale při pohledu zespodu působí velmi odlehčeně, jako by byl zavěšen v prostoru.

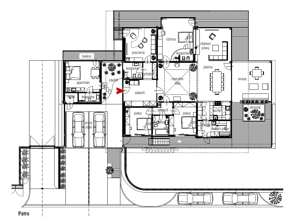
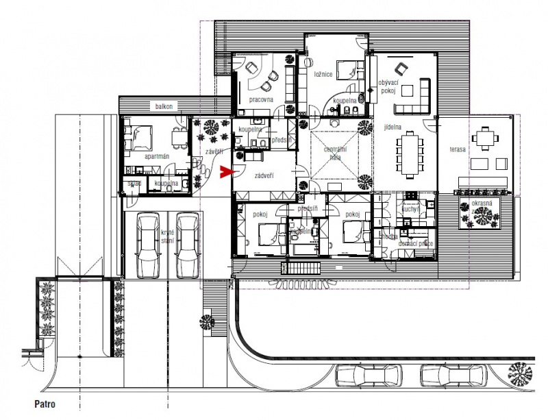
Od vchodu do předsíně
Cesta do domu vede přes otevřené parkování pro dvě auta, odkud je zároveň přístup k malému příručnímu skladu v přístavbě a ke dveřím do hostinského pokoje s velkým balkonem, kuchyňkou a sociálním zařízením. Ve vstupní partii vás přivítá pohled na bonsaj s průhledy na hřebeny Beskyd. Jako hlavní vstup do domu slouží atypické červené dveře s velkým nerezovým madlem (dají se otevírat kódem, klíčem, čipem nebo na dálku), které vedou do prostorné předsíně. Předsíň je koncipovaná tak, aby se do ní vešla i větší návštěva. Hned u vstupu je převlékací skříň skandinávského typu, což je v podstatě malá šatna s osvětlením, vytápěním a odsáváním vzduchu, kde se můžete posadit, odložit mokré boty a bundu (například po lyžování) a při odchodu si berete suché, příjemně teplé a vyvětrané věci. Mimo převlékací skříně zde najdete i další prostorné a hluboké vestavné skříně a šuplíky, od země až do stropu.

Pracovna a hlavní místnost
Z předsíně lze vejít do pracovny pána domu, kde se nachází velký stůl, velká sedačka a velkoplošná obrazovka propojená s počítačem, což umožňuje konání konferencí či jednání s klienty. Mezi vstupem a pracovnou je umístěno hlavní sociální zařízení, přístupné všem klientům i obyvatelům domu s WC, bidetem a solitérním umyvadlem, zajímavé je pásové prosklení až na zem, umožňující vidět i bonsaj u vstupu. Hlavní obývací prostor je centrální prosvětlená místnost o rozloze 26 m2, tvořící „náměstí“ domu. Zajímavou funkci zde plní 5,5 m vysoký strop vyčnívající nad plochou vegetační střechu, opatřený po obvodě nadsvětlíky. Ty umožňují celodenní přístup slunci, což je jedním z principů učení vastu.
Cílem je do centra neurologického vnitřního komunikačního prostoru přivést sluneční energii (pránu), která pak přirozeně proudí celým domem. Tento prostor je otevřený do kuchyně, jídelny i obývací části.
Kuchyň, ložnice a koupelna
Kuchyň je oddělená pultem a sousedí s malou technickou místností, která slouží jako prádelna, úklidová místnost, jako „špinavá kuchyň“, ke skladování potravin atd. Je vybavena velkou pracovní plochou osvětlenou velkým prosklením směrem do zahrady. Můžete zde i přebalovat dítě nebo žehlit. V centrální místnosti je též jídelní stůl pro osm lidí a velká sedačka s výhledem na Beskydy i na oheň v krbu.
Ložnice je od hlavní obytné místnosti oddělena dvojími protihlukovými dveřmi. Má opět velkorysé prosklení směrem na Beskydy a Radhošť.
Z hlavní obytné místnosti lze vstoupit do dětských pokojů, což je v podstatě apartmán se dvěma pokoji a koupelnou uprostřed. Tento samostatný prostor tvoří intimní zónu pro rodinné příslušníky.
Na hlavní obytnou místnost navazuje venkovní zastřešená terasa s proskleným zábradlím, orientovaná na východ.

Spodní část domu
Dům je dole ze dvou třetin otevřen a tato část je nyní ve fázi budování. Zde se nachází technické zázemí, kotelna s tepelným čerpadlem, servery, a filtrační jednotky pro bazén. K tomu přináleží kolárna a sklad zahradní techniky, který v případě velkých mrazů poslouží jako garáž pro auto. Je tu i místo pro uložení briket a topného dřeva a betonový studený sklep, kde se dají uložit jablka, brambory, zavařeniny, kysané zelí či nápoje.
Bazén a wellness zóna
Ve spodní části se nachází bazén 3 x 13 m, na který navazuje pódium s posezením a barem. Je zde také venkovní sprcha a brouzdaliště. Na plochu pódia logicky navazuje venkovní ohniště s posezením a klidové místo – tzv. bonsaj zóna. Zde má hlavní slovo speciálně vypěstovaná bonsaj. Jedna třetina tohoto podlaží je uzavřena a je zde naplánovaná finská sauna a infrasauna, velký sprchový kout, velká vana, toaleta a převlékárna. Do tohoto prostoru majitel zamýšlí vsadit ještě jeden apartmán, aby mohly návštěvy pohodlně využívat bazén a wellness zónu a aby zde měly své soukromí.
Wellness zóna není propojena s obytnou částí vnitřním schodištěm, aby se pach odpařované vody z bazénu nedostal do obytného patra. Je to vymyšleno tak, že v jednom podlaží se bydlí a pokud se chcete věnovat wellness a relaxu, sejdete po vnějším schodišti dolů. Toto pojetí odpovídá i učení vastu, které praví, že energie (prána) má tendenci klesat, tudíž by otevřeným schodištěm zbytečně odcházela z obytného patra.

Zahrada a exteriéry
Zahrada je doposud ve vývoji. „Snažíme se najít střední cestu mezi okrasnou zahradou a mezi možností zahradu udržovat. Na jižních terasách máme trávník. Protože vnuci a dospělí synové jsou fandové fotbalu, využívají trávník jako hřiště.“ Na trávník navazuje vydlážděná terasa s velkou krabicovou lavičkou a s ohništěm, kde se dá grilovat nebo posedět ve stínu. Jsou zde též prosvětlené betonové schody do sníženého podlaží, kudy se chodí do bazénu.

▪ Užitná plocha: 1. NP – 115 m2, 2. NP – 229 m2, terasa – 64 m2
▪ Konstrukce: těžký dřevěný nosný skelet z lepených profilů, ošetřený přírodním olejovým nátěrem OSMO
▪ Výplně otvorů: dřevěná euro okna a balkonové dveře s trojskly Ug = 0,7 W/m2K, pevná bezrámová zasklení vsazená přímo do dřevěné konstrukce, bezpečnostní trojsklo Ug = 0,5 W/m2K
▪ Podlahy: V ložnicích je dubová olejovaná podlaha (Princ Parket), v chodbách a pobytové zóně je velkoformátová kompozitní dlažba 1,5 x 3 m, v koupelnách je mozaika
▪ Vytápění: podlahové a stropní vytápění napojené na tepelné čerpadlo Alpha Innotec se dvěma zemními vrty 150 m
▪ Chlazení: stropní chlazení pomocí kapilár ve stropní sádrové omítce, zdroj chlazení – pasivní cirkulace ze zemních vrtů
▪ Střecha: fólie Protan pod zelenou bezúdržbovou střechou
▪ Větrání: podtlakové větrání Aereco do každé místnosti
▪ Návrh domu: Ing. Arch. Peter Doričko, Ing. Miroslav Kramoliš
▪ Kontakt: www.gradient.cz
FOTOGALERIE:
Slovo architekta
„Stavím dům pro klienta, ale snažím se stavět tak, jako bych stavěl pro sebe. Mohu zde uplatnit praktické zkušenosti, protože v takto postavených domech bydlím již 30 let. Toto je třetí dům tohoto typu, ve kterém bydlíme. Mám za sebou 52 úspěšných realizací a s klienty jsem často v kontaktu. Jinými slovy, mám perfektní zpětnou vazbu a vím, co udělat příště líp, a všechny tyto zkušenosti zapracováváme do nových realizací. Naší výhodou je, že vše děláme od A až do Ž. Nejprve si na místě nastuduji pozemek a zároveň zpracovávám formu studie, pak uděláme projekty pro stavební řízení, prováděcí dokumentaci, montážní dokumentaci pro konstrukci a ke každé stavbě vytváříme 3D model. Dřevěný těžký skelet necháváme vyrobit na CNC strojích, necháme vyrobit skla i okna. Potom přijdeme na stavbu a celou tuhle skládačku dáme dohromady. Náš systém umožňuje relativně rychlou montáž, i když se jedná o atypickou a velmi individuální stavbu. Nyní stavíme domy 5. generace a soustředíme se na kvalitu prostředí. Myslím si, že dneska už máme všechno vymyšlené, skla, statiku, povrchy. Všechno je technicky dokonalé, ale převážná část dnešních staveb pokulhává ve vytváření zdravého vnitřního prostředí. Zde vidím hluboký deficit. Většinou se to odbude rekuperací, ale nikoho nezajímá, že současné domy mají tendenci se extrémně vysoušet – 17 procent vlhkosti není žádnou výjimkou. Já osobně považuji za klíčovou věc vytvořit opravdu zdravé vnitřní prostředí. V Německu je na to celá fakulta baubiologie. Dneska všichni víme, že bychom neměli stavět z radioaktivních tvárnic a používat materiály s formaldehydem, nikdo ale neřeší elektrosmog ze silnoproudu, z mobilů a z wi -fisítí. Naši klienti požadují vypínače v ložnici, a když jdou spát, vypnou všechny elektrické obvody v místnosti. Velmi důležitá je kvalita vzduchu, protože ta nás nejvíce ovlivňuje. U vzduchu musíme kontrolovat nejen CO2, ale také vlhkost, a co se nezkoumá a moc neřeší, jsou elektrické vlastnosti vzduchu, tedy množství iontů se záporným elektrickým nábojem. Totéž platí o hluku: kročejový hluk a hluk přes zdi a dveře, to stavbařská komunita příliš neřeší, my ano. Naší přidanou hodnotou je harmonizace vnitřního prostoru pomocí učení vastu. Vy se pak v domě cítíte víc v pohodě než v jiných domech, i když jsou postavené ze stejného materiálu, mají stejná okna, ale přesto tam nemáte ten pocit klidu. Základ našeho projektu jsme tvořili ve spolupráci s architektem Peterem Doričkem z Prešova, což je největší expert ve střední Evropě na vastu architekturu,“ říká Ing. Miroslav Kramoliš.
„Vzhledem k velkému množství zakázek bych momentálně rád našel firmy, které mají zkušenosti s dřevostavbami a měly by zájem naše domy montovat,“ dodává na závěr.
Foto: Petr Adámek a J. Sobotka
Cena od
Zastavěná plocha
Užitná plocha
Provedeni domu
Dispozice
Kategorie domů
Typ střechy
Půdorys
Pozemek domu
Ateliér / architekt 
Zeptat se & odpovědět