První dojmy při návštěvě usedlosti na Vysočině byly: hezké, krásně zrekonstruované, moc pěkně zapadající do okolní přírody, jak to ostatně naši předci uměli. Prostě rustikální atmosféra k pohledání. Pak ale přišlo překvapení. Usedlost, jak ji prostě majitel i architekti nazývají, není žádný starý objekt. Vše, včetně úprav okolí, bylo postaveno „na zelené louce“.

Venkovský dům, jiná dispozice, od 3K Architects s .r. o.
Líbí se vám tento dům?
Profil domu
Cena od |
Zjistit cenu |
Zastavěná plocha |
394 m2 |
Užitná plocha |
457 m2 |
Provedeni domu |
Venkovský dům |
Dispozice |
Jiná dispozice |
Kategorie domů |
Zděná |
Typ střechy |
Sedlová |
Půdorys |
Atypický |
Pozemek domu |
Rovinatý |
Ateliér / architekt |
3K Architects s .r. o. |
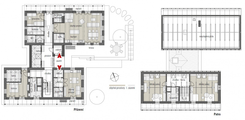
Rodinný dům s užitnou plochou 260 m2 a stodolou 197 m2 se nachází na rozlehlém pozemku v malé obci zapomenutého, ale o to malebnějšího koutu Vysočiny nedaleko Telče. „Spolu s osvíceným investorem a krásným zadáním dal vzniknout velice tradiční, rozlehlé usedlosti, která zapadá do okolní překrásné přírody. Po několika variantách v začátcích návrhu jsme dospěli s klientem k takovému uspořádání, aby tvořilo tradiční venkovskou zástavbu,“ říká Ing. arch. Roman Kučírek. Vzájemná kompozice rodinného domu a stodoly, které jsou vůči sobě postavené kolmo, vytváří polouzavřený dvůr a přirozeně vymezuje jednotlivé zóny zahrady.
Dům
Samotný dům byl vzhledem k velkým prostorovým nárokům majitelů rozdělen na dvě hmoty, aby svým měřítkem nenarušoval okolí. Spojuje je vstupní krček s dostatkem úložného prostoru. Severní křídlo domu je jednopodlažní obytné s pracovnou a zázemím domu. Má krásný výhled na nově zbudovaný rybník. Jižní křídlo je obytné s podkrovím. Obsahuje ložnici, šatnu a koupelnu a samostatný vejminek 1 + kk s vlastním vstupem. V obytném podkroví jižního křídla jsou navrženy dva prostorné dětské pokoje s koupelnou. Severní i jižní křídlo mají vytvořena tradiční zápraží pro klidný odpočinek.
Velkorysost obytné plochy je zřejmá, velmi působivé je ale její rozložení v prostoru domu umožňující soukromí pro soužití více lidí, resp. generací. Ostatně, tak se na usedlostech dříve žilo, ale vnitřní uspořádání a funkčnost odpovídají soudobým trendům na moderní bydlení.

Stodola a rybník
Stodola byla navržena zcela tradičně, jak se dříve stodoly stavěly. Je rozdělena na tři části: dvě parkovací stání, sklad zahradní techniky a sportovních potřeb a poslední částí je černá kuchyně s centrálním ohništěm, otevřená do krovu, a s přístupem po dřevěném schodišti na půdu.
Nedílnou součást koncepce tvoří nový rybník, vybudovaný pod ovocným sadem. Byl jedním z klíčových přání majitelů. Slouží pro drobný chov ryb i pro koupání obyvatel domu a má přímou návaznost na severní obytné křídlo, odkud je krásně vidět.
Přirozeně vypadající rozmístění objektů usedlosti a jejich okolí vyzařuje pohodu a harmonii, působí dojmem „odvěké“ samozřejmosti a může svádět k mylnému dojmu, že to realizačně vlastně bylo jednoduché. Takový pocit je vlastně velmi vysokou známkou pro majitele a studio 3K Architects.
O tom, jak vznikla spolupráce s pardubickým studiem 3K Architects a jaké byly původní požadavky na usedlost, jsme si povídali s majitelem domu:
- Povězte nám prosím něco o vaší rodině a vašich představách soužití?
Jsme čtyřčlenná rodina. Dva dospělí, jedna dospívající slečna a jeden malý rošťák, který nás více než zaměstnává. Rádi spolu trávíme čas v hlavním obytném prostoru s kachlovými kamny. Zároveň ale máme rádi své soukromí, když potřebujeme být sami se sebou. Proto mají děti každý svůj pokoj v podkroví, žena svoji kuchyň a já svoji pracovnu, odkud se kochám výhledem na rybník.
- Proč jste se rozhodli pro tuto usedlost na Vysočině?
Narodili jsme se nedaleko. Je tu nádherná příroda, louky, lesy, rybníky, a máme také opravdu rádi zdejší klid. Místo leží na okraji malebné vísky, kde nás nikdo neruší a máme tu skvělé výhledy do okolní krajiny.
- Měli jste již od počátku jasnou představu o tom, jak bude celková usedlost vypadat, nebo rozhodnutí o vzhledu a funkci jednotlivých objektů vznikala postupně?
Jasnou představu jsme neměli, to jsme nechali na našich architektech. Věděli jsme ale, jak dům vypadat nemá. Na začátku jsme s architekty všechna naše přání probrali. Mezi ně patřily přírodní materiály – dřevo, kámen a omítka. Dále tradiční venkovské hmoty a nový rybník, který měl být důležitou součástí.

- Proč jste oslovili zrovna ateliér 3K Architects? Jak probíhala počáteční spolupráce?
Příběh to byl, jak už to tak bývá, složitější. Měli jsme vypracovaný jeden návrh, ale s tím jsme se nedokázali sžít, nerezonoval s námi. Návrh jsme tehdy probírali s mým bratrem, který je zkušeným stavařem. Ten nám dal doporučení na ateliér 3K Architects a dal za ně ruku do ohně. Samozřejmě jsme se ošívali, protože původní návrh stál peníze i čas. Nová spolupráce byla náročná. Celý projekt trval více než rok, občas jsme se samozřejmě „handrkovali“ s architekty o financích, jak už to tak bývá, ale dnes víme, že to byly dobře investované peníze.
- Jaké nároky jste měli na budoucí funkčnost jednotlivých objektů?
Dům jsme chtěli prostorný a plný světla, rozdělený na obytnou a hospodářskou část. Srdcem obytné části je kuchyň s jídelnou a obývacím pokojem doplněným kachlovými kamny. Přáli jsme si i samostatný vejminek s vlastním vchodem například pro naše rodiče. Hospodářská část měla obsahovat prostor na dvě auta, zahradní a sportovní náčiní a černou kuchyni pro letní posezení. Důrazně jsme architektům vysvětlili, že jsme odpůrci nejrůznějších budek, boudiček a kůlniček. Naší podmínkou byly logické a funkčně propojené hmoty a to se podle našeho názoru podařilo.

- Je tu velmi krásná atmosféra a příjemné prostředí. Usedlost oplývá rozmanitostí obytných ploch. Jakým způsobem jste řešili interiéry? Zasahovali jste do nich vy s vaší paní, nebo architekti?
Interiéry jsme si rozdělili na dvě části – mé paní a moje. Moje paní si interiéry navrhovala podle sebe, do toho si od architektů nenechala mluvit. Já to udělal přesně naopak. Nechal jsem architekty, aby mi navrhli má dvě nejoblíbenější místa z usedlosti: pracovnu s výhledem na rybník a černou kuchyň ve stodole. Obojí architekti navrhli na míru přesně podle mých představ.
- Byla tu už vodní plocha, nebo vznikal rybníček celý „od začátku“?
Rybník byl od začátku klíčovým bodem návrhu a chtěli jsme ho co největší. A když přišlo na realizaci, přišel nám rybník malý, tak jsme ho nechali ještě zvětšit. S architekty jsme se přeli o velikosti rybníka v návaznosti na stodolu a zpevněné cesty, nakonec museli ustoupit tlaku nejenom nás klientů, ale i síle bagru, který nekompromisně hrabal. S výsledkem jsme ale nakonec všichni spokojeni.
- Co nejvíce oceňujete na svém domě poté, co jste se nastěhovali? Provozujete či budete tu provozovat i nějakou hospodářskou činnost?
Rozlehlá zahrada nám dává zabrat, takže o hospodářské činnosti kromě klasického zahradničení neuvažujeme. Co nejvíce oceňujeme? Že bydlíme v krásném prostředí Vysočiny v usedlosti, která nám připomíná staré tradiční venkovské a zároveň splňuje moderní požadavky. Dokonce nám již několik lidí řeklo, že se jedná o velmi povedenou rekonstrukci. To nás velice potěšilo.
- Z tohoto rozhovoru je patrné, že ten přirozený vzhled a umístění v krajině nebylo lehké stvořit. Na to jsme se zeptali i architektů Romana Kučírka a Jana Komárka. Jakým způsobem se vyvíjela počáteční spolupráce s investorem?
Cesta to byla klikatá, jak již bylo řečeno. Vyslechli jsme si pečlivě zadání a navrhli několik variant usedlosti. Klientovi hned padly do oka první dvě varianty, které jsme pak rozpracovali do výsledného návrhu a pustili se i do stavebního projektu.
- V architektuře nádherné rodinné usedlosti se nedá zapřít rustikální inspirace tradicí. Jaký byl v tomto smyslu poměr tradičního vůči modernímu?
Naštěstí jsme v tomto bodě měli jasno my i klient. Sám totiž požadoval tvarově, dispozičně i materiálově velice tradiční dům, který bude respektovat tradiční prvky obcí. Za nás to byla správná cesta, která se do malebné obce na Vysočině hodila. Tvary střech a materiály jako dřevo, kámen a omítka tomu odpovídají. Navíc mnoho lidí říká, že například objekt stodoly tam určitě stál odpradávna, ale přitom se jedná o novostavbu. Těší nás, že jsme dokázali vnést ducha starých staveb do novostavby usedlosti.

- Jak jste využili moderní stavební materiály a technologie?
V dnešní stavařině je nejsložitější zkombinovat přání klienta s požadavky na tepelnou pohodu v domě v kombinaci s technologií domu. V tomto případě jsme použili jednovrstvé keramické zdivo plněné minerální vatou s následnými omítkami. Severní křídlo je zatepleno minerální vatou nad dřevěným trámovým stropem. Jižní křídlo pokojů obsahuje moderní a výborně fungující nadkrokevní tepelnou izolaci. Dům je přirozeně větraný. Vytápění je zajištěno pomocí vzduchového tepelného čerpadla ve vnitřním provedení, které jsme šikovně schovali na půdě nad hlavním obytným prostorem. Tam nikoho neruší ani hlukem, ani svým vzhledem.
- Na pozemku je ovocný sad a rybník. Jak jste k těmto požadavkům přistupovali?
Ovocný sad byl také jedním z přání klienta hned od počátku. Ze dvou variant jsme nakonec společně vybrali umístění sadu do severní části pozemku směrem k výhledu na nedaleký les, nad nově vybudovaný rybník. Rybník byl klíčový požadavek klienta, a také územního plánu. Probíhaly velké a místy i složité debaty o jeho velikosti. Nakonec se rybník více než povedl a ovocný sad nad ním ho krásně doplňuje.
FOTOGALERIE:
▪ Zastavěná plocha: rodinný dům 275 m2, stodola 119 m2
▪ Užitná plocha: rodinný dům 260 m2, stodola 197 m2
▪ Konstrukce: zdicí systém Porotherm, obvodové zdivo Porotherm T Profi, dřevěné trámové stropy, keramobetonový strop Miako, nadkrokevní tepelná izolace Topdek PIR, pohledový dřevěný krov
▪ Autoři: Ing. arch. Roman Kučírek, Ing. arch. Jan Komárek
Ateliér 3K Architects s.r.o., www.3karchitects.cz
Foto: Jiří Ernest
Cena od
Zastavěná plocha
Užitná plocha
Provedeni domu
Dispozice
Kategorie domů
Typ střechy
Půdorys
Pozemek domu
Ateliér / architekt 

Zeptat se & odpovědět