Navštívili jsme moderní dřevostavbu navrženou v energeticky pasivním standardu s koupacím jezírkem, permakulturní zahradou a vodním biotopem, citlivě zasazenou do podhůří Jizerských hor. O kvalitách stavby svědčí i to, že obdržela tři ocenění v soutěžní přehlídce Úsporný dům roku 2019.

Dřevostavba, venkovský dům, moderní dům, 6+1, od Symbiosa – ateliér architektů
Líbí se vám tento dům?
Profil domu
Cena od |
Zjistit cenu |
Užitná plocha |
189 m2 |
Provedeni domu |
Dřevostavba, venkovský dům, moderní dům |
Dispozice |
6+1 |
Kategorie domů |
Dřevěná |
Typ střechy |
Sedlová |
Půdorys |
Obdélníkový |
Pozemek domu |
Svažitý |
Ateliér / architekt |
Symbiosa – ateliér architektů |
Dům se nestaví na pár sezon, ale na celý život. Toho si byl vědom manželský pár se dvěma menšími dětmi, když plánovali stavbu vlastního rodinného domu. Měli jasnou vizi: musí to být stavba v současném stylu, ale zároveň musí citlivě zapadnout do krajiny. Ve svých požadavcích byli nároční; kromě důrazu na kvalitu provedení požadovali otevřený a prosvětlený společný prostor, osobní zóny a propojení se zahradou. Mezi požadavky byla zahrnuta i kvalita vnitřního prostředí. Podmínkou bylo použití přírodních materiálů, vytvoření přírodní „bezúdržbové“ zahrady s vodními prvky, využití obnovitelných zdrojů energie a celková udržitelnost projektu. Po pečlivém zvážení všech možností padla jejich volba na dřevostavbu vycházející z uceleného stavebního systému DOMY ATREA.
Ani dnes, po několika letech, manželé své volby nelitují a vzpomínají na vstřícnost a profesionalitu celého týmu. A jedním dechem dodávají, že jen díky tomu mohla vzniknout kvalitní, komfortní, zdravá a ekologická stavba, která se již po krátké době užívání pro celou rodinu stala skutečným domovem.

Architektonická koncepce
Dvoupodlažní dřevostavba se nachází v řídce zastavěné části malé obce v podhůří Jizerských hor v poměrně vysoké nadmořské výšce 600 m n. m. Je umístěna v západní části pozemku a navazuje na linii stávající zástavby. Střední dominantní část domu je zastřešena sedlovou střechou se střešními okny směřujícími na východ, s výhledy na panorama Krkonoš. Na západní straně jsou instalovány fotovoltaické panely. Boční části domu jsou zastřešeny pultovými střechami, v budoucnu vegetačními. Na hlavních plochách fasády byla použita tenkovrstvá omítka v šedé barvě, doplňující plochy tvoří dřevěný fasádní obklad a terasy z modřínu bez povrchové úpravy.
Dům je doplněn samostatnou garáží umístěnou poblíž vjezdu na pozemek, venkovní saunou, dvěma sklady a dřevěnou terasou, jež bezprostředně navazuje na koupací jezírko. Je napájeno z vydatného vodního zdroje na pozemku. Vodu z jezírka odvádí potůček přes rozlehlou permakulturní zahradu do spodní části pozemku, do vodního biotopu, který zadržuje srážkovou vodu v místě, slouží jako útočiště pro vodní živočichy a má pozitivní vliv na okolní mikroklima.

Dispoziční řešení
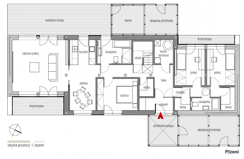
Hlavní vstup je umístěn na východní straně domu, a proti povětrnostním vlivům je chráněn praktickým přístřeškem, na který bezprostředně navazuje sklad zahradního náčiní. Hlavním vstupem se vchází do prostoru zádveří a dále do haly, ze které je přístupné dětské severní křídlo se dvěma samostatnými pokoji a východem na západní terasu, šatnami a společnou koupelnou. Z haly lze dále vstoupit do technické místnosti, ložnice a šatny rodičů i hlavní koupelny s praktickým a hojně využívaným výstupem na hlavní západní terasu.4
Ústřední obytnou část tvoří obývací pokoj s hudebním koutkem, jemuž dominuje piano a profesionální audiosestava, a kuchyňský a jídelní kout v jižním křídle domu. Interiér je opticky i provozně intenzivně propojen s venkovními terasami, koupacím jezírkem a zahradou.

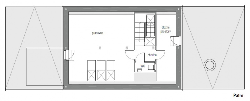
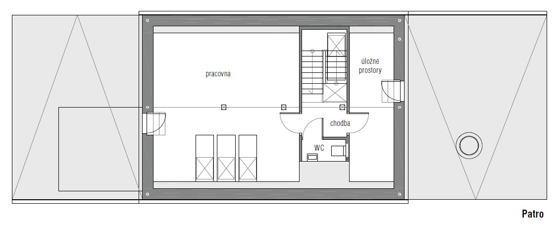
V podkroví je umístěna velká pracovna, která zároveň poskytuje dostatek prostoru pro cvičení, relaxaci a další aktivity. Podkroví, z něhož jsou přístupny také dvě velké terasy, je vybaveno další toaletou a pokojem pro hosty.
Konstrukce a materiál
Konstrukční řešení vychází z uceleného stavebního systému DOMY ATREA, optimalizovaného pro energeticky úsporné stavby. Ve značné míře jsou využity přírodní obnovitelné a recyklované materiály (dřevo, desky na bázi dřeva, celulóza apod.). Základ konstrukce obvodových stěn tvoří dřevěný skelet z konstrukčních hranolů: svislé stojky, podélné průvlaky a příčná ztužidla. Nosný skelet je vyplněn tepelnou izolací a z obou stran opláštěn. Vnitřní stranu obálky domu tvoří OSB desky, slepované na pero a drážku a přelepené těsnicí páskou, které plní funkci parobrzdy a hlavní vzduchotěsnicí vrstvy.
Na OSB desky je namontován rošt opláštěný sádrokartonovými nebo sádrovláknitými deskami. Vzniká tak instalační dutina pro vedení rozvodů. Vnější obvodový plášť je tvořen dřevovláknitými deskami tloušťky 60 mm s difuzně otevřenou tenkovrstvou omítkou v kombinaci s dřevěným obkladem z modřínu.

Technické zařízení domu
Energeticky úsporné stavební řešení doplňuje promyšlený systém technických zařízení, který zajišťuje komfortní a zdravé bydlení s nízkými provozními náklady. Větrání, vytápění a chlazení domu má na starosti vytápěcí (chladicí) a větrací jednotka s rekuperací tepla a cirkulací ATREA DUPLEX RK5. Systém řízeného větrání zajišťuje odvod škodlivin a přívod optimálního množství čerstvého vzduchu do interiéru bez průvanu a ztrát tepla. Rozvod vzduchu, tepla (chladu) po objektu zajišťují vzduchovody v podlaze a pod stropem. V obou koupelnách jsou rovněž umístěny doplňkové teplovodní žebříkové radiátory a elektrická podlahová rohož, tu však majitelé nepoužívají.
Režim a intenzita větraní jsou řízeny automaticky na základě signálů z toalet, kuchyně a především čidla CO2 umístěného v obývacím pokoji. Samozřejmostí je možnost ovládání nástěnným ovladačem v obývacím pokoji, zařízení lze ovládat i z počítače a mobilního telefonu. Řízené větraní majitelé využívají především v topné sezoně, mimo tuto sezonu větrají v obytných místnostech převážně okny. Přesto se jednotka automaticky spouští v době používaní hygienického zařízení, koupelen a kuchyně, kdy zajišťuje nucené větrání.

K ohřevu vody a k akumulaci energie slouží integrovaný zásobník tepla ATREA IZT 650 l. Pro provoz domu jsou upřednostňovány obnovitelné zdroje energie, zejména malé tepelné čerpadlo ATREA TCA 3.1 země/ voda o výkonu 3,1 kW s plošným zemním kolektorem, který lze v případě potřeby v letním období využívat také k chlazení.
Dalším zdrojem energie je fotovoltaická elektrárna o výkonu 3,12 kWp. Fotovoltaický systém je vybaven inteligentním řízením výroby a spotřeby, který primárně směřuje vyrobenou elektrickou energii na pokrytí potřeby domácnosti, přebytky se následně využívají pro ohřev vody v již zmiňované akumulační nádrži IZT. Pouze minimum přebytků elektřiny je posíláno do rozvodné sítě. Zásobník obsahuje také elektrické patrony, které v případě potřeby slouží jako záložní zdroj energie (zásobník tak může fungovat jako elektrokotel).
▪ Užitná plocha: 189 m2
▪ Měrná potřeba tepla na vytápění: 13 kWh/m2a
▪ Měrná neobnovitelná primární energie: 49 kWh/m2a (požadavek NZÚ 60)
▪ Průměrný součinitel prostupu tepla: Uem: 0,15 W/m2K
▪ Tepelná izolace: foukaná celulóza
▪ Výplně otvorů: dřevěná okna Slavona Progression s izolačním trojsklem a se skrytými vnějšími rámy
▪ Fotovoltaika: dvanáct FVE panelů, instalovaný výkon: 3 kWp
FOTOGALERIE:
Architekt: Ing. arch. Zuzana Novosadová, Symbiosa – ateliér architektů
Hlavní projektant: Zdeněk Hlavatý
Energetické řešení, projekt TZB, posudek NZÚ: Ing. Zdeněk Ročárek, Ing. Petr Kotek, Ph. D. (EnergySim, s.r.o.)
Zahrada a vodní prvky: Petr Halama
Zhotovitel: Daniel Petříček (v licenci DOMY ATREA)
Technický dozor stavebníka: Ing. Petr Marx
Foto: DOMY ATREA (K. Raimová)
Cena od
Užitná plocha
Provedeni domu
Dispozice
Kategorie domů
Typ střechy
Půdorys
Pozemek domu
Ateliér / architekt
Zeptat se & odpovědět