Rodinný dům tradiční formy obdélníkového půdorysu se sedlovou střechou je modifikovanou variantou typového domu Freestyle od architektů realizujících dřevostavby Prodesi/Domesi. „Freestylka“, jak ji architekti nazývají, je mezi klienty studia jednoznačně nejoblíbenější dřevostavbou na klíč. Oblíbenost domu zaručuje především univerzálnost a snadná modifikovatelnost základního konceptu podle individuálních požadavků klienta.

Venkovský dům, moderní dům, 4+kk, od Prodesi/Domesi
Líbí se vám tento dům?
Profil domu
Cena od |
Zjistit cenu |
Zastavěná plocha |
105 m2 |
Užitná plocha |
112,5 m2 |
Provedeni domu |
Venkovský dům, moderní dům |
Dispozice |
4+kk |
Kategorie domů |
Dřevěná |
Typ střechy |
Sedlová |
Půdorys |
Obdélníkový |
Pozemek domu |
Svažitý |
Ateliér / architekt |
Prodesi/Domesi |
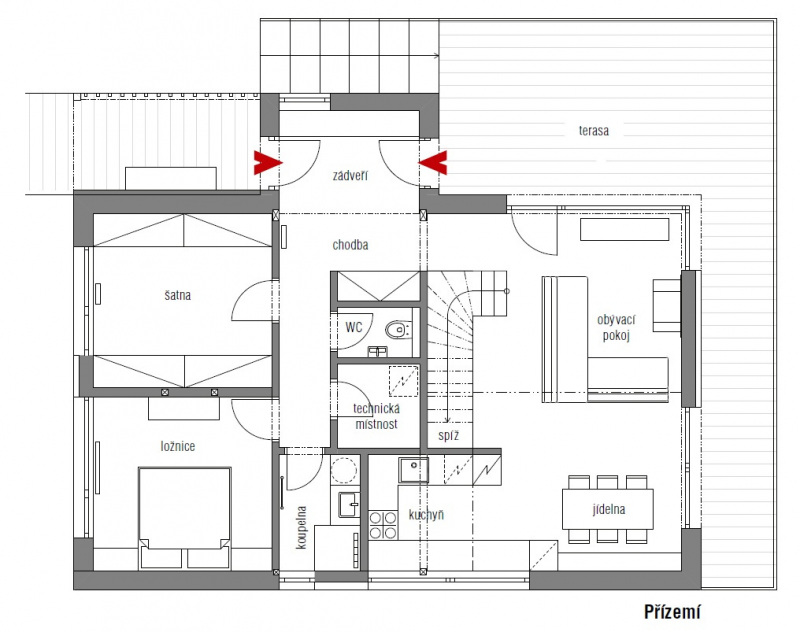
Rodinný dům v pražských Kyjích zvenčí charakterizuje jednoduchá hmota a kombinace bílých hladce omítaných ploch a dřevěného obkladu. Na přízemí domu navazuje terasa obrácená směrem do zahrady. Díky přímému vstupu z obývacího pokoje tak především v letních měsících rozšiřuje obytný prostor. Vizuální kontakt hlavního obytného prostoru s navazující zahradou umožňují i okna s velkoplošným zasklením.
Hlavní obytný prostor navrhli architekti otevřený až do krovu, takže působí vzdušně a prostorně. Ačkoliv velká okna směřující do zahrady zajišťují dostatek přirozeného denního světla, vzhledem k jejich severní orientaci bylo přáním majitelů prosvětlit obytný prostor i v rovině střechy.

Důraz na denní světlo
„V našem předchozím podkrovním bydlení jsme si oblíbili otevřený prosvětlený střešní prostor. Byli jsme tak zvyklí na poměrně nadstandardní přísun rozptýleného světla oproti klasickým místnostem. Proto jsme s požadavkem na množství světla v interiéru přišli hned v počátcích návrhu domu. Protože brzy vyplynulo, že vzhledem k možnostem pozemku bude obytná část vycházet na severní stranu, bylo jasné, že budou muset vypomoci střešní okna. Architekt Pavel Horák s týmem z Prodesi/Domesi navrhl tři velká střešní okna, která krásně prosvětlují jak samotný hlavní obytný prostor, tak galerii nad schodištěm.
Díky orientaci střechy východ –západ tak máme slunce v obytném prostoru po celý den,“ vysvětluje svůj důraz na přísun slunce majitel domu a dodává: „Je pro nás také zajímavé sledovat, jak vrchní světlo vytváří různou světelnou náladu během jednotlivých období roku, kterou si navíc můžeme ‚dotvarovat‘ pomocí polohování rolet. I teď v zimě, kdy je světla obecně nedostatek, máme náš hlavní prostor příjemně prosvětlený a je nám v něm pocitově dobře.“
„Vnitřní prostředí budovy je stejně tak důležité jako to, jak zapadá stavba do svého okolí. Pro investora je to dokonce mnohem důležitější. Vzhledem k tomu, že v budovách a konkrétně doma nyní trávíme mnohem více času, vlastnosti vnitřního prostředí mají zásadní vliv na psychiku i zdraví každého z nás. Světlo (jak to umělé, tak především přirozené) patří k základním prvkům kvality vnitřního prostředí budov. Dostatek přirozeného světla, a navíc nejen ze svislých ploch, má vliv na pohodu vnitřního prostředí a jeho obyvatel,“ doplňuje výhody dostatečně prosluněného interiéru Pavel Horák.
Vana pod hvězdami
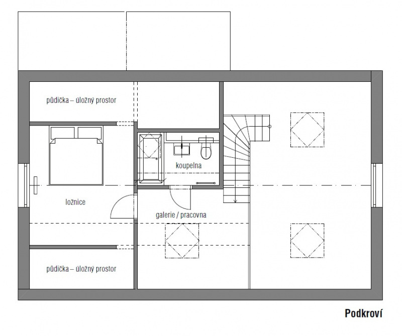
Vedle obývacího pokoje s jídelnou a kuchyňským koutem nalezneme v přízemí prostornou šatnu, ložnici, koupelnu a WC a další potřebné technické zázemí domu. Podkrovní ložnici spojuje s přízemím otevřené schodiště vedoucí z hlavního obytného prostoru. Půdičky při krajích střechy pak skrývají praktické úložné prostory. Horní koupelnu ležící v samotném středu dispozice prosvětluje střešní okno umístěné přímo nad vanou, splněný sen majitelů.
▪ Podlahová plocha: 126,5 m2
▪ Užitná plocha: 112,5 m2
▪ Dispozice: 4 + kk
▪ Konstrukční systém: Nosné obvodové stěny ze smrkových CLT panelů vyplňuje silná vrstva minerální tepelné izolace vložená mezi vazníky, směrem k vnějšímu plášti je pak krytá ještě další vrstvou dřevovláknité izolace.
▪ Střešní okna: Velux s trojsklem
▪ Dodatel: Prodesi/Domesi
FOTOGALERIE:
Foto: Radek Úlehla/Coatmen
Cena od
Zastavěná plocha
Užitná plocha
Provedeni domu
Dispozice
Kategorie domů
Typ střechy
Půdorys
Pozemek domu
Ateliér / architekt 


Zeptat se & odpovědět