Kompozice postavená na okraji malé obce pár kilometrů od slovenského města Nitra budí dojem, že se jedná o čtyři malé domky, seskupené zdánlivě chaoticky kolem terénního valu. Ve skutečnosti jsou vzájemně propojeny a centrum rodinného života zůstává skryté v páté části pod kopcovitým terénem.

Venkovský dům, moderní dům, 5+kk, od Sebastiannagy architects
Líbí se vám tento dům?
Profil domu
Cena od |
Zjistit cenu |
Zastavěná plocha |
241,5 m2 |
Užitná plocha |
237 m2 |
Provedeni domu |
Venkovský dům, moderní dům |
Dispozice |
5+kk |
Kategorie domů |
Zděná |
Typ střechy |
Sedlová |
Půdorys |
Atypický |
Pozemek domu |
Rovinatý |
Ateliér / architekt |
Sebastiannagy architects |
Základní inspiraci architekt Sebastian Nagy, autor návrhu domu, čerpal u zvýšené protipovodňové hráze říčky Radošinky, která probíhá podél hranice pozemku. Násyp s vybudovanou terasou poskytuje rodině výhled do krajiny, zemina také přirozeným způsobem chrání vnitřní prostor domu proti hluku, chladu či přehřívání. Kolem tohoto valu stojí čtyři jednoduché obdélníkové „domky“ se sedlovými střechami na způsob tradiční venkovské zástavby.
Každý z nich se trochu liší výškou hřebene a tvarem, jejich společným jmenovatelem je moderní design a použití materiálů, zejména velkoryse prosklené štíty, fasády obložené keramickým páskovým obkladem a taškami bobrovkami. Vytvářejí na pozemku jakousi malou krajinu s vlastním charakterem, která jako by byla přirozenou součástí místního prostředí.

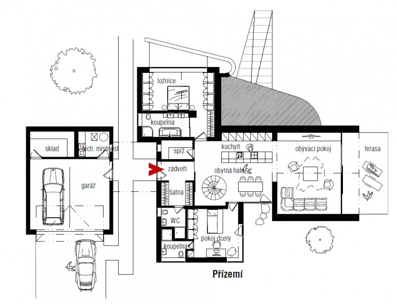
Prolínání prostorů
Koncept domu je založen na vzájemném prolínání interiéru a exteriéru a společných a soukromých zón uvnitř domu. Na severní straně se nachází samostatný objekt garáže s dílnou. Se vstupem do domu jej spojuje zastřešení, takže z auta lze projít ke vchodovým dveřím „suchou nohou“. Ostatní tři objekty jsou navzájem spojeny do půdorysu ve tvaru písmene T, v jehož středu se nachází vstupní část a „podzemní“ společná obývací hala – kuchyň, jídelna, krb a otevřené schodiště.
Na halu přímo navazuje část se sezením, orientovaná na jihovýchod, ložnice rodičů s vlastním zázemím (směrem na severovýchod) a pokoj dcery, rovněž s vlastní koupelnou a s výhledem na jihozápad. Členitost stavby umožňuje každému členu rodiny využívat svůj chráněný soukromý prostor s výhledem na zahradu, případně s vlastní terasou, a zároveň zůstat v kontaktu se společným prostorem – projít do centrální haly, obývacího pokoje, případně vyjít po schodišti do společenské místnosti nahoře a ven na střešní terasu. Orientace na tři světové strany také přivádí do interiéru dostatek přirozeného světla a slunce po celý den.
Kvalita se pozná v detailech
Funkční a originální architektonický koncept je dotažen promyšlenými konstrukčními prvky a precizně navrženým vybavením interiéru v kombinaci přírodního dřeva a hladkých bílých povrchů. Současně s domem architektonická kancelář Sebastian Nagy navrhla veškeré detaily a také nábytek na míru. Dominantou interiéru je točité bílé schodiště s jemnou linií zábradlí, které spirálovitě stoupá do horního podlaží. Místnost v podkroví nad dětským pokojem nyní slouží jako herna, v budoucnu tu možná bude pracovna či společenská místnost.
Důraz na propojení interiéru s exteriérem se projevuje i v jednotném designu a použití materiálů, ať už je to velkoformátová betonová dlažba přecházející ze společné obývací části na terasu, nebo dřevěný obklad stěn a stropu, který pokračuje venku za prosklenou stěnou. Beton, dřevo a sklo jsou základní materiály, které vytvářejí nadčasový a zároveň velmi moderní výtvarný výraz interiéru i exteriéru domu.

Nevšední architektonická kompozice spolu s vysokou kvalitou provedení dává záruku dlouholetého příjemného a komfortního bydlení.
▪ Užitná plocha: 237 m2
▪ Konstrukce: zděná stavba na betonových základech, dřevěné krovy, střešní krytina keramické tašková a titanzinkový plech
▪ Výplně otvorů: okna hliníková s izolačními trojskly, vnitřní dveře atypická výroba na míru
▪ Vytápění: teplovodní podlahové, zdroj energie plynový kotel
FOTOGALERIE:
Vystudoval architekturu v Bratislavě, ale jeho tvorbu výrazně ovlivnilo studium na Královském technickém institutu ve Stockholmu a na Berlage Institut v Rotterdamu. Úzce spolupracoval s jedním z nejvýznamnějších slovenských architektů Ivanem Matušíkem a společně dosáhli významných úspěchů, např. vítězný návrh na revitalizaci bratislavského Podhradia a bytový dům Triangolo v Nitře. Za tento projekt se Sebastian Nagy stal laureátem prestižní ceny Dušana Jurkoviče. Za projekt domu Otio získal v r. 2011 Cenu veřejnosti CE. ZA. AR a v r. 2020 se stal laureátem ceny Europe 40under40®, kterou uděluje Chicago Athenaeum Museum for Architecture.
Kontakt: Sebastiannagy architects
www.snatelier.com, office@snatelier.com
Foto: Tomáš Manina
Cena od
Zastavěná plocha
Užitná plocha
Provedeni domu
Dispozice
Kategorie domů
Typ střechy
Půdorys
Pozemek domu
Ateliér / architekt 

Zeptat se & odpovědět