Poněkud nezvyklým titulkem nechceme vyjádřit nevydařenou rovnici, ale naopak velmi vydařený stavební počin. Jde o rodinný dům v pasivním energetickém standardu s roční nulovou energetickou bilancí, sestávající ze dvou objektů – obytné budovy a hospodářského objektu, který majitelé příhodně překřtili na seník.

Dřevostavba, venkovský dům, moderní dům, 6+1, od Symbiosa – atelier architektů
Líbí se vám tento dům?
Profil domu
Cena od |
Zjistit cenu |
Zastavěná plocha |
100 m2 |
Užitná plocha |
160 m2 |
Provedeni domu |
Dřevostavba, venkovský dům, moderní dům |
Dispozice |
6+1 |
Kategorie domů |
Dřevěná |
Typ střechy |
Sedlová |
Půdorys |
Obdélníkový |
Pozemek domu |
Rovinatý |
Ateliér / architekt |
Symbiosa – atelier architektů |
Když se mladá rodina obývající podkrovní byt ve starším činžovním domě v centru Prahy začala rozrůstat, zatoužili po životě ve větším prostoru i klidu. „Chtěli jsme komfortní, příjemné a ekologické bydlení s nízkými náklady na provoz. Proto jsme už od samého počátku směřovali k pasivnímu domu. S manželem jsme se shodli, že s ohledem na budoucnost má určitě smysl pořídit si energeticky úsporné bydlení, které nás nebude finančně zatěžovat svým provozem. Chtěli jsme také být ohleduplní k životnímu prostředí,“ vysvětluje paní domu.
Pak se objevila příležitost ke koupi krásného pozemku se starším domem v centru obce v příměstské části Prahy, kterou majitelé s radostí využili. A neměli jen šťastnou ruku při výběru pozemku, ale jak se později ukázalo, měli štěstí i při výběru architekta. Podobu svého budoucího domova svěřili do rukou Ing. arch. Janě Jasinek.
Návrat ke kořenům
Na pozemku stál dům z padesátých let, který byl nevhodně orientován vůči světovým stranám, a navíc v natolik špatném stavu, že nejrozumnější řešení bylo dům zbourat. Uvolnil se tak prostor, který umožnil architektce navázat na osvědčenou urbanistickou skladbu typickou pro středočeskou vesnici, kdy je ulice tvořena úzkými štíty jednoduchých obdélníkových domů se sedlovou střechou. To zároveň umožnilo orientovat nový dům v souladu se zásadami tvorby pasivních domů a využít tak jihozápadní fasádu pro umístění velkých prosklených ploch i terasy.

1 + 1
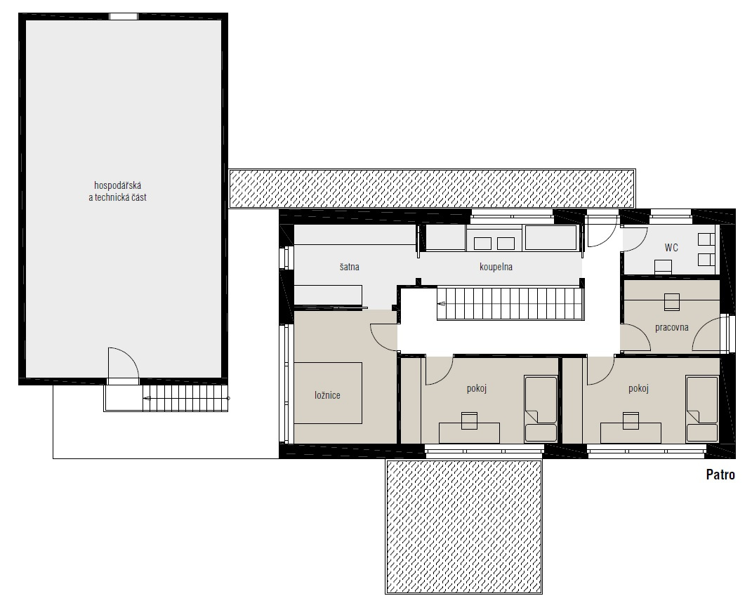
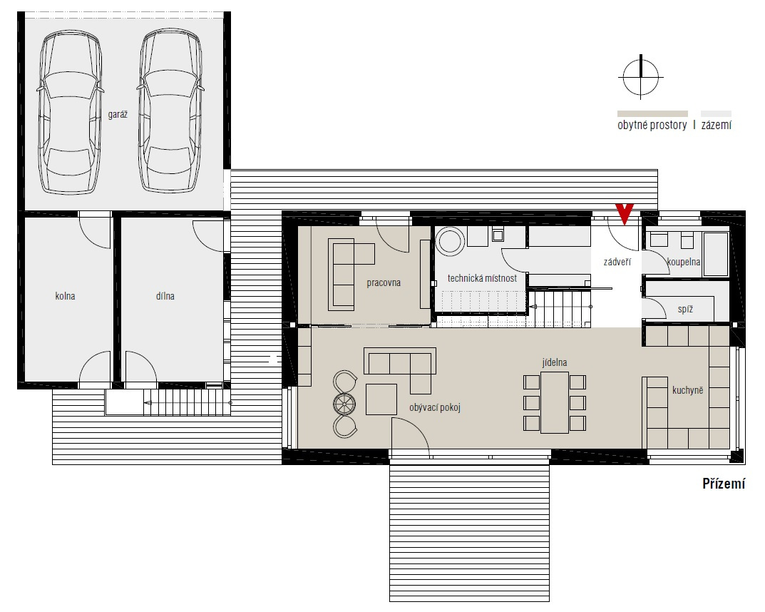
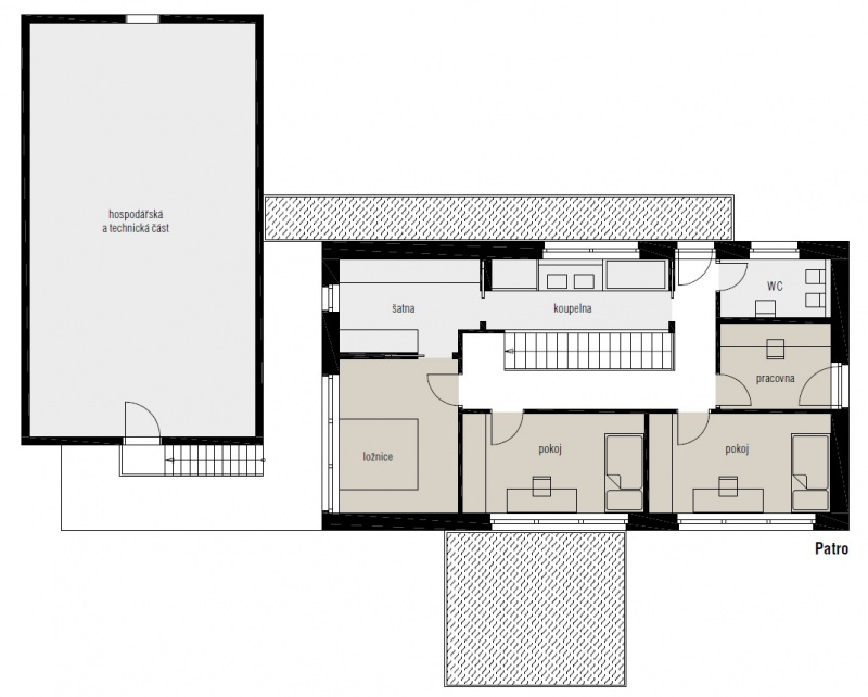
Novostavbu tvoří dva samostatné objekty: hlavní, prostornou a vzdušnou obytnou budovu doplňuje hospodářský objekt. V něm jsou umístěny sklady, dílna a dvě parkovací stání. Toto neobvyklé řešení vzniklo díky požadavkům majitelů na poměrně rozsáhlé zázemí domu. Architektka se proto rozhodla sloučit všechny obslužné činnosti do jedné plnohodnotné budovy. Tato „obslužná“ budova směřuje svým štítem do ulice a pomáhá tak obnovit tradiční místní ráz. Kolmo na ni navazuje vlastní obytný dům, který je díky tomuto řešení možné vhodně orientovat ke světovým stranám (podle zásad pro pasivní budovy) a zároveň opticky oddělit a skrýt zahradu.
Architektka Jana Jasinek navíc tuto hru s hmotami, vertikalitou a horizontalitou znásobila řešením fasád. Podélné plochy jsou obložené palubkami kladenými vodorovně, zatímco štítové stěny jsou obloženy palubkami ve svislém směru.
Proč dřevostavba?
„K dřevostavbě směřoval hlavně manžel, já jsem v tomto směru nebyla vyhraněná. Vůči dřevostavbám jsem měla i trochu předsudky, způsobené zprostředkovanými negativními zkušenostmi ze starších a nekvalitních dřevostaveb. Ty se však po osobní zkušenosti úplně vytratily, a pokud bychom dnes znovu stavěli, tak opět dřevostavbu,“ prozrazuje majitelka.

Na volbu stavebního systému v pasivně energetickém standardu měla velký vliv i prohlídka vzorového domu v „pasivní vesničce“ v obci Koberovy v Českém ráji. „Zde jsme se setkali se zástupci firmy Atrea, která se pasivním domům dlouhodobě věnuje, a využili jsme příležitosti s nimi do detailů probrat všechny naše dotazy. Moc se nám tenkrát líbily jejich návrhy domů, celkový přístup i myšlení a stavební systém Atrea jsme si zvolili,“ objasňuje paní domu.
Druhá budova zahrnuje prostory bez zvláštních nároků na tepelnou izolaci, a proto mohla být navržena jako klasická sloupková dřevostavba. „Co nemusí být v zateplené obálce domu, je lepší umístit mimo, což vyjde levněji, stejně jako sdružení do jednoho celku místo několika,budek‘ rozložených na pozemku,“ doplňuje Jana Jasinek.
Dispozice domu
Hlavní obytný prostor je prosklenými plochami bohatě osluněn a slouží ke společnému setkávání rodiny. Je zde také kuchyňská část s praktickou spíží a jídelní část. Tento prostor je možné v budoucnu rozdělit a vytvořit zde pracovnu či pokoj pro seniora. V přízemí je i menší koupelna s WC a technická místnost. Na obývací prostor navazuje terasa stíněná pergolou. Přímé schodiště vede do patra k ložnicím a hlavní koupelně. O vnitřní vybavení i výběr materiálů se postarali sami majitelé, kteří se rozhodli pro nadčasovou kombinaci světlých odstínů.

Teplo, voda a vzduch
Zdrojem tepla pro vytápění a přípravu teplé vody je malé tepelné čerpadlo země/voda se zemním kolektorem, který díky malé potřebě tepla zabírá jen velmi malou plochu. K akumulaci energie slouží integrovaný zásobník tepla, který zároveň zajišťuje i hygienický průtočný ohřev vody.
Dům je vybaven centrálním řízeným větráním s rekuperací tepla. Vzduchotechnika se využívá i k vytápění, na požadovanou teplotu se vzduch předehřívá vodou ohřátou tepelným čerpadlem. Jedním systémem se tedy větrá, topí, případně i chladí. „Raději se vyhýbáme teplovodnímu podlahovému topení, jednak proto, že podlaha v pasivním domě je pocitově sama o sobě dost teplá, a také proto, že to znamená zbytečně moc vody v podlaze. Voda je vždy ošemetný element, proto se snažíme nevést ani vodovodní trubky podlahou, ale stěnami nebo stropem. V podlaze může i malá netěsnost unikat dlouho pozornosti,“ upřesňuje architektka.

Provoz čerpadla a dalších spotřebičů v domácnosti dotují i střešní fotovoltaické panely. Díky využití obnovitelných zdrojů se tak jedná o dům s téměř nulovou spotřebou energie. Dům splnil podmínky pro dotaci Nová zelená úsporám, proto mohli majitelé čerpat podporu v maximální výši.
▪ Zastavěná plocha: 100 m2
▪ Konstrukce: těžká skeletová dřevostavba (stavební koncept Domy Atrea)
▪ Technologie: tepelné čerpadlo země/voda Atrea TCA 3.1, fotovoltaická elektrárna 7,8 kWp, akumulační zásobník, Atrea IZT 650 – záložní elektrické patrony, teplovzdušné vytápění, otopné žebříky a elektrické podlahové vytápění v koupelnách, řízené větrání s rekuperací tepla, větrací a vytápěcí jednotka Atrea Duplex RA4
FOTOGALERIE:
Architektonický návrh: Ing. arch. Jana Jasinek, Symbiosa – atelier architektů, www.a-symbiosa.cz
Projekt: Ing. Stanislav Kroulík, SK ateliér
Dodavatel stavby: Daniel Petříček v licenci DOMY ATREA
Technický dozor stavebníka: Ing. Petr Marx
Návrh a realizace interiéru: t2 interier, www.t2.cz
Příběh domu: www.PojdteDal.info
Foto: Domy Atrea – Alexandr Hudeček
Cena od
Zastavěná plocha
Užitná plocha
Provedeni domu
Dispozice
Kategorie domů
Typ střechy
Půdorys
Pozemek domu
Ateliér / architekt
Zeptat se & odpovědět