Nestává se často, aby fotograf a redaktor, kteří již navštívili stovky krásných domů, vydechli při příjezdu na místo reportáže spontánně „Ááách“. V případě experimentálního domu Ekonomických staveb, zvaného také Krtek, jsme se tomu neubránili.

Luxusní dům, prosklený dům, jiná dispozice, od Ekonomické stavby
Líbí se vám tento dům?
Profil domu
Cena od |
Zjistit cenu |
Zastavěná plocha |
375 m2 |
Užitná plocha |
176 m2 |
Provedeni domu |
Luxusní dům, prosklený dům |
Dispozice |
Jiná dispozice |
Kategorie domů |
Jiná |
Typ střechy |
Zelená, atypická |
Půdorys |
Atypický |
Pozemek domu |
Rovinatý |
Ateliér / architekt |
Ekonomické stavby |
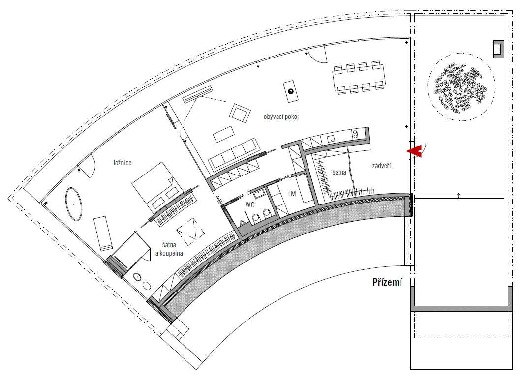
Dům, který smělým obloukem vyrůstá ze země, mizí pod zelenou střechou a na druhé straně se velkorysým prosklením otevírá k lesu a do zahrady. Dům, v němž jedno plynule navazuje na druhé. Sedíte v křesle, díváte se do lesa a máte pocit, že se zastavil čas. Žádný spěch, žádný stres, jednom klid a pohoda. Místo stvořené k odpočinku, meditaci a rozjímání, ale také k rozvíjení nových nápadů a myšlenek.
Příležitost k ověření teorií
„Krtek vznikl jako experimentální dům, ve kterém jsme si chtěli ověřit celou řadu vizí a technologií,“ říká David Mencl, ředitel Ekonomických staveb a současně i uživatel tohoto domu. Zadáním bylo vytvořit dům pro stále častější případy single bydlení, v tomto případě pro samostatně žijícího muže. „Některé naše myšlenky na domech pro klienty testovat nechceme a ani nemůžeme,“ pokračuje David Mencl. „Už proto, že jen postavit dům nestačí. Pokud chcete získat reálnou zkušenost ze života v určitém domě, pak v něm musíte nějaký čas opravdu žít. A jde spíše o měsíce než týdny.“

Z technologií, které zde chtěli stavitelé vyzkoušet, jmenujme beton, vytvarovaný do poloměru koule. „To je fakt těžké, naši dědové to překvapivě uměli, ale pro současné firmy je to oříšek,“ říká David Mencl. Stejně náročným se ukázal požadavek na obloukovitě prohnutá tepelněizolační skla do prosklených stěn. „I když dáváme přednost lokálním dodavatelům, v tomto případě to umí jen tři výrobci na světě, a nakonec se do toho odvážila pustit pouze jedna německá firma a dělala to na třikrát. Myslím, že by ho znovu dělat nechtěli.“
Dům, který se umí učit
Cílem projektu bylo také ověřit si, jaká bude ve skleněném domě akustika, tepelná pohoda v zimě a v létě, jaký je tu pocit soukromí a intimity.
„Když jsem sem přišel poprvé, tak jsem říkal, že se v tom nedá vůbec bydlet. Ale je to jinak: ten dům má tři režimy od nejvíc otevřené varianty, kdy vidím do lesa a na srnky, které mi běhají po zahradě, přes variantu se záclonami, když tady mám hosta, až po variantu plného závěsu a naprostého soukromí,“ říká David Mencl a vysvětluje: „Jsou to automatické režimy, takže dům se naučí, jak obyvatelé žijí, nemusí čekat na pokyn. Když večer vevnitř rozsvítíte, dům se naučí zatáhnout závěsy i žaluzie. Já třeba volím variantu, že když svítím vevnitř, rozsvítí se i zahrada, abych ji viděl.“

▪ Jak může vypadat ideální bydlení pro single muže/ženu?
▪ Jak se žije v domech, které jsou z velké části skleněné?
▪ Jaký bude pocit soukromí, jaká bude akustika, jaká tepelná pohoda s dnešní úrovní zasklení?
▪ Zvýší dostatek světla psychickou pohodu, když schází světlo přírodní?
▪ Bude mít odstranění zářičů vln vliv na spánek?
▪ Za jak dlouho člověk pocítí vysokou hladinu záporných iontů na svém zdraví?
▪ Jaká je energetická náročnost, pokud je dům prosklený k osluněným světovým stranám, a naopak krytý v zemi od severu?
Řešení pro větší spokojenost
David Mencl podle svých slov již 30 let zkoumá, jak dobře vyřešené bydlení může vést k tomu, že lidé změní své návyky a chování a vedou spokojenější život. Jednou z mnoha věcí v domě, které podle něj vedou ke šťastnějšímu životu, je dobře vyřešená koupelna. A v tomto domě je opravdu netradiční. „Chtěli jsme úplně zrušit ten stísněný prostor lázně a dát vanu do ložnice a sprchu do šatny. Vanu v ložnici mám vyzkoušenou už z vlastního domova, vím, že to funguje – moje žena miluje koupel ve vaně, já jsem přitom vedle ní na pohovce a povídáme si. Štěstí není o množství času, které spolu strávíte, ale o kvalitě toho času.
A pokud jde o sprchu spojenou se šatnou, chtěli jsme vědět, jak bude občasné vlhko fungovat v kombinaci s oblečením, zda se to osvědčí či nikoli – a je to super, už to zkoušíme dva roky. Chtěli jsme také ověřit, jak změní vnímání interiéru, pokud místo běžné příčky použijeme skleněnou s možností ji elektricky zneprůhlednit, což jsme s úspěchem použili například právě ve sprchovém koutu.“

Pro větší svěžest
Experimentální dům Krtek má i netradiční celoplošně podsvícený strop. „Pod speciální napínavou fólií je tady 1,7 km LED pásků a strop se dá rozsvítit až do úrovně denního světla. Je to jeden z našich experimentů, jak v podzimních a zimních dnech dostat ‚do člověka‘ hodně světla. Chtěli jsme si ověřit, zda se potvrdí naše teorie, že jsme pak svěžejší. A je to opravdu tak, světelná dotace funguje,“ říká David Mencl.
Dům Krtek patří také do nově definované kategorie tzv. iontových domů s vysokým počtem záporných iontů v ovzduší, které přispívají k udržení zdraví a svěžesti. Nejde přitom jen o subjektivní pocit, počet záporných iontů se sleduje pomocí exaktního měření. Tajemství iontových domů spočívá především v použití přírodních materiálů a správných technologií stavby.

Pro větší pohodu a štěstí
Dům Krtek patří do zajímavého projektu Ekonomických staveb s názvem Šťastný dům. Tento projekt zkoumá souvislost kvalitního bydlení s kvalitou vztahů a životního štěstí. A že bydlení může šťastnému životu významně prospět, je zřejmé. Také proto je srdcem domu kvalitní oboustranný krb, který vydává dlouho hřejivé teplo bez nutnosti častého čištění skel a vynášení popela, a naopak zde zcela schází televize.
„Nový dům může být skvělým impulzem změnit své životní návyky. Začít žít lépe. Přinést si do života mnoho malých radostí, které nám omílají kotníky každý den a které nás nakonec činí více šťastnými. V Ekonomkách tyto momenty šťastnějšího života hledáme a já je pak popisuji ve svém blogu (www.davidmencl.cz – pozn. red.),“ říká na závěr David Mencl.

▪ Obytná plocha: 176 m2
▪ Konstrukce: Železobetonová monolitická, nosné sloupy ocelové na míru svařené, křížového průřezu
▪ Výplně otvorů: Hliníková okna řešená na míru (jak zasklení, tak sestavy hliníkových rámů jsou individuální záležitostí), do oblouku, trojsklo.
▪ Střecha: Vegetační souvrství nad domem, nad stáním pouze železobetonová deska a hydroizolační nátěr
▪ Vytápění: Plynový kotel, VZT jednotka s rekuperací tepla, podlahové vytápění
▪ Kategorie PENB: B – velmi úsporná
FOTOGALERIE:
Patrik Janoušek patří do skupiny „Mladé oči“, kde se David Mencl snaží zprostředkovávat kontakt mladých talentovaných architektů s osvícenými stavebníky. Talenty do této skupiny hledá již během studií na ČVUT. Následně pomocí inkubátoru mladých nadějí vytváří mladým architektům podmínky pro samostatné fungování. Mladí lidé tak v oboru dostávají možnost rozvíjet svůj talent bez nutnosti ztrácet roky na podřadných pozicích. Součástí podpory je také skutečná realizace často i odvážných projektů. Také proto se již brzy můžeme těšit na další skvělé realizace skupiny architektů „Mladé oči“. Jste-li mladým architektem či architektkou, dveře do tohoto projektu jsou otevřené i pro vás.
Kontakt: www.ekonomicke-stavby.cz
Foto: Jiří Hurt
Cena od
Zastavěná plocha
Užitná plocha
Provedeni domu
Dispozice
Kategorie domů
Typ střechy
Půdorys
Pozemek domu
Ateliér / architekt
Zeptat se & odpovědět