V Králově Dvoře můžete navštívit nejmodernější vzorovou dřevostavbu společnosti Lucern dřevostavby. Na vlastní oči se tu seznámíte s vizí bydlení pro čtyřčlennou rodinu, kde se útulné prostředí snoubí s komfortem a technologickou dokonalostí.

Patrový dům, luxusní dům, prosklený dům, 5+kk
Tento dům soutěží v anketě Dům roku 2025. Líbí se vám? Hlasujte pro něj.
Hlasujte pro dům v anketě Dům roku 2025
Profil domu
Cena od |
Zjistit cenu |
Provedeni domu |
Patrový dům, luxusní dům, prosklený dům |
Dispozice |
5+kk |
Kategorie domů |
Dřevěná |
Typ střechy |
Plochá |
Půdorys |
Obdélníkový |
Pozemek domu |
Rovinatý |
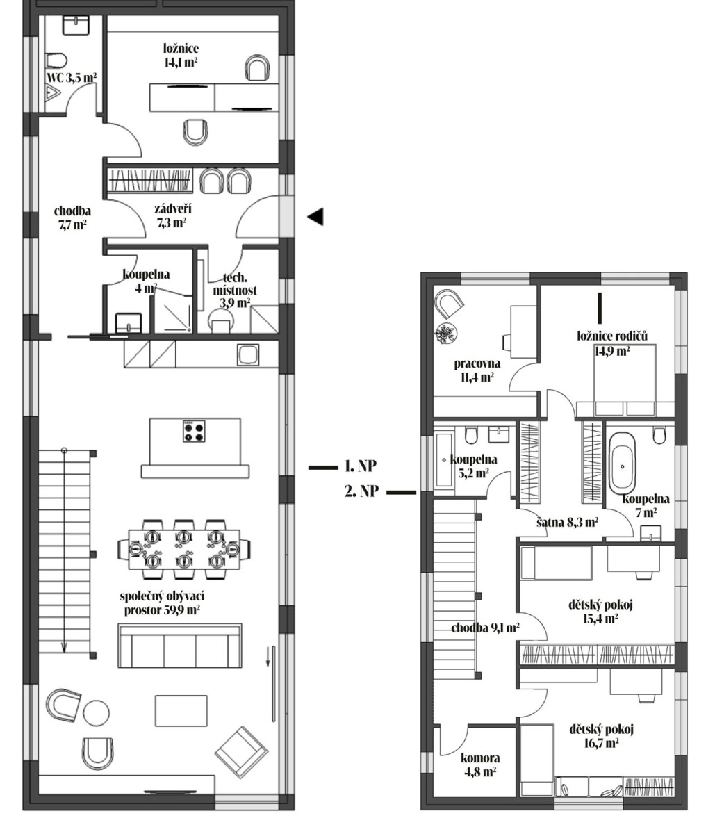
Jedná se o variaci na typový dům LUCERN 176 s úpravami velikostí a některých detailů. Dvoupodlažní stavba s elegantní architekturou moderní městské vily vás uvnitř překvapí útulnou atmosférou – v jejím návrhu se totiž vzájemně doplňují věcný praktický přístup a principy feng-šuej.
Dočtěte tento článek jako člen klubu Můj dům.
Největší komunita majitelů rodinných domů v ČR. Připojte se i vy!
Jste členem? Přihlásit se.

Cena od
Provedeni domu
Dispozice
Kategorie domů
Typ střechy
Půdorys
Pozemek domu 







Zeptat se & odpovědět