Logo
  • Firmy
  • Rodinné domy
  • Škola stavění
  • Škola stavění
  • Studio
  • Publikace
  • Kontakty

Přihlásit se

Vstup do klubu

Škola stavění

  • Před stavbou
  • vybíráme pozemek
  • návrh domu
  • výběr dodavatele
  • energetická koncepce domu
  • smlouvy a zákony
  • finance a pojištění
  • příprava a organizace stavby
  • projekt a stavební řízení
  • Základy
  • zemní práce a zaměření
  • základové konstrukce
  • izolace základů
  • Hrubá stavba
  • zdivo
  • stropy a překlady
  • schodiště
  • komíny a krbová tělesa
  • Střecha
  • střešní krytiny
  • šikmá střecha
  • plochá střecha
  • střešní doplňky a odvodnění
  • zelené střechy
  • střešní okna a vikýře
  • fotovoltaika
  • Okna, dveře
  • okna
  • vchodové dveře
  • vnitřní dveře
  • Fasády
  • venkovní omítky
  • obklady
  • dřevo na fasádě
  • Interiér
  • kuchyň a jídelna
  • koupelna
  • obývací pokoj
  • dětský pokoj
  • chodby a schodiště
  • ložnice a šatna
  • pracovna
  • relaxace doma
  • návrh interiéru
  • Instalace a technologie
  • elektroinstalace
  • centrální vysavače
  • zabezpečení
  • voda a odpady
  • klimatizace a větrání
  • stínící technika
  • inteligentní domácnost
  • fotovoltaika
  • Vytápění a ohřev vody
  • tepelná čerpadla
  • krby, krbová kamna
  • elektrické vytápění
  • ohřev vody
  • plynové vytápění
  • pevná paliva
  • rekuperace
  • topné systémy
  • Zahrada a okolí domu
  • návštěva
  • návrh zahrady
  • péče o zahradu
  • bazény a jezírka
  • terasa
  • altán a pergola
  • užitková zahrada
  • ekologie
  • vybavení
  • plot
  • garáž
  • venkovní kuchyně
  • chodníky a schodiště
  • Zateplení domu
  • zateplení spodní stavby
  • zateplení fasády
  • zateplení střechy
  • Vnitřní povrchy
  • omítky a nátěry
  • obklady
  • Podlahy
  • konstrukce podlah
  • podlahové krytiny
  • Škody, poruchy a závady
  • hydroizolace
  • statika
  • povrchy
  • zvuk a hluk
  • úniky tepla
  • požár a bezpečnost
  • zdravotní nezávadnost
  • technická zařízení budov
  • Seriály - jak staví čtenáři
  • Český soběstačný dům
  • kontejnerový minidomek
  • bungalov pro dvě rodiny
  • rekonstrukce domu v Maloměřicích
  • rekonstrukce vily Tonička
  • stavba e4 domu v přímém přenosu
  • bungalov svépomocí

Moderní řadovka, která skýtá komfortní bydlení

Řadový dům se sedlovou střechou, typický pro malé české obce, se při rekonstrukci změnil k nepoznání. S moderním stylem se pojí vysoce komfortní bydlení
Zvýšení předzahrádky na úroveň podlahy obývacího pokoje opticky rozšířilo interiér domu a zároveň vytvořilo přirozenou bariéru mezi domem a ulicí
Po vybourání příček se většina přízemí proměnila ve velkorysý otevřený prostor. Jediným dělicím prvkem je sloupek, který podpírá 7 metrů dlouhý překlad. Výtvarný koncept interiéru je založen na jednoduchých prvcích s minimem detailů a kombinaci šedé, bílé, černého kovu, betonu a olejovaného dubového dřeva
Prakticky veškeré vybavení interiéru včetně velké sedačky bylo vyrobeno na míru podle návrhu architekta Miroslava Gebase. Obývacímu pokoji dominuje výhled prosklenou stěnou do zahrady. Horizontální linie nábytku opticky zvětšují prostor
Velkoformátový obklad stěn imituje beton a dokresluje přírodní ráz interiéru. Také atypický jídelní stůl a židle dodala firma Sargánek v rámci kompletního řešení interiéru
Atypické krbové těleso je vloženo do nábytkové stěny s dřevěným obložením a dlouhou betonovou římsou
V kuchyni dosáhlo truhlářství Sargánek maximální preciznosti. Skříňky z bíle lakovaných MDF desek ve vysokém lesku jsou osazeny integrovaným LED osvětlením, moderním výsuvným kováním, pracovní deskou z kompaktního materiálu, zapuštěnou indukční varnou deskou a dřezem, který okraji lícuje s pracovní plochou
V kuchyni dosáhlo truhlářství Sargánek maximální preciznosti. Skříňky z bíle lakovaných MDF desek ve vysokém lesku jsou osazeny integrovaným LED osvětlením, moderním výsuvným kováním, pracovní deskou z kompaktního materiálu, zapuštěnou indukční varnou deskou a dřezem, který okraji lícuje s pracovní plochou
V kuchyni dosáhlo truhlářství Sargánek maximální preciznosti. Skříňky z bíle lakovaných MDF desek ve vysokém lesku jsou osazeny integrovaným LED osvětlením, moderním výsuvným kováním, pracovní deskou z kompaktního materiálu, zapuštěnou indukční varnou deskou a dřezem, který okraji lícuje s pracovní plochou
V kuchyni dosáhlo truhlářství Sargánek maximální preciznosti. Skříňky z bíle lakovaných MDF desek ve vysokém lesku jsou osazeny integrovaným LED osvětlením, moderním výsuvným kováním, pracovní deskou z kompaktního materiálu, zapuštěnou indukční varnou deskou a dřezem, který okraji lícuje s pracovní plochou
Na třívrstvou dubovou podlahu plynule navazuje schodiště se stejným povrchem. Za pozornost stojí originální zábradlí s integrovaným LED osvětlením
V koupelně a na WC architekt použil cementovou stěrku, velkoformátový obklad a dubové dřevo
V koupelně a na WC architekt použil cementovou stěrku, velkoformátový obklad a dubové dřevo
Sprcha je vybavena podomítkovou termostatickou baterií a regulací proudu
Zahrada s terasou a bazénem na úpravy teprve čekají, zatím zůstávají nenápadně skryty za obvodovou zídkou
K novým vchodovým dveřím ze skla a hliníku vede schodiště z bílého betonu. Vstup chrání stříška
Předokenní hliníkové žaluzie jsou integrovány do větraného obložení fasády a nijak neruší kompaktní tvar domu
Původní stav - pohled z ulice
Původní stav - pohled ze zahrady
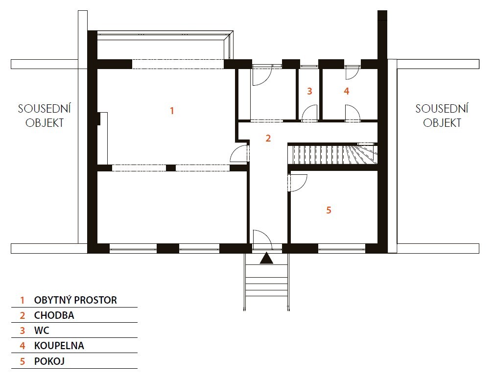
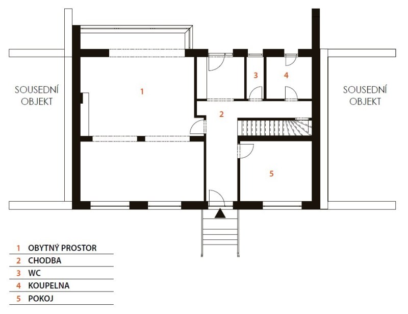
Půdorys

Jak postavit skvělý dům
krok za krokem?

To se dozvíte zdarma v našem seriálu. Stačí se registrovat k e-mailovému odběru a získáte:

  • 165dílný e-mailový seriál nabitý postupy
  • Škola stavění krok za krokem
  • Zařizování interiérů a relaxace doma
  • Ověřené rady od odborníků
Přihlásit odběr
background img

Kam dál

  • Firmy
  • Rodinné domy
  • Škola stavění
  • Publikace
  • Kontakty

Informace

  • O projektu
  • Aktivní členství
  • Podmínky služeb placeného obsahu
  • Pravidla používání služby
  • Podmínky pro poskytování placeného obsahu
  • Podmínky opakovaných plateb

Sociální sítě

  • Facebook
  • Instagram
  • Pinterest
  • Spotify
Můj dům krok za krokem logo

© 2026 Můj Dům Krok za Krokem
Všechna práva vyhrazena

  • Nastavení cookies
  • Ochrana osobních údajů
icon-angle icon-bars icon-times