Naši hostitelé si jako svůj nový domov zvolili obec na jihozápad od Prahy, která nabízí dobré dopravní spojení do hlavního města, ale i do rekreační oblasti Karlštejnsko. Moderní dřevostavba výborně zapadla do prostředí na rozhraní dvou světů.

Bungalov, městský dům, venkovský dům, moderní dům, 4+kk, od LUCERN
Líbí se vám tento dům?
Profil domu
Cena od |
Zjistit cenu |
Zastavěná plocha |
168 m2 |
Užitná plocha |
141 m2 |
Provedeni domu |
Bungalov, městský dům, venkovský dům, moderní dům |
Dispozice |
4+kk |
Kategorie domů |
Dřevěná |
Typ střechy |
Sedlová |
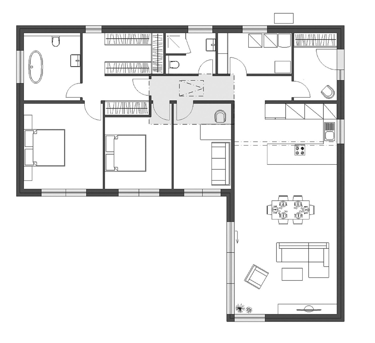
Půdorys |
Do písmene L |
Pozemek domu |
Rovinatý |
Ateliér / architekt |
LUCERN |
V dávných dobách tato obec patřila českým králům, různým šlechtickým rodům, a dokonce i Svatovítské kapitule a její pohnutou historii připomíná zachovalá gotická kaple. I když tu vyrůstá nová moderní zástavba, do dnešních dnů si dokázala zčásti uchovat klid a volnost venkova a také autentického ducha spojeného s více než tisíciletou historii. V okolí vede síť cyklostezek a nádherná krajina hlubokých lesů je odsud „co by kamenem dohodil“.
Rodina se vztahem k přírodě uvažovala o dřevostavbě. Líbilo se jim dřevo jako čistý přírodní materiál se zdravou „vůní“, ale také energeticky úsporné vlastnosti tohoto typu konstrukcí. Hledali osvědčeného dodavatele a průzkum trhu je dovedl do společnosti LUCERN dřevostavby, která nabízí kompletní služby od projektu přes inženýrské služby až po realizaci stavby na klíč. Rozlehlý rovinatý slunný pozemek umožňoval různá řešení, z katalogové nabídky si ale nevybrali a rozhodli se pro stavbu podle vlastních kritérií. Velmi jim záleželo zejména na řešení zahrady a jejím propojení s domem.
Dočtěte tento článek jako člen klubu Můj dům.
Největší komunita majitelů rodinných domů v ČR. Připojte se i vy!
Jste členem? Přihlásit se.

Cena od
Zastavěná plocha
Užitná plocha
Provedeni domu
Dispozice
Kategorie domů
Typ střechy
Půdorys
Pozemek domu
Ateliér / architekt 







Zeptat se & odpovědět