Klidnou ulici ve Vinoři lemuje ze severní strany les, z jižní domy v zahradách. Jednomu z nich se odjakživa říkalo Hájenka. Z ulice nyní působí stejně jako dříve, starou verandu ale nahradila nová – ne každý starousedlík si toho všiml. Je to zdařilý kousek retro architektury s nenápadnými, ale půvabnými industriálními prvky. U jižní fasády byl dům přistavěn tak, aby získal větší obytný prostor, který měl mít co největší kontakt se zahradou.

Rekonstrukce, 4+1, od Studio ARCHPORT
Líbí se vám tento dům?
Profil domu
Cena od |
Zjistit cenu |
Zastavěná plocha |
149 m2 |
Užitná plocha |
203,2 m2 |
Provedeni domu |
Rekonstrukce |
Dispozice |
4+1 |
Kategorie domů |
Zděná |
Typ střechy |
Plochá, sedlová |
Půdorys |
Obdélníkový |
Pozemek domu |
Svažitý |
Ateliér / architekt |
Studio ARCHPORT |
Dům byl postaven v šedesátých letech minulého století na pozemku se vzrostlými stromy a keři, dvě vysoké borovice-krasavice ho stíní dodnes. Ostatní plocha zahrady se ale proměnila k nepoznání, od časného léta tu rozkvétá sto hortenzií – a další přibývají. Majitelka domu je miluje a také dobře zná, umí to s nimi. Poloha u lesa je naprosto jedinečná a nenápadný domek jako by sem odjakživa patřil. Právě to současné majitele oslovilo natolik, že neváhali investovat mnoho úsilí a času, aby se jim podařilo stavbu koupit. Nikdo z jejich přátel netušil, jaký potenciál má.
Už při svojí první návštěvě jim to ale potvrdil architekt Vojtěch Hybler. Zadání pro něj nebylo úplně jednoduché: charakter hájenky s pěknými detaily a příjemným, skromným měřítkem měl zůstat zachován, interiér naopak rozšířen a propojen se zahradou.
Koncept autorů návrhu
„Konstrukce ani kapacita původního domu nedovolily, abychom nový obytný prostor umístili do stávajících dispozic. Proto jsme se rozhodli pro přístavbu, která na starý dům navazuje. Jednoduchá hmota má pultovou střechu a podlahu 20 centimetrů nad terénem. Důvodem pro toto řešení byla snaha vytvořit velkorysou místnost s vysokým stropem, ale současně nezakončit přístavbu směrem do zahrady příliš vysokým průčelím,“ uvádí architekt Vojtěch Hybler.
„Nejvýraznějším architektonickým prvkem Hájenky je vstupní veranda. Její tvar a velikost jsme zachovali, ale schody mají novou polohu, nad nimi vznikla malá terasa pro lavičku obrácenou k lesu. Nová dřevěná konstrukce s ocelovými zasklívacími lištami má příjemnější členění. Veranda funguje jako skvělý vstupní prostor, nahrazuje předsíň,“ dodává.
Kateřina Horská ze Studia X, která v domě navrhovala interiéry, dodává: „Dala jsem si záležet na výběru dlažby, mozaiku navrhla španělská designérka Patricia Urquiola. Veranda se stala příjemným místem k odpočinku, zvlášť v letních měsících. I proto jsem sem umístila pohodlnou lavici. Jediná věc, na kterou jsme nepomysleli, je možnost větrání okny. Ale to se dá napravit, stačí vyměnit jedno či dvě za otvíravé rámy.“
Nejdůležitější místnost v domě
Přístavba navazuje na původní kuchyni a obývací pokoj. S těmito místnostmi je propojena v jeden obytný prostor se dvěma výškovými úrovněmi. Do zahrady se otevírá pět a půl metru širokým posuvným oknem, nad nímž je slunolam.
Kateřina Horská měla do prostoru o velikosti šedesáti metrů čtverečních umístit kuchyň, jídelní kout, obývací pokoj a pracovnu. Dvě třetiny tohoto prostoru s velkým antracitovým oknem a krbovými kamny jsou na úrovni terénu, tedy o 80 centimetrů níž než zbývající část prvního nadzemního podlaží. Rozdíl vyrovnávají tři schody, které zároveň slouží k sezení, když se sejdou přátelé. Společný komunikační prostor považují majitelé domu za ideální řešení, jeho praktičnost vynikne ještě víc, když se otevře okno do zahrady. Velkou místnost se dvěma výškovými úrovněmi zdobí dřevěná podlaha a trámový strop, natřený bílou barvou. Je to nenápadný, ale krásný prvek, který navíc dobře posloužil pro umístění osvětlení. Před širokým oknem do zahrady stojí jako designové kousky krbová kamna a repasované trubkové křeslo.

Pracovnu odděluje od odpočinkové zóny jemná kovová síť. Působí jako spíše symbolické gesto, ale přesto dává poměrně velkému pracovnímu koutu pocit soukromí a klidu. Díky ní zůstala místnost prostorná a kompaktní. Majitelka hájenky dodává: „Velmi často pracujeme doma, na začátku jsme dokonce přemýšleli o tom, že si kancelář vybudujeme v suterénu jako samostatnou místnost. Teď jsme rádi, že jsme to neudělali. Okno do zahrady nám poskytuje stále nové zážitky, stačí změna osvětlení nebo barev v zahradě. Je to neuvěřitelně příjemné a osvěžující.“
Dvě velké knihovny byly zhotoveny podle návrhu Kateřiny Horské. Vymyslela je jako jednoduchý systém ze dřeva a kovu, ale právě v této jednoduchosti se skrývá velké kouzlo – kovové nosníky mají šířku 4 mm, dřevěné police 4 cm. Celek působí harmonicky navzdory tomu, že se v knihovně sešla kromě knih spousta dalších předmětů – kdo z nás to nemá?

Další změny
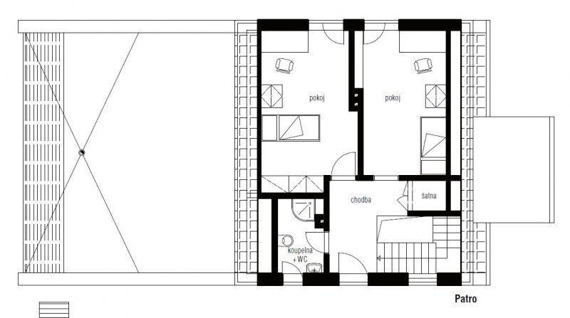
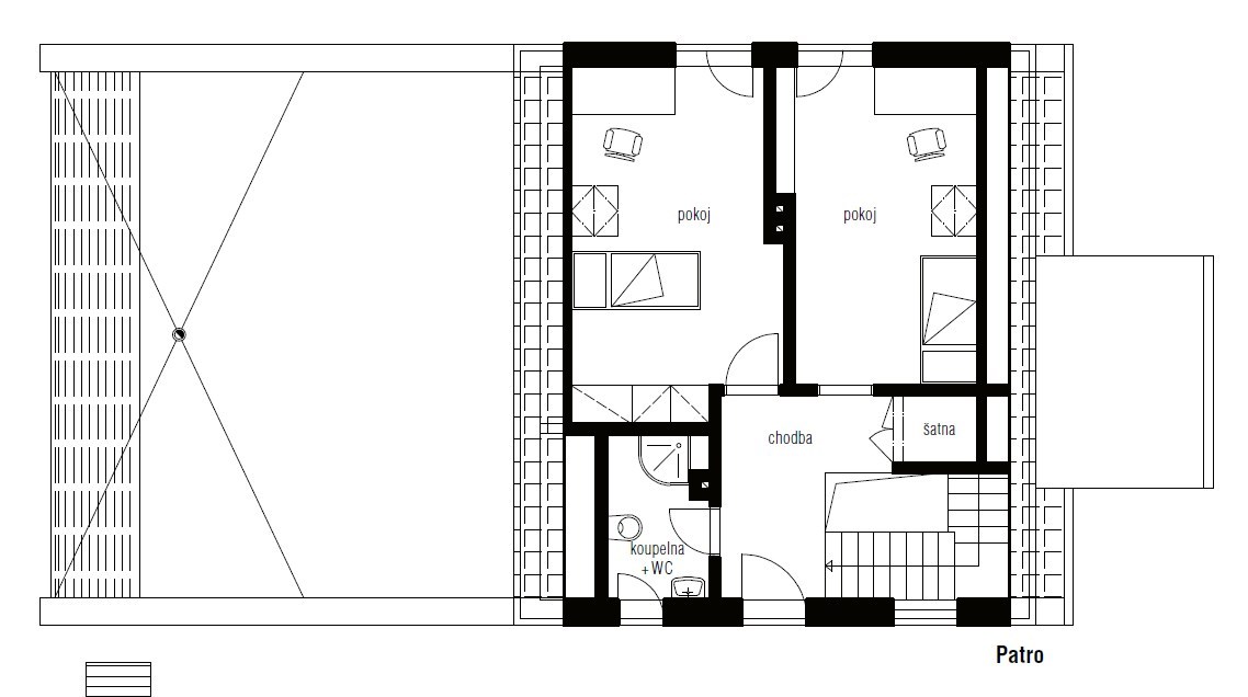
Schodiště do podkroví zůstalo na svém místě, jeho charakter je však jiný – místo pocitově studené chodby jsou podlahy i schody dřevěné, takže působí jako navazující součást obytných místností. Nově ho osvětluje kulaté okno ve štítu domu, jakási tehdejší značka architektů. Archport navrhl i jednoduché linky kovového zábradlí, stejné venku i uvnitř.
Koupelna v přízemí je velkorysá, v podkroví menší. Místnosti pod střechou nyní slouží dětem. Vybaveny jsou nábytkem z IKEA, ale díky velkorysému prosvětlení francouzskými a střešními okny se otevírají do zahrady i do lesa a pocitově tak získaly dostatek prostoru.

▪ Generální dodavatel: Vladař a Synové s.r.o.
▪ Zastavěná plocha: 149 m2
▪ Užitná plocha: 203,2 m2
▪ Konstrukce: Stávající objekt je kombinace železobetonového skeletového a zděného systému. Přístavba byla vybudována jako dřevostavba. Na fasádě je kontaktní zateplovací systém s tenkovrstvou probarvenou silikonovou omítkou. Sedlová střecha je opláštěná šablonami Cembrit, pultová střecha přístavby je opláštěna PVC fólií. Původní dům byl podsklepen, suterén je nyní využit pro technickou místnost, sklady, šatnu a posilovnu. Okna s trojskly jsou plastová s probarveným antracitovým pofoliovaným rámem.
▪ TZB: Zdrojem vytápění je plynový kondenzační kotel. Dům je vytápěn teplovodně konvektory a radiátory, kromě toho je vybaven rekuperační vzduchotechnickou jednotkou.
FOTOGALERIE:
Návrh domu: Studio ARCHPORT
Kreativní přístav Archport byl založen v říjnu 2013 uprostřed neklidných vod Jadranu dvojicí architektů Vojtěchem Hyblerem a Davidem Dvořákem. Byť byl Archport založen „na vodě“, stojí jeho základy na lásce ke geometrii, jednoduchosti a úctě ke kontextu. Navrhujeme interiéry, domy, budovy a městské prostory od první skici přes studii, získání stavebního povolení a prováděcí dokumentace až po spolupráci při výběru dodavatele a autorský dozor.
Ing. arch. David Dvořák: Fakulta architektury ČVUT v Praze, Fakulta architektury RWTH v Cáchách, roční studium v ateliéru profesora Mirko Bauma, Fakulta stavební ČVUT v Praze.
Ing. arch. Vojtěch Hybler: Fakulta umění a architektury TU v Liberci, Fakulta architektury RWTH v Cáchách, roční studium v ateliéru profesora Mirko Bauma.
Návrh interiéru: Kateřina Horská – Studio X
Návrhy soukromých a komerčních interiérů se zabývá téměř 20 let. „V interiéru mám ráda harmonii a každý projekt beru jako výzvu, kdy se snažím o sladěnou kompozici stylů, barev a materiálů.“
www.studiox.cz
Foto: Petr Polák, Jiří Ernest
Cena od
Zastavěná plocha
Užitná plocha
Provedeni domu
Dispozice
Kategorie domů
Typ střechy
Půdorys
Pozemek domu
Ateliér / architekt 


Zeptat se & odpovědět