Rekonstrukce domu ve středních Čechách se odvinula od záměru drobně upravit dispozici a zrenovovat interiér. Architektka však pojala svůj úkol koncepčně a velkoryse, dala domu řád, světlo a čisté linie a proměnila jej k nepoznání.

Moderní dům, rekonstrukce, 5+1, od Ta-architektura
Líbí se vám tento dům?
Profil domu
Cena od |
Zjistit cenu |
Zastavěná plocha |
210 m2 |
Užitná plocha |
200 m2 |
Provedeni domu |
Moderní dům, rekonstrukce |
Dispozice |
5+1 |
Kategorie domů |
Zděná |
Typ střechy |
Sedlová, pultová |
Půdorys |
Do písmene L |
Pozemek domu |
Rovinatý |
Ateliér / architekt |
Ta-architektura |
Deset let starý dům novým majitelům vyhovoval svou velikostí i dobrým technickým stavem, nelíbil se jim ale jeho zastaralý vzhled a přáli si zmodernizovat interiér. Architektka Tereza Čudová Ajmová navrhla úpravy domu jako celku a přesvědčila investory, aby využili příležitost a neodkládali řešení exteriéru na později. „Koupili dům, ve kterém by se dalo hned bydlet, ale protože majitel má rád design, tak pro něj byla vnitřní pohoda v interiéru důležitá. Když jsem však dům uviděla zvenčí, věděla jsem, že by to chtělo přistoupit k projektu jako k celku, protože se mi příčilo dávat velké peníze do krásného interiéru v nehezkém domě,“ vysvětluje svůj přístup.
Vše přebytečné muselo pryč
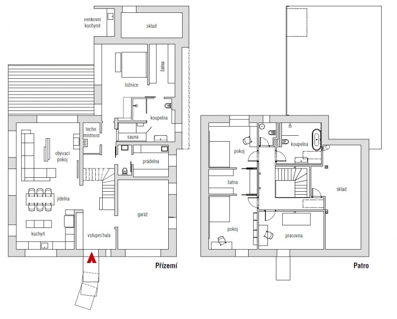
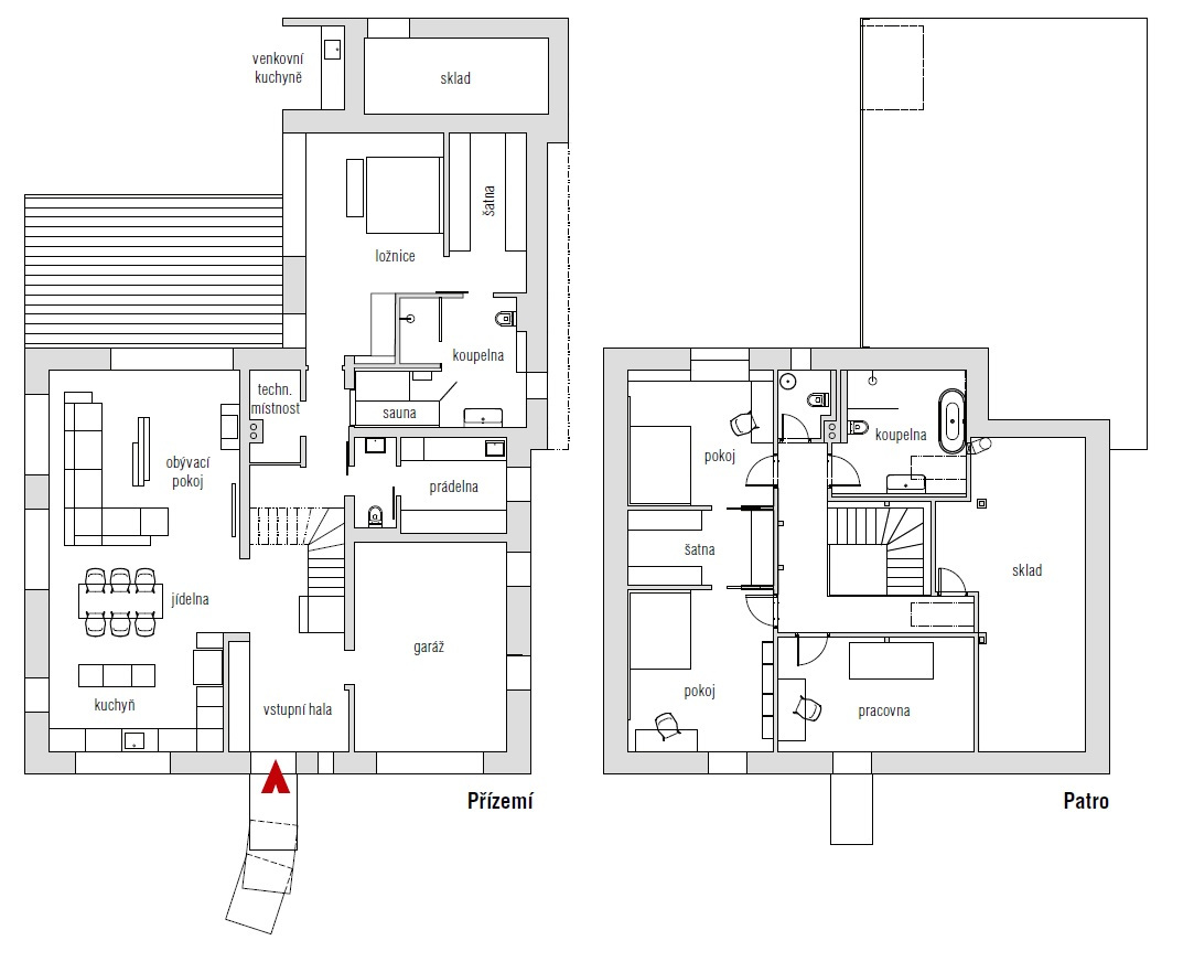
Dvoupodlažní stavba se sedlovou střechou a přízemními přístavky s vnitřním bazénem a kůlnou se vyznačovala obvyklými nešvary doby svého vzniku – mnoho sedlových střech různých tvarů a výšek, plastová okna s typickou „mřížkou“ a nezbytný arkýř a balkon, zbytečné přesahující střechy – to vše bylo v rámci rekonstrukce odstraněno a hmota domu byla zredukována na kompaktní tvar bez arkýře i střešních přesahů. Přístavky nahradila přízemní obdélníková přístavba s pultovou střechou. Bazén byl odstraněn a na jeho místě se nyní nachází hlavní ložnice s šatnou, koupelnou a saunou. V hlavní části domu se v přízemí nachází původní garáž, vstupní hala, obývací pokoj a zázemí. Středem dispozice vede otevřené schodiště ve tvaru písmene L, v podkroví je obklopeno dětskými pokoji, pracovnou a zázemím.

Rekonstrukce také zahrnovala kompletní výměnu rozvodů včetně topného systému, nové povrchové úpravy včetně omítek a podlah a výměnu oken. Fasáda byla po odstranění starého polystyrenu znovu zateplena a podkroví má nový střešní plášť.
Pohoda začíná osvětlením
Interiér byl řešen hlavně s ohledem na dostatek denního světla a propojení se zahradou. Okna jsou výrazně větší, přibyly přímé výstupy na zahradu.
„Pro mě je světlo alfa a omega a je to vidět na realizacích, přirozené světlo dělá velkou část interiéru. Pokud rekonstruujeme, většinou zvětšujeme okna a snažím se dostat přirozené světlo i do míst, kde to lidé většinou neřeší. Platilo to i pro tento dům. Například v dětských pokojích byla původně tradiční okna s parapetem, tak jsme je protáhli k podlaze, to samé jsme udělali s okny v obývacím pokoji. Saunu jsme zase prosklili ze dvou stran, abychom skrze ni pustili přirozené světlo do chodby. Schodišťový prostor jsme prosvětlili motoricky ovládaným střešním oknem, stejně tak horní koupelnu. Pro ni jsem si vzhledem k vlhkosti prostředí nechala doporučit bezúdržbové okno VELUX, tedy bílou polyuretanovou vrstvou potažený dřevěný rám.“ V šatnách, kde nebylo možné využít denního světla, byly instalovány světlovody.

Interiér na šedém pozadí
Harmonický ráz interiéru je založen na jednoduché kombinaci neutrální světle šedé barvy a výrazných materiálů: černé oceli, teraca a dubového dřeva. Tento základ se bude obměňovat a dolaďovat pomocí barevných doplňků. Na některých stěnách byly záměrně ponechány surové štukové omítky – naznačené tahy špachtlí zanechávající stopu lidské práce vytvářejí podle architektky příjemný živý dojem. Do obývacího pokoje si majitelé vybrali kvalitní sezení značky Sancal, většina nábytku včetně koupelnového byla vyrobena na míru. Byly při tom použity i části vybouraných konstrukcí, zejména starých trámů ze zrušené části střechy.
Dominantou a také technicky nejnáročnější částí přízemí je subtilní schodiště z černého ocelového plechu. Jednotlivé díly byly vyřezány laserem podle 3D modelu tak, aby k sobě přesně pasovaly jako skládačka. Podařilo se tak vytvořit vzdušnou konstrukci, která působí lehce a umožňuje volné průhledy celým interiérem.

▪ Užitná plocha: 200 m2
▪ Konstrukce: keramické zdivo Porotherm, silikonová probarvená omítka Weber, obklad nízké části domu z Thermo borovice, dřevěný krov, střešní krytina hliníkový falcovaný plech Prefa Prefalz
▪ Výplně otvorů: okna a vchodové dveře hliníkové značky Heroal, střešní okna a světlovody značky Velux
▪ Vytápění: podlahové teplovodní topení/ kondenzační plynový kotel Viessman
FOTOGALERIE:
Vystudovala fakultu architektury na Technické univerzitě v Liberci, založila architektonický ateliér ta-architektura, který se zaměřuje na návrhy rodinných domů, kancelářských a firemních objektů, bytových a komerčních interiérů. Zpracovává všechny fáze projektu od architektonické studie až po realizaci projektu v plném zastoupení klienta.
www.ta-architektura.cz
Realizace interiéru: cre8, s.r.o.
Foto: Filip Šlapal
Cena od
Zastavěná plocha
Užitná plocha
Provedeni domu
Dispozice
Kategorie domů
Typ střechy
Půdorys
Pozemek domu
Ateliér / architekt
Zeptat se & odpovědět