Klidná ulice u řeky se dlouhou loukou otevírá k nábřeží, zahrady domů jsou naopak ve svahu. Bydlení u vody, a přitom nedaleko městského centra, na které je odtud krásný výhled. Nad protějším břehem se zvedá skalní stěna se znojemským hradem, rotundou svaté Kateřiny a kostelem svatého Mikuláše. Při stavbě nového domu bylo důležité místo nepoškodit a nezkazit, zařadit se mezi sousedy „jakoby nic“.

Prosklený dům, dům na malém pozemku, 6+kk, od Kuba & Pilař architekti
Líbí se vám tento dům?
Profil domu
Cena od |
Zjistit cenu |
Zastavěná plocha |
125 m2 |
Užitná plocha |
186 m2 |
Provedeni domu |
Prosklený dům, dům na malém pozemku |
Dispozice |
6+kk |
Kategorie domů |
Jiná |
Typ střechy |
Zelená, atypická |
Půdorys |
Obdélníkový |
Pozemek domu |
Svažitý |
Ateliér / architekt |
Kuba & Pilař architekti |
Architekt Tomáš Pilař na úvod vysvětluje: „Východiskem pro nás byla především orientace pozemku a jeho profil. Základní tvar domu předurčily minimální šířka parcely, strmost svahu a orientace na sever. Půdorys má proto tvar úzkého obdélníku, který ctí uliční čáru i odstupy. Fasádu do ulice a k řece jsme zkosili šikmou střechou, která navazuje na střechy sousedních domů. Po celé ploše je osázená extenzivní vegetací a opticky tak přechází do zahrady ve svahu. Do střechy jsme vyřízli otvory pro okna do dětských pokojů a obývacího pokoje. Východní stěna je vysunutá a ustoupená, umožňuje tak prosvětlení ložnice a chodby ve druhém podlaží. “
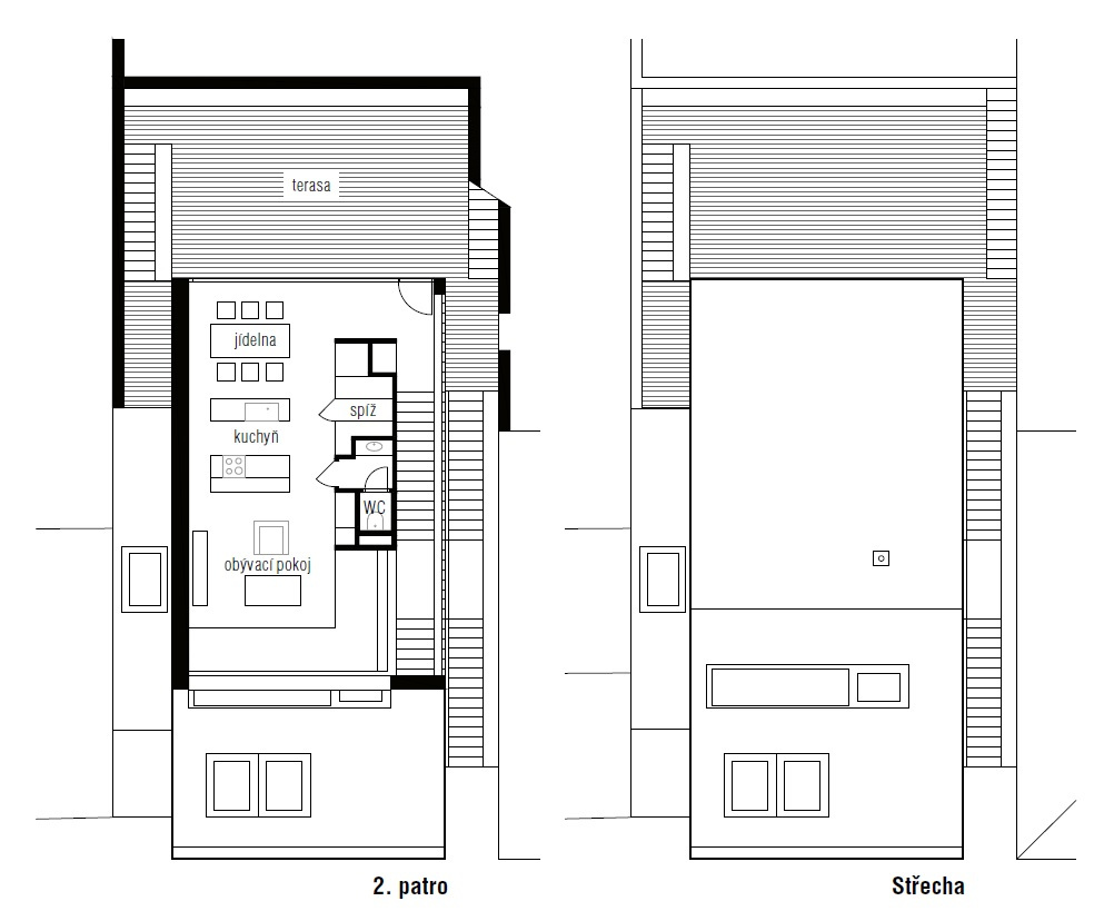
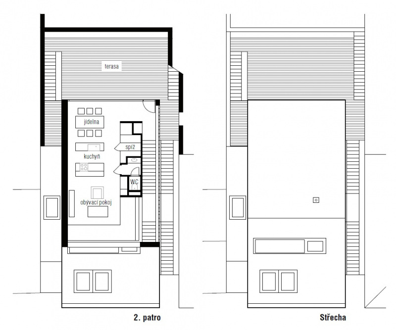
„Hlavní obytný prostor se nachází v nejvyšším podlaží. Propojili jsme ho s terasou, navazující na zahradu. K jihu se tedy k terase obrací velké okno, na sever pásové střešní okno, odkud jsou nejkrásnější výhledy do údolí řeky i na svahy s historickými památkami Znojma,“ dodává jeden z autorů.

Detaily byly zásadní
Investor stavby je také architekt, s Tomášem Pilařem jsou dlouholetí přátelé, a tak věděl, že si s obtížným zadáním poradí. Stavba byla složitá i z urbanistického hlediska, nebylo možné přímo navázat na sousední domy. A navíc se ukázalo, že svah je málo stabilní, tvořily jej z velké části navážky a muselo se operativně řešit, jak ho zpevnit.
„Rozhodli jsme se pro pohledové betony a dvě paralelní schodiště, která odděluje stěna z kopilitu. Díky tomu je dům krásně prosvětlený od západu. Celý interiér jsme řešili ve třech základních materiálech: bílá omítka, světle šedé obklady s vysokým leskem, aby místnosti získaly hloubku, a litá podlaha z měkčeného polyuretanu. Navíc jsme chtěli, aby byl interiér co nejvíce otevřený a propojený. To se podařilo – i když jsme třeba ve třetím patře, máme kontakt s přízemím, cítíme celý objem domu,“ říká Norbert Walter. Majitelé stavby také chtěli interiéry co nejvíce prosvětlit, kompozice oken a světlíků je dobře promyšlená.
A kromě toho si při samotné stavbě dokázali pohlídat provedení všech důležitých detailů: na hliníkové fasádě, u pohledových betonů, podlah, u vestavěného nábytku… Nábytek je tu samostatnou kapitolou, z převážné části je součástí domu. Kupovaly se jen postele, stoly a židle.
Rostliny doplňují kov, sklo a beton
Do ulice má dům tři podlaží, ale dobře to skrývá, opticky budí dojem přízemní stavby se strmou střechou, osázenou rozchodníky. U boční fasády jsou směrem do zahrady dvě venkovní schodiště. Svah zpevňují opěrné stěny z pohledového betonu, vznikl tak příjemný prostor soukromých dvorků. Východní stěna se do něj obrací dvěma velkými okny. Poměrně úzké, a tedy i úsporné vnitřní schodiště je elegantní.

Fasáda domu je z tmavého hliníku, ale vyvažuje ji poměrně velká plocha zelené střechy. Navíc je bohatě a velkoryse prosklená, i do ulice se dům obrací velkým oknem s meziskelní žaluzií. V kontrastu k ní jsou interiéry světlé až běloskvoucí.
V prvním podlaží se nachází garáž a technická místnost s tepelným čerpadlem a vzduchotechnikou. Vedle vstupu je umístěna pracovna prosvětlená velkým oknem. Ve druhém podlaží jsou ložnice rodičů s vlastní koupelnou, pokoj pro hosta, dětské pokoje, velká koupelna a místnost pro domácí práce. Do obytného prostoru ve třetím podlaží je vsazen uzavřený box se záchodem a spíží, částí kuchyně a krbem. Tuto velkou místnost pod střechou rozděluje kuchyňský pult, a to na sezení s krbem v severní části a jídelní stůl na jižní straně. Okno v jeho blízkosti se v teplých dnech otevírá na terasu a do zahrady. A téměř šest metrů dlouhé střešní okno obrácené k severu nabízí dechberoucí výhled na znojemský hrad.

▪ Zastavěná plocha: 125 m2
▪ Užitná plocha: 186 m2
▪ Nosné konstrukce domu jsou ze železobetonu a oceli, fasádní obklady z hliníkových černých plechů. Okna mají hliníkové rámy, boční stěna vnitřního schodiště je složená z mléčného profilového skla. Skladba zelené střechy má několik vrstev drenážních, filtračních a ochranných fólií.
▪ Dům je vytápěný tepelným čerpadlem země/voda, má vnitřní teplovzdušné větrání s rekuperací a podlahové topení. Zemní vrty zároveň slouží také k ochlazení hlavní obytné místnosti v létě.
FOTOGALERIE:
Kuba & Pilař architekti – Tomáš Pilař, Ladislav Kuba, Norbert Walter
Ateliér byl založen roku 1996, ve stejném roce byla dokončena stavba kaple Panny Marie v Jestřebí, vysoce hodnocená jako příklad soudobé tvorby navazující na tradiční architekturu.
Řada dalších staveb od tohoto ateliéru získala oficiální ocenění: V roce 2002 to byla Hlavní cena Grand Prix OA za stavbu Knihovny pro Filozofickou fakultu Masarykovy univerzity a Grand Prix OA v kategorii bydlení pro domy v Neumannově ulici v Brně. O rok později byli autoři nominováni na cenu Miese van der Rohe, stejnou nominaci získali v roce 2007 za kapli sv. Antonína v Černé a obchodní dům Omega v Brně. V roce 2007 obdrželi Hlavní cenu Best of Realty za Obytný soubor Na Krutci v Praze. V roce 2009 získali Hlavní cenu Grand Prix OA za Fakultu chemicko-technologickou Univerzity Pardubice, titul Stavba roku a Hlavní cenu Best of Realty za obchodní centrum Citypark v Jihlavě a opět byli nominováni na cenu Miese van der Rohe.
V roce 2011 obdrželi Grand Prix OA v kategorii novostavba za Bytový dům Ostravská brána. Mezi další významné stavby ateliéru patří rekonstrukce radnice v Brtnici, rekreační dům v Pavlově, rodinný dům na Rezkově ulici v Brně, Brána ke svobodě u Mikulova a rodinný dům v Křižánkách.
Foto: BoysPlayNice
Cena od
Zastavěná plocha
Užitná plocha
Provedeni domu
Dispozice
Kategorie domů
Typ střechy
Půdorys
Pozemek domu
Ateliér / architekt
Zeptat se & odpovědět