Domu postavenému ve farské zahradě v malé obci nedaleko Nitry dal jeho autor, architekt Sebastian Nagy, jméno Otio, které nese dvojí symboliku. Otium znamená latinsky volný čas, odpočinek a dům byl navržen jako požehnané útočiště, kam se uchýlíte po práci obnovit síly. Pokoj a požehnání jsou tu přítomny v osobě samotného obyvatele, kterým je katolický kněz.

Venkovský dům, moderní dům, 4+kk, od Sebastiannagy Architects
Líbí se vám tento dům?
Profil domu
Cena od |
Zjistit cenu |
Užitná plocha |
130 m2 |
Provedeni domu |
Venkovský dům, moderní dům |
Dispozice |
4+kk |
Kategorie domů |
Zděná |
Typ střechy |
Sedlová |
Půdorys |
Obdélníkový |
Pozemek domu |
Rovinatý |
Ateliér / architekt |
Sebastiannagy Architects |
Zadavatel projektu, progresivní mladý kněz, hledal architekta, který by dokázal navázat na kontext a tradici místa, krásné a klidné prostředí zahrady v sousedství barokního kostela, a dosáhl harmonie a kontinuity současnými výrazovými prostředky. Zároveň mělo vzniknout moderní pohodlné bydlení i pro příští generace. „Dům Otio má ambici trvanlivosti, nadčasovosti, která překoná svého původního obyvatele,“ vysvětluje Sebastian Nagy. Mladý kněz si s mladým architektem v průběhu práce dobře porozuměli a výsledkem je svěží a originální architektonické dílo, zvenku skromné a neokázalé, uvnitř překvapivě moderní, které nenápadně zapadá do svého okolí.
Introvert uzavřený do kamene
Přízemní dům je uzavřený v kompaktním obdélníku obklopeném čtyřmi kamennými stěnami a zastřešeném nízkou asymetrickou sedlovou střechou. Zvenku trochu připomíná kamenný monument, zdivo z materiálu, který je sám o sobě symbolem trvanlivosti a nadčasovosti, je navíc komponováno jako zídka zděná na sucho a budí dojem, že už tu stojí možná staletí. Detaily zpracování jsou však zcela současné.
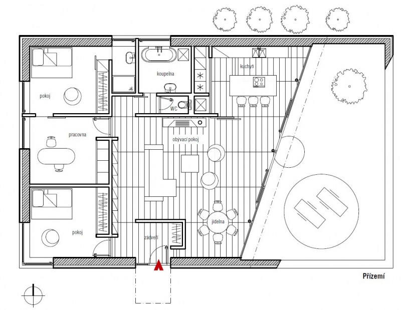
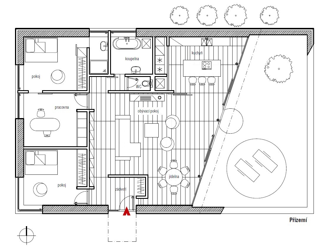
Obytnou funkci naznačuje snad jen nenápadný vstup z boku se skleněnou markýzou a křížem. Vnitřek obdélníka je šikmou prosklenou stěnou rozdělen na obytnou část a malé atrium. Byt o ploše 130 m2 je přehledně rozdělen na denní část (zahrnuje obývací pokoj s kuchyní – orientované do atria), a noční část – ložnici, pracovnu, pokoj pro hosta a zázemí. Prosklená diagonální stěna je orientována tak, aby otevřela výhled z obývacího pokoje na věž kostela a propojila opticky i symbolicky příbytek světský s duchovním. Obvodová zeď je z tohoto důvodu v rohu snížená, aby se výhled co nejvíce otevřel. Šikmé linie obohacují přísně pravoúhlou stavbu o dynamický prvek a dimenzi moderního sochařského díla.
Interiér je prozářen světlem, které přichází prosklenou stěnou a odráží se od bílých stěn a světlé kamenné podlahy. Moderní vybavení navržené na míru se omezuje na nejnutnější nábytek a je doplněno několika exkluzivními solitéry vybranými v souladu s celkovým konceptem domu. Jak křeslo od Charlese Eamese, tak legendární plastové židle značky Vitra reprezentují úspornost, nadčasovou kvalitu a maximálně promyšlené řešení, tedy principy charakterizující celou stavbu.

Za projekt domu Otio získal Sebastian Nagy v r. 2011 Cenu veřejnosti CE. ZA. AR a v r. 2020 se stal laureátem ceny Europe 40under40, kterou uděluje Chicago Athenaeum Museum for Architecture pro architektu do 40 let.
▪ Dispozice: 4 + kk
▪ Konstrukce: betonová základová deska a základové pasy, keramické zdivo, kamenná přizdívka, dřevěný krov, střešní krytina falcovaný plech
▪ Výplně otvorů: okna hliníková s izolačními dvojskly, dveře dřevěné do obložkových zárubní a skleněné, vchodové dveře skleněné
▪ Vytápění: podlahové vytápění
FOTOGALERIE:
Vystudoval architekturu v Bratislavě, na Královském technickém institutu ve Stockholmu a na Berlage Institut v Amsterodamu. Úzce spolupracoval s jedním z nejvýznamnějších slovenských architektů Ivanem Matúšikem a společně získali řadu významných úspěchů, např. vítězný návrh na revitalizaci bratislavského Podhradia. Za návrh bytového domu Triangolo v Nitře získal prestižní cenu Dušana Jurkoviče.
Kontakt: Sebastiannagy Architects, www.snatelier.com, office@snatelier.com
Foto: Paťo Safko
Cena od
Užitná plocha
Provedeni domu
Dispozice
Kategorie domů
Typ střechy
Půdorys
Pozemek domu
Ateliér / architekt 

Zeptat se & odpovědět