Tento nízkoenergetický jednopodlažní dům o dispozici 5 + kk s krytým parkováním, saunou a bazénem si mladá rodina nechala navrhnout od společnosti Lucern individuálně, aby splnil všechny jejich představy o dokonalém bydlení.

Bungalov, moderní dům, 5+kk, od Lucern
Líbí se vám tento dům?
Profil domu
Cena od |
Zjistit cenu |
Zastavěná plocha |
175 m2 |
Užitná plocha |
146 m2 |
Provedeni domu |
Bungalov, moderní dům |
Dispozice |
5+kk |
Kategorie domů |
Dřevěná |
Typ střechy |
Plochá, sedlová |
Půdorys |
Atypický |
Pozemek domu |
Rovinatý |
Ateliér / architekt |
Lucern |
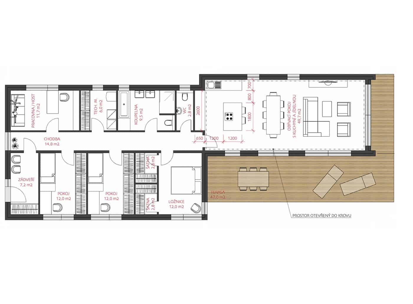
Požadavkem budoucích majitelů bylo, aby jejich dům byl světlý, vzdušný a nejlépe s velkou prosklenou plochou v obývacím pokoji. A tak vznikl návrh tohoto přízemního domu s velkým proskleným štítem a obytným prostorem otevřeným do krovu, který dodává prostoru krásné světlo.
Součástí tohoto prostoru je kromě obývacího pokoje také kuchyňský kout. Na něj navazuje dlouhá chodba, z níž se vstupuje do dalších místností – ložnice, pracovny a dvou dětských pokojů.
Dočtěte tento článek jako člen klubu Můj dům.
Největší komunita majitelů rodinných domů v ČR. Připojte se i vy!
Jste členem? Přihlásit se.

Cena od
Zastavěná plocha
Užitná plocha
Provedeni domu
Dispozice
Kategorie domů
Typ střechy
Půdorys
Pozemek domu
Ateliér / architekt 







Zeptat se & odpovědět