Mladou čtvrť Červený kopec nad východočeským Trutnovem charakterizuje poměrně výrazný sklon k jihu a rozmanitá zástavba rodinných domů. Autor y několika z nich jsou Martina a Michal Rosovi. Před čtyřmi lety zde vyrostl další z rodinných domů, který nabízí krásné výhledy do kraje.

Prosklený dům, moderní dům, 4+1, od Rosa-architekt
Líbí se vám tento dům?
Profil domu
Cena od |
Zjistit cenu |
Zastavěná plocha |
157 m2 |
Užitná plocha |
209 m2 |
Provedeni domu |
Prosklený dům, moderní dům |
Dispozice |
4+1 |
Kategorie domů |
Zděná |
Typ střechy |
Sedlová |
Půdorys |
Obdélníkový |
Pozemek domu |
Svažitý |
Ateliér / architekt |
Rosa-architekt |
Na výsledný tvar domu měly zásadní vliv omezení daná tvarem pozemku a místními regulačními podmínkami. Přáním mladého páru rovněž bylo zachovat volnou západní část pozemku pro případnou dostavbu bazénu. Vznikl tak podlouhlý dům zasazený částečně do svahu, jehož základní tvar kvádru doplňuje v příčném směru pouze výrazná terasa.
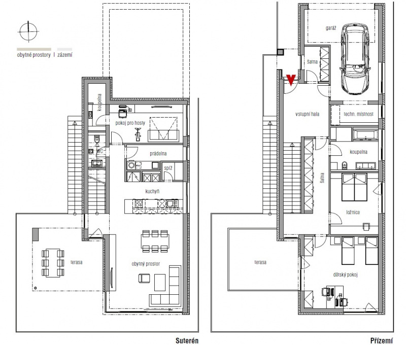
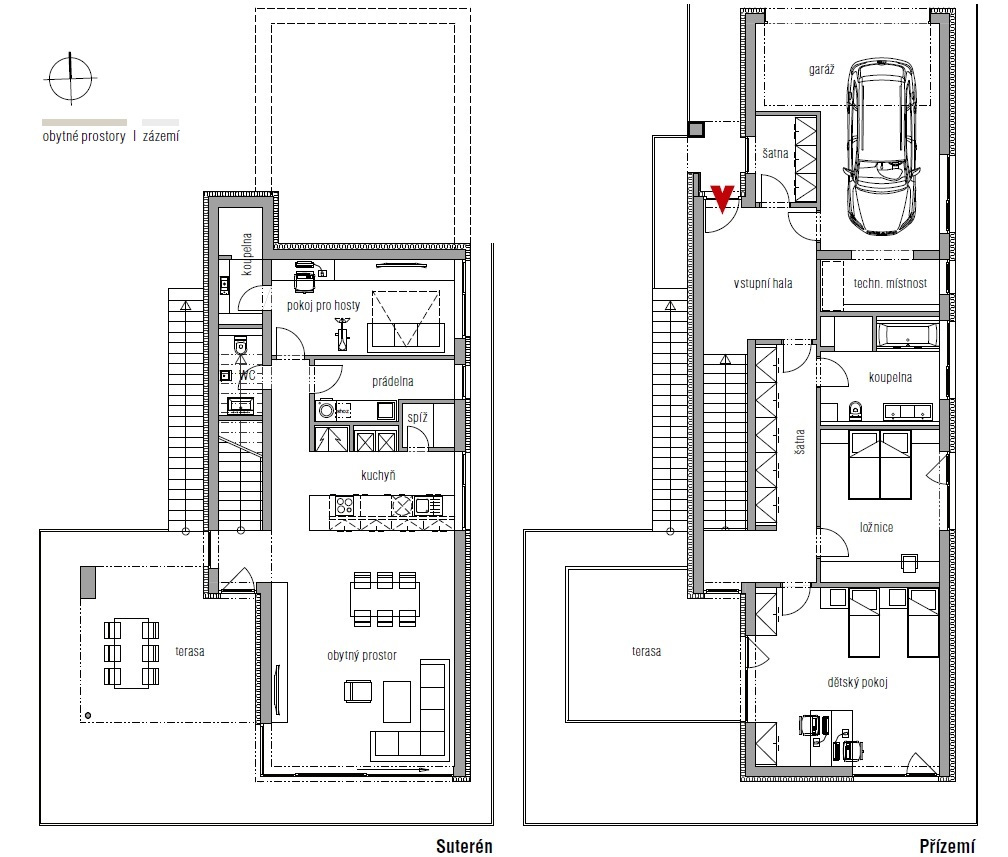
Základní hmota domu, navržená na půdorysu 6,2 x 22,2 m, má s ohledem na místní regulační plán sedlovou střechu a stojí na uliční čáře. Ze západní strany k ní přiléhá tubus schodiště, který ve své jižní části přechází do zastřešení terasy. Fasády sjednocuje bílá omítka, jejíž čisté nečleněné plochy prolamují pouze okna v jednoduché kompozici. Jediný barevný akcent tvoří šedé odstíny hliníkových okenních rámů, střešní krytiny a kovového zábradlí terasy.

Řešení tak trochu naruby
Zatímco většina domů mívá garáž i vstup v přízemí a po schodech se stoupá do ložnicového patra, zde je tomu přesně naopak. Do domu se vstupuje ze severu v nejvyšším bodě pozemku, kde se nachází i garáž s prostorem pro umístění sportovního vybavení a technická místnost. Na prostornou vstupní halu navazuje šatna. Do společné obývací části se sestupuje po přímém schodišti, které ze svých spodních stupňů nabízí průhled do zahrady.
Architekti se museli na jižně orientovaném pozemku s přístupem ze severu popasovat s třímetrovým výškovým rozdílem. „Nejsme přívrženci remodelace, která vyžaduje přemístění mnoha tun zeminy. Děláme jen drobné úpravy v okolí domu, například u terasy,“ říká Michal Rosa. „Úkolem architekta je vymyslet dům, který respektuje okolní krajinu, nikoli ji přizpůsobovat projektu.“

Na otázku, zda majitele domu nezaskočilo umístění garáže v horním podlaží domu, vrtí architekt Rosa hlavou: „Tohle byl již náš třetí dům v této lokalitě, kde jsme toto uspořádání použili, takže si nemyslím, že by klient byl nějak zvlášť překvapený.“
Majitelé k tomu dodávají: „V první fázi studie jsme oslovili dva architekty a jednoho stavebního inženýra. Manželé Rosovi nás od prvního kontaktu oslovili do detailu propracovanou architektonickou studií. S velkým očekáváním jsme svěřili důvěru do jejich rukou a rozhodně toho nelitujeme. Projekt rodinného domu splňuje naše veškeré požadavky na pohodlí, komfort a spokojený rodinný život.“

Úložných prostor není nikdy dost
Architekti Rosovi své klienty obvykle hned na začátku spolupráce žádají, aby ve svém starém bytě změřili délku všech skříní a komod. Výsledek vynásobený 1,5–2krát představuje zpravidla reálnou potřebu úložných prostor v novém domě.
I v tomto případě tradiční požadavek stavebníků na dostatek úložných prostor naplnili měrou vrchovatou. Kromě již zmíněného prostoru pro sportovní vybavení v rámci garáže a samostatné šatny upoutá pozornost především linie skříní lemující schodiště, která plní zároveň funkci schodišťového „zábradlí“. Další úložné prostory nabízí kuchyň s vysokými skříněmi vestavěnými do niky, americkou lednicí a varným ostrůvkem. Na kuchyňskou stěnu s vestavnými spotřebiči navazuje spíž.

Za kuchyní se nachází prádelna s vyústěním shozu na prádlo z horní koupelny. Ve spodním podlaží je rovněž pokoj pro hosty s koupelnou a toaletou s praktickým pisoárem.
Ložnicovou část domu umístěnou na úrovni vstupního podlaží tvoří ložnice rodičů, dětský pokoj, šatna a koupelna. Autoři při návrhu dispozice uvažovali i o možném budoucím rozdělení dětského pokoje na dva samostatné pokoje. Obytnou plochu tohoto podlaží doplňuje ještě terasa přístupná ze šatny a dětského pokoje, která současně tvoří zastřešení druhé terasy, navazující o patro níž na obývací pokoj. Jak z dětského pokoje, tak i z obývacího pokoje a z obou teras se obyvatelům naskýtá báječný výhled do poklidné krajiny. „Děkujeme architektům za dům, který vzbuzuje emoce,“ uzavírají své hodnocení spokojení majitelé.
▪ Užitná plocha: 209 m2
▪ Konstrukce: Obvodové stěny zděné z keramických bloků, stropy a schodiště železobetonové monolitické, zateplení polystyren 180 mm, fasádní povrch omítka
▪ Střešní krytina: Prefalz
▪ Okna a vstupní dveře: okenní systémy Schüco AWS 75. SI, vysoce tepelně izolovaný systém posuvných dveří se zdvihem Schüco ASS 70. HI, vstupní dveře Schüco ADS 75 HD. HI, předokenní žaluzie.
▪ Vytápění: podlahové vytápění, plynový kondenzační kotel, řízené větrání s rekuperací tepla
▪ Dodavatel: 3K stavby
▪ Dodavatel okenních systémů: PFT, spol. s r.o., Jičín, pobočka Vrchlabí
FOTOGALERIE:
Ing. arch. Michal Rosa (1975), Ing. arch Martina Rosová (1985)
Absolvent FA VUT Brno a absolventka FSV ČVUT společně pracují od roku 2008 ve vlastní architektonické a projekční kanceláři Rosa – Architekt. Zaměřují se na rodinné domy, veřejné i obytné stavby a interiéry.
Kontakt: www.rosa-architekt.cz
Foto: Petr Košťál
Cena od
Zastavěná plocha
Užitná plocha
Provedeni domu
Dispozice
Kategorie domů
Typ střechy
Půdorys
Pozemek domu
Ateliér / architekt
Zeptat se & odpovědět