Jednoduché geometrické tvary, hladké omítky a střízlivá šedo-bílá barevná kombinace na fasádě zpravidla naznačují zděnou stavbu inspirovanou industriální architekturou. Tento design ale sluší i moderní nízkoenergetické dřevostavbě postavené v malé obci ve středních Čechách.

Patrový dům, moderní dům, 6+1, od Gebas atelier architects s.r.o.
Líbí se vám tento dům?
Profil domu
Cena od |
Zjistit cenu |
Zastavěná plocha |
304,5 m2 |
Užitná plocha |
291 m2 |
Provedeni domu |
Patrový dům, moderní dům |
Dispozice |
6+1 |
Kategorie domů |
Dřevěná |
Typ střechy |
Sedlová |
Půdorys |
Atypický |
Pozemek domu |
Rovinatý |
Ateliér / architekt |
Gebas atelier architects s.r.o. |
Pozemek se nachází v rozrůstající se zástavbě rodinných domů. Stavebníci měli poměrně jasnou představu, co od svého nového domova očekávají, a také obec podobu stavby předurčila řadou regulativů.
Tím rozhodujícím byl ale požadavek na dřevostavbu, s jednou bytovou jednotkou pro čtyřčlennou rodinu, kde bude pohodlné a dostatečně velké zázemí, každé dítě bude mít svůj pokoj a vlastní šatnu. K dalším úkolům pro architekta patřily samostatná klidová ložnicová část pro rodiče, velký společný obývací prostor s terasou, garáž pro dva automobily, přístupná z exteriéru (nespojená dveřmi přímo s domem), a otočné místo pro auto před garáží na zahradě. Při plánování se inspirovali také navštívenými realizacemi.

„Měli jsme možnost vidět již postavený podobný dům od architekta Miroslava Gebase a líbil se nám, a proto jsme si vybrali toto řešení,“ vysvětlují majitelé. „Projekt jsme konzultovali s firmou KD Haus, která jej stavěla, a také jsme jej přizpůsobili místním regulativům.“ Těch byla celá řada, týkaly se tvaru domu, sedlové střechy, míry zastavěnosti, výšky zástavby a dokonce i podoby oplocení.
Miroslav Gebas: Akustika dřevostaveb bývala předmětem stížností, dnes je situace jiná
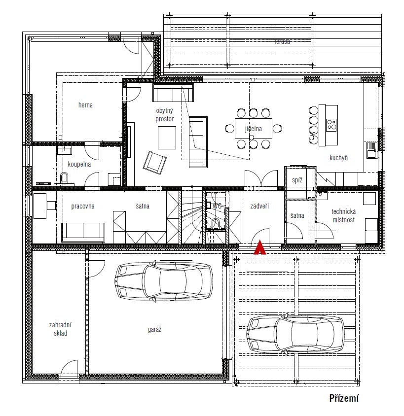
Dispozice: dost místa pro všechny
Architektonické řešení vychází ze slunné orientace pozemku. Obytný prostor je orientován převážně na jihozápad, do domu se vchází z opačné strany – ze severovýchodu přes kryté parkovací stání. Na parkovací stání navazuje garáž pro dva automobily, ze severovýchodu připojená k domu. Zádveří je součástí dispozičního traktu zázemí, který probíhá podél severovýchodní fasády – v jednom pásu je zde šatna, technická místnost, spíž, toaleta, schodiště do patra, šatna a pracovna (přístupná z obývacího pokoje).
Ze zádveří se přímo vchází do společného obývacího prostoru s kuchyní, jídelnou a sezením, který zaujímá většinu přízemí – neplýtvalo se místem na žádné zbytečné chodby. Má výhled na jihozápad a prosklenou stěnou přechází v terasu s pergolou. Zajímavým prvkem dispozice je velká samostatná herna pro děti, umístěná vedle obývacího pokoje na východním nároží domu. Má výhled do zahrady velkou rohovou prosklenou stěnou.

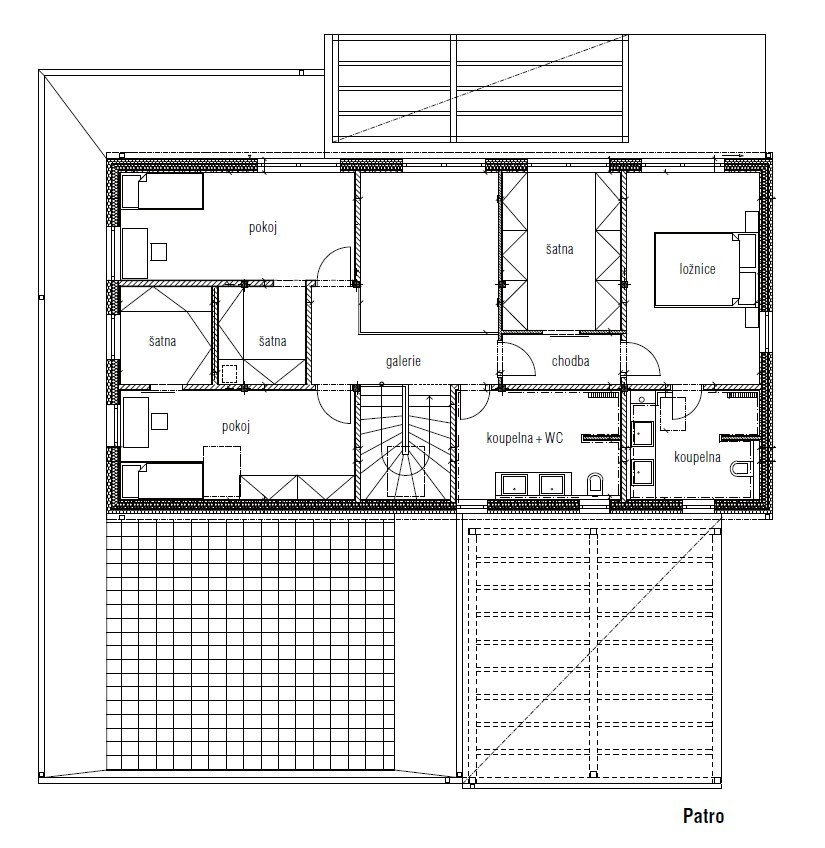
Společná obývací část se otevřeným schodištěm rozšiřuje na prosklenou galerii v podkroví. To je rozděleno na část pro děti a zónu rodičů s velkorysou šatnou, hlavní ložnicí a rodičovskou koupelnou.
Na technologii se nešetřilo
Dům byl navržen v nízkoenergetickém standardu, ale zateplení odpovídá náročnějším požadavkům. Sloupková dřevěná konstrukce (two-by-four) má sendvičové obvodové stěny opláštěné deskami Fermacell a zateplené izolací ze 160 mm minerální vlny a 100 mm polystyrenu.
Do exteriéru i do interiéru stavebníci vybírali kvalitní materiály s velkou trvanlivostí a s minimální údržbou – na fasádě bylo použito obložení z cementotřískových desek, hliníková okna, v interiérech keramické dlažby a vinylové podlahy. Architektonický návrh zajišťuje, že dům bude dlouho poskytovat příjemné bydlení s levným provozem a bude mít dlouhou fyzickou i estetickou životnost.

▪ Užitná plocha: 291 m2 (včetně garáže a skladu)
▪ Konstrukce: betonové základové pasy se ztrac. bedněním, betonová podkladní deska, montovaná dřevostavba se sloupkovou konstrukcí two-by-four, dřevěné trámové stropy, dřevěný krov, sedlová střecha s krytinou Bramac Tegalit, plochá střecha s fóliovou krytinou, parkovací stání a pergola – dřevěná trámová konstrukce
▪ Obvodový plášť: vnitřní omítka, Fermacell desky, nosné latě (instalační mezera 40 mm), parozábrana, nosné sloupky z jehličnatého dřeva 60/160 mm, izolace z minerální vlny 160 mm, desky Fermacell, izolace EPS 70 F tl. 100 mm, povrch fasády tenkovrstvá omítka na perlince, nebo obklad
▪ Výplně otvorů: okna hliníková s izolačními trojskly, předokenní žaluzie na elektrický pohon, dveře dřevěné lakované do obložkových zárubní, dřevěné posuvné a skleněné atypické
▪ Vytápění a technologie: podlahové vytápění, zdroj energie plynový kotel
▪ Dodavatel: KD Haus, www.kdhaus.cz
FOTOGALERIE:
Autorizovaný architekt, vystudoval střední průmyslovou školu stavební, obor zedník, a Fakultu architektury VUT Brno. Hned po absolvování studií založil vlastní architektonickou kancelář Gebas atelier architects, věnuje se převážně navrhování rodinných domů. Hlavní důraz klade na individuální a komplexní přístup ke klientovi a ke každému projektu od studie až po detaily vybavení interiéru.
Kontakt: Gebas atelier architects s.r.o. www.gebasatelier.cz
Foto: ateliér Gebas
Cena od
Zastavěná plocha
Užitná plocha
Provedeni domu
Dispozice
Kategorie domů
Typ střechy
Půdorys
Pozemek domu
Ateliér / architekt
Zeptat se & odpovědět