Líbí se vám tento dům?
Objednejte si
bezplatný Katalog a zjištěte více
o domech firmy Thermo plus
Profil domu
Cena od |
od 5 000 000 Kč
Hypotéka: měsíční cena od
21 339 Kč
|
Zastavěná plocha |
119.04m2 |
Podlahová plocha |
125.60m2 |
Dispozice |
5+1 |
Počet podlaží |
Patrový dům |
Typ střechy |
Sedlová |
Kategorie domů |
Zděná |
Půdorys |
Obdélníkový |
Garáž/ garážové stání |
Garáž |
Dodavatel |
Thermo plus |
Popis a recenze redakce
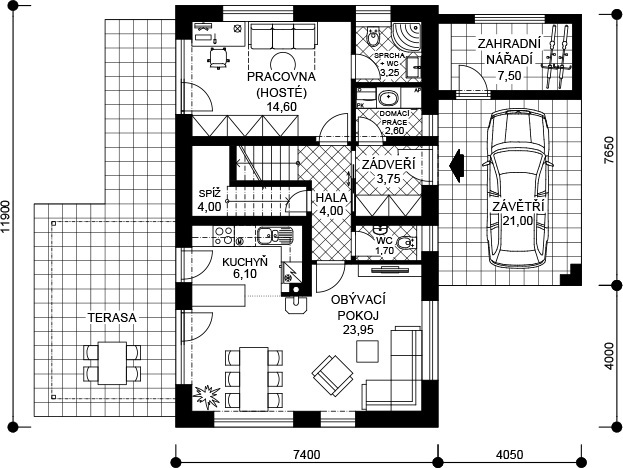
Tadeáš je přízemní rodinný dům s využitým podkrovím se sedlovou střechou o sklonu 44°. Dům není podsklepen. Součástí domu může být přistavěné vstupní závětří, sloužící zároveň jako kryté stání pro osobní automobil + sklad zahradního nářadí a jízdních kol, zastřešené plochou střechou.
V přízemí je vstupní zádveří, hala se schodištěm do podkroví, kuchyň + obývací pokoj, pracovna (pokoj pro hosty) se samostatnou sprchou + WC, místnost na domácí práce, WC + spíž. Z obývacího pokoje, kuchyně a pracovny je vstup na terasu. V podkroví je ložnice se šatnou, dva pokoje, lázeň a WC.
Dům je možné umístit na rovinatém nebo mírně svažitém pozemku. Předpokládá se orientace hlavního hřebene domu ve směru jihovýchod – severozápad. Dům je vhodné orientovat na parcele tak, aby hřeben střechy byl kolmo na osu přístupové komunikace.
Uvedená cena je bez krytého stání.
Dům tradičního vzhledu s moderním designem najde využití jak na vesnici, tak ve městě. Nabízí praktické bydlení až pětičlenné rodině. ... Promyšlená dispozice zahrnuje oblíbený obývací pokoj ve tvaru L, pracovnu, pohodlné zázemí a přistavěné kryté parkovací stání. Pracovnu lze využít pro vícegenerační bydlení.
Klady
nadčasová architektura
promyšlená dispozice
pracovna
2 koupelny + samostatné WC
šatna
kryté parkovací stání
možnost vícegeneračního bydlení
Zápory
výstup z kuchyně na terasu zbytečně zmenšuje využitelnou plochu
Chcete znát názor redakce?
Přečtěte si ji po přihlášení.
Aktivovat členství ZDARMAJste členem? Přihlásit se.
Objednejte si
bezplatný Katalog a zjištěte více
o domech firmy Thermo plus
Podobné domy na klíč
Elegantní architektura je vhodná především do nové nebo prvorepublikové městské čtvrti. Dům nabízí nadstandardně velký společný obývací prostor, pohodlné rodičovské apartmá i pohodlné dětské pokoje. Je pamatováno na dostatečné zázemí pro pětičlennou rodinu, včetně úložného prostoru.
Dům pro čtyřčlennou rodinu je řešen s ohledem na pohodlí a soukromí. Prosvětlený společný obývací prostor je plně orientován do klidové části zahrady. V ložnicovém podlaží se děti a rodiče navzájem neruší, k dispozici jsou dvě velké koupelny a z každého pokoje je výstup na terasu. Výrazná moderní architektura vynikne především v nové zástavbě.
Nadčasový dům pro pohodlné a praktické bydlení. K benefitům patří velký společný obývací prostor přehledně uspořádaný do tvaru L, krytá terasa a hodně úložného prostoru. Jako jeden z mála katalogových domů zahrnuje i garáž pro dva automobily.
Dům dobře zapadne do města i na venkov a uspokojí nároky na moderní bydlení pro čtyřčlennou rodinu. Velký společný obývací prostor v přízemí je promyšleně rozdělen na kuchyňskou část a sezení, ke kladům patří také chráněná rohová terasa, pohodlné zázemí a dostatek úložného prostoru.
Velmi malá zastavěná plocha umožňuje výstavbu na malém pozemku, přitom v rámci účelné dispozice dům nabízí moderní komfort s nízkými náklady na provoz domácnosti. Výhodou je oddělená společná obývací část a ložnicová zóna a také dobré prosvětlení podkroví – má jak klasická fasádní, tak i střešní okna.
Díky možnosti zvolit různý tvar střechy dům dobře zapadne do městského i venkovského prostředí. Dispozice nabízí nadstandardní komfort pro až pětičlennou rodinu – velké pokoje a pohodlné zázemí včetně potřebného úložného prostoru.
Dům poskytne praktické bydlení se zázemím odpovídajícím potřebám čtyřčlenné rodiny. Má krásně prosvětlený interiér. Díky malé zastavěné ploše a úsporné dispozici s minimem chodeb se toto bydlení nabízí za výhodnou cenu, s nízkými provozními náklady. Výhodou je možnost zvolit si tvar střechy a také přistavět garáž nebo kryté parkovací stání.
Jednoduchá architektura zapadne do jakékoliv zástavby. Předpokládá se orientace hlavního hřebene domu ve směru severozápad–jihovýchod. Dům poskytne pohodlné a praktické bydlení čtyř- až pětičlenné rodině, s nízkými provozními náklady. Má účelně využitou dispozici, lze přistavět garáž s pultovou střechou nebo přístřešek pro auto.
Těžištěm domu je velký společný obývací prostor s komfortní kuchyní a prosklenou stěnou do zahrady. V přízemí je i malá pracovna, ložnice se nacházejí v patře. Dispozice obsahuje pohodlné zázemí i úložné prostory, přitom nezabírá velkou zastavěnou plochu.
Najdete tu vše, co by v domě pro pětičlennou rodinu mělo být – v přízemí je společná obývací část propojená se zahradou, v podkroví tři dětské pokoje a ložnice rodičů. Všude dostatek úložného prostoru, výhodou je garáž propojená se zádveřím a také domácí pracovna.
V přízemí se nachází prakticky řešený obývací pokoj s kuchyní ve tvaru písmene L, ložnice rodičů se šatnou, hygienické a technické zázemí. Děti mají k dispozici dva prostorné pokoje a vlastní koupelnu v podkroví. Dispozice je vyvážená a přehledná, neplýtvá místem. Dům je vhodné orientovat na parcele tak, aby hřeben střechy byl rovnoběžný s osou přístupové komunikace. Předpokládá se orientace hlavního hřebene domu ve směru východ–západ.
Podobné domy od architektů
Moderní rodinný dům s plochou střechou se postupně zanoří do zeleně, která jej obklopuje. Stavba těží z kontrastu (a souladu) surového pohledového betonu s dřevěnými plochami. Pozemek je domem rozdělen do tří zón s odlišnou náladou. Architekt Aleš Jeřábek, autor návrhu, uvádí: „Rozlehlý pozemek, spousta prostoru, ale také žádné...
Rodina Benešova bydlela v bytě na rušné ulici. Hned, jak jim to jejich finanční situace dovolila, se rozhodli koupit stavební pozemek a postavit si vlastní rodinný dům v klidné části města. Manželé Benešovi dlouho toužili po vlastním domě. Pár let si však na něj museli počkat. Spořili si peníze nejdříve na koupi pozemku, a když našli ten správný, rozhodli se...
Domníváte se, že vlastní bydlení je pro mladé lidi čím dál nedostupnější? Příklad pana Martina svědčí o opaku. Již ve svých třiceti letech si splnil svůj sen a bydlí ve vlastním domě. K novostavbě ho přivedla touha osamostatnit se. Pan Martin bydlel u rodičů a velmi ho lákala představa vlastního bydlení. Společně s přítelkyní se rozhlédli po možnostech,...
Petra a Tomáš Kollárovi se rozhodli pro velkou životní změnu. Chtěli poskytnout sobě a svým dvěma synům více prostoru a lepší životní prostředí, než jaké měli v Hnilčíku v Košickém kraji. Rozhodli se tedy opustit městský život a přestěhovat se do klidnější oblasti města Novoveská Huta. Původně bydleli v třípokojovém bytě, ale když se rodina...
Nový majitel se rozhodl vrátit stavení poničenému různými zásahy jeho historický vzhled. Existovala ale jen jedna dobová fotografie. Architekt si s přestavbou rodinného domu ve středních Čechách poradil natolik dobře, že kromě majitelů jsou spokojeni i památkáři. Odstraněním různých po léta realizovaných amatérských pokusů vylepšit bydlení,...
Vilka v malém městě na Berounce kousek od Prahy si současné majitele získala svou polohou v příjemné prvorepublikové čtvrti a nepříliš nápadným, ale osobitým výrazem architektury třicátých let. Rekonstrukce oživila její původní půvab a obohatila ji o nové prostory a současný komfort. Zděný dům...
To, že mladá rodina hledala cestu, jak si splnit sen o vlastním domě se zahradou, není ničím výjimečným. Ale rozhodnutí pro spolupráci s designérkou, která dala budoucímu domu celkovou tvář, je zcela originální a neobvyklé. Výsledkem je útulný dům s jednoduchou architekturou přesně odpovídající jejich představám i potřebám každodenního života....
Paní Klára bydlela s manželem a jejich dvěma dětmi společněs rodiči v rodinném domě. Necítili se zde komfortně a to je přivedlo k velkému životnímu kroku – ke stavbě vlastního domu. Nejdříve uvažovali o přístavbě k rodičovskému domu. S tím však rodiče nesouhlasili. Zvažovali, zda mají v domě s rodiči zůstat, nebo dát přednost většímu...
Pracovně vytížená rodina se třemi dětmi se rozhodla zakotvit v jedné ze starších pražských čtvrtí. Zakoupili řadový dům ze sedmdesátých let minulého století, který splňoval jejich představy o velikosti a příjemné lokalitě, ale vyžadoval celkovou rekonstrukci. Obrátili se na studio No Architects, které posunulo kvalitu bydlení o několik...
Jásavý odstín okenních a dveřních rámů optimisticky září prvorepublikovému domu do nové etapy. Rodinný dům v malebném údolí na západním okraji Prahy získal po citlivé rekonstrukci novou dispozici, lepší propojení se zahradou a možnost pohodlného celoročního využití. Drobnou rekreační stavbu si rodina majitelů po čtyři generace hýčkala,...
Patrik Bauer se se svou pětičlennou rodinou rozhodli opustit malý byt v rušném centru Prahy a přesunout se do klidné obce Borek ve Středočeském kraji. Vlastní dům nebyl původně jejich snem, spíše se jednalo o výsledek životního vývoje. Proč se rozhodli stavět na klíč a jak se jim bydlí? Rozhodnutí pro výstavbu vlastního domu...
Manželé Martina a Lukáš se po návratu ze zahraničí rozhodli zůstat na Slovensku, založit si rodinu a postavit si dům. Jak se jim to podařilo? Manželé Martina i Lukáš od mala vyrůstali na venkově. Byli zvyklí na život v rodinném domě se zahradou. Část svého života strávili v zahraničí, a když se vrátili...
Poslat vzkaz
PROFIL FIRMY
Thermo plus
54101, Ostrčilova 930
Jak postavit skvělý dům
krok za krokem?
To se dozvíte zdarma v našem seriálu. Stačí se registrovat k e-mailovému odběru a získáte:
- 165dílný e-mailový seriál nabitý postupy
- Škola stavění krok za krokem
- Zařizování interiérů a relaxace doma
- Ověřené rady od odborníků
Cena od
Zastavěná plocha
Podlahová plocha
Dispozice
Počet podlaží
Typ střechy
Kategorie domů
Půdorys
Garáž/ garážové stání
Dodavatel