Líbí se vám tento dům?
Objednejte si
bezplatný Katalog a zjištěte více
o domech firmy LUCERN dřevostavby s.r.o.
Profil domu
Cena od |
od 6 800 000 Kč
Hypotéka: měsíční cena od
29 021 Kč
|
Zastavěná plocha |
151.00m2 |
Podlahová plocha |
178.00m2 |
Dispozice |
5+kk |
Počet podlaží |
Patrový dům |
Typ střechy |
Plochá |
Kategorie domů |
Dřevěná |
Půdorys |
Atypický |
Garáž/ garážové stání |
Neuvedeno |
Dodavatel |
LUCERN dřevostavby s.r.o. |
Popis a recenze redakce
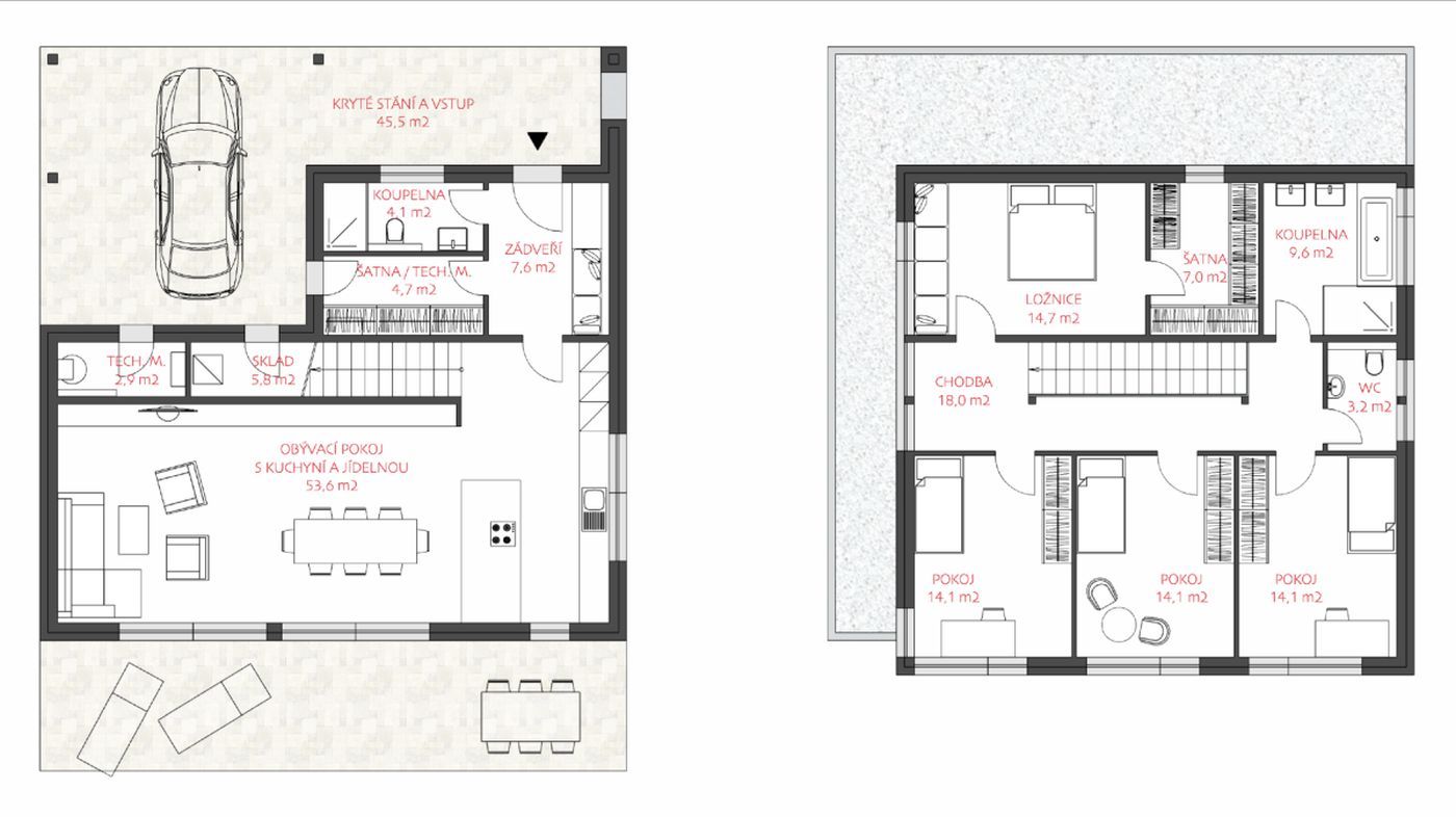
Tento individuálně navržený dvoupodlažní dům o dispozici 5 + kk byl postaven v pasivním standardu, s kvalitním zateplením a rekuperací. Díky důmyslnému uspořádání a užitné ploše 177 m2 nabízí dostatek místa i pro vícečlennou rodinu.
Celý dům je vybavený v jednoduchém a minimalistickém stylu, kde jsou velmi šikovně vyřešeny úložné prostory a tak interiér působí velmi ... vzdušným dojmem. V přízemí najdeme velký obývací pokoj s jídelnou a kuchyní, dále pak technickou místnost, prádelnu, šatnu a koupelnu. Ve druhém podlaží se nachází na jedné straně tři pokoje a na druhé straně ložnici se šatnou a koupelnu + WC. O úsporné vytápění se stará rekuperace ZEHNDER + TČ IVT voda/vzduch.
Klady
Moderní nadčasový vzhled
Nechybí šatna, sklad, technická místnost, samostatné WC
Velkorysý obývací prostor s venkovní terasou
Zápory
V patře by mohla být ještě využita terasa
Chcete znát názor redakce?
Přečtěte si ji po přihlášení.
Aktivovat členství ZDARMAJste členem? Přihlásit se.
Objednejte si
bezplatný Katalog a zjištěte více
o domech firmy LUCERN dřevostavby s.r.o.
Podobné domy na klíč
Dřevostavba s jednoduchou nadčasovou architekturou byla navržena přesně na míru potřebám stavebníků a pozemku v krásné lokalitě. Vyniká přehlednou účelnou dispozicí, pohodlným zázemím a energetickou úsporností. Na malé zastavěné ploše nabízí bydlení pro až
šestičlennou, třígenerační rodinu.
Elegantní pasivní dřevostavba byla navržena tak, aby maximálně využila potenciál pozemku a majitelům poskytla dostatek prostoru s ohledem na měnící se potřeby rodiny v budoucnu i cenovou dostupnost.
Celý dům je vybaven ve světlých tónech, a tak interiér působí velmi vzdušným dojmem. Kuchyně spojená s obývacím pokojem a galerií tvoří moderní otevřený prostor, kterému na světlosti přidává velkoformátové posuvné okno spojující dům se zahradou. V obývacím pokoji nechybí krb. V přízemí dále najdeme pracovnu, pokoj se šatnou a WC.
Obě podlaží propojuje otevřené schodiště s bukovou povrchovou úpravou a prosklenou stěnou. Vystoupá se po něm do chodby, která spojuje prostor s galerií. Galerie v patře je opticky propojena s přízemím, sklo místo zábradlí tento efekt ještě umocňuje. Ve druhém podlaží najdeme také dva dětské pokoje, ložnici se šatnou, WC, koupelnu a komoru.
Dvojdům nabízí pohodlné bydlení pro dvě čtyřčlenné rodiny a uspoří stavební náklady i náklady na pozemek. Typově se hodí do městské čtvrti. Promyšlená dispozice je symetrická podle středové dělicí stěny a zaujímá poměrně malou zastavěnou plochu. Každý byt má prostorné zádveří, oblíbený obývací pokoj ve tvaru L, v patře pohodlné ložnice a velkou koupelnu.
Dvojdům nabízí pohodlné bydlení pro dvě čtyřčlenné rodiny a uspoří stavební náklady i náklady na pozemek. Dispozice jsou symetrické podle středové dělicí stěny, obytné místnosti jsou orientovány na opačné strany, takže je zajištěno soukromí a rodiny se navzájem neruší. V přízemí se nachází oblíbený obývací pokoj ve tvaru L s prostornou kuchyní, v podkroví pohodlné ložnice a velkorysá rodinná koupelna.
Tato dvoupodlažní vilka se hodí především do městské čtvrti. Je výjimečná tím, že nabízí dvě zcela samostatné bytové jednotky. Výhodou je úspora nákladů na pozemek i samotnou stavbu. Každé podlaží má komfortní dispozici pro čtyřčlennou rodinu s velkým společným obývacím prostorem, krytou terasou a velkými dětskými pokoji. Ve vstupním prostoru je však poměrně málo místa.
Dispozice 115 m2 každé bytové jednotky dvojdomu Duo 4-230 je dělena do obývacího prostoru s kuchyní, tří pokojů, koupelny, šatny a nezbytné technické místnosti s WC a prádelnou. Nedílnou součástí každého bytu je navíc garáž.
Podobné domy od architektů
Některé sny si na své naplnění musí počkat. První inspirace přišla před několika lety, když se manželská dvojice rozhodla stavět. Když se nyní ke svému snu vrátili, věděli přesně, co chtějí. Výsledkem je moderní patrová dřevostavba na západ od Prahy, navržená na míru jejich současnému životnímu stylu. Na počátku byla touha...
Z bungalovu na slunném pozemku na okraji většího středočeského města během naší návštěvy přímo vyzařovala útulná „domácká“ atmosféra a vztah k přírodě. To byly také hlavní motivy, které určily podobu panelové dřevostavby. Dřevostavbu si rodina s dospívající dcerou vybrala především proto, že upřednostňují přírodní materiály...
Rozlehlý pozemek v parku v sousedství zámeckého rybníka patřil rodině po generace, současnému majiteli však trvalo několik let, než jej získal do svého výlučného vlastnictví. Dalších pár let přemýšlel, zda se pustit do rekonstrukce staré vily, která byla v zuboženém stavu, nakonec se ale rozhodl nahradit ji moderní novostavbou a vytvořit tu nový domov nejen...
Vysoké stromy, vůně dřeva a jehličí. Les je uklidňujícím místem pro procházky, ale v Kersku v něm můžete komfortně bydlet. Manželský pár si tu nechal navrhnout a postavit bezbariérovou dřevostavbu, kterou objímá příroda a ocelový prstenec. Manželé přes osadu Kersko jezdívali řadu let na návštěvu k prarodičům. Polabskou krajinu dobře...
Tato moderní dřevostavba ve středních Čechách je důkazem, že spojení funkčnosti, estetiky a udržitelnosti nemusí být jen snem. Pro rodinu s dětmi školního věku bylo v životní perspektivě zásadní zdravé bydlení v souladu s jejich životním stylem. Při rozhodování o stavbě domu byla proto jasnou volbou energeticky úsporná dřevostavba...
Atypická moderní dřevostavba na předměstí Hradce Králové byla navržena jako rodinný dům pro čtyřčlennou rodinu s nadstandardním komfortem. Dokonale splnila přání stavebníků. Přáli si bezbariérové bydlení, moderní design, velkou zahradu a dostatečně velké zázemí pro rodinu s dětmi. Nesměla chybět garáž a ani bazén. Přáli si...
Na okraji města Benátky nad Jizerou realizuje společnost LUCERN moderní dřevostavby výjimečný developerský projekt, který propojuje moderní architekturu, šetrnost k životnímu prostředí a blízkost přírody. První dokončený rodinný dům slouží jako vzorový a můžete tu vidět ukázku vysoké kvality zpracování, chytrého dispozičního řešení...
V Králově Dvoře můžete navštívit nejmodernější vzorovou dřevostavbu společnosti Lucern dřevostavby. Na vlastní oči se tu seznámíte s vizí bydlení pro čtyřčlennou rodinu, kde se útulné prostředí snoubí s komfortem a technologickou dokonalostí. Jedná se o variaci na typový dům LUCERN 176 s úpravami velikostí...
Mladý pár si přál vybudovat zázemí v hezkém a zdravém prostředí, aby jejich děti vyrůstaly v přírodě a v klidu. Proto si vybrali pozemek v malé obci na Benešovsku a rozhodli se pro dřevostavbu na klíč. Krásná kopcovitá krajina s mnoha lesy a rybníky, navíc kousek od Slapské přehrady, představuje jednu...
Na návštěvu do hezké nové čtvrti v blízkosti Průhonického parku jsme se vydali na pozvání čtenářky, která našla inspiraci pro stavbu domu v našem časopise. Podařilo se jim společně s manželem vybudovat stavbu, která je perfektně sladěna se svými obyvateli, se zahradou i s okolím. Manželský pár s dospívající dcerou se přestěhoval za pracovní nabídkou ze...
Krásné prostředí v okolí Berounky, klid, příroda a zároveň dobré spojení do hlavního města láká mnoho rodin ke stavbě domu. Podobné motivy měla i rodina se dvěma dětmi, kterou jsme navštívili. Záměr bydlet v souladu s přírodou dovedli až do důsledků – rozhodli se pro dřevostavbu. [lock] Našli velký, mírně svažitý slunný pozemek v nové okrajové...
Na pozemku v příjemné vilové čtvrti středočeského města stál starší zděný dům. Noví majitelé původně plánovali jeho rekonstrukci, nakonec si ale na jeho místě postavili moderní dřevostavbu. Svého rozhodnutí určitě nelitují. Rodina se dvěma dětmi si přála komfortní bydlení, které nabídne dostatek prostoru pro bydlení i koníčky a také moderní...
Poslat vzkaz
PROFIL FIRMY
LUCERN dřevostavby s.r.o.
14700, Údolní 280/15
Jak postavit skvělý dům
krok za krokem?
To se dozvíte zdarma v našem seriálu. Stačí se registrovat k e-mailovému odběru a získáte:
- 165dílný e-mailový seriál nabitý postupy
- Škola stavění krok za krokem
- Zařizování interiérů a relaxace doma
- Ověřené rady od odborníků
Cena od
Zastavěná plocha
Podlahová plocha
Dispozice
Počet podlaží
Typ střechy
Kategorie domů
Půdorys
Garáž/ garážové stání
Dodavatel