Líbí se vám tento dům?
Objednejte si
bezplatný Katalog a zjištěte více
o domech firmy HK-DŘESTAV s.r.o.
Profil domu
Cena od |
od 4 850 714 Kč
Hypotéka: měsíční cena od
20 702 Kč
|
Zastavěná plocha |
162.00m2 |
Podlahová plocha |
126.44m2 |
Dispozice |
4+kk |
Počet podlaží |
Bungalov |
Typ střechy |
Valbová |
Kategorie domů |
Dřevěná |
Půdorys |
Do písmene L |
Garáž/ garážové stání |
Garážové stání |
Dodavatel |
HK-DŘESTAV s.r.o. |
Popis a recenze redakce
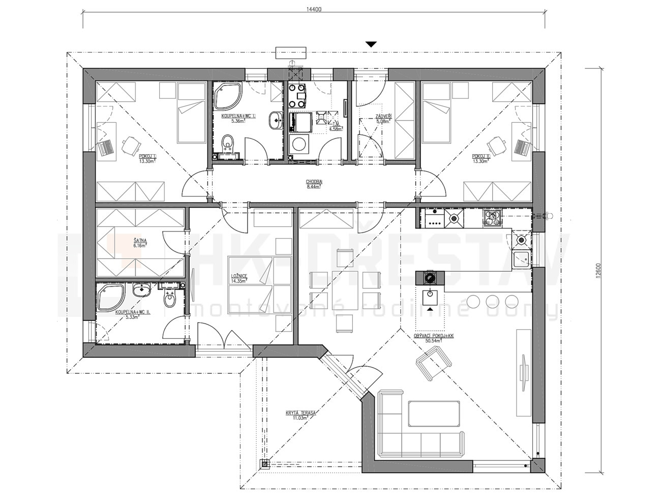
Navenek jednoduchý nenápadný bungalov s valbovou střechou, uvnitř pohodlné bydlení pro až pětičlennou rodinu s veškerým zázemím. Příj... emný je zejména velký společný obývací prostor, kryté parkování přímo propojené s domem i chráněná rohová terasa. Bezbariérové bydlení se přirozeně propojuje se zahradou.
Klady
výhodný poměr cena-výkon
energeticky úsporný provoz
velký společný obývací prostor
komfortní ložnice rodičů s vlastní šatnou a koupelnou
chráněná rohová terasa
šatna, tech. místnost
kryté parkování přímo propojené s domem
bezbariérové bydlení
Zápory
malý pokoj pro 2 děti
Chcete znát názor redakce?
Přečtěte si ji po přihlášení.
Aktivovat členství ZDARMAJste členem? Přihlásit se.
Objednejte si
bezplatný Katalog a zjištěte více
o domech firmy HK-DŘESTAV s.r.o.
Podobné domy na klíč
Nadstandardní bydlení nabízí pohodlnou a přehlednou dispozici, velký užitný prostor a komfortní zázemí. Dům byl realizován v pasivním standardu a je vybaven nejmodernějšími technologiemi, což přináší nízké provozní náklady.
Oblíbená varianta dispozice ve tvaru písmene L je přehledně rozdělena na společnou obývací část a ložnicovou zónu, obytné místnosti mají výstup na terasu s pergolou. Dům poskytuje hodně prostoru i veškeré potřebné zázemí včetně domácí pracovny.
Obdélníkový tvar se sedlovou střechou krásně zapadá do přírodního prostředí a napomáhá celkové přehlednosti a úspornosti domu. Dispozice uspokojí všechny potřeby rodiny se dvěma dětmi, rodiče mají vlastní uzavřené apartmá. Dům nabízí velký společný obývací prostor a bezbariérový výstup ze všech pokojů do zahrady.
Kombinace sedlové a ploché střechy spojuje tradiční a moderní vzhled a harmonicky zapojuje dům do zástavby na okraji obce. Oblíbená dispozice ve tvaru písmene L je koncipována přehledně a velkoryse – jednu část zaujímá denní zóna, druhou ložnicová část, všechny pokoje mají soukromí a bezbariérový výstup na terasu. Dům poskytuje komfortní zázemí.
Atypická stavba krásně zapadá do prostředí u lesa a působí útulným dojmem. Komfortní dispozice je přehledně rozdělena na denní zónu (velkorysý společný obývací prostor) a ložnicovou část, všechny obytné místnosti mají přímý a bezbariérový výstup na krytou terasu. Technické řešení využívá moderní energeticky úsporné technologie.
Tento prostor je krásně světlý hlavně díky spoustě velkých oken, ze kterých se vchází na terasu a následně do zahrady. Na obývací pokoj navazuje tzv. rodičovský blok tvořený ložnicí, šatnou a koupelnou rodičů. Tuto část domu a druhou část odděluje dlouhá chodba, která vede skrz celý dům a která je ozvláštněna tapetou s dekorem stromů.
V druhé části domu je velký dětský pokoj, který se do budoucna bude rozdělovat na dva dětské pokoje, až děti vyrostou a budou vyžadovat soukromí. Majitelé mají krásnou a pěstěnou zahradu, a protože tento dům stojí na kopci, nabízí krásný výhled na Kutnou Horu.
Jednopodlažní dům o dispozici 4 + kk je velmi zajímavě řešený. Společný prostor obývacího pokoje, kuchyně a jídelny a další tři pokoje disponují přímým vstupem do zahrady. Dále jsou součástí domu samozřejmě koupelna a WC + technická místnost. Zajímavě řešený interiér s designovými prvky a otevřením prostoru do krovu a zčásti zastřešenou terasou je už jen třešničkou na dortu, stejně jako pokročilé technologie pro vytápění: podlahový systém REHAU, TČ IVT, rekuperace ZEHNDER.
Tento individuálně navržený dům o dispozici 4+kk má půdorys tvaru L se zapuštěnou terasou s přírodním bazénem. Po vstupu do domu se vchází do zádveří a následně do dlouhé chodby. Po levé straně domu se pokračuje do obytného prostoru tvořící obývací pokoj s kuchyní a jídelním koutem propojeným s terasou a zahradou, následují další tři pokoje. Na pravé straně domu se nachází koupelna s velkým oknem do zahrady, šatna, druhá koupelna s WC a technická místnost.
Nadčasový bungalov se sedlovou střechou je určen pro pohodlné bydlení čtyřčlenné rodiny. Kromě velkého společného obývacího prostoru tu najdete překvapivě velkou ložnici a prostorné dětské pokoje, které mají dokonce vlastní krytou terasu. Také zázemí odpovídá požadavkům na moderní komfort.
Půvabná dřevostavba zajímavým způsobem ztvárňuje tradiční archetyp domu se sedlovou střechu. Poskytne praktické bezbariérové bydlení čtyřčlenné rodině s odpovídajícím zázemím, Určitě si oblíbí atraktivní společný obývací prostor s okny do 3 stran a vysokým stopem. Benefit nabízí i garáž propojená s domem.
Dům jednoduchého moderního tvaru je určen pro pohodlné bezbariérové bydlení čtyřčlenné rodiny s patřičným zázemím. Má nadstandardně velké zádveří a společný obývací prostor v oblíbeném tvaru L. Ke kladům patří i pohodlná rodinná koupelna a kryté parkovací stání navazující na vstup do domu.
Podobné domy od architektů
Z bungalovu na slunném pozemku na okraji většího středočeského města během naší návštěvy přímo vyzařovala útulná „domácká“ atmosféra a vztah k přírodě. To byly také hlavní motivy, které určily podobu panelové dřevostavby. Dřevostavbu si rodina s dospívající dcerou vybrala především proto, že upřednostňují přírodní materiály...
Rozlehlý pozemek v parku v sousedství zámeckého rybníka patřil rodině po generace, současnému majiteli však trvalo několik let, než jej získal do svého výlučného vlastnictví. Dalších pár let přemýšlel, zda se pustit do rekonstrukce staré vily, která byla v zuboženém stavu, nakonec se ale rozhodl nahradit ji moderní novostavbou a vytvořit tu nový domov nejen...
Vysoké stromy, vůně dřeva a jehličí. Les je uklidňujícím místem pro procházky, ale v Kersku v něm můžete komfortně bydlet. Manželský pár si tu nechal navrhnout a postavit bezbariérovou dřevostavbu, kterou objímá příroda a ocelový prstenec. Manželé přes osadu Kersko jezdívali řadu let na návštěvu k prarodičům. Polabskou krajinu dobře...
Tato moderní dřevostavba ve středních Čechách je důkazem, že spojení funkčnosti, estetiky a udržitelnosti nemusí být jen snem. Pro rodinu s dětmi školního věku bylo v životní perspektivě zásadní zdravé bydlení v souladu s jejich životním stylem. Při rozhodování o stavbě domu byla proto jasnou volbou energeticky úsporná dřevostavba...
Atypická moderní dřevostavba na předměstí Hradce Králové byla navržena jako rodinný dům pro čtyřčlennou rodinu s nadstandardním komfortem. Dokonale splnila přání stavebníků. Přáli si bezbariérové bydlení, moderní design, velkou zahradu a dostatečně velké zázemí pro rodinu s dětmi. Nesměla chybět garáž a ani bazén. Přáli si...
Na okraji města Benátky nad Jizerou realizuje společnost LUCERN moderní dřevostavby výjimečný developerský projekt, který propojuje moderní architekturu, šetrnost k životnímu prostředí a blízkost přírody. První dokončený rodinný dům slouží jako vzorový a můžete tu vidět ukázku vysoké kvality zpracování, chytrého dispozičního řešení...
V Králově Dvoře můžete navštívit nejmodernější vzorovou dřevostavbu společnosti Lucern dřevostavby. Na vlastní oči se tu seznámíte s vizí bydlení pro čtyřčlennou rodinu, kde se útulné prostředí snoubí s komfortem a technologickou dokonalostí. Jedná se o variaci na typový dům LUCERN 176 s úpravami velikostí...
Mladý pár si přál vybudovat zázemí v hezkém a zdravém prostředí, aby jejich děti vyrůstaly v přírodě a v klidu. Proto si vybrali pozemek v malé obci na Benešovsku a rozhodli se pro dřevostavbu na klíč. Krásná kopcovitá krajina s mnoha lesy a rybníky, navíc kousek od Slapské přehrady, představuje jednu...
Na návštěvu do hezké nové čtvrti v blízkosti Průhonického parku jsme se vydali na pozvání čtenářky, která našla inspiraci pro stavbu domu v našem časopise. Podařilo se jim společně s manželem vybudovat stavbu, která je perfektně sladěna se svými obyvateli, se zahradou i s okolím. Manželský pár s dospívající dcerou se přestěhoval za pracovní nabídkou ze...
Krásné prostředí v okolí Berounky, klid, příroda a zároveň dobré spojení do hlavního města láká mnoho rodin ke stavbě domu. Podobné motivy měla i rodina se dvěma dětmi, kterou jsme navštívili. Záměr bydlet v souladu s přírodou dovedli až do důsledků – rozhodli se pro dřevostavbu. [lock] Našli velký, mírně svažitý slunný pozemek v nové okrajové...
Na pozemku v příjemné vilové čtvrti středočeského města stál starší zděný dům. Noví majitelé původně plánovali jeho rekonstrukci, nakonec si ale na jeho místě postavili moderní dřevostavbu. Svého rozhodnutí určitě nelitují. Rodina se dvěma dětmi si přála komfortní bydlení, které nabídne dostatek prostoru pro bydlení i koníčky a také moderní...
Nenápadná dřevostavba hezky zapadá do prostředí obce rozložené na malebných kopcích na východ od Prahy. Působí napohled skromně, uvnitř nabízí pohodlné moderní bydlení se zázemím energeticky úsporných technologií. Mladá rodina našla pozemek v lokalitě, která je součástí obce s dobrou vybaveností – jsou tu obchody, škola, pošta a dobré vlakové i...
Poslat vzkaz
PROFIL FIRMY
HK-DŘESTAV s.r.o.
26401, Doublovičky 11
Jak postavit skvělý dům
krok za krokem?
To se dozvíte zdarma v našem seriálu. Stačí se registrovat k e-mailovému odběru a získáte:
- 165dílný e-mailový seriál nabitý postupy
- Škola stavění krok za krokem
- Zařizování interiérů a relaxace doma
- Ověřené rady od odborníků
Cena od
Zastavěná plocha
Podlahová plocha
Dispozice
Počet podlaží
Typ střechy
Kategorie domů
Půdorys
Garáž/ garážové stání
Dodavatel