Tento dům soutěží v anketě Dům roku 2025. Líbí se vám? Hlasujte pro něj.
Hlasujte pro dům v anketě Dům roku 2025
Objednejte si
bezplatný Katalog a zjištěte více
o domech firmy Thermo plus
Profil domu
Cena od |
od 6 675 000 Kč
Hypotéka: měsíční cena od
28 488 Kč
|
Zastavěná plocha |
100.40m2 |
Podlahová plocha |
146.10m2 |
Dispozice |
6+1 |
Počet podlaží |
Patrový dům |
Typ střechy |
Sedlová |
Kategorie domů |
Zděná |
Půdorys |
Atypický |
Garáž/ garážové stání |
Garážové stání |
Dodavatel |
Thermo plus |
Popis a recenze redakce
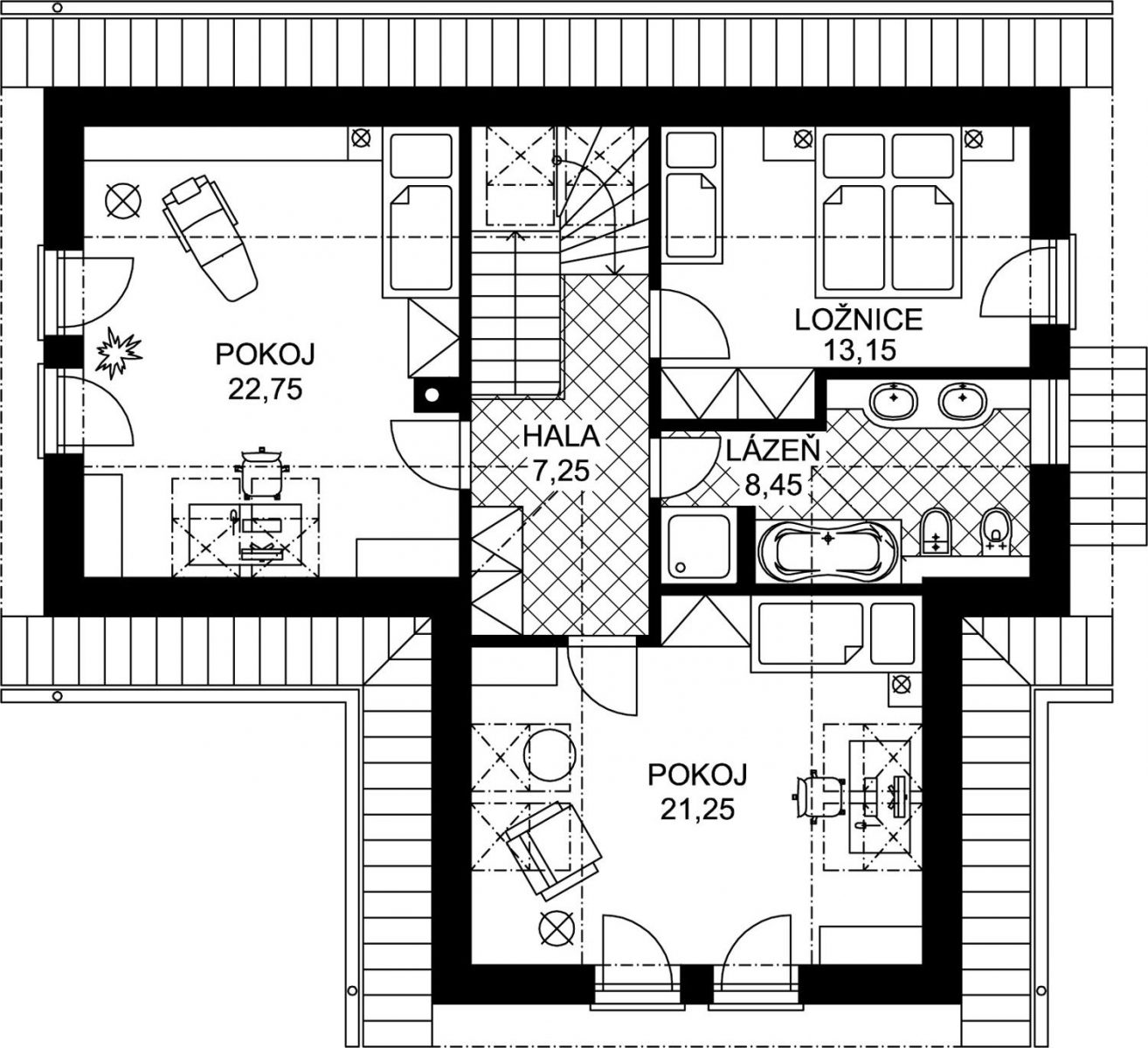
Rodinný dům střední velikosti je založen na půdorysu ve tvaru písmene T. Má standardní uspořádání se společným obývacím prostorem a pracovnou v přízemí, ložnicí rodičů a dvěma pokoji v podkroví. Hodí se na rovinatý nebo mírně svažitý pozemek. Předpokládá se orientace hlavního vstupu do domu ve směru od východu. Lze přistavět garáž nebo přístřešek pro auto.
Dům byl navržen s důrazem na komfort a soukromí. Velkorysý společný obývací prostor odděluje sezení od kuchyňské čás... ti s jídelnou, z obou se vychází na rohovou terasu. Podkroví nabízí nadstandardně velké pokoje a velkou rodinnou koupelnu.
Klady
velký společný obývací prostor
oddělená jídelna s kuchyní
chráněná rohová terasa
velké dětské pokoje
pohodlné zázemí (dvě koupelny, pracovna, WC, spíž)
Zápory
pro přístavbu garáže je vhodný větší pozemek
poměrně malé zádveří
Chcete znát názor redakce?
Přečtěte si ji po přihlášení.
Aktivovat členství ZDARMAJste členem? Přihlásit se.
Objednejte si
bezplatný Katalog a zjištěte více
o domech firmy Thermo plus
Podobné domy na klíč
Elegantní architektura je vhodná především do nové nebo prvorepublikové městské čtvrti. Dům nabízí nadstandardně velký společný obývací prostor, pohodlné rodičovské apartmá i pohodlné dětské pokoje. Je pamatováno na dostatečné zázemí pro pětičlennou rodinu, včetně úložného prostoru.
Dům pro čtyřčlennou rodinu je řešen s ohledem na pohodlí a soukromí. Prosvětlený společný obývací prostor je plně orientován do klidové části zahrady. V ložnicovém podlaží se děti a rodiče navzájem neruší, k dispozici jsou dvě velké koupelny a z každého pokoje je výstup na terasu. Výrazná moderní architektura vynikne především v nové zástavbě.
Nadčasový dům pro pohodlné a praktické bydlení. K benefitům patří velký společný obývací prostor přehledně uspořádaný do tvaru L, krytá terasa a hodně úložného prostoru. Jako jeden z mála katalogových domů zahrnuje i garáž pro dva automobily.
Dům dobře zapadne do města i na venkov a uspokojí nároky na moderní bydlení pro čtyřčlennou rodinu. Velký společný obývací prostor v přízemí je promyšleně rozdělen na kuchyňskou část a sezení, ke kladům patří také chráněná rohová terasa, pohodlné zázemí a dostatek úložného prostoru.
Velmi malá zastavěná plocha umožňuje výstavbu na malém pozemku, přitom v rámci účelné dispozice dům nabízí moderní komfort s nízkými náklady na provoz domácnosti. Výhodou je oddělená společná obývací část a ložnicová zóna a také dobré prosvětlení podkroví – má jak klasická fasádní, tak i střešní okna.
Díky možnosti zvolit různý tvar střechy dům dobře zapadne do městského i venkovského prostředí. Dispozice nabízí nadstandardní komfort pro až pětičlennou rodinu – velké pokoje a pohodlné zázemí včetně potřebného úložného prostoru.
Dům poskytne praktické bydlení se zázemím odpovídajícím potřebám čtyřčlenné rodiny. Má krásně prosvětlený interiér. Díky malé zastavěné ploše a úsporné dispozici s minimem chodeb se toto bydlení nabízí za výhodnou cenu, s nízkými provozními náklady. Výhodou je možnost zvolit si tvar střechy a také přistavět garáž nebo kryté parkovací stání.
Jednoduchá architektura zapadne do jakékoliv zástavby. Předpokládá se orientace hlavního hřebene domu ve směru severozápad–jihovýchod. Dům poskytne pohodlné a praktické bydlení čtyř- až pětičlenné rodině, s nízkými provozními náklady. Má účelně využitou dispozici, lze přistavět garáž s pultovou střechou nebo přístřešek pro auto.
Těžištěm domu je velký společný obývací prostor s komfortní kuchyní a prosklenou stěnou do zahrady. V přízemí je i malá pracovna, ložnice se nacházejí v patře. Dispozice obsahuje pohodlné zázemí i úložné prostory, přitom nezabírá velkou zastavěnou plochu.
Najdete tu vše, co by v domě pro pětičlennou rodinu mělo být – v přízemí je společná obývací část propojená se zahradou, v podkroví tři dětské pokoje a ložnice rodičů. Všude dostatek úložného prostoru, výhodou je garáž propojená se zádveřím a také domácí pracovna.
V přízemí se nachází prakticky řešený obývací pokoj s kuchyní ve tvaru písmene L, ložnice rodičů se šatnou, hygienické a technické zázemí. Děti mají k dispozici dva prostorné pokoje a vlastní koupelnu v podkroví. Dispozice je vyvážená a přehledná, neplýtvá místem. Dům je vhodné orientovat na parcele tak, aby hřeben střechy byl rovnoběžný s osou přístupové komunikace. Předpokládá se orientace hlavního hřebene domu ve směru východ–západ.
Podobné domy od architektů
Rodina Benešova bydlela v bytě na rušné ulici. Hned, jak jim to jejich finanční situace dovolila, se rozhodli koupit stavební pozemek a postavit si vlastní rodinný dům v klidné části města. Manželé Benešovi dlouho toužili po vlastním domě. Pár let si však na něj museli počkat. Spořili si peníze nejdříve na koupi pozemku, a když našli ten správný, rozhodli se...
Domníváte se, že vlastní bydlení je pro mladé lidi čím dál nedostupnější? Příklad pana Martina svědčí o opaku. Již ve svých třiceti letech si splnil svůj sen a bydlí ve vlastním domě. K novostavbě ho přivedla touha osamostatnit se. Pan Martin bydlel u rodičů a velmi ho lákala představa vlastního bydlení. Společně s přítelkyní se rozhlédli po možnostech,...
Petra a Tomáš Kollárovi se rozhodli pro velkou životní změnu. Chtěli poskytnout sobě a svým dvěma synům více prostoru a lepší životní prostředí, než jaké měli v Hnilčíku v Košickém kraji. Rozhodli se tedy opustit městský život a přestěhovat se do klidnější oblasti města Novoveská Huta. Původně bydleli v třípokojovém bytě, ale když se rodina...
Nový majitel se rozhodl vrátit stavení poničenému různými zásahy jeho historický vzhled. Existovala ale jen jedna dobová fotografie. Architekt si s přestavbou rodinného domu ve středních Čechách poradil natolik dobře, že kromě majitelů jsou spokojeni i památkáři. Odstraněním různých po léta realizovaných amatérských pokusů vylepšit bydlení,...
Vilka v malém městě na Berounce kousek od Prahy si současné majitele získala svou polohou v příjemné prvorepublikové čtvrti a nepříliš nápadným, ale osobitým výrazem architektury třicátých let. Rekonstrukce oživila její původní půvab a obohatila ji o nové prostory a současný komfort. Zděný dům...
To, že mladá rodina hledala cestu, jak si splnit sen o vlastním domě se zahradou, není ničím výjimečným. Ale rozhodnutí pro spolupráci s designérkou, která dala budoucímu domu celkovou tvář, je zcela originální a neobvyklé. Výsledkem je útulný dům s jednoduchou architekturou přesně odpovídající jejich představám i potřebám každodenního života....
Paní Klára bydlela s manželem a jejich dvěma dětmi společněs rodiči v rodinném domě. Necítili se zde komfortně a to je přivedlo k velkému životnímu kroku – ke stavbě vlastního domu. Nejdříve uvažovali o přístavbě k rodičovskému domu. S tím však rodiče nesouhlasili. Zvažovali, zda mají v domě s rodiči zůstat, nebo dát přednost většímu...
Pracovně vytížená rodina se třemi dětmi se rozhodla zakotvit v jedné ze starších pražských čtvrtí. Zakoupili řadový dům ze sedmdesátých let minulého století, který splňoval jejich představy o velikosti a příjemné lokalitě, ale vyžadoval celkovou rekonstrukci. Obrátili se na studio No Architects, které posunulo kvalitu bydlení o několik...
Jásavý odstín okenních a dveřních rámů optimisticky září prvorepublikovému domu do nové etapy. Rodinný dům v malebném údolí na západním okraji Prahy získal po citlivé rekonstrukci novou dispozici, lepší propojení se zahradou a možnost pohodlného celoročního využití. Drobnou rekreační stavbu si rodina majitelů po čtyři generace hýčkala,...
Patrik Bauer se se svou pětičlennou rodinou rozhodli opustit malý byt v rušném centru Prahy a přesunout se do klidné obce Borek ve Středočeském kraji. Vlastní dům nebyl původně jejich snem, spíše se jednalo o výsledek životního vývoje. Proč se rozhodli stavět na klíč a jak se jim bydlí? Rozhodnutí pro výstavbu vlastního domu...
Manželé Martina a Lukáš se po návratu ze zahraničí rozhodli zůstat na Slovensku, založit si rodinu a postavit si dům. Jak se jim to podařilo? Manželé Martina i Lukáš od mala vyrůstali na venkově. Byli zvyklí na život v rodinném domě se zahradou. Část svého života strávili v zahraničí, a když se vrátili...
Pan Ladislav a jeho manželka si ve svých 44 letech uvědomili, že nastal konečně ten pravý čas postavit si vlastní dům, o kterém vždy snili. Využili svůj krásný stavební pozemek v klidném prostředí a úspory. Vzhledem k tomu, že neměli se stavbou domu žádné zkušenosti a chtěli se vyhnout zdlouhavému procesu papírování, nejlepším...
Poslat vzkaz
PROFIL FIRMY
Thermo plus
54101, Ostrčilova 930
Jak postavit skvělý dům
krok za krokem?
To se dozvíte zdarma v našem seriálu. Stačí se registrovat k e-mailovému odběru a získáte:
- 165dílný e-mailový seriál nabitý postupy
- Škola stavění krok za krokem
- Zařizování interiérů a relaxace doma
- Ověřené rady od odborníků
Cena od
Zastavěná plocha
Podlahová plocha
Dispozice
Počet podlaží
Typ střechy
Kategorie domů
Půdorys
Garáž/ garážové stání
Dodavatel