Líbí se vám tento dům?
Objednejte si
bezplatný Katalog a zjištěte více
o domech firmy Xella CZ, s.r.o. - Ytong
Profil domu
Cena od |
5 až 8 000 000 Kč
Hypotéka: měsíční cena od
0 Kč
|
Zastavěná plocha |
152.00m2 |
Podlahová plocha |
0.00m2 |
Dispozice |
4+kk |
Počet podlaží |
Bungalov |
Typ střechy |
Plochá |
Kategorie domů |
Zděná |
Půdorys |
Obdélníkový |
Garáž/ garážové stání |
Neuvedeno |
Dodavatel |
Xella CZ, s.r.o. - Ytong |
Popis a recenze redakce
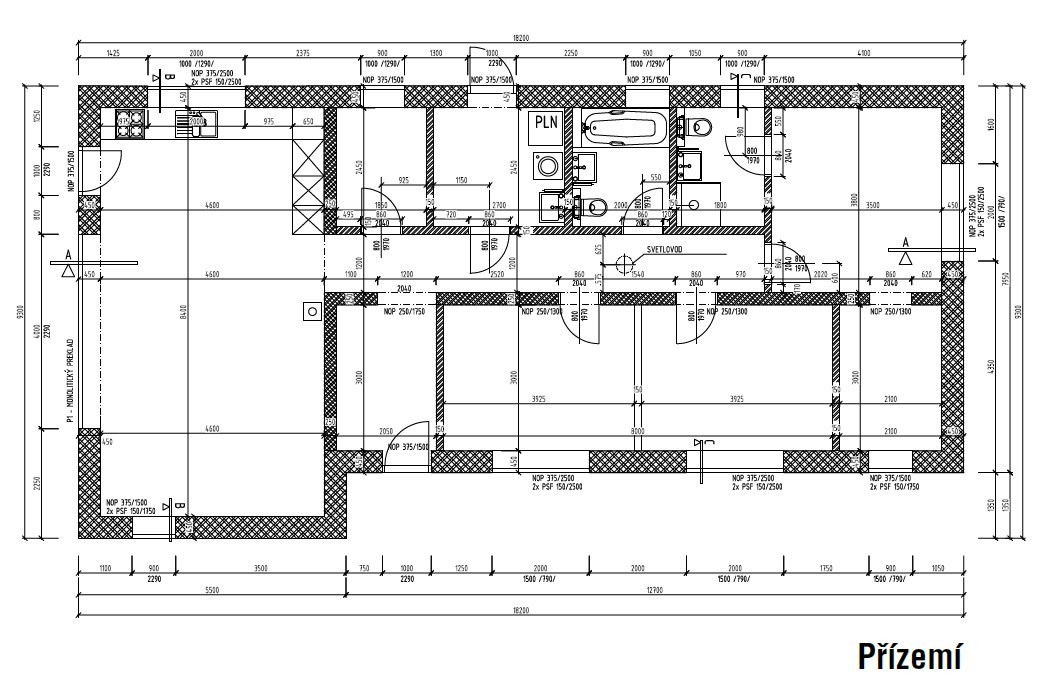
Jednopodlažní dům je postaven ve dvou úrovních výšky stropů. Majitelům se vyplatila spolupráce s architektem, pečlivý výběr materiálu a realizačních firem, řadu věcí realizovali svépomocí. K pórobetonu Ytong je dovedly tyto požadavky: jednoduchá manipulace, přesnost tvárnic, absence zateplení, důležité pro ně bylo zdravé bydlení. Ytong jim navíc nabídl ucelený stavební systém.
Dispozici domu řešili majitelé nejdříve pro tři, ale během stavby se rodina rozrostla. Z dispozice 3 + kk vznikla 4 + kk. Syn však své rodiče... potěšil, protože velkoryse rozdělil svůj rozměrný pokoj na polovinu a s velkou radostí se těšil na sourozence.
Klady
jednoduchá a funkční dispozice
bezbariérové bydlení
z ložnice rodičů je přístup do vlastní koupelny a šatny
komfortní zázemí (dvě koupelny, technická místnost, spíž)
Zápory
okno ložnice rodičů vede na stinnou stranu
Chcete znát názor redakce?
Přečtěte si ji po přihlášení.
Aktivovat členství ZDARMAJste členem? Přihlásit se.
Objednejte si
bezplatný Katalog a zjištěte více
o domech firmy Xella CZ, s.r.o. - Ytong
Podobné domy na klíč
Originální moderní bungalov je vhodný především do nové zástavby a poskytne nadstandardní komfort čtyřčlenné rodině. Architektura zaujme velkým prosklením, zaoblenými nárožími a velkorysým společným obývacím prostorem. Interiér se maximálně propojuje se zahradou, z každého pokoje se dá vyjít přímo ven.
Jedná se o komfortní dům pro čtyřčlennou rodinu, moderní design bude skvěle vypadat v nové zástavbě. Je pamatováno na pohodlí, dostatek prostoru, hodně světla a maximální propojení se zahradou. Toho je dosaženo díky HS portálům, které vedou z pokojů přímo na terasu s pergolou. K výhodám patří i možnost přistavět pergolu, garáž nebo kryté parkovací stání.
Dispozice je rozdělena na garáž a obytnou část, ve vnitřním rohu vznikl prostor pro velkou terasu. Dům zaujme velkorysým společným obývacím prostorem a komfortní ložnicí rodičů. Dětské pokoje jsou umístěny v oddělené zóně s vlastním zázemím, děti a rodiče se vzájemně neruší.
Bungalov s dispozicí ve tvaru písmene L se řadí mezi nejoblíbenější typy rodinných domů u nás. Oddělená denní a noční zóna s vlastním zázemím zajišťují pohodlný provoz domácnosti. K výhodám patří i rohová terasa a integrovaná garáž propojená se zádveřím.
Jedná se o pohodlné bezbariérové bydlení za výhodnou cenu pro čtyřčlennou rodinu. Účelná dispozice umožňuje vytvořit chráněnou rohovou terasu. Ze zádveří se přes chodbu vstupuje přímo do společné obývací části, která je rozdělena na kuchyň s jídelnou a obývací pokoj s výstupem na terasu. Dům je určen pro rovinatý pozemek, doporučuje se, aby hlavní hřeben střechy byl rovnoběžný s osou přístupové komunikace.
Ytong byla pro stavebníky jasná volba, jelikož už jejich předchozí dům byl postaven z Ytongu. Dobré zkušenosti se potvrdily i při stavbě druhého domu. Majitel byl nadšen z možností tohoto materiálu, paní domu zase dělají radost nízké účty za energie.
Prostorná garáž s dílnou, krytá terasa směrovaná do zahrady, krytá vstupní část směrem do ulice, prostorné místnosti navržené i pro bezbariérový pohyb. Tak vypadá nový, univerzální dům, který se může hodit jak lidem s handicapem, tak pro klidné stáří.
Velkorysý prostor kromě neomezeného pohybu zásadně přispívá světlosti všech místností a tím i příjemnému vnitřnímu prostředí, které přirozeně přechází do exteriéru skrze velká francouzská okna. Ložnice domu jsou přístupné přes chodbu, která tvoří hlukový filtr od obytné části domu. K nim je přiřazena i druhá, hlavní koupelna.
Předností domu je veliká společenská místnost. Prostor, který je z poloviny svého obvodu prosklený a má strop otevřený do krovu, bude hlavním místem dění v rodině. Kromě této hlavní místnosti je v domě oddělená soukromá sekce obyvatel domu. V ní jsou dva dětské pokoje, pracovna či pokoj pro hosty a k tomu nezbytné zázemí v podobě samostatného WC, koupelny a technické místnosti. Na konci této soukromé zóny se nachází oddělená koupelna a šatna, která náleží k hlavní ložnici rodičů.
Podobné domy od architektů
Dvoupodlažní rodinný dům s plochou střechou nahradil na pozemku na kraji Prahy starší nevyhovující objekt. Proč se jmenuje Aero? Originální novostavba je inspirována historickým letadlem. Příběh domu začal podobně jako mnoho dalších – rodina hledala vhodné místo pro stavbu nového domova. V Praze volné pozemky za přiměřenou částku ovšem nebyly,...
Rodina s dítětem školního věku našla velký pozemek v malé obci na okraji brdských lesů. Uskutečnili zde svou představu o pohodlném, praktickém a zároveň hezkém domě, který si na nic nehraje. Záleželo jim především na tom, aby se jim tu dobře žilo. Lokalitu dobře znali, líbila se jim nejen krásná příroda na dosah, ale i dobrá dostupnost na dálnici...
U architekta Jakuba Chocholy bývá zvykem, že každý nový dům vzniká s přívlastkem. Zvířata jsme zatím v názvu ale zaznamenali poprvé… Zajímavého je ale mnohem více. Pro architekta je prostředí, do které stavbu navrhuje, v mnohém určující i inspirující. Nejde jen o přírodu či okolí, ale i kulturní a sociální...
Tradiční tvar a tradiční materiály i místo samotné působí, jako by tu chalupa stála odjakživa. Dům je umístěn ve svahu hned vedle cesty tak, že zadní štít střechy má vchod do podkroví přímo z terénu. Tráva roste nad přízemím, jedná se o nenápadnou zelenou střechu. Průčelí, které se obrací do zahrady, architekti vůči...
Novostavba ve středočeské obci na východ od Prahy představuje jednu z cest, jak začlenit moderní dům do prostředí typické české vesnice. Moderní zdicí systém a inovativní technologie mu dodávají vynikající technické parametry. Pozemek v mírném severním svahu s přístupem z jihu se nachází v klidové části obce, mezi domy různého...
Rozlehlý pozemek v parku v sousedství zámeckého rybníka patřil rodině po generace, současnému majiteli však trvalo několik let, než jej získal do svého výlučného vlastnictví. Dalších pár let přemýšlel, zda se pustit do rekonstrukce staré vily, která byla v zuboženém stavu, nakonec se ale rozhodl nahradit ji moderní novostavbou a vytvořit tu nový domov nejen...
Vila na unikátním exponovaném místě na kopci spojuje dva architektonické principy: uzavřené chráněné atrium a prostory maximálně otevřené do exteriéru. Výhledy a průhledy napříč domem jak do atria, tak ven daleko do krajiny dodávají komfortnímu bydlení další rozměr. Architekti Jana a Miroslav Stachovi z ateliéru boq...
Atriově pojatá novostavba pro umělecky založený pár a dva mazané jezevčíky svou fasádou reflektuje historickou stopu budovy, která na klidném pražském předměstí stávala dříve. Svým pojetím je veskrze soudobá. Interiér se prolíná s exteriérem, současným požadavkům dům odpovídá také dispozicemi Úkolem architektky bylo navrhnout rodinný dům se...
Takto charakterizuje své nové bydlení rodina z východních Čech. Co to pro ně znamená? Pohodlnou dispozici, ale bez nevyužitých metrů čtverečních, nejmodernější technologie a nadstandardní vybavení interiéru s maximálním důrazem na jejich individuální potřeby. Design interiéru si majitelé navrhli kompletně sami a částečně i sami...
Nové čtvrti z přelomu století, nad nimiž oči přecházely, už jsou dnes za svým zenitem. Těžké střechy podivných tvarů a barev, oblé nebo hranaté rizality, někdy i balustrády. Ale každý dům měl svoji zahradu a lidé, kteří rádi opouštěli sídliště, mohli mít pocit, že tady bude jejich život lepší. Dnes už mnozí z nich...
Mnozí z nás si po letech ve městě vzpomenou na místa, která mají rádi. Důvody bývají různé – vyrůstali jsme tu jako děti, žili tam naši prarodiče, máme tam kamarády a nebo je tam prostě krásně a cítíme se tam dobře. Nejdříve jim věnujeme víkendy a dovolené, později si uvědomíme, že by bylo hezké prožít tu co nejvíce...
Dodejme, že mladé horolezce s malými dětmi. Jak tomu u architekta Jakuba Chocholy bývá, je každý jeho nový dům s přívlastkem. I v tomto případě je tedy toho zajímavějšího mnohem více. Dobřichovice jsou hezké místo, ale to nejzajímavější je, že dům stojí na pozemku kousek od Berounky, v oblasti ohrožené záplavami....
Poslat vzkaz
PROFIL FIRMY
Xella CZ, s.r.o. - Ytong
66462, Vodní 550
Jak postavit skvělý dům
krok za krokem?
To se dozvíte zdarma v našem seriálu. Stačí se registrovat k e-mailovému odběru a získáte:
- 165dílný e-mailový seriál nabitý postupy
- Škola stavění krok za krokem
- Zařizování interiérů a relaxace doma
- Ověřené rady od odborníků
Cena od
Zastavěná plocha
Podlahová plocha
Dispozice
Počet podlaží
Typ střechy
Kategorie domů
Půdorys
Garáž/ garážové stání
Dodavatel