Líbí se vám tento dům?
Profil domu
Cena od |
od 5 350 000 Kč
Hypotéka: měsíční cena od
22 833 Kč
|
Zastavěná plocha |
102.95m2 |
Podlahová plocha |
108.12m2 |
Dispozice |
5+1 |
Počet podlaží |
Patrový dům |
Typ střechy |
Sedlová |
Kategorie domů |
Zděná |
Půdorys |
Obdélníkový |
Garáž/ garážové stání |
Garážové stání |
Dodavatel |
Thermo plus |
Popis a recenze redakce
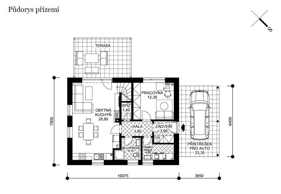
Cipísek je přízemní rodinný dům s využitým podkrovím se sedlovou střechou o sklonu 45°. Dům není podsklepen. Součástí domu může být přístřešek pro auto zastřešený pultovou střechou o sklonu 17°.
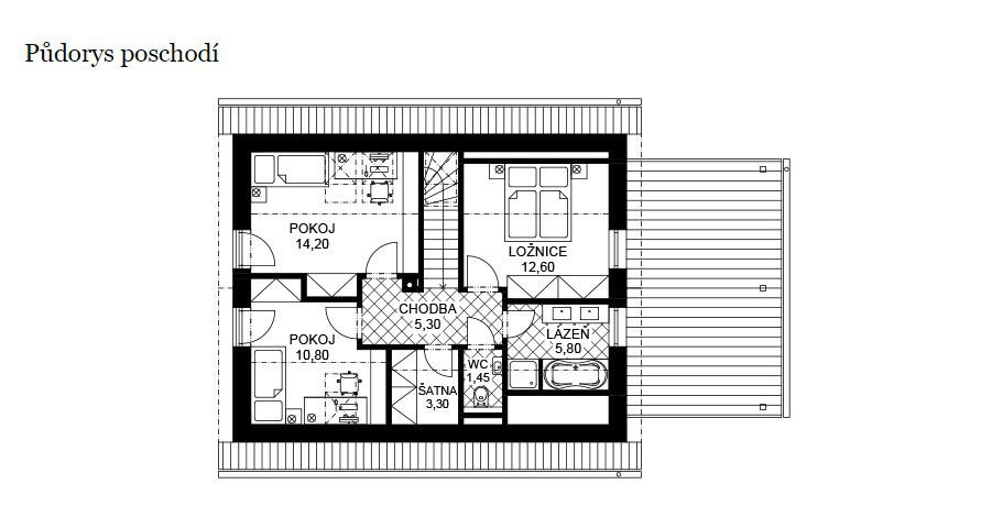
Ze vstupního zádveří se vchází do haly, ze které je přístupná obytná kuchyň se schodištěm do podkroví, pracovna, místnost na domácí práce (pračka, sušička, zdroj tepla a vzduchotechnická jednotka), WC se sprchou a spíž. Z obytné kuchyně je vstup na terasu. V podkroví jsou dva pokoje, ložnice, šatna, WC a lázeň.
Dům je možné umístit na rovinatém nebo mírně svažitém pozemku. Předpokládá se orientace hlavního hřebene domu ve směru jihovýchod – severozápad. Dům je vhodné orientovat na parcele tak, aby hřeben střechy byl rovnoběžný s osou přístupové komunikace.
Uvedená cena je bez krytého stání.
Dům jednoduchého tvaru s tradiční sedlovou střechou je určen především na venkov, pro praktické bydlení čtyřčlenné rodiny. Má k dispozi... ci pohodlné sociální zázemí, včetně technické místnosti a spíže. Návrh zahrnuje i přístavbu krytého garážového stání před vstupem do domu.
Klady
praktická dispozice
malá zastavěná plocha
pracovna
2 koupelny + samost. WC
tech. místnost
šatna
kryté parkovací stání
Zápory
malá kuchyň
Chcete znát názor redakce?
Přečtěte si ji po přihlášení.
Aktivovat členství ZDARMAJste členem? Přihlásit se.
Objednejte si
bezplatný Katalog a zjištěte více
o domech firmy Thermo plus
Podobné domy na klíč
Těžištěm domu je velký společný obývací prostor s komfortní kuchyní a prosklenou stěnou do zahrady. V přízemí je i malá pracovna, ložnice se nacházejí v patře. Dispozice obsahuje pohodlné zázemí i úložné prostory, přitom nezabírá velkou zastavěnou plochu.
Najdete tu vše, co by v domě pro pětičlennou rodinu mělo být – v přízemí je společná obývací část propojená se zahradou, v podkroví tři dětské pokoje a ložnice rodičů. Všude dostatek úložného prostoru, výhodou je garáž propojená se zádveřím a také domácí pracovna.
V přízemí se nachází prakticky řešený obývací pokoj s kuchyní ve tvaru písmene L, ložnice rodičů se šatnou, hygienické a technické zázemí. Děti mají k dispozici dva prostorné pokoje a vlastní koupelnu v podkroví. Dispozice je vyvážená a přehledná, neplýtvá místem. Dům je vhodné orientovat na parcele tak, aby hřeben střechy byl rovnoběžný s osou přístupové komunikace. Předpokládá se orientace hlavního hřebene domu ve směru východ–západ.
Na chráněné závětří navazuje hala s otevřeným schodištěm do podkroví. Většinu přízemí zaujímá společný obývací pokoj s praktickou dispozicí ve tvaru písmene L a výstupem na terasu. Je tu i pracovna, koupelna a technická místnost průchozí do garáže. V podkroví se nacházejí dva dětské pokoje, ložnice se šatnou, lázeň a WC. Dům je určen pro rovinatý nebo mírně svažitý pozemek, s orientací hřebene střechy kolmo na přístupovou komunikaci.
Dům postavený ve volné krajině elegantně spojuje tradiční tvar venkovského stavení s moderním designem. Má společnou obývací část v přízemí a ložnice v podkroví. Díky zvýšené nadezdívce je i pod šikmými stropy dost místa a velká okna dávají hodně světla. Odolná konstrukce z tvárnic
HELUZ je zárukou dlouhé životnosti a výborných energetických vlastností.
Návrh maximálně využívá potenciál daného místa a obrací jeho nevýhody ve výhody. Přes horní, ložnicové podlaží vede přístup do přízemí se společným obývacím prostorem, na nějž navazuje zahrada. Přízemí má další samostatný vstup zvenku, takže hosté nemusejí procházet celým domem. Všechny obytné místnosti mají hodně světla, zkosená fasáda maximalizuje solární zisky a panoramatické výhledy.
Majitel je stavař a cihla byla pro něj jasnou volbou – je to tradiční materiál s dlouhou životností a dalšími vynikajícími vlastnostmi. Navíc zděný dům vyšel v rozpočtu levněji než dřevostavba… Přesto dřevo na domě nechybí – do krásné krajiny, kde se střídají staré chaty s moderními novostavbami, zvolila rodina dům s větraným pláštěm z neupraveného modřínu.
Ze vstupní chodby se vchází do sprchy + WC se zdrojem tepla, vzduchotechnickou jednotkou, pračkou a sušičkou. Dále je z chodby přístupná pracovna, obývací pokoj + kuchyň, spíž a schodiště do podkroví. Z obývacího pokoje je vstup na terasu. V podkroví jsou dva pokoje, ložnice, a lázeň s WC. Dům je možné umístit na rovinatém nebo mírně svažitém pozemku. Předpokládá se orientace hlavního hřebene domu ve směru severovýchod-jihozápad. Dům je vhodné orientovat na parcele tak, aby hřeben střechy byl kolmo na osu přístupové komunikace.
Jedná se o dvoupodlažní dům o dispozici 5 + kk s plochou střechou. Dobře vyřešená dispozice poskytne velkorysý prostor pro rodinné soužití i pro návštěvy a druhé nadzemní podlaží pak poskytuje naprosté soukromí pro každý z pokojů. V druhém nadzemním patře se nacházejí dva pokoje, koupelna a ložnice se svou vlastní koupelnou. Dalším skvělým prvkem je venkovní pergola a kryté parkování pro auta.
Velkoryse řešený dvoupodlažní dům, který nabídne krásný prostor pro celou rodinu. Svým půdorysným tvarem připomíná písmeno L. Tím je dosaženo utvoření klidného prostoru pro terasu. Velká okna obytných místností a pracovny v 1. NP mohou být orientována na tuto klidnou terasu. Podkroví pak nabídne prostor pro dva velké dětské pokoje, koupelnu, oddělené WC a ložnici se samostatnou koupelnou a šatnou.
Velký obývací pokoj spojený s kuchyňskou linkou nabídne dostatek prostoru pro velkou rodinu či početné návštěvy. V druhém nadzemním podlaží se nachází tři nadstandardně velké pokoje a ložnice s vlastní koupelnou. Dům nabídne úžasné spojení interiéru a exteriéru díky velkým okenním otvorům. Výrazným prvkem je taktéž vikýř, v němž se nalézá jeden z pokojů. V dolním patře je největší okno opatřeno posuvnou dřevěnou clonou, která chrání před sluncem a slouží i jako bezpečnostní prvek.
Podobné domy od architektů
Petra a Tomáš Kollárovi se rozhodli pro velkou životní změnu. Chtěli poskytnout sobě a svým dvěma synům více prostoru a lepší životní prostředí, než jaké měli v Hnilčíku v Košickém kraji. Rozhodli se tedy opustit městský život a přestěhovat se do klidnější oblasti města Novoveská Huta. Původně bydleli v třípokojovém bytě, ale když se rodina...
Nový majitel se rozhodl vrátit stavení poničenému různými zásahy jeho historický vzhled. Existovala ale jen jedna dobová fotografie. Architekt si s přestavbou rodinného domu ve středních Čechách poradil natolik dobře, že kromě majitelů jsou spokojeni i památkáři. Odstraněním různých po léta realizovaných amatérských pokusů vylepšit bydlení,...
Vilka v malém městě na Berounce kousek od Prahy si současné majitele získala svou polohou v příjemné prvorepublikové čtvrti a nepříliš nápadným, ale osobitým výrazem architektury třicátých let. Rekonstrukce oživila její původní půvab a obohatila ji o nové prostory a současný komfort. Zděný dům...
To, že mladá rodina hledala cestu, jak si splnit sen o vlastním domě se zahradou, není ničím výjimečným. Ale rozhodnutí pro spolupráci s designérkou, která dala budoucímu domu celkovou tvář, je zcela originální a neobvyklé. Výsledkem je útulný dům s jednoduchou architekturou přesně odpovídající jejich představám i potřebám každodenního života....
Paní Klára bydlela s manželem a jejich dvěma dětmi společněs rodiči v rodinném domě. Necítili se zde komfortně a to je přivedlo k velkému životnímu kroku – ke stavbě vlastního domu. Nejdříve uvažovali o přístavbě k rodičovskému domu. S tím však rodiče nesouhlasili. Zvažovali, zda mají v domě s rodiči zůstat, nebo dát přednost většímu...
Pracovně vytížená rodina se třemi dětmi se rozhodla zakotvit v jedné ze starších pražských čtvrtí. Zakoupili řadový dům ze sedmdesátých let minulého století, který splňoval jejich představy o velikosti a příjemné lokalitě, ale vyžadoval celkovou rekonstrukci. Obrátili se na studio No Architects, které posunulo kvalitu bydlení o několik...
Jásavý odstín okenních a dveřních rámů optimisticky září prvorepublikovému domu do nové etapy. Rodinný dům v malebném údolí na západním okraji Prahy získal po citlivé rekonstrukci novou dispozici, lepší propojení se zahradou a možnost pohodlného celoročního využití. Drobnou rekreační stavbu si rodina majitelů po čtyři generace hýčkala,...
Patrik Bauer se se svou pětičlennou rodinou rozhodli opustit malý byt v rušném centru Prahy a přesunout se do klidné obce Borek ve Středočeském kraji. Vlastní dům nebyl původně jejich snem, spíše se jednalo o výsledek životního vývoje. Proč se rozhodli stavět na klíč a jak se jim bydlí? Rozhodnutí pro výstavbu vlastního domu...
Manželé Martina a Lukáš se po návratu ze zahraničí rozhodli zůstat na Slovensku, založit si rodinu a postavit si dům. Jak se jim to podařilo? Manželé Martina i Lukáš od mala vyrůstali na venkově. Byli zvyklí na život v rodinném domě se zahradou. Část svého života strávili v zahraničí, a když se vrátili...
Pan Ladislav a jeho manželka si ve svých 44 letech uvědomili, že nastal konečně ten pravý čas postavit si vlastní dům, o kterém vždy snili. Využili svůj krásný stavební pozemek v klidném prostředí a úspory. Vzhledem k tomu, že neměli se stavbou domu žádné zkušenosti a chtěli se vyhnout zdlouhavému procesu papírování, nejlepším...
Přáním rodičů byl malý domeček se zahrádkou, kde by mohli pěstovat zeleninu a užívat si s rodinou kávu na terase. Bílá moderní novostavba na okraji městečka na Zlínsku, kde dříve již řadu let žili, jejich představy více než splnila. Pozemek našli v klidné slepé ulici v proluce samostatně stojících domů, která vznikla...
V malé středočeské obci Líbeznice dnes stojí krásná novostavba. Tento dům, označený jako „Blanka 26“, vypadá, jako by byl stvořen pro mladou rodinu, přesto je jeho majitelem 72letý Livio Zanotto. Ačkoli pan Zanotto měl pozemek v malebné Líbeznici, většinu svého života strávil v rušné Praze. Jednou ho napadlo: Proč nevyužít tento pozemek...
Poslat vzkaz
PROFIL FIRMY
Thermo plus
54101, Ostrčilova 930
Jak postavit skvělý dům
krok za krokem?
To se dozvíte zdarma v našem seriálu. Stačí se registrovat k e-mailovému odběru a získáte:
- 165dílný e-mailový seriál nabitý postupy
- Škola stavění krok za krokem
- Zařizování interiérů a relaxace doma
- Ověřené rady od odborníků
Cena od
Zastavěná plocha
Podlahová plocha
Dispozice
Počet podlaží
Typ střechy
Kategorie domů
Půdorys
Garáž/ garážové stání
Dodavatel