Líbí se vám tento dům?
Objednejte si
bezplatný Katalog a zjištěte více
o domech firmy CANABA a.s.
Profil domu
Cena od |
od 4 199 000 Kč
Hypotéka: měsíční cena od
17 921 Kč
|
Zastavěná plocha |
110.00m2 |
Podlahová plocha |
87.00m2 |
Dispozice |
3+1 |
Doba výstavby |
3 - 4 měsíce |
Počet podlaží |
Bungalov |
Typ střechy |
Valbová |
Kategorie domů |
Jiná |
Půdorys |
Do písmene L |
Garáž/ garážové stání |
Neuvedeno |
Dodavatel |
CANABA a.s. |
Popis a recenze redakce
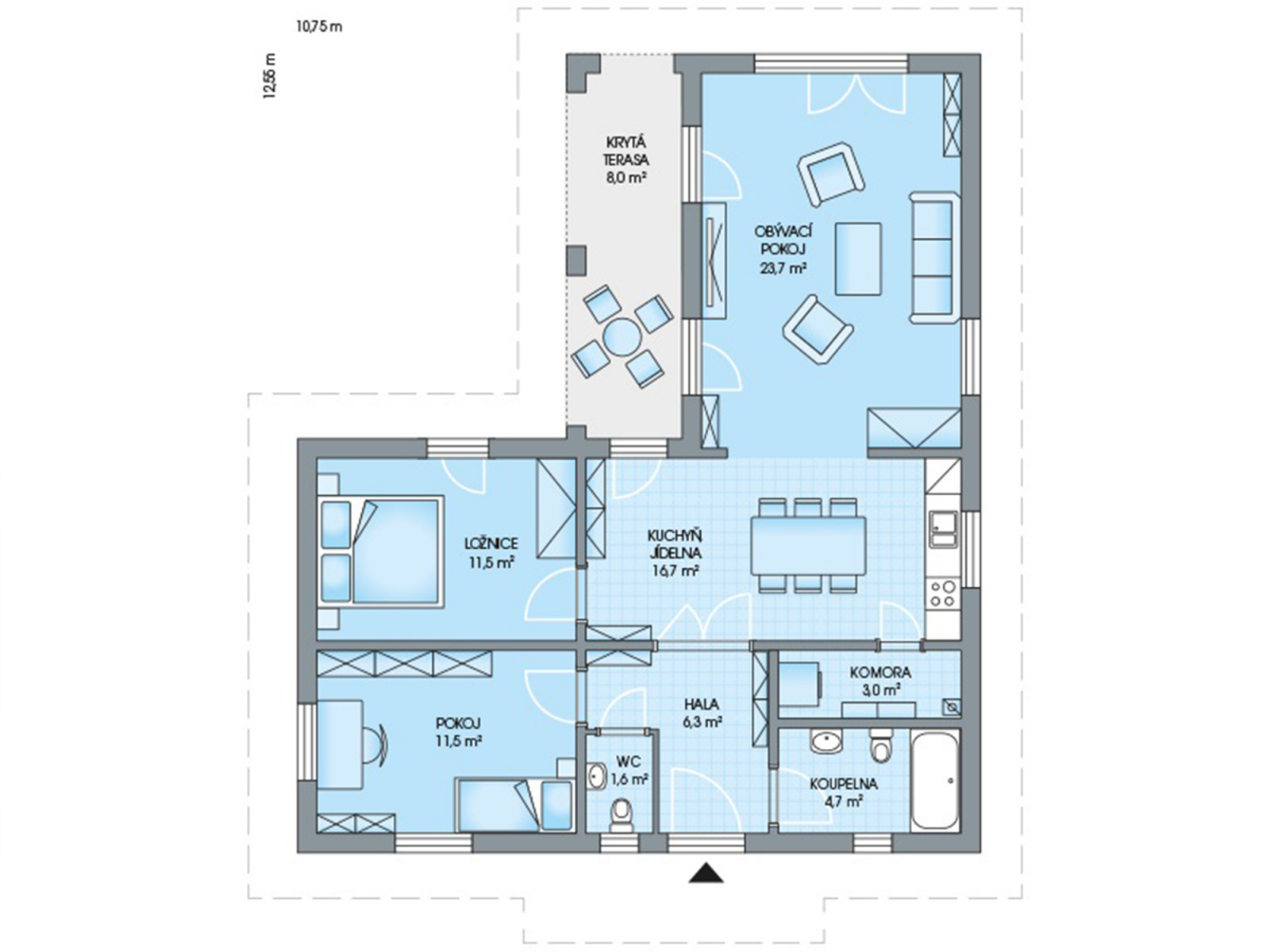
Jednoduchá, účelná a přitom nesmírně atraktivní, to je VILLA TOSCA, která v sobě elegantně pojí prvky toskánské architektury a přirozeně je vkládá do české krajiny. Zvenčí působí VILLA TOSCA poměrně malým dojmem, ale uvnitř nabízí luxusní prostor, skoro 100 m2 obytné plochy. Svojí základní dispozicí 3+1 je vhodná jak pro mladé rodiny s dětmi, tak pro páry ve středním věku. Vyznačuje se zajímavým půdorysem do L, kterým vzniká přirozené atrium s krytou terasou a elegantními oblouky. Dispoziční řešení má řadu variant. Terasu lze přeměnit na letní jídelnu nebo zimní zahradu. Dům lze rozšířit o další místnosti nebo garáže.
Architektura potěší milovníky italského stylu, ale je citlivě přizpůsobena českému prostředí. Dům poskytuje pohodlné bezbariérové bydle... ní a má oblíbenou dispozici ve tvaru L s chráněnou rohovou terasou, která je těžištěm života rodiny. Praktické a přehledné oddělení obývacího pokoje od ložnicové části umožňuje, aby všichni měli doma potřebné soukromí.
Klady
bezbariérové bydlení
dispozice ve tvaru L
účelné využití zastavěné plochy
oddělené ložnice a obývací pokoj
chráněná krytá terasa
Zápory
chybí garáž
ložnice rodičů přístupná přes jídelnu
Chcete znát názor redakce?
Přečtěte si ji po přihlášení.
Aktivovat členství ZDARMAJste členem? Přihlásit se.
Objednejte si
bezplatný Katalog a zjištěte více
o domech firmy CANABA a.s.
Podobné domy na klíč
Bungalov s valbovou střechou je navržen pro praktické bydlení čtyřčlenné rodiny. Dispozice je přehledně rozdělena na společný obývací prostor a na ložnicovou část. Obývací pokoj s centrálním krbem a velkým rohovým oknem bude jistě chloubou domu. Oblíbenou součástí půdorysu ve tvaru písmene L je také krytá rohová terasa. Mezi praktické výhody domu patří šatna, prostorná tech. místnost a komfortní koupelna.
Elegantní bungalov s plochou střechou poskytne praktické bydlení čtyřčlenné rodině. Je přehledně rozdělen na společný obývací prostor a ložnicovou část s potřebným zázemím. Má krytý vstup spojený s parkovacím stáním, praktickou kuchyň se samostatným vstupem a krytou rohovou terasu. Nejzajímavější částí domu je velký vzdušný obývací pokoj, z dětských pokojů se dá vyjít francouzskými okny ven.
Jednoduchý bungalov s nízkou sedlovou střechou poskytne praktické bydlení čtyřčlenné rodině. Je přehledně rozdělen na společný obývací prostor a ložnicovou část s potřebným zázemím. Má praktickou kuchyň se samostatným vstupem a krytou rohovou terasu. Nejzajímavější částí domu je velký vzdušný obývací pokoj s plně prosklenou čelní stěnou až po trojúhelníkový štít.
Podobné domy od architektů
Architekt Martin Boden-Peroche postavil pro sebe a svého syna v unikátním prostředí památkově chráněného parku v centru Drážďan třípokojový bezbariérový dům. Moderní architektura z betonu a skla našla přirozenou symbiózu se svým okolím a žije si tu vlastním životem. Pohoda v tichu na palouku ve stínu staletých jehličnanů...
Mobilní obytný kontejner je usazen na břehu Hejlovského rybníka na Vysočině a na necelých 15 m2 nabízí vše, co jeden až dva lidé potřebují ke komfortnímu pobytu. Snahu o udržitelnost projevili autoři návrhu nejen v použitých materiálech, ale také v energeticky soběstačném řešení jednotky. Ložnice s dalekým...
Manželé stredního veku, kterí nyní bydlí v pohodlném, stredne velkém rodinném dome, se rozhodli myslet na budoucnost a zainvestovat do úsporného a praktického bydlení pro starší vek. Hledali cenove dostupné rešení, ale nechteli rezignovat ani na funkcnost, ani na estetickou stránku. Všechny požadavky jim splnil kontejnerový dum. Koupili rohový pozemek v malé obci v...
Patrová novostavba s dřevěným obložením fasády se v exteriéru i v interiéru může pochlubit moderním designem i vyspělými technologiemi. Její tajemství byste ale stěží uhodli. Nejedná se o dřevostavbu, zděný ani betonový dům, ale o montáž z lodních kontejnerů. Majitel Jakub Zaviačič se mnoho let profesionálně zabýval tepelnou technikou a moderními...
Kraj vinic začíná už u Kyjova, vlny moravského Toskánska pak pokračují směrem k jihu, kde na ně navazuje Pálava. V centru Bukovan je pod kostelem úzká dlážděná ulička se starými domky, u kterých se postupně stavěly vinné sklepy. Jeden z nich nahradila novostavba – ale nikdy byste neřekli, že tu už dříve nebyla. Klidná ulice se zahradami, nad níž je zelený...
Architekt Luciano Kruk zvolil jako materiál svého srdce monolitický beton. Dnes vám představujeme jeden z řady obytných domů, které navrhl do rekreační oblasti na argentinském pobřeží Atlantického oceánu. Lokalita Mar Azul leží v bezprostřední blízkosti rekreačního střediska Mar de Las Pampas, v krásné krajině, kde se na písečných dunách mísí vůně...
Zajímavý příklad ze zahraničí jsme tentokrát našli v exotickém prostředí daleké Jižní Koreje. Hlavní záměr – navrhnout bydlení především pro děti – je však společný všem civilizacím, a proto v tomto domě můžeme najít inspiraci i pro nás. Nevelký pozemek se nachází v dosud nepříliš intenzivně zastavěné oblasti Madong v blízkosti města Kjondžu...
Tak tento slamák by Cyrano z Bergeracu rozhodně v dál neodhazoval. A navíc by z návštěvy domu ze slámy byl jistě stejně nadšený jako my. Volba postavit rodinný dům ze slámy a hlíny rozhodně nebyla motivována omezeným výběrem stavebních hmot či jejich nedostatkem. To zdůrazňujeme zejména pro ty čtenáře, kteří ještě stále nedůvěřují dřevostavbám,...
Tereza Salte je z Prahy a vyrůstala v rodinném domě stejně jako její muž, který pochází z Norska. Navzdory tomu původně uvažovali spíše o koupi bytu. Pak ale došli k tomu, že za byt v dosahu centra města zaplatí stejně, ne -li víc, jako za dům na okraji Prahy. Na prohlídku jejich budoucího domu vzal John Terezu v květnu 2019 vlastně tajně, cestou z jiné prohlídky,...
Klidná ulice u řeky se dlouhou loukou otevírá k nábřeží, zahrady domů jsou naopak ve svahu. Bydlení u vody, a přitom nedaleko městského centra, na které je odtud krásný výhled. Nad protějším břehem se zvedá skalní stěna se znojemským hradem, rotundou svaté Kateřiny a kostelem svatého Mikuláše. Při stavbě nového domu bylo důležité místo nepoškodit a nezkazit,...
Rodinný dům měl být nejen příjemným místem pro život, zadáním byl od začátku také rozměrný skleník pro kaktusy. Jenže kam s ním, když si majitelé stavby přáli co nejhezčí výhledy do sadu a zároveň chtěli mít skleník co nejvíce po ruce? Lépe řečeno, ideálně suchou nohou. První koncept stavby vznikal na poměrně malém pozemku. V průběhu navrhování...
Dům v Berouně byl společně se svými sousedy vystavěn v 70. letech minulého století. Rekonstrukce jeho vnější podobu příliš nezměnila, architektovi Tomáši Petráškovi záleželo na kontextu místa, chtěl, aby zůstal součástí ulice a nepoutal na sebe pozornost víc, než je třeba. Interiéry však byly očištěny až na dřeň tak, aby vznikl otevřený a propojený...
Poslat vzkaz
PROFIL FIRMY
CANABA a.s.
14000, Štětkova 1001/5
Jak postavit skvělý dům
krok za krokem?
To se dozvíte zdarma v našem seriálu. Stačí se registrovat k e-mailovému odběru a získáte:
- 165dílný e-mailový seriál nabitý postupy
- Škola stavění krok za krokem
- Zařizování interiérů a relaxace doma
- Ověřené rady od odborníků
Cena od
Zastavěná plocha
Podlahová plocha
Dispozice
Doba výstavby
Počet podlaží
Typ střechy
Kategorie domů
Půdorys
Garáž/ garážové stání
Dodavatel