Líbí se vám tento dům?
Objednejte si
bezplatný Katalog a zjištěte více
o domech firmy CANABA a.s.
Profil domu
Cena od |
od 6 699 000 Kč
Hypotéka: měsíční cena od
28 590 Kč
|
Zastavěná plocha |
149.00m2 |
Podlahová plocha |
245.00m2 |
Dispozice |
4+1 |
Doba výstavby |
4 - 5 měsíců |
Počet podlaží |
Patrový dům |
Typ střechy |
Valbová |
Kategorie domů |
Jiná |
Půdorys |
Do písmene L |
Garáž/ garážové stání |
Garáž |
Dodavatel |
CANABA a.s. |
Popis a recenze redakce
Vychutnávat život plnými doušky – to bude nejčastější filozofie obyvatel tohoto domu, milovníky slunce, světla, prostoru a pohodlí. Rodinný dům RIVIERA působí na své okolí neobvykle klidným a pozitivním dojmem. Jde o vzdušný a prosvětlený dům v toskánském stylu, ve kterém je sloučena dokonale forma i funkce s neotřelým italským designem. Příjemný první dojem, bude znásoben v okamžiku, kdy otevřete vstupní dveře. Obrovský a luxusní vnitřní prostor domu je umocněn podobou interiéru. Riviera navozuje pocit exkluzivity díky neobyčejným, ale harmonickým detailům v kombinaci s kvalitními materiály – množství masivního dřeva, atraktivních podlahových dlaždic, širokou paletou terakotových barev.
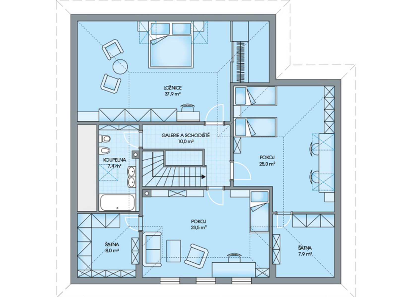
Komfortní dům s oblíbenou dispozicí do L a s velkým vnitřním prostorem, nabízí pohodlné bydlení pro až šestičlennou rodinu. Nadčasový t... var vyvažuje tradiční stylový vzhled s moderním designem. Společný obývací prostor má okna ze tří stran a je tu slunce po celý den. Zajímavé je částečné oddělení kuchyňské části od relaxační zóny se sezením – jsou propojeny, ale navzájem se neruší a obě mají samostatný výstup na krytou terasu. Podkroví je řešeno velkoryse, každý ze tří pokojů má vlastní šatnu.
Klady
stylová architektura
komfortní dispozice ve tvaru L
originálně členěný obývací pokoj
každá ložnice má vlastní šatnu
chráněná krytá terasa
integrovaná garáž
kryté závětří
Zápory
dům je vhodný pro větší pozemek
Chcete znát názor redakce?
Přečtěte si ji po přihlášení.
Aktivovat členství ZDARMAJste členem? Přihlásit se.
Objednejte si
bezplatný Katalog a zjištěte více
o domech firmy CANABA a.s.
Podobné domy na klíč
Elegantní dvoupodlažní vila s plochou střechou nadchne milovníky prosklené moderní architektury. Nabízí pohodlné bydlení pro čtyřčlennou rodinu, uvnitř upoutá především velký světlý společný obývací prostor. Přehledná dispozice je vybavena pohodlným zázemím a dostatečným úložným prostorem, velmi praktický je krytý vstup s parkovacím stáním pro auto. Všechny ložnice mají výstup ven – na balkon nebo terasu.
Jedna z mnoha verzí oblíbeného domu na půdorysu písmene L s valbovou střechou a krytou terasou, tentokrát v moderním designu s francouzskými a střešními okny. Zaujme atypicky řešeným společným obývacím prostorem se zkosenou stěnou a částečně oddělenou jídelnou a kuchyní. Nechybí pracovna a oblíbená krytá terasa. V podkroví jsou velké pokoje pro rodiče a 2 děti s pohodlnou koupelnou a velkými úložnými prostory.
Místnosti se zkosenými stěnami bývají problematické co do využití a vybavení nábytkem.
Jednoduchý dům se sedlovou střechou je jako jeden z mála typových projektů navržen pro společné bydlení tří generací. V přízemí má praktický společný obývací prostor s oddělenou kuchyní, velkou obytnou ložnici a komfortní koupelnu, v podkroví ložnici rodičů a společný pokoj pro 2 děti, které si mohou užívat balkon. Výhodou je přistavěná garáž s komorou pro zahradní potřeby. Pro početnou rodinu je však v domě poměrně málo úložného prostoru (chybí šatna).
Stavba inspirovaná tradičním typem domu se sedlovou střechou se bude nejlépe hodit na venkov nebo do malého města. Je určena pro čtyř až pětičlennou rodinu a vybavena odpovídajícím zázemím. Nejhezčí částí domu je atypicky členěný společný obývací prostor, v podkroví jsou nadstandardně velké dětské pokoje. Výhodou je i přistavěná garáž s využitelnou půdou.
Dvoupodlažní vilka s plochou střechou je jako stvořená do moderní městské čtvrti. Zajímavým prvkem jsou rohová okna, která dávají hodně světla a atraktivní vzhled.
Dům je navržen pro pohodlné bydlení čtyř až pětičlenné rodiny. zastavěná plocha není příliš velká, ale v promyšlené dispozici najdete příjemnou krytou terasu a velký členitý společný obývací prostor. Také pokoje v patře jsou prostorné a rodina má k dispozici komfortní zázemí.
Jednoduchý obdélníkový dům s nízkou sedlovou střechou vyniká promyšlenou a přehlednou dispozicí, která vytváří praktické bydlení pro čtyřčlennou rodinu, s velkou rodinnou koupelnou a potřebným zázemím. Každý si jistě oblíbí společný obývací prostor ve tvaru L i prostorné ložnice, které mají vyšší stropy než standardní podkroví.
Jednoduchý nadčasový dům se sedlovou střechou je určen pro praktické a úsporné praktické bydlení čtyřčlenné rodiny. Má přehlednou dispozici s oblíbeným společným obývacím prostorem ve tvaru L. V přízemí se nachází i ložnice rodičů s vlastní koupelnou, děti obývají podkroví a každý má v domě své soukromí. Praktické je i kryté stání pro auto u vstupu do domu.
Další z bohaté šály variací na dům půdorysného tvaru L s valbovou střechou, s oblíbenou krytou rohovou terasou. Je určen pro praktické bydlení čtyřčlenné rodiny, k jeho přednostem patří integrovaná garáž, pracovna, pohodlné koupelny a velký úložný prostot v podkroví. Podle potřeby může dům sloužit i jako vícegenerační. Problematickým místem je poměrně malá a navíc průchozí jídelna.
Dvoupodlažní dům s pultovou střechou je určen pro praktické bydlení čtyřčlenné rodiny. Vzhledem k výrazně prosklené hlavní fasádě je určen pro pozemky s orientací na jih, jihovýchod nebo jihozápad. Přestože nemá velkou zastavěnou plochu, je uvnitř velmi prostorný. Zaujme především impozantním společným obývacím prostorem s centrálním schodištěm a galerií.
Dům s členitými fasádami, polovalbovou střechou a vikýři se bude hodit do malého města nebo na venkov. Poskytne pohodlné bydlení až šestičlenné rodině. Za pozornost stojí prostorná vstupní hala propojená s velkým obývacím pokojem, v podkroví se nacházejí prostorné ložnice a velká pracovna. Zázemí odpovídá současným nárokům na pohodlné bydlení, včetně garáže integrované v domě. Pokoj v přízemí lze využít k vícegeneračnímu bydlení.
Atypické zpracování tradičního tvaru se sedlovou střechu dává tomuto domu zajímavý moderní vzhled. Uvnitř se nachází pohodlné bydlení pro čtyřčlennou rodinu s velkým společným obývacím prostorem, příjemnou krytou terasou, prostornými pokoji a zázemím, které poskytne vše, co rodina potřebuje.
Dům může být využit i k práci z domova nebo k vícegeneračnímu bydlení.
Jednoduchý dům se sedlovou střechou a nápaditým trojúhelníkovým balkonem bude vypadat půvabně na venkově i v menším městě. Čtyřčlenná rodina v něm najde praktické a úsporné bydlení s potřebným zázemím. Vzhledem k malé zastavěné ploše postačí malý pozemek a investiční i provozní náklady budou nízké.
Podobné domy od architektů
Architekt Martin Boden-Peroche postavil pro sebe a svého syna v unikátním prostředí památkově chráněného parku v centru Drážďan třípokojový bezbariérový dům. Moderní architektura z betonu a skla našla přirozenou symbiózu se svým okolím a žije si tu vlastním životem. Pohoda v tichu na palouku ve stínu staletých jehličnanů...
Mobilní obytný kontejner je usazen na břehu Hejlovského rybníka na Vysočině a na necelých 15 m2 nabízí vše, co jeden až dva lidé potřebují ke komfortnímu pobytu. Snahu o udržitelnost projevili autoři návrhu nejen v použitých materiálech, ale také v energeticky soběstačném řešení jednotky. Ložnice s dalekým...
Manželé stredního veku, kterí nyní bydlí v pohodlném, stredne velkém rodinném dome, se rozhodli myslet na budoucnost a zainvestovat do úsporného a praktického bydlení pro starší vek. Hledali cenove dostupné rešení, ale nechteli rezignovat ani na funkcnost, ani na estetickou stránku. Všechny požadavky jim splnil kontejnerový dum. Koupili rohový pozemek v malé obci v...
Patrová novostavba s dřevěným obložením fasády se v exteriéru i v interiéru může pochlubit moderním designem i vyspělými technologiemi. Její tajemství byste ale stěží uhodli. Nejedná se o dřevostavbu, zděný ani betonový dům, ale o montáž z lodních kontejnerů. Majitel Jakub Zaviačič se mnoho let profesionálně zabýval tepelnou technikou a moderními...
Kraj vinic začíná už u Kyjova, vlny moravského Toskánska pak pokračují směrem k jihu, kde na ně navazuje Pálava. V centru Bukovan je pod kostelem úzká dlážděná ulička se starými domky, u kterých se postupně stavěly vinné sklepy. Jeden z nich nahradila novostavba – ale nikdy byste neřekli, že tu už dříve nebyla. Klidná ulice se zahradami, nad níž je zelený...
Architekt Luciano Kruk zvolil jako materiál svého srdce monolitický beton. Dnes vám představujeme jeden z řady obytných domů, které navrhl do rekreační oblasti na argentinském pobřeží Atlantického oceánu. Lokalita Mar Azul leží v bezprostřední blízkosti rekreačního střediska Mar de Las Pampas, v krásné krajině, kde se na písečných dunách mísí vůně...
Zajímavý příklad ze zahraničí jsme tentokrát našli v exotickém prostředí daleké Jižní Koreje. Hlavní záměr – navrhnout bydlení především pro děti – je však společný všem civilizacím, a proto v tomto domě můžeme najít inspiraci i pro nás. Nevelký pozemek se nachází v dosud nepříliš intenzivně zastavěné oblasti Madong v blízkosti města Kjondžu...
Tak tento slamák by Cyrano z Bergeracu rozhodně v dál neodhazoval. A navíc by z návštěvy domu ze slámy byl jistě stejně nadšený jako my. Volba postavit rodinný dům ze slámy a hlíny rozhodně nebyla motivována omezeným výběrem stavebních hmot či jejich nedostatkem. To zdůrazňujeme zejména pro ty čtenáře, kteří ještě stále nedůvěřují dřevostavbám,...
Tereza Salte je z Prahy a vyrůstala v rodinném domě stejně jako její muž, který pochází z Norska. Navzdory tomu původně uvažovali spíše o koupi bytu. Pak ale došli k tomu, že za byt v dosahu centra města zaplatí stejně, ne -li víc, jako za dům na okraji Prahy. Na prohlídku jejich budoucího domu vzal John Terezu v květnu 2019 vlastně tajně, cestou z jiné prohlídky,...
Klidná ulice u řeky se dlouhou loukou otevírá k nábřeží, zahrady domů jsou naopak ve svahu. Bydlení u vody, a přitom nedaleko městského centra, na které je odtud krásný výhled. Nad protějším břehem se zvedá skalní stěna se znojemským hradem, rotundou svaté Kateřiny a kostelem svatého Mikuláše. Při stavbě nového domu bylo důležité místo nepoškodit a nezkazit,...
Rodinný dům měl být nejen příjemným místem pro život, zadáním byl od začátku také rozměrný skleník pro kaktusy. Jenže kam s ním, když si majitelé stavby přáli co nejhezčí výhledy do sadu a zároveň chtěli mít skleník co nejvíce po ruce? Lépe řečeno, ideálně suchou nohou. První koncept stavby vznikal na poměrně malém pozemku. V průběhu navrhování...
Dům v Berouně byl společně se svými sousedy vystavěn v 70. letech minulého století. Rekonstrukce jeho vnější podobu příliš nezměnila, architektovi Tomáši Petráškovi záleželo na kontextu místa, chtěl, aby zůstal součástí ulice a nepoutal na sebe pozornost víc, než je třeba. Interiéry však byly očištěny až na dřeň tak, aby vznikl otevřený a propojený...
Poslat vzkaz
PROFIL FIRMY
CANABA a.s.
14000, Štětkova 1001/5
Jak postavit skvělý dům
krok za krokem?
To se dozvíte zdarma v našem seriálu. Stačí se registrovat k e-mailovému odběru a získáte:
- 165dílný e-mailový seriál nabitý postupy
- Škola stavění krok za krokem
- Zařizování interiérů a relaxace doma
- Ověřené rady od odborníků
Cena od
Zastavěná plocha
Podlahová plocha
Dispozice
Doba výstavby
Počet podlaží
Typ střechy
Kategorie domů
Půdorys
Garáž/ garážové stání
Dodavatel