Tento dům soutěží v anketě Dům roku 2025. Líbí se vám? Hlasujte pro něj.
Hlasujte pro dům v anketě Dům roku 2025
Objednejte si
bezplatný Katalog a zjištěte více
o domech firmy GADLINE
Profil domu
Cena od |
na dotaz
Hypotéka: měsíční cena od
21 339 Kč
|
Zastavěná plocha |
261.00m2 |
Podlahová plocha |
341.00m2 |
Dispozice |
5+kk |
Počet podlaží |
Patrový dům |
Typ střechy |
Plochá, atypická |
Kategorie domů |
Zděná |
Půdorys |
Atypický |
Garáž/ garážové stání |
Garáž |
Dodavatel |
GADLINE |
Popis a recenze redakce
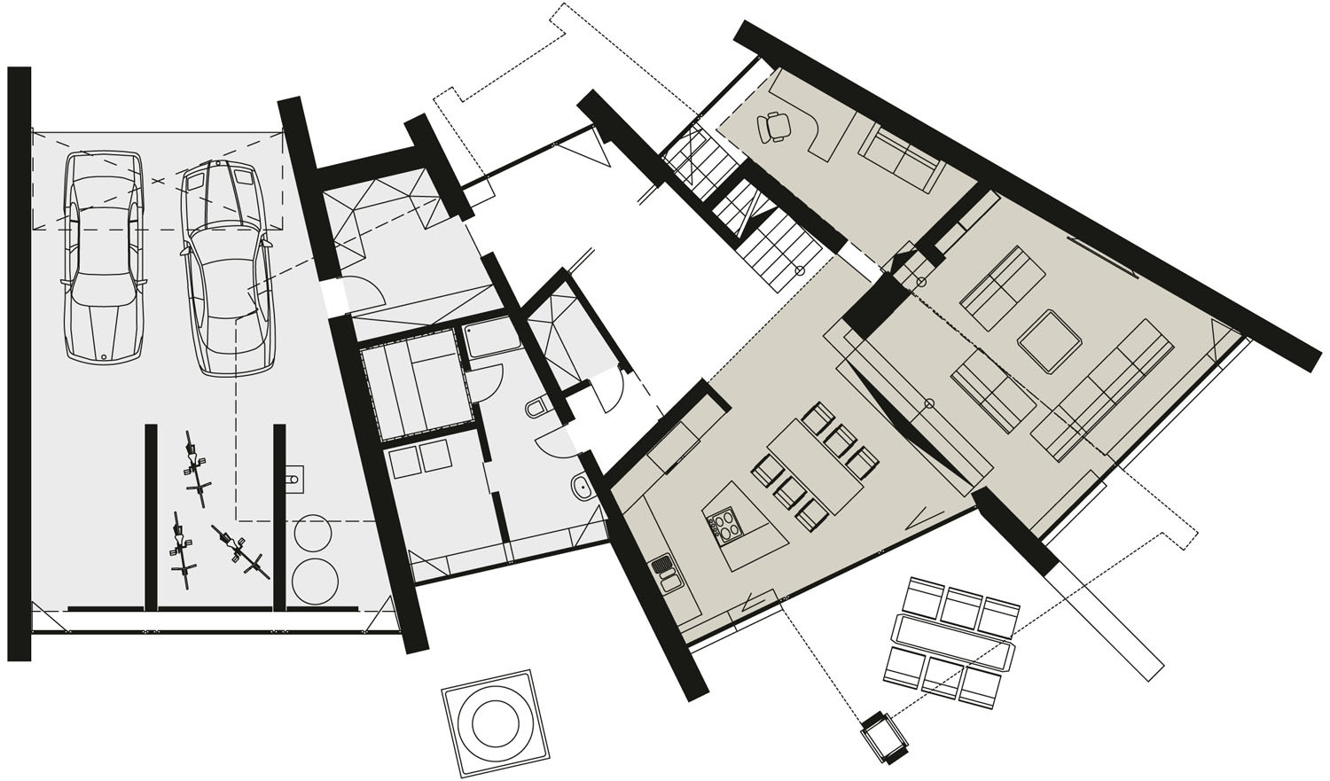
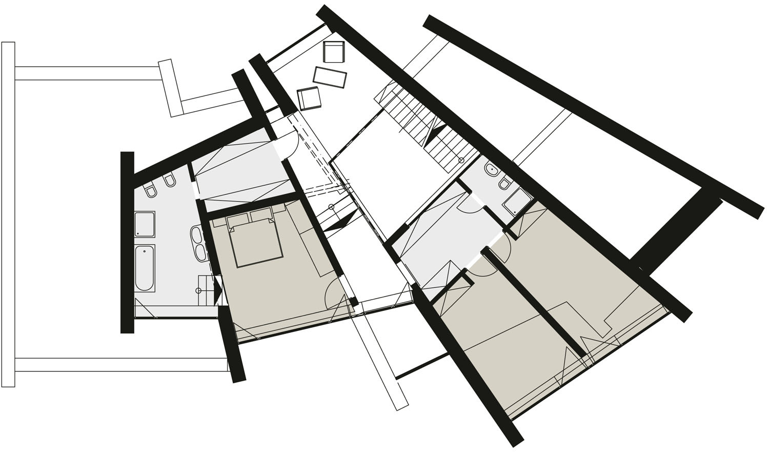
Ryze individuální domy, maximálně respektující přání investorů a poměry na pozemku, plus nezaměnitelný autorský rukopis, to jsou poznávací znaky staveb Aleše Gadliny. Díky vlastní stavební firmě ohlídá při výstavbě každý detail.
Atypický vzhled vychází z požadavku na širokoúhlý výhled a co nejvíce slunce v domě. Tvar pasivně využívá solární energii prostřednict... vím velkých prosklených ploch. Stavba je úsporná i „aktivně“ díky technickým zařízením. Kromě tepelného čerpadla jsou v jižní části garáže instalovány tzv. Trombeho stěny, což jsou skryté černé plochy fungující podobně jako solární kolektory. Slouží k vytápění a ohřevu teplé užitkové vody.
Klady
architekt dbal i na komfortní zázemí – velké šatny s denním světlem, prostorné koupelny a hezký výhled z každé místnosti jsou samozřejmostí
Zápory
nadstandardní kvalita materiálů provedení i technického vybavení se logicky odráží ve vyšší investici
Chcete znát názor redakce?
Přečtěte si ji po přihlášení.
Aktivovat členství ZDARMAJste členem? Přihlásit se.
Objednejte si
bezplatný Katalog a zjištěte více
o domech firmy GADLINE
Podobné domy na klíč
Dům se hodí do nové městské zástavby, velkorysá koncepce nabízí komfortní bydlení pro až šest osob s možností vícegeneračního uspořádání. Kromě elegantní architektury zaujme i propracovaným zázemím.
Trojboká usedlost skýtá v jednom křídle technické zázemí, garáž, pracovnu a venkovní kuchyni s krytým sezením. Druhé křídlo, souběžné s přístupovou cestou, zabírá vstup a hlavní obytný prostor převýšený do krovu.
Prosklená stěna krytá zápražím jej propojuje s dvorem. V třetím křídle jsou tři ložnice a koupelna.
Podobné domy od architektů
Bohatě prosklený bungalov ve východních Čechách ztělesňuje koncept „bytu na zahradě“, s nímž architekti z ateliéru Kunc vždy pracují. Maximální propojení interiéru s exteriérem je nedílnou součástí jejich autorského podpisu. Milují Skandinávii, nordic styl, tóny béžové a bílé, kombinace rastrů, struktur a přírodní materiály. A to...
Pozemek v nové čtvrti malého severomoravského města měl dvě hlavní devizy, které se podařilo v návrhu rodinného domu skvěle zhodnotit: orientaci na jih a výhled na panoráma Beskyd s Lysou horou. Architekti z ateliéru UYO pro rodinu již jeden rodinný dům navrhovali, takže druhá zakázka svědčila o spokojenosti klientů....
Dům postavený na členitém pozemku na severozápadním okraji Bratislavy se ve všech směrech prolíná se zahradou. Koncept řešení daleko přesahuje obvyklý standard bydlení v bungalovu. Na zvlněném, mírně svažitém pozemku v nové čtvrti, která byla připravena pro developerskou výstavbu, měli architekti z ateliéru plusminus architects...
Životním snem manželů Holečkových byl vlastní dům s krásnou zahradou a jezírkem. Pan Holeček pracoval jako tesař a pokrývač a vlastníma rukama postavil mnoho domů. A teď měl možnost přiložit ruku k dílu i při stavbě svého vlastního bydlení. Za lokalitu si vybrali rodnou vesnici, ve které našli klid a spoustu skvělých sousedů – přátel z dětství, a k bydlení...
Tichá vesnice Blatiny, chráněná zaoblenými Žďárskými vrchy, zve návštěvníky do citlivě zrekonstruovaného, původně zemědělského stavení s číslem popisným 11, kde se propojuje historie s moderním stylem. Majitel usedlosti Vít Eichler vypráví: „Statek z konce 19. století, který se nachází na vrcholu malebné obce Blatiny s výhledem do údolí, působí...
Válcové segmenty a oválné tvary vídáme u staveb realizovaných v České republice poměrně vzácně a jsou vyhrazeny spíše architektuře občanských a administrativních budov. Vila postavená na severní Moravě je v tomto směru osvěžující výjimkou. Nejde však o výsledek nahodilé „inspirace shůry“. Architekti logicky interpretovali požadavky stavebníka v kontextu se...
Mladí architekti adaptovali historický měšťanský dům v jižní Itálii na plnohodnotné bydlení s veškerým dnes požadovaným komfortem. Podařilo se jim výrazně zmodernizovat dispozici i vzhled domu a zachovat přitom jeho základní historické hodnoty. Ráz malého města Caserta, které leží mezi mořem a horami, hodinu cesty od Neapole, v 18. a 19. století významně...
Na parcelu svažující se k severu, ke krásnému výhledu na Veleslavín a další části Prahy, navrhl v r. 1968 architekt Miroslav Matašovský objekt složený ze dvou ateliérů. Jiří Harcuba, který se ve světě proslavil návrhy rytého skla, medailí a mincí, jej časem upravoval podle svých potřeb, například přistavěl kovovou konstrukci s tabulkovou prosklenou stěnou. Pro...
Ateliér Kunc Architects si získal oblibu díky své koncepci bydlení založené na maximálním prolínání domu a zahrady. To byl také hlavní požadavek stavebníka, který zakoupil krásný pozemek ve středních Čechách. Rozlehlá svažitá parcela se rozvinuje podél příjezdové komunikace orientované směrem východ – západ a v příčné ose prudce stoupá směrem k...
Plochá i sedlová střecha, dřevo a omítka, černá i bílá fasáda – kontrast i harmonie. V malé obci na jižní Moravě vznikl rodinný dům, který originálním způsobem respektuje ducha lokality, a zároveň přináší současné architektonické hodnoty a moderní komfort. Všechny části domu mají moderní velkoformátová okna a jednoduché kompaktní tvary. Do tohoto...
Mérida, hlavní město mexického státu Yucatan, je známá krásnou historickou architekturou a množstvím zeleně. Patří k oblastem s nejlepší kvalitou života v Mexiku, zájem o bydlení je tu proto obrovský a není divu, že nedostatek pozemků je podobný jako u nás. Řešení mexického architekta může posloužit jako zajímavá inspirace. Architekt Arturo Carrillo...
Fotbal je týmová hra, ve které je důležitý systém, přesnost, rychlost a rytmus. Současně dává vyniknout individualitám a netradičnímu řešení. Proč takový úvod, když jdeme na návštěvu do rodinného domu nedaleko Havlíčkova Brodu, kde budeme primárně obdivovat architekturu? Kromě toho, že majitel domu je vášnivý fotbalový fanoušek, je také vyznavač...
Poslat vzkaz
PROFIL FIRMY
GADLINE
25244, Slepá 130
Jak postavit skvělý dům
krok za krokem?
To se dozvíte zdarma v našem seriálu. Stačí se registrovat k e-mailovému odběru a získáte:
- 165dílný e-mailový seriál nabitý postupy
- Škola stavění krok za krokem
- Zařizování interiérů a relaxace doma
- Ověřené rady od odborníků
Cena od
Zastavěná plocha
Podlahová plocha
Dispozice
Počet podlaží
Typ střechy
Kategorie domů
Půdorys
Garáž/ garážové stání
Dodavatel