Domy Aleše Gadliny zpravidla na první pohled upoutají pozornost velkorysým a dynamickým řešením. Podobně je tomu i u novostavby v severních Čechách. Při pohledu na její kosé úhly a tvary připomínající kubistické sochy byste vnitřní uspořádání jen stěží odhadli. Spočívá však na základech geometrie a logiky provozu.

Luxusní dům, 5+1, od GAD line spol. s r. o.
Líbí se vám tento dům?
Profil domu
Cena od |
Zjistit cenu |
Zastavěná plocha |
290 m2 |
Užitná plocha |
336 m2 |
Provedeni domu |
Luxusní dům |
Dispozice |
5+1 |
Kategorie domů |
Zděná |
Typ střechy |
Plochá |
Půdorys |
Atypický |
Pozemek domu |
Rovinatý |
Ateliér / architekt |
GAD line spol. s r. o. |
Rodina se dvěma dětmi si vybrala velký pozemek vymezený na jihozápadní straně silnicí, na opačné straně výhledem na půvabnou siluetu blízkých kopců. Na jedné misce vah klidná poloha na okraji malé obce, na straně druhé příčný svah s poměrně výrazným sklonem. Krásné okolní panoráma, které přitahuje pohledy jako magnet, však jasně rozhodlo. Toho pravého architekta pak objevili po průzkumu časopisů na trhu a na internetu.
„Dám dělovou ránu,“ zpívá v jednom ze svých největších hitů ikona naší populární hudby. Možná bychom tak mohli přeneseně popsat i příběh tohoto projektu, za nímž stála hlavně odvaha, vytrvalost a odhodlání uskutečnit věci neobvyklé a nevyzkoušené. „Zadání bylo na české poměry velmi benevolentní, stavebníci si přáli komfortní dům s čistými liniemi a nechali mě volně tvořit, ať se ničeho nebojím,“ vypráví Aleš Gadlina. „Pro každé místo hledám ideální a jedinečný tvar, někdy ve více variantách. V tomto případě mě inspirovaly trojúhelníky a klientům se líbila už první skica.“

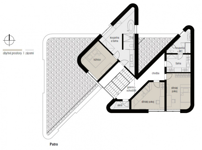
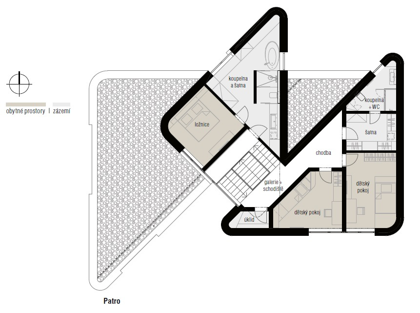
Dispozice jako souhra trojúhelníků
Obě podlaží tvoří dvojice vzájemně propojených trojúhelníkových hmot s oblými rohy. Každá z nich má ucelenou funkční náplň a všechny jsou navzájem spojeny ústřední schodišťovou halou.
V přízemí se nachází velká dvougaráž s technickým zázemím a společná denní zóna, která prosklenou stěnou navazuje na velkou terasu a zahradu vzadu za domem. „Krásný výhled do krajiny je pro nás rozhodující, takže orientace hlavního obývacího prostoru na severozápad nám vůbec nevadí. Naopak máme rádi stín a slunce si tu užíváme ráno a vpodvečer,“ vyprávějí majitelé. Kuchyň s varným ostrůvkem přímo sousedí s velkým jídelním stolem, sezení je umístěno v zadní části tohoto prostoru a částečně odděleno polopříčkou, aby vznikla klidová zóna pro odpočinek, čtení, poslech hudby a podobně. V přízemí je také domácí fitness, pracovna a sauna se zázemím.

Po otevřeném schodišti se vychází o půl patra výše do „dětského“ podlaží se dvěma pokoji synů, koupelnou a šatnou. O dalších osm stupňů výše se nachází ložnicová zóna rodičů. Architekt tu zajímavě propojil šatnu s koupelnou, která zaujímá severní trojúhelníkový „cíp“ domu. Druhé podlaží v tomto bodě výrazně přesahuje přes přízemí a expanduje do volného prostoru. Konstrukčně náročný a výtvarně působivý prvek nevznikl samoúčelně, ale má praktický účel – stíní terasu u jídelny.
Procítěný interiér
Trojúhelníková dispozice přináší zajímavou členitost a neopakovatelnou atmosféru vnitřního prostoru, ale zároveň klade větší nároky na jeho vybavení. Vesměs se jedná o zakázkovou výrobu podle návrhu architektky Lenky Kanalošové, která navrhla vybavení v souladu s koncepcí Aleše Gadliny. Majitelé si zvolili především kvalitní materiály a vyspělé technologie – ořechové dřevo, sklo, nerez ocel, leštěné keramické obklady a dlažby, špičkové elektrospotřebiče atd. Energeticky úsporný provoz s tepelným čerpadlem, podlahovým vytápěním, klimatizací, zabezpečením, osvětlením a ozvučením je řízen systémem inteligentní domácnosti.

Jak u samotné stavby, tak v interiéru kladli stavebníci velký důraz na čistotu a přesnost. „Interiér řešíme postupně, chtěli jsme dům napřed procítit a pak dovybavit,“ vysvětluje paní domu. „Vyrůstala jsem v kulturním prostředí, ve funkcionalistickém domě, proto mám ráda zajímavé solitéry a výtvarné prvky. Ještě čekáme na obrazy, které dodají domu ducha a teplo.“
Se stejným přístupem prováděli také zahradní úpravy. Svažitý terén byl srovnán do roviny, aby za domem mohla vzniknout široká terasa s bazénem, bezbariérově přecházející v rekreační travnatou plochu. Podél severozápadní hranice pozemku byla vybudována mohutná, 3 metry vysoká a 70 metrů dlouhá opěrná zeď, která uvolnila místo pro zpevněnou plochu s velkou pergolou, grilem a odpočinkovým zákoutím v japonském stylu. Výrazně se tak rozšířil a zhodnotil venkovní obytný prostor, kde se nikdo nebude nudit.

▪ Užitná plocha: 336 m2
▪ Konstrukce: betonové základové pasy a základová deska, kombinace zděné (Porotherm) a železobetonové konstrukce, stropy a schodiště železobetonové monolitické, vnější kontaktní zateplení
▪ Výplně otvorů: okna a prosklené plochy – hliníkové Schüco s izolačními trojskly, bezbariérové posuvné plochy s HS portály, předokenní žaluzie na automatické ovládání, vnitřní dveře atypické na míru
▪ Vytápění a technologie: podlahové teplovodní vytápění, zdroj energie tepelné čerpadlo IVT, 2 geotermální vrty, řízené větrání s rekuperací, klimatizace (kromě dětských pokojů), bazén Dejoyaux s posuvným zastřešením, centrální vysavač Husky, systém inteligentního řízení domácnosti Insight Home
▪ Návrh interiéru: Ing. arch. Lenka Kanalošová
FOTOGALERIE:
Autorizovaný inženýr, absolvent Stavební fakulty ČVUT Praha. V r. 1997 založil stavební firmu Gadline, která se postupně rozrostla o architektonický ateliér. Zabývá se návrhy rodinných domů a bytových staveb od studie až po realizaci, specializuje se na projektování energeticky úsporných domů, které využívají pasivní solární efekt.
Kontakt: GAD line spol. s r.o.
Slepá 130, Dolní Jirčany – Psáry
Tel.: 602 201 729, www.gadline.eu
Foto: Jiří Vaněk a Jana Labuťová
Cena od
Zastavěná plocha
Užitná plocha
Provedeni domu
Dispozice
Kategorie domů
Typ střechy
Půdorys
Pozemek domu
Ateliér / architekt
Pingback: Architekt Gadlina: Cihla byla přáním majitele domu - Materiály pro stavbu
Pingback: Architekt Gadlina: Cihla byla přáním majitele domu – CSČM