Dvě vily v zahradě za starou zdí působí dojmem, jakoby se jejich majitelé dohodli a zadali projekt ateliéru, který je blízký jejich srdci se záměrem, že chtějí vytvořit blízké sousedství. Blízké nejen z hlediska krátké vzdálenosti, ale i názorů na estetiku a kvalitu bydlení. Příběh je ale jiný: první dům byl postaven už před pěti lety, druhý byl dokončen nedávno.

Městský dům, 5+kk, od Under-construction architects
Líbí se vám tento dům?
Profil domu
Cena od |
Zjistit cenu |
Zastavěná plocha |
248 m2 |
Užitná plocha |
341 m2 |
Provedeni domu |
Městský dům |
Dispozice |
5+kk |
Kategorie domů |
Zděná |
Typ střechy |
Plochá |
Půdorys |
Obdélníkový |
Pozemek domu |
Rovinatý |
Ateliér / architekt |
Under-construction architects |
Ze severní strany, tedy od ulice, oba domy rámuje stará kamenná zeď. Sousedům se nelíbila, a tak ji zbourali, ale architekti Erika a Vladimír Vašutovi její kouzlo uměli rozpoznat. Cení si jí jako připomínky starých časů, navíc dává místu kouzlo. Pozemek se mírně svažuje k jihu, dole ho ukončuje potok, výhledy směřují ke korunám stromů a ke třem věžím barokního zámku v Mníšku pod Brdy. A stará zeď tyto kvality ještě umocňuje. Zároveň vytváří přirozený soukromý prostor.
Starší brácha
Prvním krokem při spolupráci architektů s investory byly konzultace nad prioritami návrhu. Shodli se na tom, že mezi ně patří rovná střecha, vykonzolovaná část domu nad vstupem, průhledy v hlavní obytné místnosti. Stavební úřad však trval na šikmé střeše a vyjednávání bylo zdlouhavé. „S klienty jsme se odhodlali podstoupit několikaměsíční úřednický boj. Museli jsme získat kladná stanoviska od památkového ústavu, městského architekta, rady města a na závěr od samotného stavebního úřadu. Vložená energie, víra a odhodlání se nám vyplatily. Získali jsme stavební povolení na dům takový, jaký jsme si společně vysnili. Fungující a bez kompromisů,“ vzpomíná Vladimír Vašut.

Výsledek působí čistě a přirozeně. Stavba se nepovyšuje, přitom má svoji noblesu. Přispěly k tomu dokonalé proporce fasády s čistými horizontálními liniemi. Její krásu ještě podtrhují formáty oken s dřevohliníkovými rámy.
Řešení domu je v podstatě lapidární, odpovídá současným standardům a představám o příjemném a pohodlném bydlení. Hlavní obytný prostor v přízemí se velkými okny otevírá k severu i k jihu, se zahradou ho propojuje dřevěná terasa, kterou je možné v letních měsících zastínit markýzou.

Ložnice s koupelnami a saunou se nacházejí v patře
Interiéry působí vyrovnaně a klidně, autoři návrhu záměrně volili jen několik základních barev a materiálů. Dřevěné podlahy a schodiště, které je ozdobou místnosti, nábytek v kombinaci bílé a černé včetně krbu. Ten se stal přirozeným středem domu. Velmi důležitá jsou tu již výše zmíněná okna. Stala se šperkem, který neoslňuje, ale upoutá. Střídmá barevnost panuje téměř všude kromě dětských pokojů, kde se na nábytku i stěnách uplatnily výraznější, ale příjemné odstíny.
A ten mladší
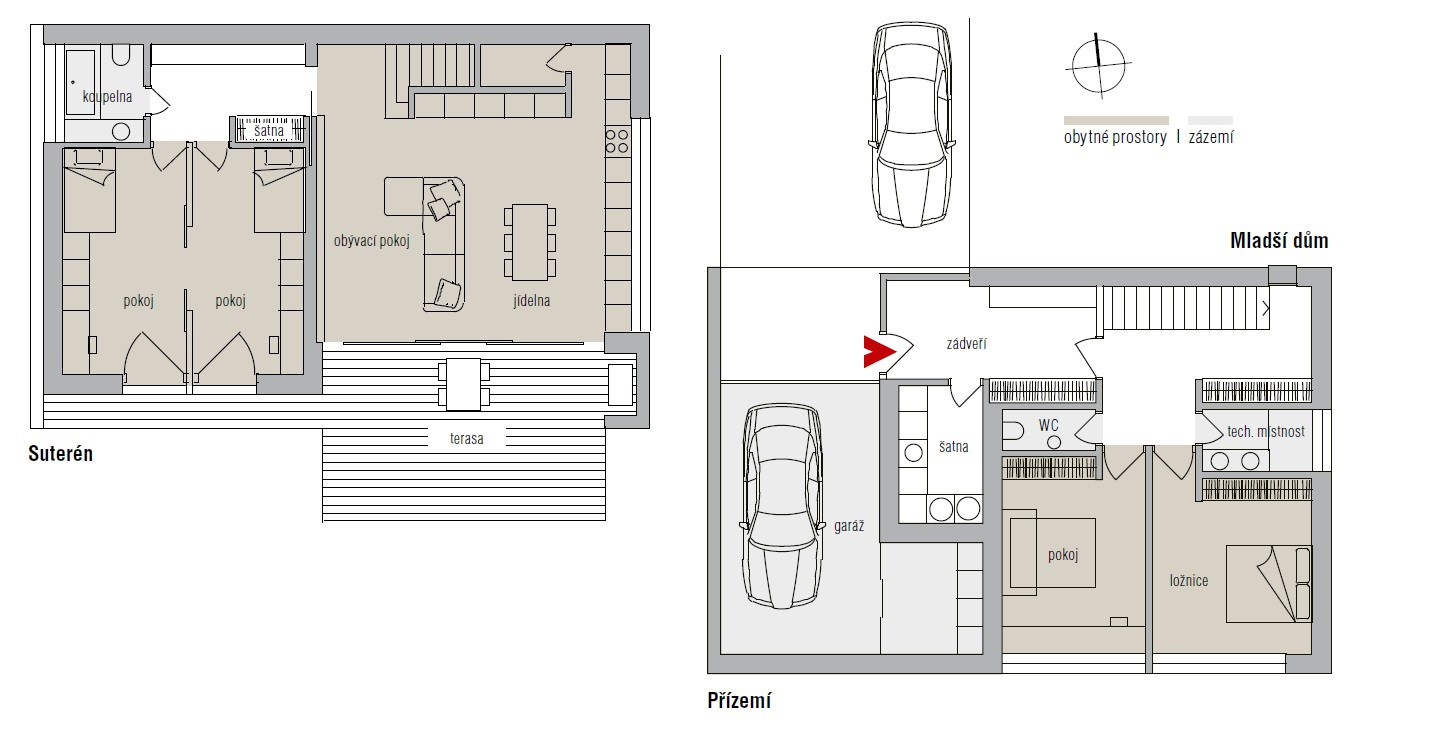
Druhý dům vznikl později, dokončen byl letos. Staršímu bratrovi je podobný, ale umí překvapit. Už jenom tím, že se vstupuje do horního podlaží, kde je i příjezd a garáž. Za novými vraty ve staré zdi nás vítá prosklený vstupní prostor, který působí přátelsky a otevřeně.
Pozemek koupila rodina, která žila v zahraničí a domů se vrátila, aby tu děti mohly začít chodit do školy. A protože se jim vila v sousedství zalíbila, oslovili stejný ateliér, ale s poněkud jiným zadáním.

„Byli jsme tak postaveni před nový a zvláštní úkol – stejný pozemek s romantickou zdí, mladý manželský pár, dvě děti, podobný rozpočet, ale přece jen trochu jiné představy o vlastním bydlení. Lokalitu a sousedy už jsme znali, na stavebním úřadě jsme si rovnou střechu dokázali vyargumentovat, ale přesto to pro nás byla nečekaná výzva, nechtěli jsme kopírovat sami sebe. Postavili jsme přece vedle dům podle našeho nejlepšího vědomí. Má být sousední dům stejný? Nemůžeme přece popřít sami sebe! Každému klientovi šijeme šaty na míru. Každý investor, každá rodina je jiná, proto i každý dům musí být individuální. Měli jsme pocit určitého dobrodružství, ale pustili jsme se do toho,“ vzpomínají architekti Vašutovi.
Jako vždy se snažili vcítit do představ klientů a do jejich vnímání života. Absorbovali jejich požadavky, přání i pocity, aby mohl vzniknout dům skutečně pro ně.

Ve vstupním podlaží se nachází dva pokoje. Nyní slouží jako ložnice rodičů a pracovna. Až děti vyrostou, budou jejich. O podlaží níže se nachází velká obytná místnost, k níž jsou přičleněny dva pokojíky pro děti, v budoucnu naopak ložnice rodičů a pracovna. Interiéry jsou opět střídmé a prosté, barevnost opět vyvážená, největší ozdobou jsou tu opět velká okna, a to včetně vstupní haly. Nábytek byl ale navržen tak, aby co nejlépe vystihoval charakter domu. Černobílé variace jsou tu pěkně rozehrané, od velkých ploch až po jemné linky s výraznou geometrií.
▪ Užitná plocha: Starší dům 163 m2, mladší dům 178 m2
▪ Konstrukce: oba domy jsou materiálově podobné, zděné z betonových prolévaných tvárnic s omítkou, stropy mají monolitické
▪ Podlahy: dřevěné třívrstvé lamely a keramická dlažba
▪ Okna: hliníková s izolačním trojsklem v antracitové barvě
▪ Vytápění: plynový kotel, podlahové vytápění, v ložnicích desková otopná tělesa
▪ Stínění: předsazené venkovní žaluzie
▪ Starší dům: krb je součástí kuchyňské linky
▪ Mladší dům: hliníkový obklad, který prochází z exteriéru do interiéru
FOTOGALERIE:
under-construction architects, Erika a Vladimír Vašutovi
Jsme tým prověřený dlouholetou zkušeností společného fungování. Nespecializujeme se na jeden typ zakázek, naopak je pro nás výzvou různorodost. Bavil nás návrh baru pro Ples v Opeře, umíme dát život různým interiérům a prostorům, hledáme nejlepší řešení pro individuální bydlení, motivuje nás práce na bytových domech. Byli jsme vyzváni ke spolupráci na pivovaru, pomáháme s vestavbou odborných učeben do podkroví základní školy. Naučili jsme se navrhovat provozy pro extrémně náročnou výrobu optických vláken, přestavujeme hotel na apartmánový dům, vydláždili jsme náměstí v Kutné Hoře, byli jsme oceněni ve vyzvané soutěži na Letiště Václava Havla.
V našem ateliéru poskytujeme prostor pro české i zahraniční stážisty, píšeme oponentní posudky studentům architektury, porotujeme v soutěžích. Máme rádi klienty, kteří si nás vyberou na základě referencí a důvěřují nám. Spolupráci vždy vnímáme jako dialog.
Foto: Vladimír Vašut, under-construction architects
Cena od
Zastavěná plocha
Užitná plocha
Provedeni domu
Dispozice
Kategorie domů
Typ střechy
Půdorys
Pozemek domu
Ateliér / architekt
Zeptat se & odpovědět